清溪文史馆位于浙江宁海桑洲镇南山岗,项目定位为包含宁海桑洲镇的文化历史展览、游客接待中心和文化体验中心为一体的小型文化旅游建筑。
基地远离城市的喧嚣,周边仅有一条连接多个村落的乡间公路经过,田野中时有当地的村民在劳作。地势上下高差明显,由北向南呈台地向上,北侧视野开阔。远处群山连绵,东西两侧均为梯田。
基地处于一片美丽的梯田之中,靠山面水。在文史馆的外在空间上,据场地自然场所氛围来顺应自然、顺应地势、因地制宜。设计将建筑融入现状,将轮廓与地形地貌衔接,延续原有梯田的轮廓,并希望整个建筑的屋顶与周围梯田保持一致,布满农作物。
建筑的内在空间塑造也与外部形态一致,不规则的墙面和高低错落的屋顶形成的每一个空间都富有变化,如同乡间小径,宽窄不一,错落有致。光线通过高窗或天窗投射在墙与地面上,形成一道道变化丰富的自然风景。
通过质朴的技艺和手法,使得整个建筑在近距观感和质感上与自然的梯田与山岗相一致。石头窗框的处理,滴水的选择等等细节也均是老把式精心而作。
在内部空间材料的选择上,尽可能体现真实的质感,通过清水混凝土屋顶、白色质感硅藻泥墙面以及原木色的门窗来体现乡村建筑最原始的内在感受。
小山坳中的一角,静静的梯田,平凡质朴的建筑消隐于山水间,一如千百年来生长于此的山林田地。
环境本是一个复合的整体,由各种功能类型的自然或人工的空间共同构筑而成。文史馆作为在此环境中实体存在的建筑,表现出的也不仅是风格和表象,而是对社会、技术和文化等一脉相承的环境体系的实体表达,是体现对自然与乡土的最大认同。
消隐的形体、适宜的工艺、得体的空间。落成后的文史馆之于原始的梯田、溪流、小桥、阡陌,处处体现对周围不同韵致的回应,顺地形起伏而高低错落。时有小桥跨溪,时有小筑依山,望之有时似尽,转过却又别开生面。
设计希望通过低调融入的设计手法和选择最为地域的建筑形式,营造一座能体现乡土个性的、且具有地方场所特征的小型文化建筑。
看山还是山,看水还是水……
总平面图
一层平面图
二层平面图
1-1剖面图
2-2剖面图
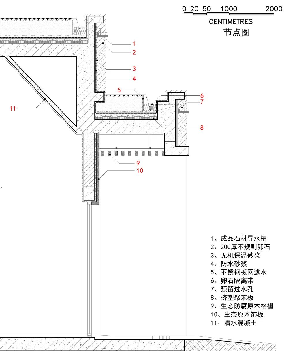
节点图一
节点图二
项目名称丨桑洲清溪文史馆
项目业主丨宁海县文化旅游集团有限公司
建设地点丨浙江 宁海
设计单位丨浙江大学建筑设计研究院
建筑设计丨吴震陵、章嘉琛、李宁、王英妮、陈瑜
结构设计丨金振奋、沈金、倪闻昊
给排水设计丨陈激、陈飞
电气设计丨郑国兴、丁立
暖通设计丨郭轶楠、任晓东
智能化设计丨江兵
室内设计丨李静源、方彧
景观设计丨吴维凌、徐聪花、朱靖
建筑经济丨褚铅波
建筑摄影丨章鱼见筑、丁俊豪
获奖情况丨2021 教育部优秀勘察设计 一等奖
获奖情况丨2020 WAN Awards 金奖
本资料声明:
1.本文为建筑设计技术分析,仅供欣赏学习。
2.本资料为要约邀请,不视为要约,所有政府、政策信息均来源于官方披露信息,具体以实物、政府主管部门批准文件及买卖双方签订的商品房买卖合同约定为准。如有变化恕不另行通知。
3.因编辑需要,文字和图片无必然联系,仅供读者参考;
推荐一个
专业的地产+建筑平台
每天都有新内容
扫描二维码关注

微信公众号“搜建筑”(ID:sjz9999)
合作、宣传、投稿
联系微信:soujianzhu006
阅读原文:“UAD浙大”更多精品

