武汉福星惠誉东湖城
Wuhan FUXINGHUIYU Donghu City
中国,湖北
Hubei, China
1. 时光
_
如果把时间拨回到100年前,一条老街、两重分界、三国鼎立,横跨英法俄三块租界的汉口老街区,保留着那个年代留下的所有记忆。北京的四合院儿,上海的弄堂里,武汉汉口的里份,人间的烟火气,绵延传承的街巷里串起来了太多的美好记忆,散发着老汉口独特的人文底蕴。
如果把时间拨回到60年前,在前苏联的援建下,青山的红坊武钢正式破土动工,迎来了新中国兴建的第一个钢都的诞生。而青山区的红房子街坊是武钢投产时产业工人的住宅楼,鸟瞰呈繁体字“喜”,特殊的建筑排列肌理形成了丰富的内部空间。
而这些老街区和老工业基地才是能够承载武汉的生活和记忆的典范,时光在狭窄的巷子上空不断流转,百年来承载着武汉的沧桑与巨变,是独属于武汉人的历史记忆。
2. 化大为小
_
城市的发展是一个不断更新、改造的新陈代谢过程。在城市化的进程下,无数个历史街区湮灭在历史的长河中,而东湖·拾光则希望复刻住这段历史记忆,保留住老武汉的市井气息,见证独属于武汉人的人间烟火气。
在对东湖·拾光旧城区进行更新时,设计者首先以人本主义为出发点,摈弃了大尺度和大街区的城市开发模式,从城市的功能、形态、景观、艺术等方向入手,在高容积率高密度下将住宅办公商业等多个业态组合成现代城市的复合街区空间,在一种现代城市的语境下去实现符合现代居住的聚落空间,旨在将其改造成一个人性化、充满活力的城区。
东湖城地块的容积率为4.20,为了缓解高密度高容积率城市改造带来的建筑、街区的尺度失衡,影响居民的居住体验,在规划结构上将其划分为办公组团、公寓组团以及商业街区和住宅组团,提出一种街区化集群创新办公居住设计的新概念。
3. 街区
_
城市不应该是若干封闭的“大院”和“围墙”,城市街区和道路要有人情味,不要单纯为汽车开道,也要为居民汽车散步、逛街购物、餐饮会友、休闲娱乐提供方便,形成综合功能的街区。
城市不应该是若干封闭的“大院”和“围墙”,城市街区和道路要有人情味,不要单纯为汽车开道,也要为居民汽车散步、逛街购物、餐饮会友、休闲娱乐提供方便,形成综合功能的街区。
开放式的街区组成城市肌理,近人尺度的街道空间打破了传统社区与城市之间的壁垒。丰富有序的空间、宜人的街道尺度、组团的聚落空间,打破了城市千篇一律的兵营式布局。临街空间引入商业,作为生活服务配套,允许多样化的尺度和空间融合到社区中,将社区生活融入城市。此外,东湖·拾光将绿化引入社区空间内部,除了东西向景观轴,组团内部也有自己的内向景观,将景观渗透进社区。
建筑规划形态的设计性和居住建筑的使用性上往往有一定的矛盾冲突,居住建筑对日照,采光,朝向,通风,噪声,私密性,视野等都有较强的要求,而建筑规划形态的标志性,肌理,界面,空间丰富性等也会反约束于居住建筑。在这中间要找到一个平衡,需要兼顾多方面的因素。
4. 开放、复合
_
在传统的“方格子”的城市规划及房地产开发模式下,城市被分割成了很多“围城”,既没有烟火气、也没有人情味。而东湖·拾光打开社区围墙,引入城市道路,将社区街道完全向城市开放,旨在将城市的脉络延伸至社区中形成良好的互利影响,将建筑融入到城市生活中,让建筑回归到人的关怀。
社区即城市,东湖·拾光作为一个开放的社区,依托特色里份和工业历史建筑打造集办公、商业、居住公寓以及文化艺术场所等不同业态为一体的复合型空间,将居住、办公、商业汇于一体,让历史、人文、商业在这里交融。
5. 城市柔性界面
_
不同于传统的界面冰冷、道路单调、立面无趣、功能单一的传统建筑,东湖·拾光是一个创新的、现代的、极具地标性的创新建筑。东湖·拾光整体创意办公组团紧邻园林路主干道,布局呈L型,建筑高低错落,富有层次感,组团内部享有自己的内部景观,局部通过连廊加强连接。建筑外立面以现代简约流线型风格为主,简洁的白色立面,高低起伏的建筑屋顶丰富了城市界面。
项目的商业街区界面不同于传统的骑楼形式,东湖·拾光的商业贴于街道布置,高贴线率的商业街区保证了街道空间的连续性,而丰富的立面结构,递进的空间体量,丰富了整体街区形态,文化艺术的交融激活了街道活力。
6. 艺术植入
_
东湖·拾光示范区充分融入了当地的文化、人文等元素,主入口门廊空间将外观的艺术性与建筑的功能结合起来,利用功能构件作为立面的装饰,整体造型简约干净,富有现代感。
组成建筑立面格栅的每一条铝板都进行了不同程度的扭转,使得从不同角度看过去的格栅各部分都有疏密的变化,富有节奏与韵律感。而阳光透过格栅,玻璃与光影的交织产生丰富的光影变化,塑造轻盈通透之感,营造了舒适又惬意的空间。
7. 拾光
_
时光即拾光,武汉一百多年的历史时光成了建筑师的创作灵感来源。曾经的老街区,如今的东湖·拾光是一段历史时光的缩影,不仅是一个功能多元、环境宜居、背靠历史面向未来的活力街区,更是一个有地方特色、文化气息和人情味的多样化可持续发展社区,也是一张永不褪色的武汉国际化名片。
技术图纸
_
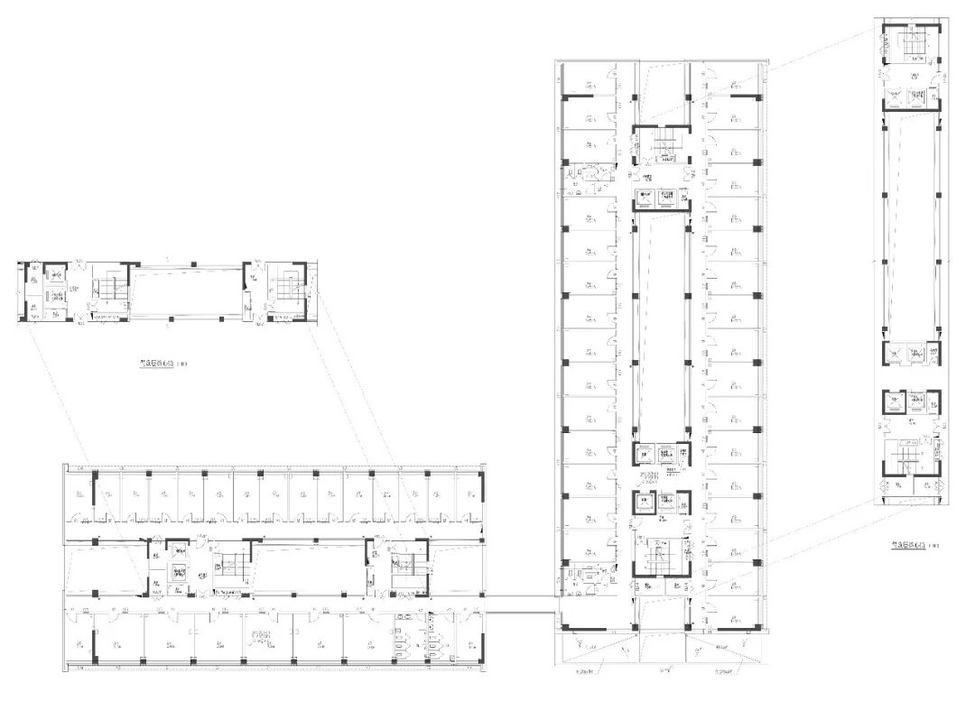
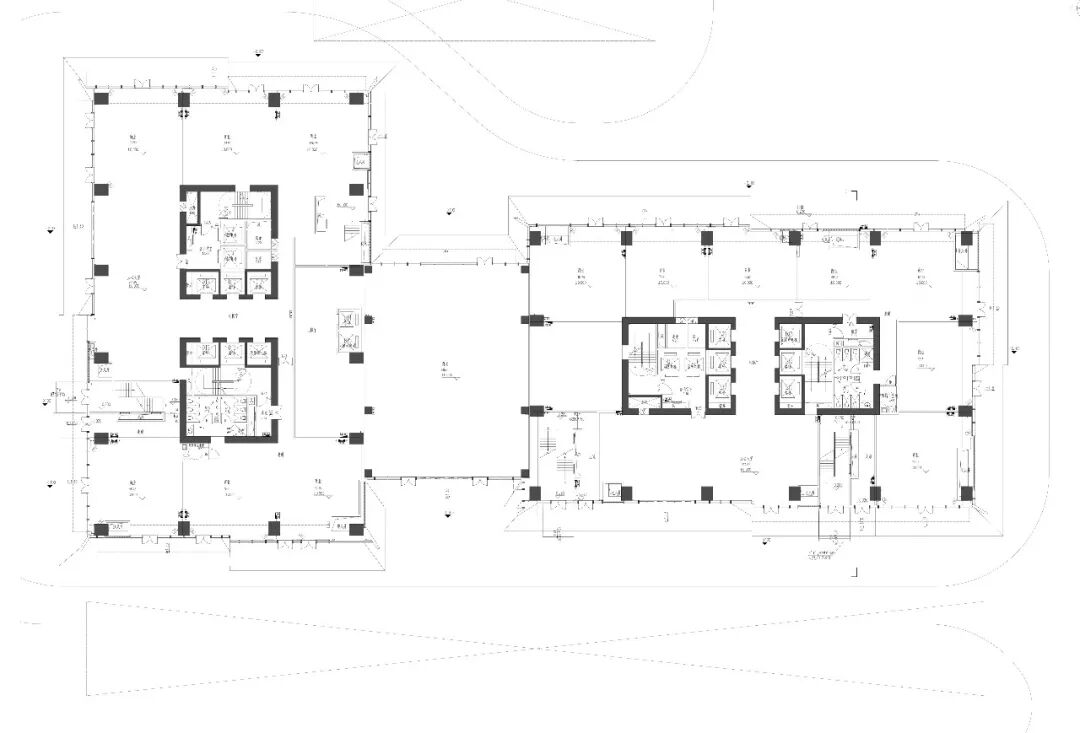
◎总平面图
◎A1#A2#首层平面图
◎A1#A2#三层平面图
◎B2#六、十三、十四层平面图
◎A1#A2#西立面图 ◎B2#东立面图
◎E2#北立面图
◎E2#东立面图
工程档案
项目名称 | 武汉福星惠誉东湖城拾光
项目位置 | 武汉市洪山区沙湖大道以北、园林路以西
项目类型 | 办公商业住宅
业主单位 | 武汉福星惠誉
业主团队 | 钟琳、张文烽,张未、尹莉、张佩、杨超、傅达雯、陈政伟
建筑设计 | 上海日清建筑设计有限公司
项目总负责 | 熊星 吴笛
设计团队 | 马大伟 马锐 付忠国 刘天赐 海日罕西日木 潘雅冰
景观设计 | 上海日清景观设计有限公司
施工图设计 | 武汉正华建筑设计院有限公司
幕墙设计 | 上海谷音建筑工程咨询有限公司
建筑面积 | 466500m²
设计时间 | 2016.07
竣工时间 | 2022.01
摄影 | Moment-张雪晨、远洋、刘颖媛
本资料声明:
1.本文为建筑设计技术分析,仅供欣赏学习。
2.本资料为要约邀请,不视为要约,所有政府、政策信息均来源于官方披露信息,具体以实物、政府主管部门批准文件及买卖双方签订的商品房买卖合同约定为准。如有变化恕不另行通知。
3.因编辑需要,文字和图片无必然联系,仅供读者参考;
推荐一个
专业的地产+建筑平台
每天都有新内容
扫描二维码关注

微信公众号“搜建筑”(ID:sjz9999)
合作、宣传、投稿
联系微信:soujianzhu006
阅读原文:“日清建筑”更多精品


