大数跨境
0
0

万科会所:艺术庭院 建筑景观一体天成

万科会所:艺术庭院  建筑景观一体天成 搜建筑
2022-09-09
1
导读:有中心水景的宅园——建筑与景观交融,空间开合随动线的节奏和视线转折而变化。
 更多精品,关注“搜建筑

玉匣空境,写意石园
这方建筑师事务所



石园

开池浚壑,理石挑山,设门有待来宾,留径可通尔室。竹修林茂,柳暗花明。
——计成 《园冶·相地》傍宅地

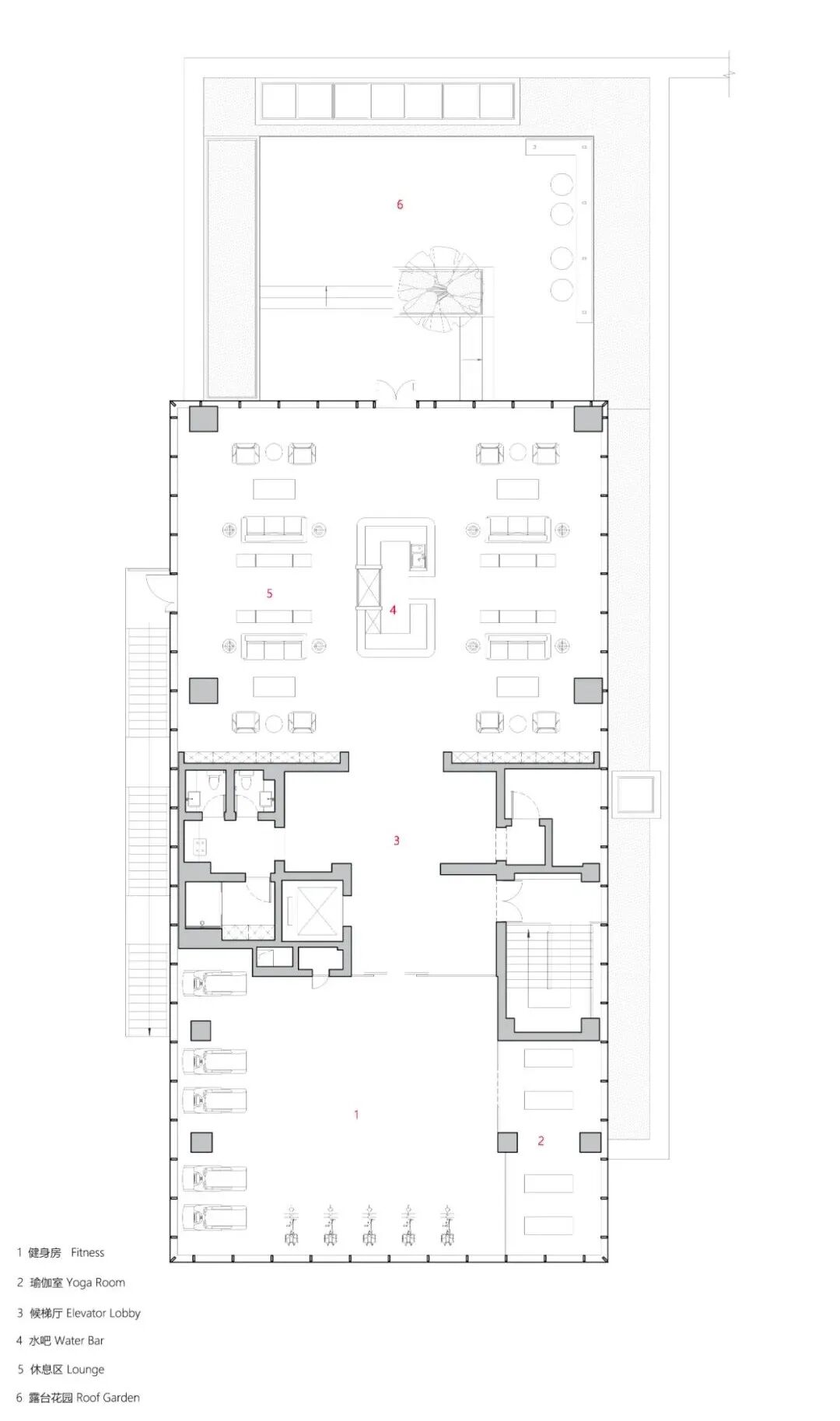
用地是一个住区前面的小院,地界大约50米见方。任务书要求,设计一个业主归家空间,包括健身会所和泛大堂:对街道相对封闭,内部小而精致,有深宅大院,大隐于世的意境。

建成呈现出来的,是一座有中心水景的宅园——建筑与景观交融,空间开合随动线的节奏和视线转折而变化。景观元素,有水池、飞瀑,有廊墙、景轩,以及树和艺术品。通透的入口大堂,是园林中“亭”的意象。山的意境,则用会所表达。会所建筑和廊墙,化身为庭园中的“山”和“石”。山石连接交错,成为一体。飞瀑从半山落下,水池底,是几何雕刻处理的石材铺面——整座庭园,仿佛是从石头中刻出的雕塑空间。

▼宅园南侧鸟瞰 Birdeye view of the House Garden ©目外摄影
▼体块构成图 Massing Sequence diagram 
光盒

池上理山,园中第一胜也。若大若小,更有妙境。——计成 《园冶·掇山》

▼石材基座上的光盒子 Light hall on the stone base ©目外摄影

会所部分的功能,包含游泳池、健身和休闲空间。为不影响小院采光,会所布置在地块西边缘,短边朝南。二层整体和一层脱离,并做轻量化处理,以减轻二层体量对院落空间的影响。一层的建筑和景观整体作为基座,二层的盒子漂浮其上。此外,盒子体量再向西侧错动,进一步弱化它对中心庭院的压力。

▼总平面图 Site Plan

二层表皮用高密彩釉玻璃,颜色上和一层浅色基调协调,材质上却和石材对比 —— 一个半透的发光盒子,轻轻地搁于基座上,仿佛漂浮在石园之上。宅园面向城市道路的界面,除入口外都是高墙。二层的光盒,从围墙和绿化后,探出身来,反映着晨昏云霞,和街道上的生活万象。

▼从城市街道看光盒子 the Light box emerges behind the wall and trees ©栾祺
▼光盒子和石材基座的交接 the Light box intersects with the stone base ©目外摄影

从空中看,整个小院宛如从白石中挖出,池水中点缀着绿树和灯光。夜幕降临,星星从池底和绿地中涌现,流向城市。地灯和小径,指引人归家。

▼顶视航拍 Aerial vew ©目外摄影

空间:藏和露
若夫园亭楼阁,套室回廊,叠石成山,栽花取势,又在大中见小,小中见大,虚中有实,实中有虚,或藏或露,或浅或深。——沈浮 闲情记趣

入口 
小院南侧是城市道路,一颗大树标志了园区入口。大树水池周边是落车空间,入口廊道尽端是大堂,经过长雨棚,穿过水池前厅空间,就会看到金属幕帘后的大堂。

▼大树水池和甬道后的园区入口 Entrance is behind the tree pool and covered path ©栾祺
▼ 从前院看金属幕帘后的大堂 the Reception hall is behind the metal screen ©目外摄影
▼首层平面图 Ground floor plan

大堂 

两栋建筑,入口大堂和会所,一虚一实。大堂为入口交通和转化空间,是一个玻璃体,而实体的健身会所,位于小院的西边,兼具西侧边界之用。

大堂玻璃体量上覆深远的挑檐,除遮阳的功用,也把视线引向小院中心,和更远处的景轩和飞瀑。
▼亭的意象——浮在水面上的大堂 Image of “Ting”——the floating reception hall ©目外摄影
▼东西向剖面,可见北侧的景轩和飞瀑 East-west section, where the North pavillion and waterfall are visible

景轩

进入住区需从大堂东侧出,经廊道缘水北行,先进入北侧的景轩。大堂东墙面延伸,围合出兴趣空间,艺术品雕塑、天空和出墙的树木,相得益彰。景轩既是休闲空间,又是观景空间。顶棚框出小院尺度。

▼东侧廊道上兴趣景观空间 the sculpture interest space on the passegeway ©栾祺

▼从景轩看大堂和会所 framed view of the reception hall and clubhouse, from the North Pavillion ©目外摄影

会所
从水庭方向,会所可望而不可及。需绕道入口大堂西侧,经小径漫游抵达。曲折的小径,布置着订制灯具、对景喷泉和雕塑,让人徜徉在艺术氛围中。

▼大堂西侧的小院 ©目外摄影
▼从大堂西侧看会所 View of the clubhouse from west yard ©目外摄影

会所一层南立面,像两面石制的幕帘,显露通透的室内。不锈钢板顶棚,穿孔轻量处理,到了夜晚,像宝盒发出的光芒,磅礴而出。二层健身房体量似虚还实,消隐在天光灯影中。

▼会所入口 Entrance of the Clubhouse ©目外摄影
▼会所南立面图 South Façade of the Clubhouse

首层泳池,阳光从落地窗和高窗进入室内,潋滟的水光打到墙面和顶棚,分不清是反射还是真实。游泳者沉浸水中,可以暂时忘掉一切。

▼泳者视角看庭园 ©目外摄影

二层健身,光线经半透明的外皮过滤进入,室内如薄纱笼罩,氛围让健身者心绪平静,同时感到被保护。在二层屋顶花园,可以俯瞰小院,享受微风。

▼夜晚通透的泳池和半透的健身房 the bright swimming pool and translucent fitness space ©目外摄影

水体和飞瀑

水是庭园的灵魂。水自北山飞瀑来,水波伴着星光,荡漾渺弥。到西南侧,水体渐收渐隐,流到矮墙后,和花园融合,不知其所终。

▼水庭 the Watercourt   ©目外摄影

材料:重与轻

不同于江南园林中建筑的消隐处理,考虑到本项目地处寒冷东北,会所主要立面用实墙,强调厚重的体量和肌理,体现建筑之重,进而带来永恒的气质。开口在体量上深凹,通高景窗开向院内,和水景交融。泳池外的亲水休闲平台又像飘板浮在水面。石材立面分隔考虑了三个层次的视觉观感:远距离看槽,中景看缝,细节看纹理。

▼轻薄的休闲平台漂浮在水面,和建筑深凹的通高景窗形成对比 contrast of heaviness and lightness ©目外摄影
▼会所立面材料对比和细部分隔 Stone and Light grove division ©目外摄影
▼会所东立面图 East façade of clubhouse
玻璃盒子用匀质高密白点彩釉玻璃,减弱和白色石材的对比,也让漂浮更加轻盈。盒子底面通过穿孔做出“光点”退晕处理,让石材和金属板之间产生微妙的光线映射。石头盒子主材是木纹石,纹理也水平流动,和水池波纹做出呼应。

▼会所东南角 ©目外摄影
▼石材分隔和灯槽 ©目外摄影

白天,玻璃体量的颜色融入天空,反射着周边建筑剪影。树影婆娑,落在沉着的石墙上,纯粹而安定。夜晚到来,灯槽逐渐亮起,像跳动在水面上的音符。健身房和泳池化身舞台,二层影影绰绰,一层光亮四射,向城市和内院展示健康生活。

▼白天水院景观 ©目外摄影
▼夜晚水院景观 ©目外摄影

项目名称丨万科府前会所
项目位置丨沈阳皇姑区金山北路府前壹号
建筑面积丨健身会所1140㎡,社区泛大堂141㎡
设计时间丨2021年5月- 7月
建成时间丨2022年5月
业主单位丨沈阳万科企业有限公司
业主团队丨张鑫、李新哲、张所亮、李岳霖
建筑设计丨这方建筑师事务所
设计团队丨赵仲贵、Ekaggrat Kalsi、王旭超、高振泉、梁智钧、丁琛(实习)
施工图院丨沈阳市华域建筑设计有限公司
景观设计丨北京创翌善策景观设计有限公司
灯光设计丨碧昂照明设计咨询(上海)有限公司
室内设计丨北京捷思装饰设计有限公司
幕墙深化丨沈阳沈飞集团铝业幕墙工程有限公司
摄影机构丨目外摄影 栾祺

技术图纸
▼总平面图
▼二层平面图
▼南北向剖面图
▼东西向剖面图
▼会所入口放大图
▼石墙分隔和灯槽节点放大图
▼ 更多精品·点击关注

本资料声明:

1.本文为建筑设计技术分析,仅供欣赏学习。
2.本资料为要约邀请,不视为要约,所有政府、政策信息均来源于官方披露信息,具体以实物、政府主管部门批准文件及买卖双方签订的商品房买卖合同约定为准。如有变化恕不另行通知。

3.因编辑需要,文字和图片无必然联系,仅供读者参考;

9月22-23号:南京·精品楼盘考察
▼点击下图,了解报名

推荐一个
专业的地产+建筑平台
每天都有新内容
扫描二维码关注
微信公众号“搜建筑”(ID:sjz9999)

合作、宣传、投稿
联系微信:soujianzhu006
【声明】内容源于网络
0
0
搜建筑
关注全球时尚的、新的建筑资讯。
内容 10717
粉丝 0
搜建筑 关注全球时尚的、新的建筑资讯。
总阅读272
粉丝0
内容10.7k