位于 Kurfuerstenstrasse 和 Genthiner Strasse 的新建住宅群和谐地融入了 City West 附近的热闹地区。项目名称简明扼要地描述为 Schoeneberg 和 Tiergarten 地区之间的交界处,该建筑项目占地近 7,200 平方米,缩小了现有的周边街区开发,因此存在数十年的差距。新项目将按照欧洲城市的传统重新定义自然生长的城市街区。从这里步行即可到达诺伦多夫广场,搭乘地铁很短的路程即可抵达选帝侯大街购物街。良好的连接还可以轻松到达柏林的其他目的地。
The newly created residential ensemble on Kurfuerstenstrasse and Genthiner Strasse blends harmoniously into the lively district in the direct vicinity of City West. Concisely described in the project name as the interface between the Schoeneberg and Tiergarten districts, the building project on a plot of land measuring almost 7,200 square metres closes the existing perimeter block development and thus a gap that has existed for decades. The naturally grown city block will be redefined with the new project in the tradition of the European City. Nollendorfplatz can be reached on foot from here, and the Kurfuerstendamm shopping mile is just a short underground train ride away. A good connection also makes it easy to reach other destinations throughout Berlin.
14座无缝连接的建筑的基本布局形成了一个带有封闭内庭院的P形建筑。六层每层都支撑着一个交错的楼层。多样化的城市风格反映在综合体的外观上。主要的玻璃,商业用途的地面层将排与一个诱人的正面融入到街道空间。虽然上部楼层的结构强调垂直,但每栋房子都有自己的设计和个人细节,如其自己的表面材料,其不同的饰面或阳台的设计,脱颖而出。
The basic layout of the ensemble of a total of 14 seamlessly connected buildings forms a P with a closed inner courtyard. Six full storeys each support a staggered storey. The diverse urban flair is reflected in the exterior of the complex. The predominantly glazed, commercially used ground floors integrate the row with an inviting front into the street space. While the structure of the upper floors is emphasised vertically throughout, each house stands out with its own design and individual details, such as its own surface material, its different finishes or the design of the balconies.
建筑混凝土和砖石是立面设计的基本材料,根据建筑物的不同执行不同。混凝土木模板的粗糙结构与光滑的裸露混凝土和精细打磨的石灰华光学元件交替出现。反过来,熟料包层有不同的颜色和图案可供选择。
立面的设计多样性与街景和谐地融为一体。多面立面的个别材料选择是对柏林建筑遗产的参考:砖、砖石的颜色和图案变化是指教堂和工业建筑,槽纹石膏是威廉时期的,裸露的混凝土和玻璃是当今的语言柏林. 内院的抹灰立面呈现出与街道立面相似的颜色和表面设计。
Architectural concrete and masonry are the basic materials for the façade design and are executed differently depending on the building. The rough structures of a concrete-wood formwork alternate with smooth exposed concrete and finely sanded travertine optics. The clinker cladding, in turn, is available in different colour and pattern variations. The design variety of the facades blends harmoniously into the street scene. The choice of individual materials for the multi-faceted facades is a reference to Berlin's architectural heritage: bricks, masonry in colour and pattern variations refer to church and industrial buildings, fluted plaster to the Wilhelminian period, exposed concrete and glass speak the language of today's Berlin. The plastered facades in the inner courtyard show a similar design with colours and surfaces as the street facades.
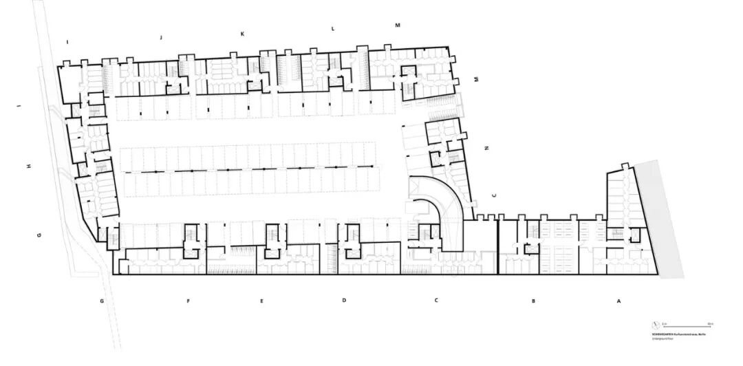
窗扇和盲窗区域通过凹槽、波纹或颜色强调和放松。不同的阳台设计强化了生动的立面形象。玻璃栏杆用于匹配混凝土表面,为砖石立面提供单独的金属栏杆。这里将共建182套公寓,共享地下停车场有86个停车位。一房至两房的公寓面积从46平方米到146平方米不等。在北面和东面,底层公寓将有梯田区,带有灌木和树木的小前花园和游乐区。该项目是 KfW Efficiency House 55。
Window flaps and blind window fields are additionally emphasized and loosened up by recesses, corrugations or colour accents. The vivid façade image is intensified with different designs of balconies. Glass balustrades are used to match concrete surfaces, individual metal railings are provided for masonry facades. A total of 182 apartments will be created here, and there are 86 parking spaces in the shared underground car park. The size of the one- to two-room apartments ranges from 46 to 146 square meters. To the north and east, the ground floor apartments will have terraced areas with small front gardens of shrubs and trees and play areas. The project is a KfW Efficiency House 55.
建筑师:Tchoban Voss Architects
本资料声明:
1.本文为建筑设计技术分析,仅供欣赏学习。
2.本资料为要约邀请,不视为要约,所有政府、政策信息均来源于官方披露信息,具体以实物、政府主管部门批准文件及买卖双方签订的商品房买卖合同约定为准。如有变化恕不另行通知。
3.因编辑需要,文字和图片无必然联系,仅供读者参考;
推荐一个
专业的地产+建筑平台
每天都有新内容
扫描二维码关注

微信公众号“搜建筑”(ID:sjz9999)
合作、宣传、投稿
联系微信:soujianzhu006