金玉上城位于玉环玉城街道三合潭片,设计场地平整,自然条件良好。基地西侧临近大型高端商业体——吾悦广场,人流聚集,人气较旺,既有生活条件优越;南侧靠近待开发山体资源——鲤鱼山,自然环境较佳;北侧临近政府机关与未来城市公园,人文气息较浓,自然视野无疆。
▲金玉上城规划生成设计分析
设计团队分析项目周边环境,在重点研究人居动线的基础上,充分利用周边山林资源,营造小区内外的环境共荣,整体性推动小区与城市的契合度及其内在品质,打造玉环城区品质标杆住区,构建“生态共荣”的宜居生活。产品上,在解决区域刚需的同时,合理利用规划条件提供更具吸引力的产品组合,满足不同阶层的品味需求。
▲金玉上城鸟瞰效果图(方案阶段)
▲住宅单体效果图(方案阶段)
作为金玉上城的先行示范区,设计在不充裕的用地范围内,巧妙规划场景动线,并赋予建筑独特性与文化性的双内涵,予以场地价值匹配。
▲示范区实景©章鱼摄影
▲功能流线与景观设计一体化设计分析
基于示范区设计场地相对狭小,可展示面窄,且周边待发展,城市界面尚不完善,设计通过“整体性打造”思维的构建,选取主体建筑落位地块西北角。同时,为赋予示范区可探索属性,设计结合场地实际,通过社区大门前置引入的方式,塑造示范区主入口,以延长示范区流线及展示项,在有限的范围内打造示范区前场,并在功能流线与景观设计一体化打造的基础上,铺陈场所的高体验性。
▲街角鸟瞰实景©章鱼摄影
前场空间以江南园林“曲径通幽,移步易景”的造园手法为主轴,并通过现代空间的引导、转折、虚掩、围合,形成“明月松间照,清泉石上流”的空间意境。从停车区通过引导空间,进入入口广场,穿过景观门廊,步入转换空间,再通过过渡空间来到核心水景,最后进入展示中心。流线清晰,一气呵成。
▲晨曦中的主入口空间熠熠生辉©章鱼摄影
▲入口大堂移步异景©中国金茂
▲转换空间层次有趣
▲展示中心意境深长©章鱼摄影
▲“鱼跃龙门”的设计构思
设计转译辛弃疾《青玉案·元夕》中“龙鱼”这个海洋文化主题,建筑形态上采用抽象含蓄的方式,叠加纯粹的建筑材质,来表达“鱼跃龙门”的构思:主体浮于水云之上,以高反玻璃幕反射外部水景,并结合蓝色波纹灯光表现下有河海。自“龙鱼嘴”为始,为场地打开未来之窗;周身披上参数化的“龙鱼玉鳞”,结合灯光设计演绎时代节奏下的灯光大秀;城市街角画龙点睛,一气呵成打造品牌标签;通过景观回廊串联未来社区大门,跃过龙门方可见金玉上城。
▲立面材质分析
立意成形后,设计如何让静止的建筑“舞”起来?是否存在一种表皮系统,既能满足功能需求又能达到效果展现?经反复推敲,内部以防雨百叶为“纸”,外部以参数百叶为“墨”,打造可呼吸的表皮系统。内部防雨百叶的特定间距,既保证内部光源不会透出,避免影响外部视觉效果,又满足分体式外机的排风需求。外部参数百叶通过参数化设计,呈现出特有的肌理,并随着时间的不同、角度的不同,呈现出不同的光影视觉效果,真正做到了让静止的建筑舞动起来。
▲可呼吸的表皮系统分析
在一体化色彩纯净控制的基础上,层次性丰富主立面表皮系统,形成别有洞天的主界面。静止的“鳞片”,随着角度的变化宛若微风拂过激起阵阵涟漪。时光更迭,建筑在光与影的变化中,呈现出不同的肌理。
▲主立面舞动韵律的演绎©章鱼摄影
同时,为强化示范区在城市主界面上的记忆点,设计对主入口景墙进行近人尺度的参数化设计,并融合黄铜色铝方通和米黄色仿炫彩石铝板材质,展现标识性立面语言。
▲主入口景墙设计分析
▲点点星光指引归家之路©章鱼摄影
▲施工现场图
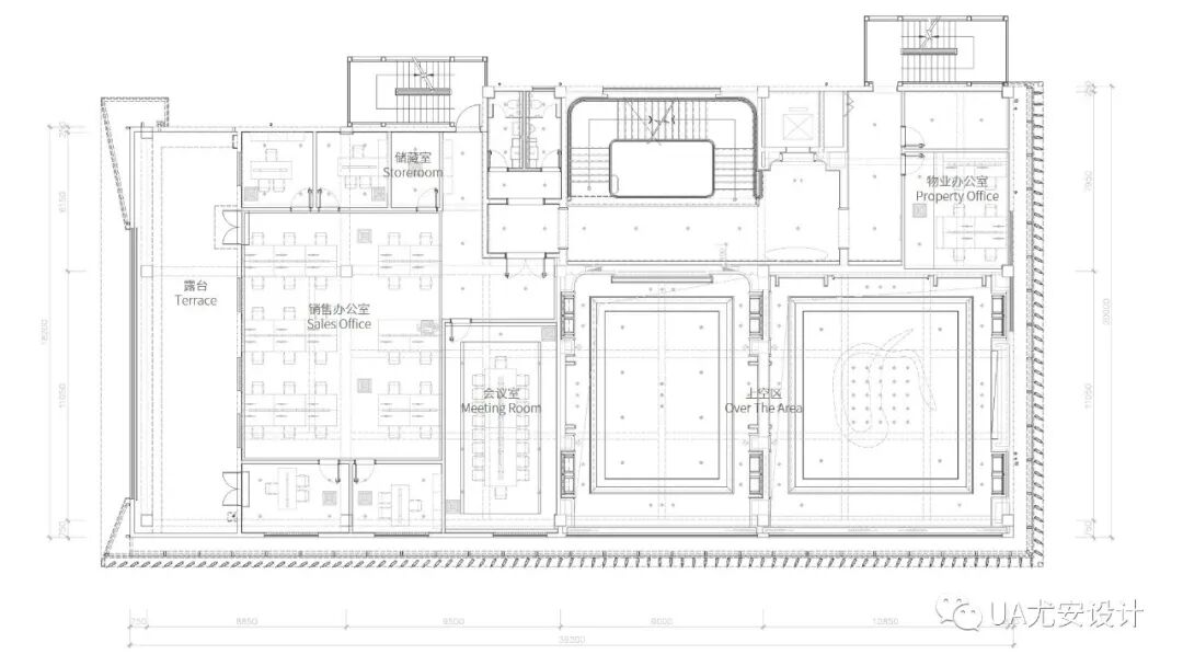
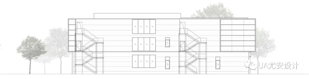
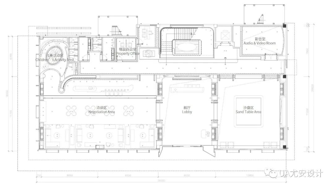
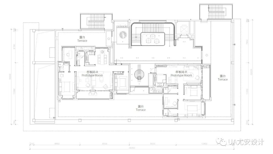
技术图纸
▲各层平面图
▲东、西立面图
▲南、北立面图
本资料声明:
1.本文为建筑设计技术分析,仅供欣赏学习。
2.本资料为要约邀请,不视为要约,所有政府、政策信息均来源于官方披露信息,具体以实物、政府主管部门批准文件及买卖双方签订的商品房买卖合同约定为准。如有变化恕不另行通知。
3.因编辑需要,文字和图片无必然联系,仅供读者参考;
推荐一个
专业的地产+建筑平台
每天都有新内容
扫描二维码关注

微信公众号“搜建筑”(ID:sjz9999)
合作、宣传、投稿
联系微信:soujianzhu006


