客厅——户型的C位,它的设计一直以来也是大家关注的重点。是对外待客空间、家庭成员间畅谈空间、休闲空间......
这两年随着时代的发展,不同时代需求下,当原有的客厅功能不再能匹配时代居住诉求时,其设计理念也发生了一些变化。
一是客厅格局,从竖厅到横厅再到方厅、巨厅;
二是客厅的多功能设计;
再就是精装修人性化设计。

搜建筑本期根据客厅的类型、功能及细节进行详细解析。
• 70年代,大部分户型都是客卧不分,连为一体,功能分区非常不清晰
• 80年代,客厅意识开始加强,会开辟一块地方作为专门看电视的空间
• 90年代,客厅的雏形,小方厅出现,配合家中的皮沙发,木地板,是富裕家庭的标配
• 00年代,竖厅出现,客厅开始有现在客厅的雏形,电视,茶几,沙发三件套,成为家家户户的基本配置
最近几年,客厅的空间开始从竖厅,变为横厅甚至是边厅,同时也配置超大面宽阳台。
客厅从无到有,再从有到优,这一步步的演变是户型进化的一种表现。
先来说一下竖厅,进深>面宽,也是最常见的客厅,朝南的采光面较窄,因此采光与通风条件都较差一点。
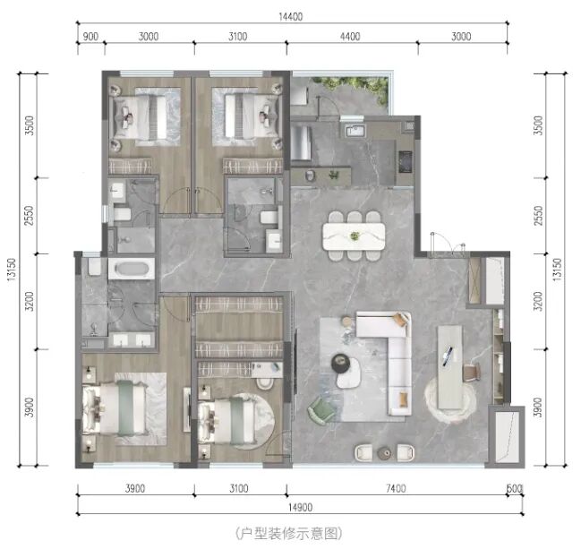
这两年的竖厅设计,也进一步做了提升不再仅仅是进深>面宽了,比如重庆龙湖春屿江岸建筑面积约101㎡户型,做了竖厅设计,连接超大双联阳台,北侧家政阳台设计,整个客厅南北通透,采光通风舒适度非常高。

重庆龙湖春屿江岸建筑面积约101㎡户型图
再来看横厅,刚好和竖厅相反,进深<面宽,横厅的采光面一下增大,因此光线、通风等情况要比竖厅好很多,一般在大户型中比较常见。
比如南京江宸府建筑面积约143㎡户型,南向大横厅搭配宽景阳台,层高约3.1米,落地窗阳台长约6.7米,视野十分开阔。
南京江宸府建筑面积约143㎡户型图

约143㎡户型样板间实景图
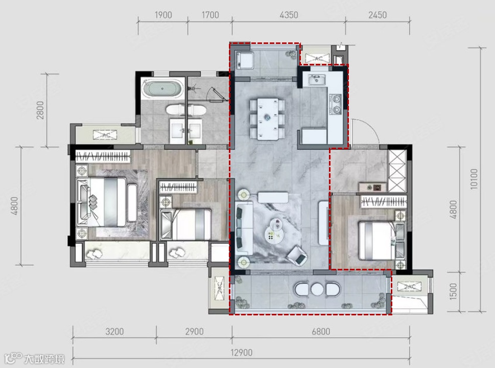
再来看成都龙湖三千云锦建筑面积约143㎡户型,约7m横厅+2.4m厨房空间+1.7m进深跑道阳台,整个一体化设计,舒适度非常高。

成都龙湖三千云锦建筑面积约143㎡户型图
边厅,区别于传统的横厅、竖厅,具有无界视野、采光充沛等特点,为满足拥有270°及以上采光面,房子的边缘、端头区域就成为了俱佳选择。
比如,昆明龙湖锦麟天序建筑面积约259㎡户型和成都龙湖御湖境建筑面积约196㎡户型,LDKG一体化设计,270°边厅+L形花园阳台,餐厨位置也设计了小阳台,简直是秒杀级卖点。

昆明龙湖锦麟天序建筑面积约259㎡户型图

成都龙湖御湖境建筑面积约196㎡户型
再比如下边这个边厅户型,建筑面积约287㎡,采用LDKG+边厅一体化设计,加上客厅约11.05米的超大落地窗,再配合南边阳台约9.4米的采光量,一个270°全景视野,就像院里的IMAX巨幕就被打造出来,还能真正意义上做到了家庭生活动线和访客动线的互不干扰。

无锡西水东檀宫建筑面积约287㎡户型图
在客厅活动公区的设计上,愈加倾向于复合多元的场景布局,比如利用大面宽横厅、广角视野的边厅以及大尺度阳台,组合成更大尺度的复合场景互动空间,能容纳更多场景需求,提高居住舒适度。
无论是一些偏小面积段的户型还是中高端产品,只做纯粹的客厅空间,空间更加空灵纯净,非常适合冥想和专注于当下时刻。
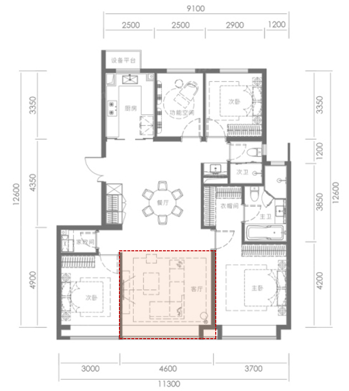
比如北京绿城晓风印月建面约145㎡户型,约4.6m的宽厅和成都龙湖御湖境建面约175㎡户型,约5.55m宽厅,除了客厅空间,完全也可以拓展多功能空间,但是做纯粹的客厅,整个空间的舒适度有大幅度提升。

成都龙湖御湖境建面约175㎡户型图
再比如杭州建发·缦云建面约189㎡户型LDKB大通厅,客厅面宽约6m,放一组Minotti的大沙发,气场全开。

杭州建发·缦云建面约189㎡户型图
横厅最常见的布局就是客厅+餐厅,两个区域放在同一个采光面上一字排开,之间用沙发或矮墙等形式分割,分别位于过道的两侧,相互独立又彼此相连。
比如成都龙湖御湖境建面约143㎡户型和杭州大华·峰汇华城建面约110㎡户型,都是最经典的且实用的横厅设计。

成都龙湖御湖境建面约143㎡户型图

杭州大华·峰汇华城建面约110㎡户型图
客厅空间灵活的优势是,可以随着业主家庭人口的增加而不断变化。比如开放式空间可分可合,人口增加可以是一间书房,可以是卧室等。
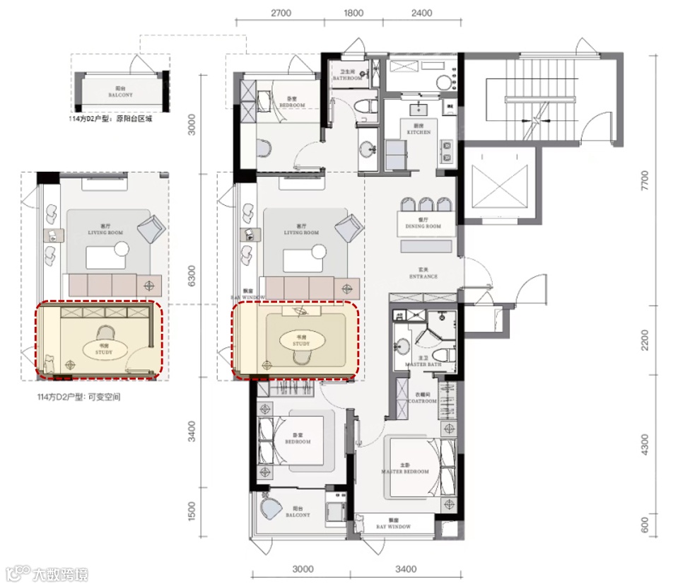
比如杭州蓝城·春风里建筑面积约114㎡户型,3+1房2厅2卫,约6.3m的横厅开拓出可变空间,两口之家、三口之家还是三代同堂,这里都是不同阶段的可变空间。

杭州蓝城·春风里建筑面积约114㎡户型图
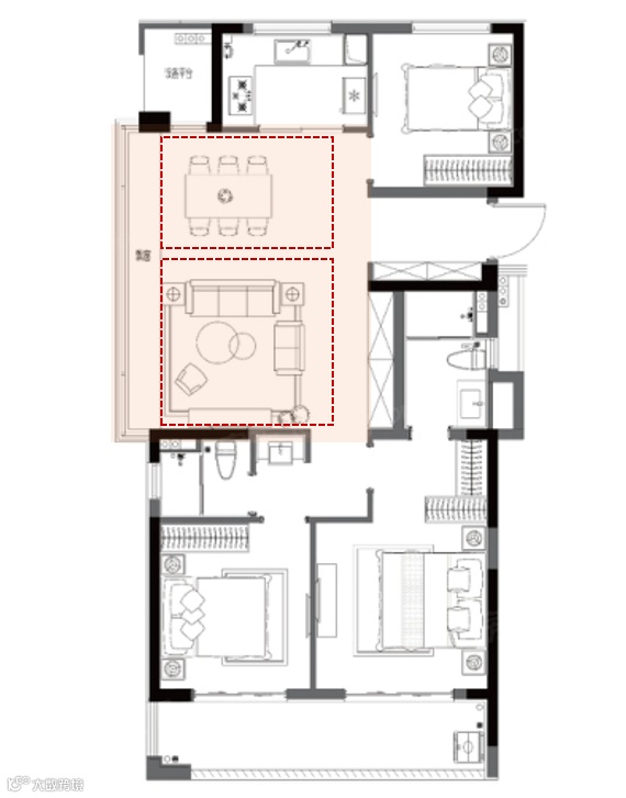
再如重庆东原·江山印月的设计,用沙发做隔断,分隔出两个区域,沙发后是开放式书房,双人办公桌设计,不管是夫妻办公还是陪伴孩子学习,都能满足。同时利用一面墙体做满墙书柜,满足收纳或装饰性物品摆放。

重庆东原·江山印月样板间实景图

重庆东原·江山印月样板间实景图
客厅空间灵活的另一个优势是可以随着业主的需求和喜好不断变化。比如开放式空间可分可合,可以是茶室,可以是娱乐室、影音室、亲子活动区等等。在一个大空间里面,要有各自独立的空间,可分可合,集待客、娱乐、休闲于一体,无缝对接N种生活方式。
比如成都锦江金茂府建筑面积约185㎡和255㎡户型,重点强调“生活场景的自由切换”。

成都锦江金茂府建筑面积约185㎡户型图

成都锦江金茂府建筑面积约255㎡户型图
这样的客厅,不同空间直接都能形成联动,社交特征十分突出,以完整的社交场景为业主提供不同的社交生活。无论是全家人跟着刘畊宏跳毽子操,还是女主人的普拉提……这里都可以成为欢乐的场地。
从中国古代的雅集盛会,到法国巴黎上层人物的沙龙聚会,“会客厅社交”作为一种具有精神象征的文化现象,至今仍常为君子所道。
比如新疆万科·隐庐建筑面积约240㎡户型,4房3厅3卫设计,边厅一体化开放式设计,打造出灵活而充满仪式感的开场多功能空间,充分满足朋友相聚、商务会谈、宴饮酒会等社交需求,更具社会与人文价值。独具隐庐气质的文化氛围渲染开来。

新疆万科·隐庐建筑面积约240㎡户型图

新疆万科·隐庐样板间实景图
边厅户型,由于在整体外墙减少了剪力墙,窗墙比得到了大幅提升,加上双面开窗,不仅采光效果无敌,还能形成270°观景效果。
比如北京龙湖建工九里熙宸建筑面积约120㎡户型,270°的环幕视角,全玻璃落地窗设计,创造无阻力的视野景观画面,奢华阔气的客厅,能实现起居休闲两功能,带来了宽阔的公共空间,在餐客厅一体化的同时还能有一角休闲。

北京龙湖建工九里熙宸建面约120㎡户型图
比如武汉保利江锦THEONE位于3.8公里长江核心段景观轴,顶天落地的玻璃幕墙,270度的千米无遮视野,奠定了THEONE绝无仅有江锦奢居气质。

武汉保利江锦THEONEC3户型平面图 建面约270㎡
对于大户型产品来说,大面宽客厅和全落地门窗系统,现在已经是标配了。客厅采用高全落地玻璃窗,不管是采光还是景观视野,可以说都做到极值了。

武汉保利江锦THEONE样板间实景图

武汉保利江锦THEONE样板间实景图
对公共空间做整合,以大面积落地窗为核心,自由布置家具,增设临窗阅读区、临窗艺术品等,并对家具高度做严格控制,实现景观更大化。
在减配成风的当下,荣安却依然坚持做“叠加”。比如荣安·江枫晓月采用了荣安超A级的装修标准,全屋采用霍尼韦尔地暖、日立中央空调、恩科新风系统的四季恒温系统,即便是湿冷的冬天,室内也能温暖如春。

荣安·江枫晓月样板间实景图
客厅和主卧都做了曲面镶金属边吊顶,不仅典雅大气,对工艺的要求也超过常规吊顶。客厅地面的欧亚米黄大理石搭配爵士白波导线,和曲面吊顶上下呼应,极具仪式感。定制电视墙采用了沉稳的灰色岩板+铁刀木木饰面+金属线条的组合,百搭又高级。

荣安·江枫晓月样板间实景图

荣安·江枫晓月样板间实景图
再比如融创江山云望建筑面积约170㎡户型,餐客厅近50㎡,餐客厅的保加利亚天然灰石材、弧形悬浮大吊顶、独具造型的岩板+木饰面电视墙面……这些“武装到牙齿”的审美细节,让江山云望拥有超越时光的卓越品味。

融创江山云望建筑面积约170㎡户型图

纵观近几年户型发展趋势,可见,大众的居住观念变了,从满足居住到追求舒适、更舒适、最舒适。各种类型客厅的出现,都被贴上“火爆”的标签,无疑是一次促使户型产品迭代、创新的有力推动。
1.本文为建筑设计技术分析,仅供欣赏学习。
2.本资料为要约邀请,不视为要约,所有政府、政策信息均来源于官方披露信息,具体以实物、政府主管部门批准文件及买卖双方签订的商品房买卖合同约定为准。如有变化恕不另行通知。
3.因编辑需要,文字和图片无必然联系,仅供读者参考;
推荐一个
专业的地产+建筑平台
每天都有新内容
扫描二维码关注

微信公众号“搜建筑”(ID:sjz9999)
合作、宣传、投稿
联系微信:soujianzhu006