艾哈迈达巴德民族和社会血统的当代反映 - 位于古吉拉特邦文化和经济中心的艾哈迈达巴德,蒙特卡洛公司办公室的设计包含了该城市的社会和民族血统。建筑物的引人注目的设计囊括了这家著名的基础设施公司的精髓,与艾哈迈达巴德市的传统敏感设计叙事无缝地交织在一起。当代的结构是在保留其固有的历史本质的情况下建造的。
A Contemporary Reflection of the Ethnic and Social Lineage of Ahmedabad - Located in Ahmedabad, the cultural and economic center of Gujarat, the corporate office for Monte Carlo has been designed to embrace the social and ethnic lineage of the city. The striking design of the building encapsulates the essence of the reputed infrastructure company, seamlessly intertwined with the traditionally sensitive design narrative of the city of Ahmedabad. The contemporary structure has been fabricated whilst preserving the intrinsic historic essence of its context.
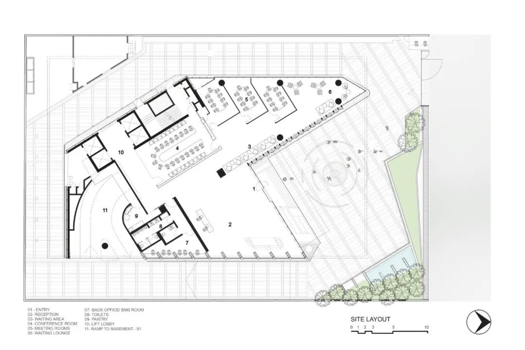
占地0.60英亩,38米X61米的地块被用作项目的场地。该地块被战略性地定位在与36米宽的道路相邻。通过优化现有的场地条件,以保持适当的道路前沿,并允许未来沿建筑前沿的道路拓宽,从而揭开了该形式的概念。由于场地位于东西轴线上,因此有必要采取适应气候的设计干预和敏感的分区。建筑的朝向已被优化,以尽量减少热增益对内部空间的渗透。
建筑物的角度配置经过了战术性的构思,以捕捉充满活力的全景式外部景观,同时限制了南面的眩光暴露。通过屏蔽建筑的北面和东面,并将主立面朝向东北方向,扩散和无眩光的日光被引导到内部空间。建筑的形式被认为是对适应该地区盛行的风向模式的回应,是一种动态设计元素。
Spread over a sumptuous area of 0.60 acres, the 38m X 61m parcel of land served as the site for the project. The site has been strategically located abutting a 36m wide road. The conception of the form was unveiled by optimizing existing site conditions to maintain appropriate road frontage and allow future road widening along the building frontage. The site situated along the East-West axis necessitated climate-responsive design interventions and sensitive zoning. The building orientation has been optimized to minimize the permeation of heat gain into the interior spaces. The angular configuration of the building has been tactically conceived to capture vibrant and panoramic exterior views whilst limiting the exposure to glare from the South facade. By screening the Northern and Eastern sides of the building and orienting the primary façade towards the Northeast, diffused and glare-free daylight has been maneuvered into the interior spaces. The form of the building has been perceived as a response to accommodate the prevailing wind pattern of the area as a dynamic design element.
艾哈迈达巴德城墙的各种遗产已经与几何形状的概念相结合。这个城市被设想为各种村庄的混合体,在464平方公里的范围内产生。这些村庄似乎天生就像被子里的拼布一样相互交织在一起。外墙的绗缝图案就是这种愿景的反映。这个非典型的外墙是通过三角形拼接而成的,是对该市著名的风筝节Uttarayan的诠释。艾哈迈达巴德曾经是一个领先的钻石制造中心,是全球著名的钻石切割中心。
最坚固的宝石的奇特切割形式的制造已被叠加在立面上,通过结构的每个面的复杂衔接,使自然光最大限度地进入建筑,从而使立面的每个表面都有可能改变光线的传播面。包裹建筑的玻璃外壳的精确切口是多面钻石形式的体现。建筑的坚固形式,展示了由斜方体分形组成的独特的玻璃外墙,闪耀着标志性的光辉,在现代的组合中揭示了城市的著名遗产的幻觉。
The diverse heritage of the walled city of Ahmedabad has been integrated with the geometrical conception of the form. The city has been envisaged as an amalgamation of various villages, spawning over an area of 464 sq. km. These villages seem innately interweaved into each other like patchwork in a quilt. The quilted pattern of the façade is a reflection of this vision. The atypical façade has been crafted through triangular tessellations, interpretive of the famous kite-flying festival in the city, Uttarayan. Ahmedabad, once a leading diamond manufacturing hub, served as a prominent diamond-cutting center globally. The fabrication of the peculiar cut-form of the strongest gemstone has been superimposed on the façade, maximizing natural light into the building by the intricate articulation of every facet of the structure such that every surface on the façade has the potential to change a light ray’s plane of travel. The precise incisions of the glass envelope wrapping the building are a manifestation of the multifaceted diamond form. The robust form of the building, exhibiting a unique glass façade composed of rhomboid fractals, gleaming in its iconic glory, reveals the illusion of the celebrated heritage of the city in a modern assemblage.
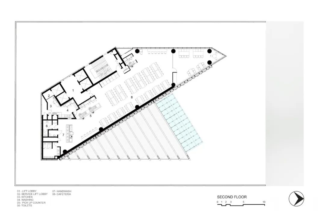
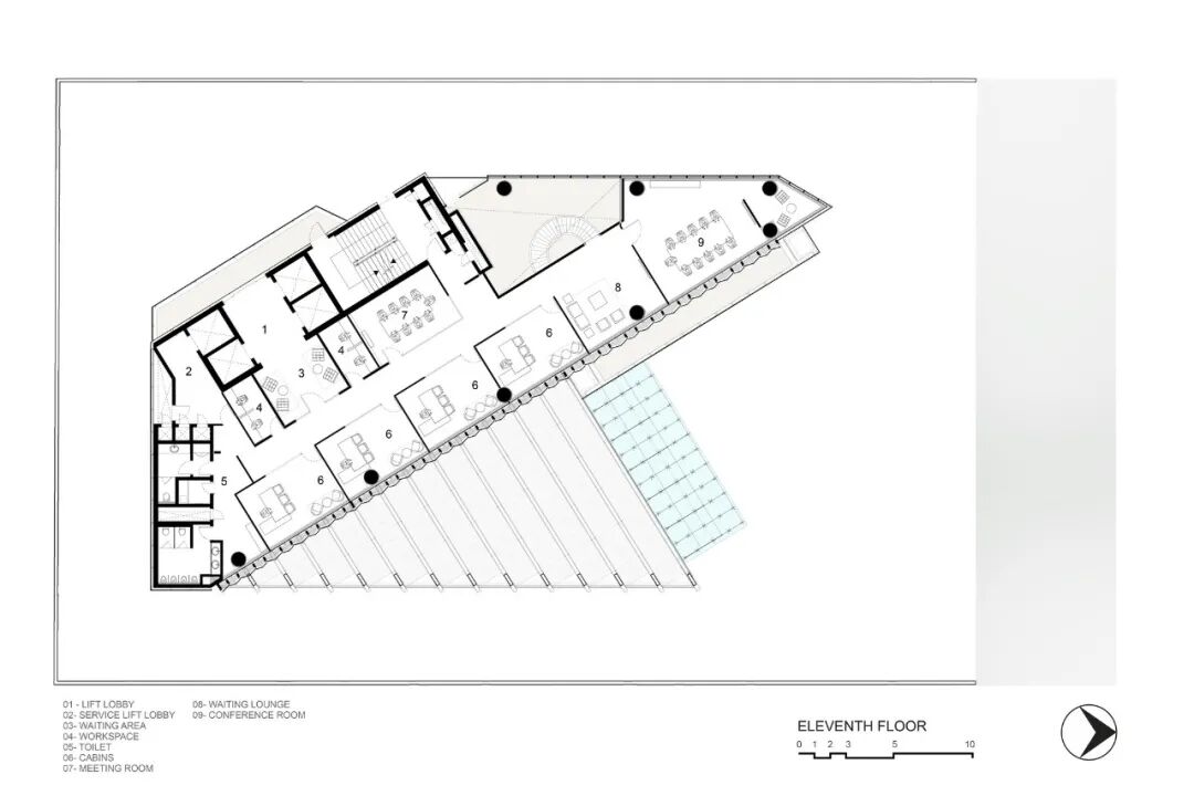
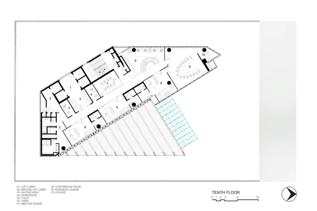
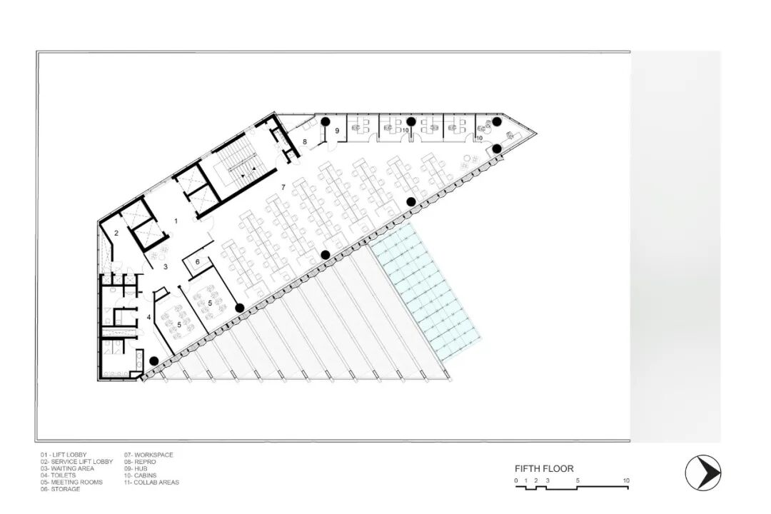
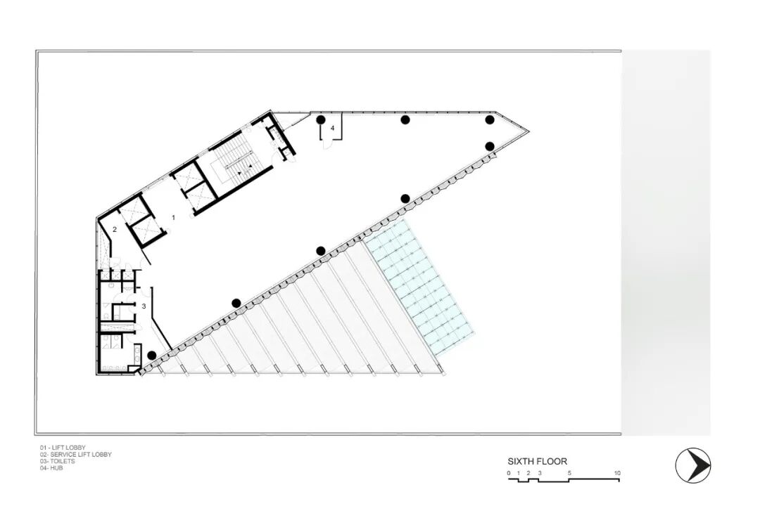
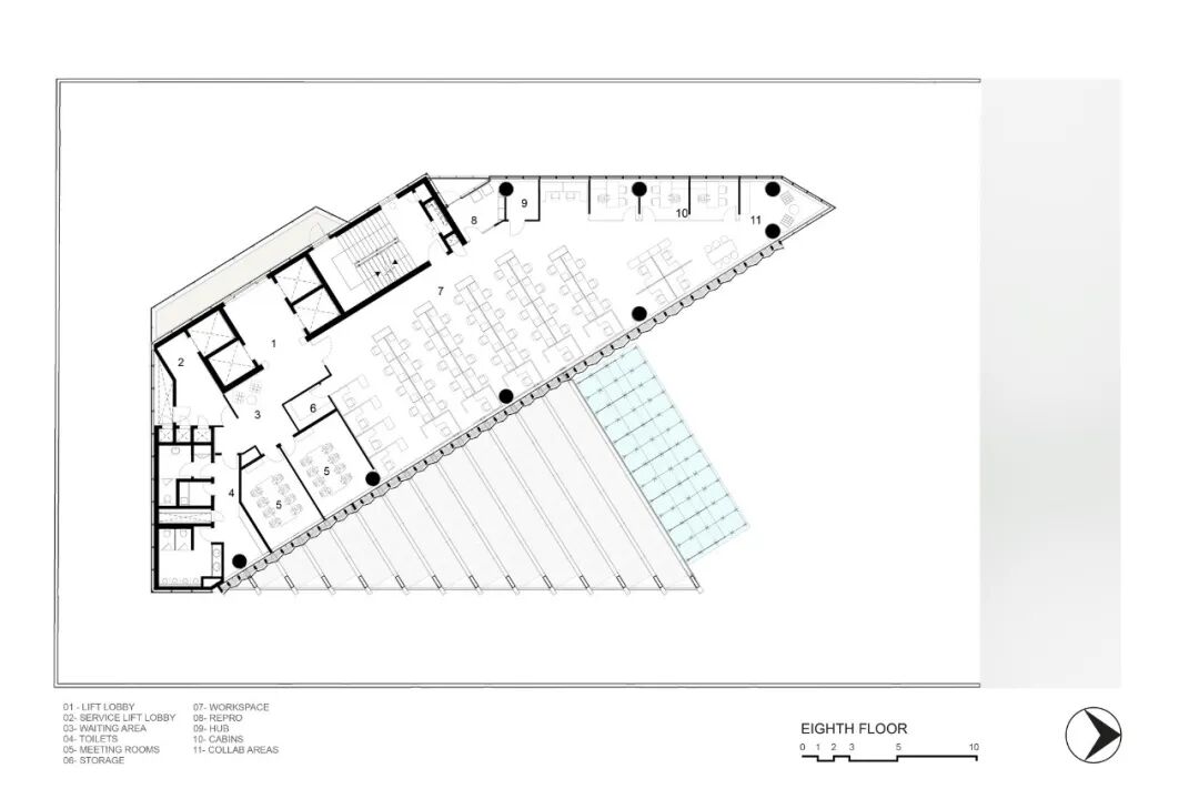
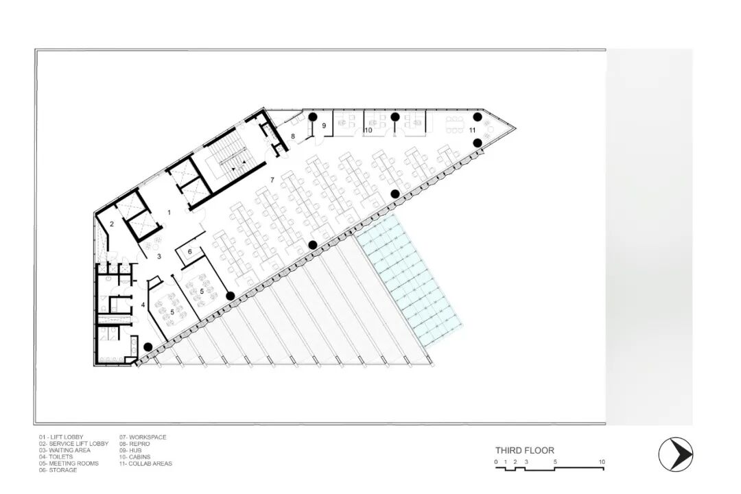
玻璃幕墙的三角结构使室内空间呈现出独特的光影效果。透明的围护结构具有明显的棱角缩进,从室内空间释放出独特的外部景观。该建筑的垂直分区已经制定,在三楼设有咖啡馆,在四楼至十二楼设有办公室和企业活动区,并在结构的顶部设有一个露台花园。我们为该项目设计了一个创新的材料调色板。
南部和西南部的死角墙体已经用固体和穿孔铝板进行了填充。这些铝板被设计成三角形的几何形状,在立面上创造出一种质感。室内采用了自然和朴实的纹理,在室内空间中使用石头和木材是很明显的。通过在室内空间中加入室内植物和绿墙,将生物亲和力作为用户的健康策略引入设计中。假天花板被设计为包含辐射挡板铝翅,携带冷冻水以刺激空间冷却。
The triangulations of the glass façade render the interior spaces with a unique play of light and shadow. The transparent envelope with distinct angular indentations unravels exclusive exterior views from indoor spaces. The vertical zoning of the building has been worked out to incorporate a café on the third floor, office and corporate activity from the fourth to the twelfth floor along with a terrace garden crowning the structure. An innovative material palette has been conceived for the project. The dead core walls on the South and Southwest have been cladded with solid and perforated aluminum panels. These panels have been designed to project from the facade in a triangulated geometry, creating a sense of texture in the elevation. The interiors have been rendered with natural and earthy textures, evident with the use of stone and wood in the indoor spaces. Biophilia has been induced in the design as a user wellness strategy through the incorporation of indoor plants and green walls in interior spaces. The false ceiling has been designed to contain radiant baffle aluminum fins carrying chilled water to stimulate space cooling.
该地区炎热干燥的气候所带来的设计挑战,被建筑师视为寻求可持续发展和提升建筑效率的机会,并采用了包容性的设计方法。外立面上有效设计的外部遮阳装置防止了强烈的、苛刻的热量进入室内。立面上的百叶窗的战略配置阻碍了直接的太阳辐射通过玻璃渗透到室内空间,从而减少了室内的热量进入,最终减少了主动能源系统的负荷。
隐藏在立面中的遮阳元件的透明度控制是多方面的,提升了美学,确保了热舒适度,并增加了日光照明的要求。坚实的结构核心被放置在朝向南方和西南方的位置,以限制办公室地板的过度热增益。一个玻璃天窗被设计成从双层高的接待大厅中伸出,为空间提供充足的自然光,同时巧妙地被塔楼本身所遮挡。一个有效的玻璃系统已经被设计出来,以最大限度地增加室内空间的日光,同时调节热增益和眩光控制。
The design challenge posed by the hot and dry climate of the area has been viewed as an opportunity to seek sustainability and elevate building efficiency in an inclusive design approach by the architects. Efficiently designed external shading devices on the facade prevent intense and harsh heat from entering the interiors. The strategic configuration of the louvers on the elevation obstructs direct solar radiation from permeating into interior spaces through the glazing, thereby reducing heat ingress indoors and ultimately reducing the load on active energy systems. The control of translucency of the shading elements concealed in the façade is manifold, elevating aesthetics, ensuring thermal comfort, and augmenting day-lighting requirements. The solid structural cores have been placed facing South and Southwest to restrain the office floor plate from excessive heat gain. A glass skylight has been engineered to project out of the double-height reception lobby, supplying ample natural light into the space while tactfully being shaded by the tower itself. An effective glazing system has been devised to maximize daylight in indoor spaces while regulating heat gain and glare control.
西立面和接待区的天窗玻璃采用了电致变色玻璃,也被称为智能玻璃或电子开关玻璃,可自动改变不透明度和色调,以控制可见光的透射和太阳热能的吸收。东北立面的三角立体板采用了高性能玻璃技术,有助于提高能源效率。几乎80%的办公空间都采用了辐射挡板冷却技术,与传统的机械冷却系统相比,能源需求减少了近35%。
在该项目中,可持续发展被评估为一种全面的方法,包括各个方面,如系统的场地研究、有条不紊的分区、优化的形式、建筑方向、增强的玻璃技术、死体积策略和精确的设计细节。公司的精神和愿景声明--"通过过程、人员和创新,成为受所有利益相关者钦佩的领先的基础设施组织",已经通过精心的设计干预,提升了这个标志性结构的内在可持续性概念,同时作为一个节能和成本效益高的建筑。
Electro-chromic glass, also known as smart glass or electronically switchable glass that automatically changes opacity and tint to control the visible light transmittance and solar heat gain has been employed on the West elevation and the skylight glazing in the reception area. The triangulated three-dimensional panels on the North-East facade have been fabricated with high-performance glazing technology that aids in energy efficiency. The technique of radiant baffle cooling has been adopted for almost 80 percent of the office space, facilitating a reduction in energy demand by almost 35 percent if compared to a conventional mechanical cooling system. Sustainability has been evaluated as a comprehensive approach in the project, encompassing various aspects such as systematic site study, methodical zoning, optimized form, building orientation, enhanced glazing technology, dead mass strategy, and precise design details. The company’s ethos and vision statement - "To be the leading infrastructure organization admired by all stakeholders with sustainable growth through the process, people and innovation” has been upheld by careful design interventions that elevate the notion of inbuilt sustainability of the iconic structure, dually performing as an energy-efficient and cost-effective edifice.
本资料声明:
1.本文为建筑设计技术分析,仅供欣赏学习。
2.本资料为要约邀请,不视为要约,所有政府、政策信息均来源于官方披露信息,具体以实物、政府主管部门批准文件及买卖双方签订的商品房买卖合同约定为准。如有变化恕不另行通知。
3.因编辑需要,文字和图片无必然联系,仅供读者参考;
推荐一个
专业的地产+建筑平台
每天都有新内容
扫描二维码关注

微信公众号“搜建筑”(ID:sjz9999)
合作、宣传、投稿
联系微信:soujianzhu006