▲ 更多精品,关注“搜建筑”
银色鸥翼:义乌壹号院
line+
Light-Gullwing
银色鸥翼
由line+联合创始人、主持建筑师孟凡浩率领团队设计的义乌壹号院,历时三年于近期收官交付,面对融创TOP级产品进驻义乌的首秀,设计萃取义商图腾“羽毛”,以“银色鸥翼”为形象语言,并赋能社区底商为市心商业街区,呈现对义乌城市更新界面的独特诠释。
义乌壹号院延续TOP级产品在交通、商圈、教育与景观的“稀缺性”,择址义乌城市有机更新的主力场,义乌商贸之源红楼宾馆原址之上,具备城市能量崛起的历史独特性。项目总建筑面积约11.9万㎡,由12栋高层住宅与商业街区组成。
△ 区位图
面对义乌商脉基址、城市能级的迭代之地,基于团队高端豪宅设计的经验与业绩,line+受邀携手共同打造融创TOP系壹号院作品。line+将城市精神和地段文脉贯通,以对市心稀缺价值与传统商贸精神的研判,实现形象、价值、社区与构造四位一体的能级塑造,参与到义乌向世界都会的快速迭变之中。项目首开劲销11亿,连年蝉联义乌房市销冠王,成为义乌房市热点话题。

设计团队近年来积极探索城市人居环境改善提升的可能性,参与到融创的产品研发之中,相继打造河滨之城、宁波府、涌璘府、宜和园高层、杭源里、莫干溪谷小镇等一系列产品,从“城系”“府系”到“源系”,期冀以设计创新力推动居住产品迭代。

#01
形象能级:商贸冲力
如何形象化?
——划过天际的,银色鸥翼
义乌的城市基因里有着变革和发展的无限冲力,line+思考如何通过可见的视觉语言转译表达,让世人感受其精神内核。
设计以义商图腾“羽毛”为源,联动顶级超跑的经典形象,定义“银色鸥翼”的立面语言。一体化的立面圆角折板和顶部飘板,流线边缘精致雕刻,呈现力与美的结合,以修长挺拔的建筑形态落成“划过天际的银色鸥翼”。
#02
价值能级:底商价值
如何最大化?
——炙手可热的,主题商业街区
设计对底商裙房进行功能分析和拆解。首先,将地块沿街铺面充分用足。其次,细分商铺价值,并构建价值层级:西、北侧支路因毗邻住宅社区与教育院校,人群流量与可达性强,商业价值优于公共绿化隔离带与主干道一侧,因此,沿工人北路和工人西路的底层商业做到二层。
而后,根据“金角银边草肚皮”的商业空间价值逻辑,转角铺放大面积,增加品牌展示面,普通沿街商铺合理切小面积,增加商铺的数量。最终,商业总面积做到了约10600平方米,实现货值最大化。
△ 商铺生成过程
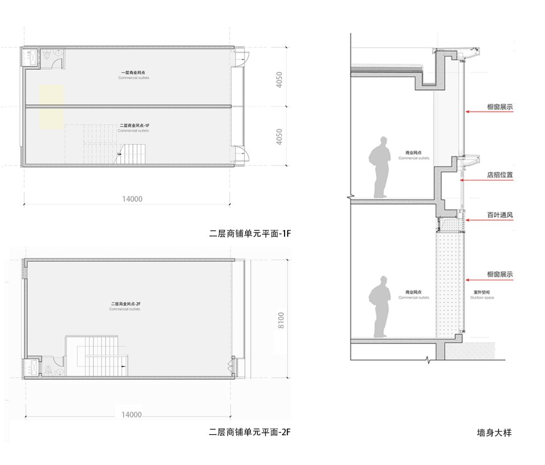
整体商铺类型多样,双层商铺设计有单层铺与一拖二的组合,小拖大的设计提升整体商业价值。单层铺和一拖二通过不同的立面手法组合形成丰富的沿街立面形象。

单层商铺采用4050mm面宽模数,开间进深比控制在1:2.7左右,既保证了合理的商铺开间进深比,同时和地下停车较为经济的8100mm的模数契合。

△ 单层商铺平面及墙身大样
△ 二层商铺平面及墙身大样
义乌壹号院的商铺因此超越住宅底商的概念,释放住宅地块的商业潜力,业主以此为基础引入领潮业态,打造综合商业街区,和周边注重高资消费业态的综合体形成互补,覆盖社区及新老商圈交汇的中高端消费者。
2021年开年首月,义乌壹号院的整体商铺销售额突破1亿。由此,优质社区底商转化为炙手可热的市心商铺,也是为义乌壹号院“年入百万的群体”,营造“做年入千万生意”的潜力空间。
#03
社区能级:生活本源,如何回归?
——立体营建的,归心社区
归心,是融创独有的高端生活价值体系。人们期待的归心社区,不仅提供高品质的住宅及配套,更将通过构建可持续的社区生态,营造“有家、有生活、有知己”的美好生活。
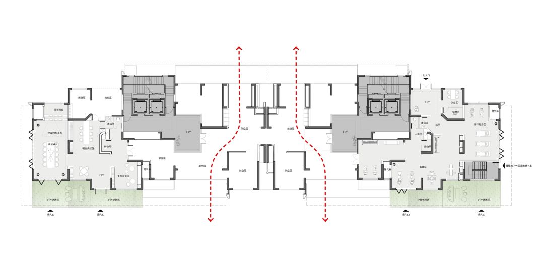
设计力图打造具有人文主义关怀的优质社区,住宅底层全部架空,自然形成园区内的半室外活动空间,同时将中心花园的景观延伸至架空层,保证大堂、架空层门厅、多功能活动空间与中心景观的延续融合。

△ 首层平面
当人们穿过商业街,步入酒店式大堂,以度假的心情经过室外泳池,归家后换上套装走进归心空间“足迹SPACE”,周末来临时,与家人在“书享ZONE”阅读,line+期待以空间的营建与美好生活方式交手的“归心社区”。
#04
构造能级:轻盈灵动,如何实现?
——公建品质的,现代型材构造


而在阳台节点构造上,阳台外墙柱内凸以优化结构截面,结合室内窗帘盒的设置,保证阳台的连续性。增设门套,避免阳台涂料面的阳角转角。对阳台挑梁高度进行控制,保证阳台吊顶完成面和阳台门框等高。人性化的室内防护栏板设计,将室外金属型材窗套延伸到室内,与室内防护栏杆形成一个整体,受力构件和扶手都与窗户划分保持一致,同时将栏板上下都留有空隙,为住户清洁玻璃时带来方便。
因造价限制原因,部分实墙面需要用金属漆代替干挂铝板,而住宅保温形式采取内保温,仅20mm厚的金属漆与窗户玻璃间的交接处理不好,将对形象产生一定影响。对此,设计也进行了细节考量,采用了全新轮廓的型材收口,使得金属漆断面和玻璃窗副框自然地交接在一起,增强立面品质感和精致感。
#05
为未来潜力,不止于
物理空间
“银色鸥翼”将义乌城市变革和发展冲力形象化;底商面积的最大化挖掘与价值层级的细化梳理,实现优质社区底商向炙手可热的主题商业街区的转化;以立体营建的归心社区承载高端生活价值体系,实现对生活本源的回归;以公建品质的现代型材构造把控立面细节,落成轻盈灵动的形态意象。
本资料声明:
1.本文为建筑设计技术分析,仅供欣赏学习。
2.本资料为要约邀请,不视为要约,所有政府、政策信息均来源于官方披露信息,具体以实物、政府主管部门批准文件及买卖双方签订的商品房买卖合同约定为准。如有变化恕不另行通知。
3.因编辑需要,文字和图片无必然联系,仅供读者参考;
推荐一个
专业的地产+建筑平台
每天都有新内容
扫描二维码关注

微信公众号“搜建筑”(ID:sjz9999)
合作、宣传、投稿
联系微信:soujianzhu006
阅读原文:“line+”更多精品


