▲ 更多精品,点击关注“经典人居”
目前市场上改善四房户型设计上的亮点有哪些?如何才能打造出更受市场喜爱的住宅产品?
下面结合亮点项目,详细来说一说。
• 空间利用率进一步提高,不浪费面积;
• 动线优化流畅,互不干扰;
• 户型面宽更大,更通透;
• 各个功能空间尺度合理,居住体验有所提升;
• 兼顾私密需求;
......
01
改善型四房
四/五开间朝南成为标配
对于改善产品,通过增加产品面宽、增加南向开间可以有效扩大房子的采光面,从而增强户型的舒适性。
很多户型的面宽都做到了10m以上,四开间/五开间朝南未来可能会成为基本要求。
比如东原·印未央约168 m²户型,整体18米南向面宽,同样做到了三卧室朝南。独立电梯入户,内外双玄关,还有约7m面宽的巨大方厅。

东原·印未央约168 m²户型
比如碧桂园太仓天珵143㎡户型,就采用了四开间朝南布局,3卧室朝南。

碧桂园太仓天珵143㎡户型图

碧桂园太仓天珵样板间实景图
保利玲玥公馆109㎡的户型竟然不可思议的做到四室两厅两卫和四开间朝南,且三个卧室的房间都带有飘窗,超级大面宽,横扫市面上同类型户型。

保利玲玥公馆114㎡户型
仁恒公园世纪210平方米的4室2厅3卫在做了南向五面宽的同时,还能做到双套房、中西双厨。整体开间达到18.4米,进深扣除阳台只有10.5米,横厅开间达到7.8米。

仁恒公园世纪约210平户型
重庆·融创壹号院139㎡户型图
02
创新玄关设计
有仪式感,也有功能性
改善户型中,玄关的设计重要度还相对比较高。玄关要实现的功能除了优化入户动线、保护隐私以外,增加收纳空间也是很重要的一点。
比如在锦江天玺建面约200平米户型中,一大亮点则是圆形玄关,四间卧室围绕玄关均匀排布,保证了每个卧室的私密性。
锦江天玺 | 高层约202㎡户型 · 女王玄关
这种圆形玄关是从北美著名的纽约上东区流传出来的,也被称为“女王玄关”。锦江天玺在建面约200平米空间中引用这种圆形玄关,可以说是引领了成都豪宅户型之先。
对于不同年龄、不同生活作息的家人,通过玄关的分隔,各自的生活动线互不相扰。
锦江天玺 | 女王玄关实景图
同样,贵阳·铁建城在其约240平米户型也采用了女王玄关,将四个卧室分居于两侧,注重私密性的同时还具有更强大的收纳功能。

贵阳·铁建城女王玄关实景图
绿城的玄关兼具仪式感和功能性,正面入户玄关柜是仪式玄关,兼具储物功能。入口两侧的玄关柜作为功能性玄关,可以存贮鞋帽,高尔夫杆、行李箱等等,双玄关设计使用功能大大增强。
重庆绿城·晓风印月套内143㎡户型图
重庆万科招商理想城不仅是双玄关,而且在右侧做了独立的储物间设计。
重庆万科招商理想城129㎡户型图

重庆万科招商理想城洋房样板间

重庆万科城市花园136㎡ 户型图

约256㎡户型图

入户花园一角实景图
入户花园的设计引入,还实现了玄关、厨房两大入口的双归家动线:家政人员通过入户花园可直接进入厨房,与家人归家动线分开。

256户型双动线示意
双玄关收纳体系,玄关收纳以及入户步入式衣帽间设计,紧邻电梯厅和北侧走廊,特殊时期取放防疫物资、消杀,十分便捷。平时出差、下班,风尘仆仆地回到家,也可以在外面换洗完再进入客厅,晾挂衣服,完全做到了洁污分区。

256户型衣帽间实景图
03
边/横厅设计
打破传统客厅布局
① 生活场景多元化
改善客户的家庭结构一般为二孩家庭或者三代同堂家庭,但家庭在不同阶段对于产品的功能需求有很大不同,所以在户型空间上,很多项目都会强调空间的可变性和灵活性。
建面约118㎡户型平面图
祥源与世茂强强联合推出全新力作——「云湖漫城」118㎡户型实现了全大横厅的设计,不仅实现大于市面多数同等面积户型的舒适感与开阔感,也让空间动线更加便利、互动交流更加紧密,实现居住改善的同时,更洞悉了当代家庭缺乏有效情感交流的生活痛点,实现家庭感情的增进。
云湖漫城建面约118㎡横厅实景图
杭州万科玖望135㎡户型
来看看世茂北京天誉,215㎡的边厅户型:
世茂北京天誉215㎡户型示意图
玄关、餐厅和客厅三个功能区的设计,采用了独特和创新的方式:将玄关客厅和餐厅连接起来,更关键的是,还把客厅的露台连接起来,从而形成了一个接近100平方米的LDKB空间,这个户型的空间感一下倍增,功能使用也更为丰富。
这个近100平方米LDKB空间的设计,是有主导思路了的,这个思路就是家庭关系的互动和社交,给与了家庭社交足够的场景和空间,使得房子是为人服务的。

世茂北京天誉室内示意图
② 动静分区明显
边厅户型动静分区的特点尤为明显,把活动和社交的“厅”区域放置在户型的一侧,一动一静,打破了客厅传统布局,互不干扰,这也正好适合现阶段住宅产品的创新需求。

济南奥体金茂府232㎡户型示意图
比如济南奥体金茂府232㎡户型,约60平米的边厅置于整个户型的右侧,与公卫和餐厨形成整个动区,一方面满足了“生活进阶”的面子,一方面满足了“空间尺度”的里子,是一个迎合多重需求的创新。
③ 景观最大化
重庆首创做的户型全部无一遮挡,享受很好的视野,这也是设计的初衷,因为项目临江而建,江景一直以来都是大家很向往的,户型景观面达到270°观景,空间感得到非常大的延伸,不管是在哪个房间,都有很好的视觉享受。
比如他的洋房户型,7.6米大横厅连接约14.8m的观景跑道阳台,活脱脱一个空中花园,不仅宽度大,进深也很不错。

建筑面积约142㎡洋房户型平面 示意图
阳台的进深对观景的体验尤为重要,天阅嘉陵突破传统的进深局限,将进深设计为约1.9m,最大竟然达到了2.4m,而传统的阳台进深大多数约为1.5m,仅仅0.4米的差距却能给生活带来更多的美好与可能。

洋房样板间 实景图
苏州融创·运河铂湾澜庭200平米户型的边厅连接东南两个朝向长约8.4米、宽约5.7米的L型阳台,270°IMAX宽幕视界,整个空间通透明亮。

融创·运河铂湾澜庭阳台示意图

融创·运河铂湾澜庭效果图
04
多套房设计
考虑适老适幼性
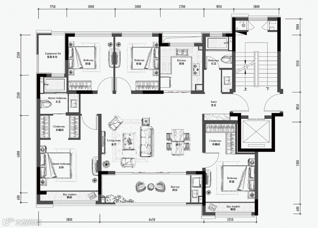
对于四房家庭而言,三代同堂是常态,大人和老人、小孩都应该拥有自己相对独立的空间区域,照顾每个人的居住感受。
对于和父母同住的客户而言,一方面希望保持一定隐私性,另一方面也要照顾老人的居住需求。因此,双套房或者多套房设计很有必要。
比如郑州永威上和琚221.63㎡户型,双套房设计,主卧套相当奢华,另外一个套房可以作为老人套房。

郑州永威上和琚221.63㎡户型
同一项目的约259㎡户型,做到了三套房设计。

郑州永威上和琚259.43㎡户型


样板间实景图
再比如重庆绿城蘭园,三套房设计,主卧套房做了男女衣帽间。

重庆绿城蘭园建筑面积约272㎡户型

重庆绿城蘭园样板间实景图
上海中粮瑞虹·海景壹号250㎡户型,四个卧室均朝南设计,4+1开间,三个套房这舒适度不言而喻。

上海中粮瑞虹·海景壹号约250㎡户型
250样板房实景图
结语:
当下,家庭成员变多,居住空间需求也有所改变,可以说,未来大三房和四房户型会是楼市绝对的主流产品。
本资料声明:
1.本文为建筑设计技术分析,仅供欣赏学习。
2.本资料为要约邀请,不视为要约,所有政府、政策信息均来源于官方披露信息,具体以实物、政府主管部门批准文件及买卖双方签订的商品房买卖合同约定为准。如有变化恕不另行通知。
3.因编辑需要,文字和图片无必然联系,仅供读者参考;
推荐一个
专业的地产+建筑平台
每天都有新内容
扫描二维码关注

微信公众号“搜建筑”(ID:sjz9999)
合作、宣传、投稿
联系微信:soujianzhu006









