
蛇口国际学校(SIS)网谷校区由万联大厦办公楼改造而成,与周边山峦、透明建筑形成一道醒目的城市景观。校区紧邻大南山,建筑面积约1.3万㎡,为约400名中学年龄段的学生提供了全新且空阔的校舍空间环境。
SIS是深圳蛇口招商局引进的解决外籍人士子女读书问题的学校,并满足了多元国际教育的需求。SIS采用IB体系,在全球位居前列。这所国内南方最早入驻的外籍人士国际校园,至今已有35年之久。
设计DNA
Greg Smith先生(SIS总校长)介绍说,“SIS的成功在于师生相互信任的关系”。ATD在接手这个项目前期,考察了SIS老校区,寻找建立这种关系的DNA。
ATD设计总监范铁介绍,"SIS老校区曲折的走廊和数量较多的Bubble小讨论室,给师生提供了相对小范围的交流机会,这种空间类型结合SIS的教学理念,是能促进建立师生相互信任的关系的DNA。"
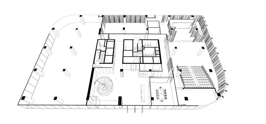
新校区的大楼原是一栋产业办公楼,典型的中央核心筒平面。教室需采光沿周边布置,但如此走廊光线则会变得昏暗而不那么吸引人。基于区域光感限制,ATD的方案是沿中央核心筒布置Bubble小讨论室,这样走廊不再是笔直的,沿核心筒一侧也不再是实墙,变为都是生动的房间。所有教室用落地大玻璃围绕起来,使得走廊视野明亮,附近均设有休息区,也丰富了空间体验。
Bubble像一个个独立的小岛屿又被空间流线串联,环绕每层楼的中庭空间,填满原本中空的架构。师生小组在此进行头脑风暴,闲适又可即时地沟通,拉近距离,也更好地收集瞬间的想法与碎片化的灵感。
在新校区内行走感受到的是不同比例不同尺度,每个地方都富有变化,增添探索的欲望。随处可见的弧度线条,如水流动的自然行迹,意欲传达不受既定边界领域的探索。
教室之间的隔墙被滑动屏风替代,能够随着教学活动需求拉开、收起,再配合带有轮子、随时移动的课桌椅,一个多元化、多中心的学习空间就此成型。实验室的感应灯、天花板的排插则垂直而下设置,都是为了灵活不受限的操作而设置。
红与黑的色彩基调带有强烈的辨识度,表现个性主张,创新各异的理念
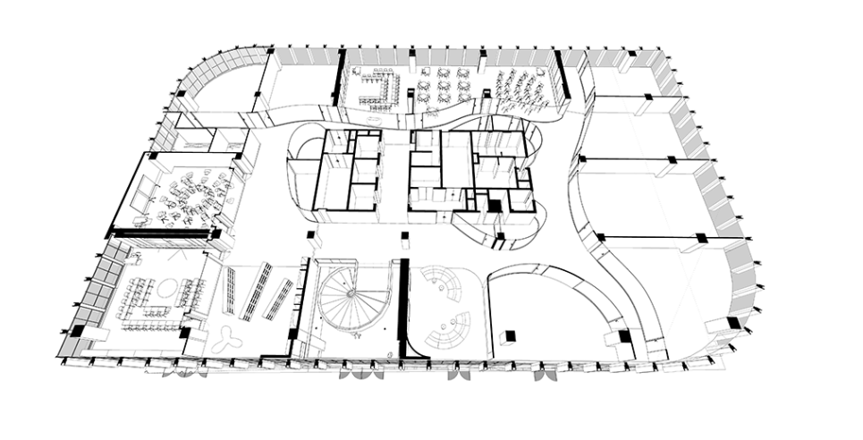
平面布局
工业化的框架 融入人本主义温情
新校区室内教学功能空间丰富且开阔,共七层的大楼,楼层各有特色,是当代文化多元及包容的映射。首层功能主要为接待厅,大剧场和黑匣子;二层主要为教室;三层主要为图书馆和音乐学部;四层主要为生物化实验室和教师办公区;五楼主要为科创中心和教师办公;六楼主要为培训中心和行政办公;七楼主要为行政办公,咖啡厅和健身房。
首层门厅接待区背景墙是一高4米渐变的红色玻璃,轻盈的层次,留以呼吸感,如水慢慢融入的状态,象征国际教育中东西文化地交融。
对面是联系二楼的螺旋楼梯,需定制现场拼装,踏步用了整块厚实的橡木。螺旋体上宽下窄不同于惯常的结构,视觉如风暴漩涡,由造船厂特殊定制。ATD希翼用更具挑战性的结构,激发学生的创作欲望,启发有深度的思考与想象力。
大剧场内置入可伸缩的座椅,更能提升空间的使用效率。这种多功能灵活性还体现在剧场跟走廊之间的可折叠隔断上。
剧场的控制室跟观众厅之间是没有传统的视窗玻璃的,更方便控制室与演出的互动,这个控制室也将由学生来操作,锻炼其控场能力。
每三个教室可以通过折叠隔断分隔或融合,以满足不同类型教学对空间的需求。教室的柜子除了储藏功能,还有可书写的滑动白板。学生的课桌表面亦可书写,带有轮子方便自由组合以满足分组或展示的布局要求。教室与走廊通过曲线落地大玻璃联系,每个教室的面积略有不同,同时也给学生更丰富的空间体验。
为了适应曲线自由的走廊,又适当保留一些工业风。走廊天花上的白色扩张网天花,标准的模块按照斜向铺排,在曲线的隔断位置形成了三角形的空位,透明走廊营造无边界通透感,强调了无束缚多变化的自由概念,设计师希望师生在这里感觉不那么拘谨。
三角形的边界也让人联想到壁虎的鳞片,而这正好是SIS的图腾。SIS最早到深圳蛇口这里时还是一片早期的开发区,到处是壁虎,Go Geckos的标语也体现着一种探索精神。
三层与四层之间有一处特别的设计,既作为连结上下层的阶梯,又构成一个适合路演的大台阶。坐在大台阶往窗外看,是非常暇意的体验。对面正好是苹果公司在深圳的办公楼,有一次陪同朋友参观,他说,“这个新校区给人的体验真好,不禁令我思考企业办公环境设计,如何来适应这种优质学校毕业的学生”。在这样的环境熏陶下尊重每个学生成为独立的个体思考,有水平的年轻有知识的人。
另一侧的图书馆占地400㎡,外沿是弧形玻璃墙的架构,内部创造性地搭配了镜面立柱,黑书架形态各异,沙发雕塑般的流线,适度跳脱的色彩,整个空间变得活泼但仍有秩序,充满艺术气息。
这一融合协作工作区、阅读空间、观赏区域和学习空间的场所,陈列着图书传统印刷资源,主流媒体服务、数据库提供的媒体访问也被容纳其中,勾勒出复古又充满未来感的画面。
五层的Maker Space将走廊沿外窗布置,让走廊拥有高空的景观,而Maker Space的活动也能更好地被看到而融入校园社区。 且铺以红色的橡胶地毯,由视觉移为触觉的通感手法下,科技也是具有温度的。走廊的玻璃墙引入充足的自然采光,尤其日落时刻,感受着存在城市的自然风景,更有种被关注的治愈,且旁边设有展厅,享受沉浸式舒缓。
而对面的厨艺教室,按岛式厨房的方式布局,更为舒适也方便交流。
用空间的流动曲线,牵引多学科交织,糅合东西方的文化特质。中国历史沉淀文脉的内核,剪纸、书法、窗花木雕等等,被以当代的方式另作诠释。
将老师个人办公位设在课室的设计,一改以往常规教学空间的单调,将学生放在前往各处求学的位置。老师可以往每个房间装入内容,日常爱好,擅长的手艺,具有自己的特质,譬如拼贴画上风趣的提示语,很有意思,也让氛围轻松又舒适。
这些生活场景唤起了艺术的感召力,实践艺术与生活并非剥离的,同时为工作空间增添了一种家的归属感。
六层设置有各种大小的会议室,作为面对社会和家长开放的企业学习中心。另外一边是职员休息区,那里设有一个红黑色结合的半圆型小剧场,体现了随处可交流的理念。同时,红与黑交落的沙发、坐椅饰以漆皮,是非常具有未来感的呈现。本层还设有一间高端的录音棚,另外一间录音棚设在三楼音乐学部。
位于顶层的咖啡区是一个大空间,设计师作出些变化,结合空调和新风的管道,设计了V型的梁,下方内嵌了纤细的条形射灯,创造一种微妙但却有节奏感的天花板构造,且有益于声学处理。座椅都是这折叠的,咖啡厅可以被迅速地改装为展览或活动空间。
蛇口国际学校网谷学校空间灵动,开放通透,为学生提供了各种特色鲜明的一流设施。这个以学生为中心的环境,让学生更具有独立意识,在多元与灵活的空间中得以发挥更好的源自内在驱动的能力,为粤港澳大湾区国际教育树立了新标杆。
1/2/3/5 空间模型图
项目名称 SIS Net Valley 蛇口国际学校网谷校区
建筑面积 12800平方米
竣工时间 2021
设计单位 ATDESIGNOFFICE
施工单位 腾基建设
主要材料供应商
橡胶地板 Nora
天花 Armstrong
玻璃隔断 赫莱斯盾
灯具 IG Lighting
ATDESIGNOFFICE LTD 英国安托士建筑设计顾问有限公司是英国皇家建筑师学会(RIBA)会员企业,成立于伦敦,项目分布于英国、中国及亚太地区。ATDESIGNOFFICE LTD(英国安托士建筑设计顾问有限公司)的设计项目范围包括规划与城市设计,建筑设计,景观设计,以及大型室内设计。公司的高级合伙人皆为英国皇家注册建筑师,具有十年以上在国际著名建筑设计事务所主持重要大型设计项目的优秀工作经验,并熟悉国际及亚洲市场和项目情况。
本资料声明:
1.本文为建筑设计技术分析,仅供欣赏学习。
2.本资料为要约邀请,不视为要约,所有政府、政策信息均来源于官方披露信息,具体以实物、政府主管部门批准文件及买卖双方签订的商品房买卖合同约定为准。如有变化恕不另行通知。
3.因编辑需要,文字和图片无必然联系,仅供读者参考;
推荐一个
专业的地产+建筑平台
每天都有新内容
扫描二维码关注

微信公众号“搜建筑”(ID:sjz9999)
合作、宣传、投稿
联系微信:soujianzhu006
阅读原文:“ATDESIGNOFFICE ”更多精品


