中山市古镇镇,素有“中国灯饰之都”的称号,以引领世界照明业潮流的精神,屹立于产城融合的高地。中山保利和光・尘樾即落址于这座拥有千亿灯饰产业的世界灯都,基地紧邻镇政府,西侧与规划中的大型综合商业体、古镇新地标“灯王广场”一街之隔, 西北侧紧邻“占地 1134 亩”的灯都生态湿地公园,场域景观资源绝佳,设计场地价值突出。
作为领有厚重人文渗透、坐拥千亩生态绿化、毗邻产业新地标的居住项目的展示中心,如何与场域充分互动、对话,并诠释环境之美将是设计思考的初衷。
▲项目实景©是然建筑摄影
建筑是空间的容器,也是环境的载体,展示中心作为项目的展示窗口,设计师要在充分考虑整盘规划的基础上,兼顾建筑与环境的对话关系,转译场地优质的景观资源,使其既是看景的窗口,也是被看的焦点。
▲设计概念
设计通过对场地进行梳理,在不影响居住建筑落位的前提下,采用“穿插法”落位建筑,同时塑造仪式感空间;利用红线退界,延伸建筑的展示面,构筑建筑的“悬浮”与“看景”,在兼顾三面景观的同时,增强建筑的独立感;“拉长”联动流线,融合场地新生。
▲规划设计生成分析
▲鸟瞰实景©是然建筑摄影
在展示区的营造上,设计在有限的尺度内创造经济的美学化空间,不仅巧妙地延伸自然,更完美把控多层次的序列组合与功能叠加。
▲总平面图
总体规划从隐蔽“停车场”——开放“街角公园”,从静谧“入口”——精致大气的“展示中心”,最后以“下沉庭院”收尾,几经转折的营造方式,将多个空间层次进行序列性组合,通过不同尺度的空间切换,营造跌宕起伏的感官体验。
▲场地剖面图
▲空间流线
起∣脱离喧嚣的停车小径
访客经由仪式感的停车,穿越林间小径,渐渐领略展示区的精彩。
▲停车场迎宾入口 | 对景吸引©GVL怡境设计
▲停车场出口小径 | 遁入隐秘之境©GVL怡境设计
承∣豁然开朗的街角公园
漫步过后,街角公园给予访客豁然开朗的视野享受,缓步走向展示中心入口,建筑与环境的和谐相生,引导人流徐徐向前。抬眸目至展示中心主体,灰色仿石砖通过具有现代气息的仿铜色铝板勾边,雕刻出细节,与玻璃材质构成虚实统一的交接关系。
▲入口水景 | 倒映建筑的简洁之感©是然建筑摄影
转∣静谧悠远的室内外空间
欣赏水景倒影的同时,联动入口的精致性架空空间,吸引访客探索未知。入口灯光设计,利用穿孔板结合顶部灯光设计,装饰顶部设备,达到结构、灯光一体化设计。
©是然建筑摄影
©SNP
▲入口灰空间 | 星空顶探索未知
入口灰空间孔洞大小、密度和排列组合,也经历了多轮推敲,最终由直径40mm、25mm、10mm三种尺寸构成,孔中心点距离为150mm,实现更好、更自然的效果。
▲穿孔板孔径推敲
室内空间设计,也以精工定制,定格未来精致生活第一印象。
▲前台区 | 定格精致生活的第一印象©SNP
▲旋转楼梯 | 艺术之美拾级而上©SNP
▲二楼洽谈区 | 流露舒适与体贴©SNP
合∣下沉围合多元化场景
步入下沉庭院,设计以多元生活场景的真实映现,给予访客沉浸式生活体验。外立面泛光设计上,利用横向幕墙作为显性元素,结合环形灯带设计,强化下沉广场的聚心性;竖向隐框作为隐性元素,增加通透感。
▲下沉广场 | 横向线条多层次舒展©是然建筑摄影
▲风雨连廊 | 引导探索新意©是然建筑摄影
设计构思的完整落地,是设计师成就作品的重要把控成果。由此,设计通过赋予建筑三层级幕墙、打造极致漂浮之态、塑造近人尺度的精致勾边、灯光设计手法呼应幕墙肌理等施工控制,实现高品质还原。
▲精细化立面还原实景©是然建筑摄影
三层级幕墙∣建筑表皮系统性控制
基于建筑兼顾看与被看的属性,设计希望与景观对话的窗口可以尽量通透,因此设计师根据建筑与环境的互动诉求,以三种玻璃幕墙形式附加墙身。既是对落地效果的精致把控,也是对成本的有效控制。
▲玻璃幕墙系统分级
A 全玻系统幕墙
首层、二层正面采用全玻系统,强调首层漂浮感。
▲全玻系统幕墙效果及节点分析
B 全隐藏式幕墙
旋转楼梯作为空间展示性元素,从外部观看需要拥有绝对通透的视觉效果。因此,环绕旋转楼梯的建筑底层立面采用全隐藏式幕墙,形成干净通透感,打造建筑、室内空间的整体感。
▲全隐藏式玻璃幕墙效果及节点分析
C 竖明横隐玻璃幕墙
在建筑背立面、架空层等灰色空间,采用性价比更高的中空玻璃,既简约美观又能降低成本。
▲竖明横隐玻璃幕墙效果及节点分析
同时,设计希望观光梯能达到极致通透的效果,对结构的隐藏与机械的装置也进行一体化设计。
▲观光电梯墙身
极致漂浮∣底层架空“造型空间结构”一体化
底层架空是建筑形体设计的重要部分,既形成了静谧悠远的入口通道,也抬高了主要功能的标高,从而达到看与被看的效果。同时,设计充分考虑主要视觉错觉上的通透感与悬浮感,利用造型隐藏结构柱体,在不改变结构形式的前提下,延续视觉的跨度达到27m超尺度无柱的效果,巧妙地实现结构承载、造型与空间纯净的一体化设计。
▲入口架空结构分布
▲入口架空实景©是然建筑摄影
精致收边∣流动性曲线的材质交接
曲线既是自然界的巧夺天工,也是建筑柔美的展现。设计突破材料工艺的难点,精准的利用曲线去链接了不同的材质,达到轻盈而精致的效果。
▲弧形铝板与玻璃交接墙身
▲曲线石材与铝板交接墙身
技术图纸
▲首层平面图
▲二层平面图
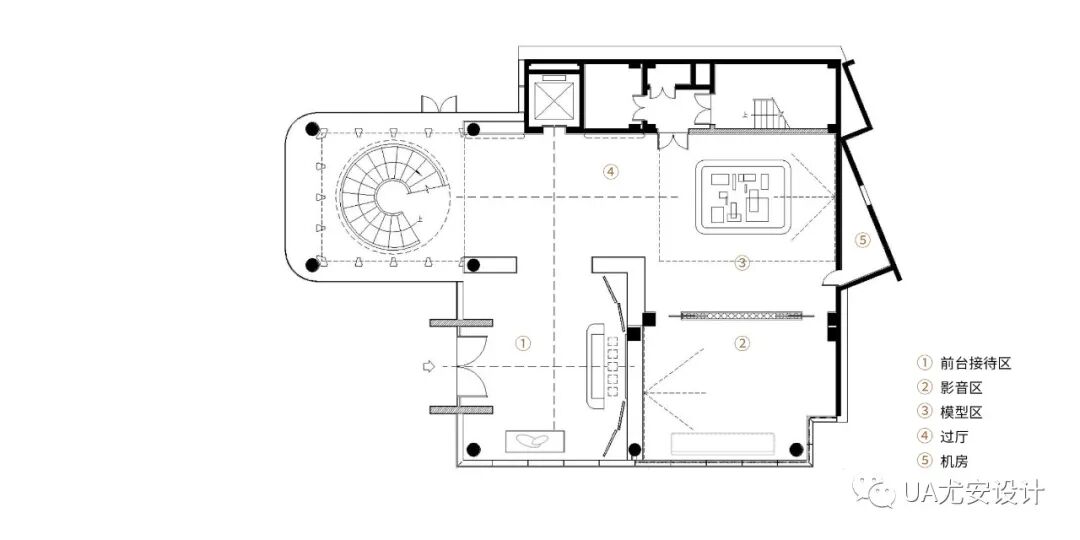
▲地下一层会所平面图
建筑类型:展示中心
建筑面积:2 560平方米
开发业主:保利发展控股
建筑设计:UA尤安设计·尤安一合
景观设计:GVL怡境设计
景观软装设计:泛美设计
室内设计:SNP尚诺柏纳空间策划联合事务所
泛光设计:广州市元色照明设计
施工图设计:江苏浩森建筑设计有限公司
本资料声明:
1.本文为建筑设计技术分析,仅供欣赏学习。
2.本资料为要约邀请,不视为要约,所有政府、政策信息均来源于官方披露信息,具体以实物、政府主管部门批准文件及买卖双方签订的商品房买卖合同约定为准。如有变化恕不另行通知。
3.因编辑需要,文字和图片无必然联系,仅供读者参考;
推荐一个
专业的地产+建筑平台
每天都有新内容
扫描二维码关注

微信公众号“搜建筑”(ID:sjz9999)
合作、宣传、投稿
联系微信:soujianzhu006
阅读原文:“UA尤安”更多精品

