▲ 更多精品,关注“搜建筑”
爬上滑下,把幼儿园变成大玩具
UUA设计

每一个孩子都有一个关于滑梯的童年,
“我做晨运,他玩滑梯,他说是时光隧道,
滑下去,就变回小孩子了。”
-------这是一首成年人的诗,
也是他儿时与滑梯共度的记忆。

城市森林中的儿童绿岛
△ 混凝土森林中的绿岛
△ 第五立面的塑造
安康高新第五幼儿园,
位于一个高层住宅环绕的混凝土森林中,
通过退台,围合,第五立面的设计,
为钢筋混凝土森林中高密度居住区里的孩童们,
打造了一个可以"呼吸"的绿岛。
建筑整体呈L型,
围合出儿童活动场地,
让孩子们在其中安心地玩耍。
建筑采用立体绿化,
做到每个教室窗前都充盈着油油绿意,
让孩子们与花鸟虫蝶为伴,
在大自然中茁壮成长。
屋顶开设的绿色农场,
让孩子在劳动实践中收获成长的果实,
体验式的教育也是孩子们人生中的第一堂劳动启迪课。
安康高新第五幼儿园宛若一个可以爬上滑下的大玩具,
陪伴着小朋友们茁壮成长。

△ 第五立面设计及流线分析©UUA

层叠的退台与活动场
幼儿园主体建筑集中布置在场地的西南侧,
从而在东北侧形成了一个开阔的室外活动区域,
同时有利于室外场地的遮阳和建筑内部的自然采光,
促成建筑和场地的有机融合。
△ 建筑与场地的有机融合

△ 开阔的室外活动场地
幼儿园的三层建筑采用退台处理,
并将安全滑梯与退台结合,
形成了幼儿园的视觉聚焦点,
让每个孩子在此都留下一段美好的成长经历,
记忆中的大滑梯,
便是他们童年美好时光的见证和回忆。

△ 方案生成分析©UUA

△ 三层退台式处理

△连接退台间的台阶
△ 通往屋顶的台阶
建筑与室外活动场地的界面均采用凹凸进退的处理手法,
同时创造了许多妙趣横生的微空间。
开放的户外活动场地,
让儿童尽情享受自由奔跑的乐趣,
室外活动场地的超大配比,
给予了孩子更舒适安全并且丰富多彩的户外活动体验。

△ 丰富的户外空间体验

△多彩的檐下空间

多重元素的建筑外立面
△ 丰富的立面配色
幼儿园外立面简约现代,
墙体采用环保的砂黄色和米白色晶彩石涂料,
窗框与遮阳格栅采用原木色泽,
塑造出幼儿园细腻温和的质感。
室外阳台和楼梯的天花引入鲜艳的橙色,
用色彩的语言表达建筑的活力。
外墙采用模数化的装饰线条,
是建筑整体几何逻辑的外在映射。
温合、活泼与严谨,看似差异化的特质,
以一种有机的方式被融合在一起。

△ 充满亲和力的主入口

△ 将空调外机隐匿于立面之中

△ 模数化的立面线条

△ 简约的建筑形体

丰富温暖的室内空间色彩
幼儿园室内色彩甄选自三原色衍生色调,
为孩童的色彩认知提供丰富的启蒙引导。
不同的颜色充当着指示标识,
形象直观地引导孩子们到达各个功能空间。
在各个教室里,
精心的选色为孩子们开辟出了积极健康的生活学习乐园,
在培养他们色彩搭配和审美能力的同时,
也赋予了他们一个色彩绚丽的童年。
△ 阳光走廊

△ 标准教室

△ 阅览室

△ 多功能教室

△ 课外教学区大厅

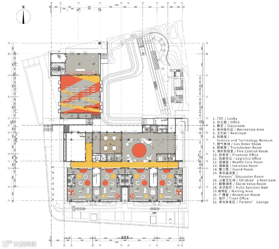
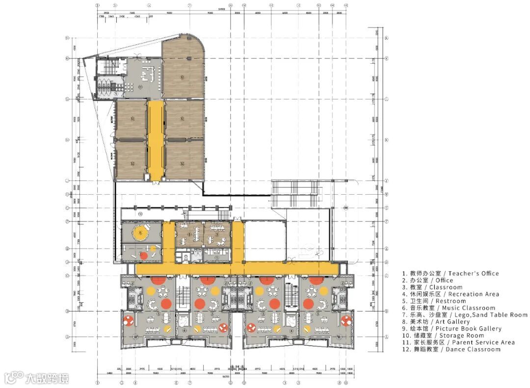
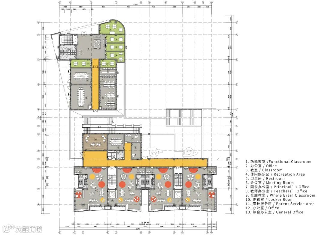
教培一体的功能与空间组合

△南侧日常教学单元
幼儿园的日常教学单元集中布置在场地南侧偏西15度,
可以将更多的阳光和景观视野引入建筑内部。
日常教学单元采用上下对位的组团式布局,
利于结构和管线的高效布置。

△西侧课外教学单元
课外教学功能区布置在场地的西侧,
与幼儿园在功能上紧密联系,
又可独立运营,
为孩子们发展特长爱好提供了便利条件。

△ 功能空间布局 ©UUA

滑梯-童年的时光机
幼儿园室外的层叠退台,
由多部滑梯连接,
这种充满童趣的交通方式,
持续不断地激发孩子们的探索欲。
与此同时,
室内大厅也设有一套组合游乐设施,
同样以滑梯为主题,
成为了孩子在课间,
以及等待父母接送间隙最快乐的场所。

△ 与退台结合的滑梯©UUA

△ 连接室外退台的滑梯
△ 室内走廊与室外滑梯

△ 大厅内的组合滑梯

专属于 “小人国” 的成长乐园
在安康高新第五幼儿园里,
从楼梯台阶,
到家具洁具,
都是为这个“小人国”而精心准备。
童年的记忆,
有滑梯、绿岛和七彩虹,
有充足的安全感和探索欲,
有丰富的小微空间的体验,
让孩童时代的他们,
上了人生中第一堂关于“探索体验”的启蒙课。
△ 儿童尺度的家具设计 ©UUA

△ 教室活动区

△ 盥洗室入口

△ 多功能阅览室

还原度对比
△ 室内:效果图 vs 实景照片
△ 室外:效果图 vs 实景照片

技术图纸

△

△

△

△ 屋顶平面图 ©UUA
△ 轴测图 ©UUA
△
项目信息:
项目地点:陕西安康
项目规模:8,000㎡
项目业主:安康高新博元
项目年份:2016 - 2021
建筑设计:UUA建筑师事务所
室内设计:UUA建筑师事务所
主持合伙人:李泳征,李其郅
设计团队:邓亮,姜腾,吕延锋,赵胜利,陈立业,马兴华,方鸿博,迟冰钰
景观设计:UUA建筑师事务所 + Yearn Space landscape(李双双 赵慧 穆莹)
项目管理:吴永刚,杨威,罗来超,刘佳,付贤军,杨钧超,商沙沙
施工团队:安康希承建设工程有限公司
工程管理:殷超,李晨,王勇,章建宁,赵玉虎、胡塬
建筑摄影:直译建筑摄影
媒体负责:赵冰
本资料声明:
1.本文为建筑设计技术分析,仅供欣赏学习。
2.本资料为要约邀请,不视为要约,所有政府、政策信息均来源于官方披露信息,具体以实物、政府主管部门批准文件及买卖双方签订的商品房买卖合同约定为准。如有变化恕不另行通知。
3.因编辑需要,文字和图片无必然联系,仅供读者参考;
阅读原文:“UUA设计”更多精品

