为0-3岁幼儿,设计的托育园:经典范例
搜建筑
继心蒙幼儿园(3-6岁)于2019年建成,之后三年,立木又与心蒙创始人(吴翔&常蕾)一起打磨这处专属于0-3岁婴幼儿的心蒙托育,以期望打造一个一切以婴幼儿为中心的蒙氏托育环境,一个致力于婴幼儿教育及亲子成长的暖心家园。
把生命重要前三年的教育做到专业且极致,给予孩子发展所需的环境。心蒙的高品质不仅提供辅助婴幼儿的专业蒙特梭利教育,更通过对园所内各个方寸的精致化设计,为婴幼儿成长与发展提供了更完备的空间环境。我们坚信每一分用心,是孩子的幸运,也是我们的幸运!
当现代女性朋友陆续成为新手妈妈,幼龄孩子的日间抚养是大家的普遍难题。如今的婴幼儿抚养主要依赖小家庭,伴随大众对3岁前婴幼儿教养要求不断提高,家庭对于社会化托育的选择标准更为多元和严谨。
“要给孩子一个有营养的环境”,园长每次说到这个理念,眼睛里都在闪着光。在设计0-3岁托育的过程中,无数次想起那些成为新手妈妈的朋友们,她们也曾经是家人和我们的“宝宝”。成为“小宝”的妈妈后,她们变得更勇敢,更坚强,也更柔软。我们舍不得使她们再有顾虑,于是不愿意放过0-3岁托育的任何一处细节。
0-3岁托育的环境设计在技术难度上远超3-6岁园所,立木与园长反复推敲其中的尺度、设施与细节,0-3岁托育项目从2018年与3-6岁园所同时开启,一直到2022年春天才正式竣工。
设计一所专业、安全、可靠的0-3岁托育园所,既是献给众多家庭和小小宝贝们的成长礼物,也希望为社会化托育提供一个可靠的现代实用范例,使之逐渐成为幼儿小家庭抚养的有效辅助。
▼0-3岁托育入口位于幼儿园主入口左侧©朱清言
3-6岁幼儿园以“树林漫步”为主题,立木通过一个开阔的“望天树林”来满足3-6岁的探索欲望。而0-3岁孩子的世界是更小的尺度,他们从躺到学会坐与爬,再到学会走路,经历了人生中最剧烈的变化和最重要的成长。
0-3岁孩子需要的是一个NIDO(巢穴),一个安全舒适的小尺度空间。于是,从“望天树林”中跑出一个小只但勇敢的树人,为0-3岁的小小宝贝们托举起一片小世界。小树人将门厅中心的柱子变成游戏体系的一部分,树洞、草地、平台与滑梯,简简单单但又是0-3岁孩子尺度,使“小宝”们能够安全快乐地与小树人一起玩耍。
“小宝”在0-3岁的变化是惊人的,基于运营方的大量调研与实际教育经验,立木吸取了全球范围内托育中心的先进经验,并融入心蒙在蒙特梭利理念上的专业理念,重视在设计中需要兼容孩子从躺、爬、坐、立各个阶段的需求,从婴幼儿的视角出发,创设环境。
研究0-3岁孩子尺度是一个迷人的工作,最终看起来简单轻松的树洞与平台,从设计到施工近却是似于“疯狂”的打磨,其中包含了不下数十轮的优化与调整。
树洞的尺度是幼儿的,也能容纳一些可爱的爸爸妈妈去完成体验式穿越。孩子们不仅可以在树洞里攀爬探索,甚至可以三三两两坐在树洞里面,这是一种完全被包围和守护的安全感。我们完全可以相信孩子的创造力,更可以期待孩子在这片游戏空间里展开更多的想象!
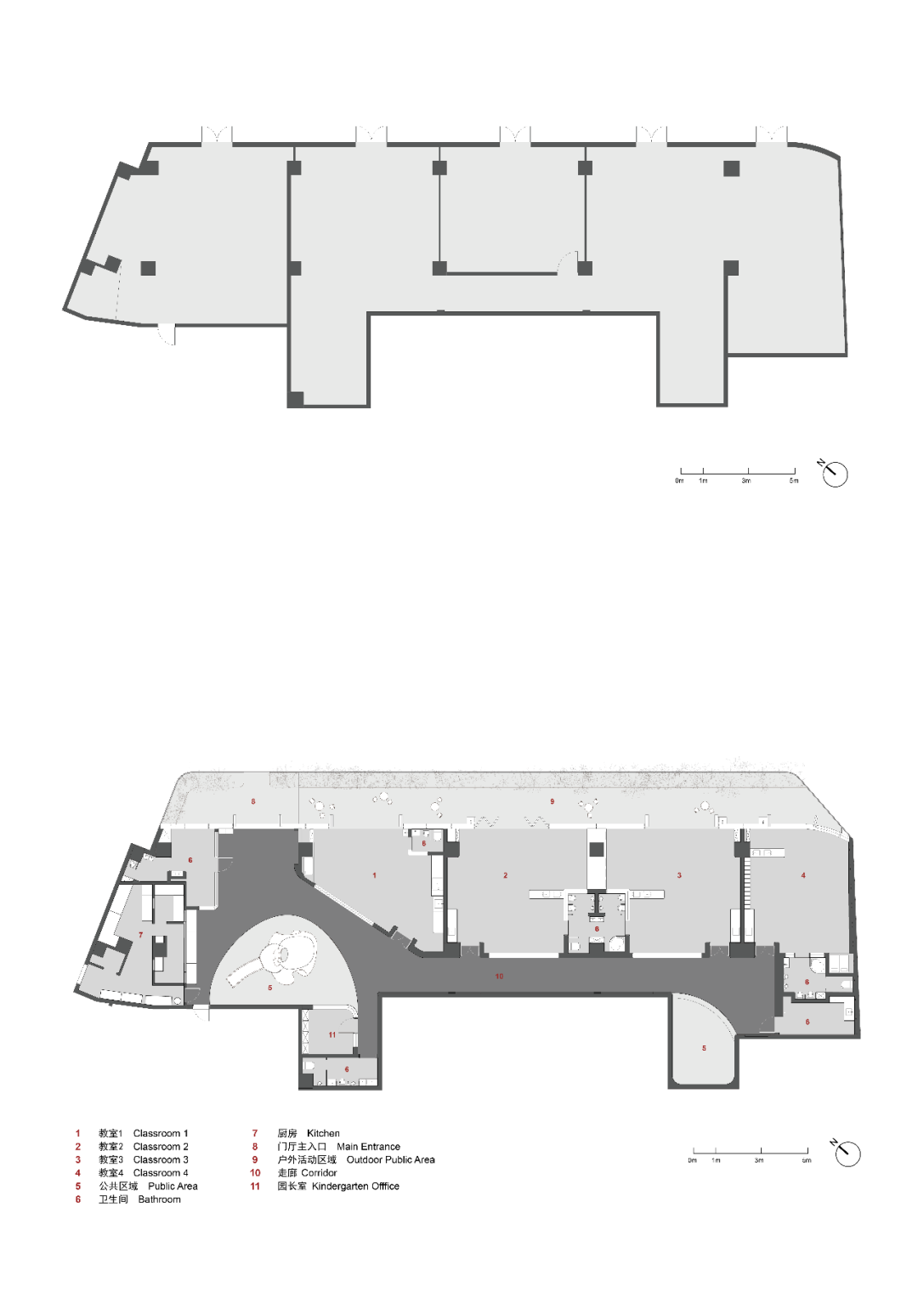
面对更低龄的孩子,不仅在空间维度上需要进行建筑语言与教育语言的融合,更需要思考如何完成“不打扰”的设计。原始平面是一个可爱的小猪形状,于此基础上,立木规划出4间教室和家庭尺度的共享空间。
对于幼儿来说,过于空旷或间隔分明的空间并不完全利于安全感、秩序感和想象力的建立、保护及发展。所以在充分利用所有区域的同时,将两片公共区域以及连接它们的走道改造为孩子们共享的游戏空间。
曲线天花与墙面使这条走道变得丰富、柔和、充满童趣,避免直线条长走廊带来的生硬感。将教室内外空间紧密联系在一起,既包容触觉探索装置,也提供小朋友们更换与收纳鞋子的空间。
在心蒙托育中心,1.5岁以上的孩子自己穿鞋换鞋,打饭吃饭,倒水洗碗,几乎所有的生活细节都可以在老师的引导下独立完成。
由于孩子在0-3岁与3-6岁的身体尺度完全不同,托育和幼儿园部分的家具尺度有了巨大变化,从3-6岁幼儿园走到0-3岁托育,仿佛从一个小人国进入一个更迷你的小人国。为感官学习者设计了一组触觉墙,增加孩子触觉感的丰富体验,促进孩子的脑部发育。
考虑了孩子在这个阶段的生活和成长需求,以接近于家庭的环境,给予这个年龄段宝宝最亲切与温柔的呵护。教室里设置有安全舒适的私密哺乳空间,为妈妈们提供便利。
这个年龄段的小朋友还需要更换尿布,立木为老师们设计了专业好用的尿布更换台,包括灯光、家具、玩具等几乎所有细节都充满巧思,可以细分到孩子的不同月份,随着他们的身体发育的不断变化而调整。
0-1.5岁的宝宝与妈妈有着最原始与深厚的依附,我们希望教室能够在任何角度都让妈妈放心。环保与安全是最基本要求,除此之外,由于这个年龄段的宝贝会更多地用身体和嘴巴探索世界,整个托育中心的地板和护墙使用了软木材料,它提供了一种柔软且温暖的接触面,更能够保护小宝贝们娇嫩的身体。
考虑到明亮开放的空间理念,两间教室的卫生间采取共享模式。1.5-3岁的小小宝贝会在这里学习各项生活技能,因此包括分餐、吃饭、洗碗等生活细节所涉及到的设施,全部采用1.5-3岁幼儿尺度,方便他们使用。1.5-3岁托育教室的几乎所有细节都与3-6岁幼儿园教室完全不同,经过不断的优化,最终调整到最适合师生使用的状态。
柔和浪漫的曲线,自然生机的色彩,空间模拟了家庭与自然的环境,让0-1.5岁的小小孩童拥有家庭尺度的安全感,又能享受探索环境空间的自然意愿。
环保与安全是最基本要求,整个托育中心在施工全过程中都做到了零污染。除此之外,我们还格外注重材料触感的温暖与柔软。
这样一间空间从孩子需求角度出发,没有过多的额外累赘,保有必要的功能性,满足孩子生活学习所需,在天然木色简约留白的视觉感里,最大程度呵护孩子专注力、激发创造力。
每间教室都可以通往户外小花园,教室空间和户外空间连接。亲近自然是幼儿教育的基础,这一片植满花木连廊绿地,既需要考虑植物的四季物候特性,又需要根据日常的种植养护工作进行调整,背后凝聚了许许多多的心血与故事,所幸最终还是顺利完成。绿篱则提供了与外界世界的柔和隔离,将0-3岁托育的日常活动保护起来,为孩子与老师们保留了一片珍贵的绿意盎然。
▼珍贵的绿意盎然©朱清言
对于中国家庭来说,能够将0-3岁(尤其是<=1岁)的“小宝”托付给园所,这是一种极其珍贵的信任。为了不辜负这一份信任,在这三年的0-3岁托育的设计与施工过程中,立木与运营方、施工方一起,进行了反复的试验、讨论与优化,我们打造的不仅是一所孩子的空间,更是给孩子成长的最好陪伴,只为最初生命绽放!
“心蒙幼儿园的雏形是一个位于住宅区底层的家庭园,只有两间教室,一间是3-6岁,还有一间是1.5-3岁。小小的家庭园,有许许多多的温暖和快乐,以及一片草地和小树林,它也是梦开始的地方。我们难以忘记初见那片小树林的惊喜与感动,于是在0-3托育/3-6园所里一直延续“树林”主题。0-3岁托育只有几间教室,它以一个更加“家庭”的尺度,唤起了很多关于小树林的美好记忆。”
设计团队:李春瑶、管浩廷、刘明昊、陈余胤柯、高子珊
更多精品 校园建筑
▼点击关注
1.本文为建筑设计技术分析,仅供欣赏学习。
2.本资料为要约邀请,不视为要约,所有政府、政策信息均来源于官方披露信息,具体以实物、政府主管部门批准文件及买卖双方签订的商品房买卖合同约定为准。如有变化恕不另行通知。
3.因编辑需要,文字和图片无必然联系,仅供读者参考;
扫描二维码关注

微信公众号“搜建筑”(ID:sjz9999)
阅读原文:“立木设计”更多精品
搜建筑
关注全球时尚的、新的建筑资讯。