大数跨境
0
0

南京8大精品:叠墅+大平层+洋房+高层+品质商业......

南京8大精品:叠墅+大平层+洋房+高层+品质商业...... 搜建筑
2022-09-17
2
导读:龙湖·紫金原著龙湖·紫金Mall招商蛇口·江心印金陵星图龙湖·山与城 中铁建·花语天境金科·观天下华发美的·云筑

▲ 更多精品,关注搜建筑


品牌地产 | 精品楼盘考察 | 南京

本次楼盘考察活动时间

9月22日 、9月23日两天

(周四、周五)



南京:八大精品项目


龙湖·紫金原著

龙湖·紫金Mall

招商蛇口·江心印

金陵星图

龙湖·山与城 

中铁建·花语天境

金科·观天下

华发美的·云筑


温馨提示:南京楼盘活动,以上项目中安排7-8个参观,部分参观项目根据现场情况可能会有调整。时间为9月22日-9月23日(周四、周五),满员即止,感兴趣的朋友请及时联系报名。

报名+咨询 

1、扫描二维码 加好友咨询

咨询微信:soujianzhu03


   咨询微信:soujianzhu008


2、联系电话:18132657351(微信同号)


龙湖·紫金原著

建筑设计:上海三益建筑 /景观设计:MAXI美溪景观


此次三益携手龙湖集团南京公司,在南京环紫金山板块,规划“黄金两公里磁场”社区,打造一个兼容居住、商业、服务为一体的社区综合体“紫金原著”。



原著系作为龙湖住宅产品系列中的顶级标杆系列,立面通过高级材质的运用体现业主归家的专属感、仪式感、定制感。柔美的横向线条犹如紫金云层/山体岩层般,创造凹凸变化的空间关系。


典雅的立面比例,结合中式景观庭院的打造,满足人们回归传统、回归理想家园的需求。材料运用方面,横向线脚运用铝板材质,立面整体挺拔高级,品质感彰显得淋漓尽致。



设计以现代构成为基调,承袭殿之轴线,三段式、水平向、挑檐、删繁就简,从而减少外立面对室内功能空间的阻碍和遮挡,提升舒适度。大体块的虚实对比,简洁明快而不失典雅,顶部造型简洁柔美。




门厅的造型提取建筑框架的形式,延展,飘浮的感觉,通过比例的推敲,把左右商铺建筑,围墙形成统一的细节考量和布局。



入户大堂门头则选用了金属挑板和墙面艺术透光玻璃的组合,入口处景观的定制级灯饰、高档石材、以及金属材质,体现高档的品质感。



丰富而又细腻的归家礼序设计,奠定了紫金原著的尊贵感。我们在归家动线沿路布置了多样的景观节点,营造丰富的体验感。



整个立体花园式庭院空间设置了三大模块:水岛花园、台地花园及口袋花园。


▲水岛花园

▲台地花园

▲ 口袋花园


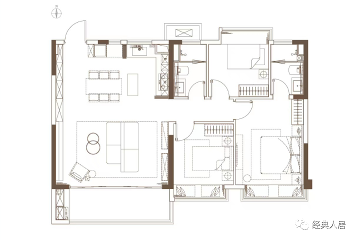
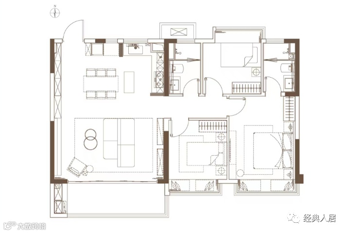
享有四室两厅一厨三卫大阳台;南北通透,空间舒适。客餐厅进深8.2米;主卧面宽3.8米;两室朝南,利于采光观景。



南向大尺度阳台,客厅贯通南北,仪式感满足高格调家庭需求;独立储物间;两室朝南,利于采光观景;真飘窗。



在整个项目极致尊享的体验当中,超长尺度的艺术人文入口空间设计也是一个很大的亮点。



建筑沿街呈曲线形态,舒展的线条与道路相连接,与城市空间相互渗透。数条曲线线条滑动,延展建筑体量。

采用参数化设计模拟幻彩穿孔铝板肌理,为外部带来形象提升,为内部空间带来光影变化。到夜晚,动态灯光可以营造出浩瀚星空的氛围。




龙湖·紫金Mall

建筑设计:上海三益


紫金原著周边以老小区为主,缺乏高品质商业及公共活动空间。在周边小环境局限的情况下,社区商业的设计采用了较为独特的反S型布局模式,将内铺转化为外铺,所有商业界面均能快速达到,并完全可视化。

此次设计,三益以改善人居环境、提升城市面貌、挖掘商业价值为发力点,通过独特创新的反S型商业布局及叠级多层住宅设计,助力龙湖在南京东大门打造一个集住宅、商业、社区服务、城市广场于一体的地标式社区综合体。


△概念生成图解


△反S型商业布局分析


场地现状面积狭小且存在4米高差,设计师巧妙的将这一弱势因素转化为优势,利用高差形成“双首层”布局,进一步增加商业的展示界面,成为一个四通八达的商业空间。


妙用地势,双首层消“÷”场地高差

由于基地东北与西南面有4米以上的原始高差,这也成为了整个设计的着力点。如何处理好场地环境与空间功能的关系、解决由高差带来的技术限制成为设计首要突破的问题。

▲ 示意图


设计师巧妙地将这一弱势因素转化为优势,利用高差形成“双首层”布局,进一步增加商业的展示界面,成为一个四通八达的商业空间。



商业占比如此高的优质设计方式既营造了简单明了的动线,同时又自然而然形成了两个外向型市民广场,可以在其中植入连续、个性、有序的广场主题。



立面采用三段式,底层与腰部商业为柔性基座,尺度亲人。公寓层以刚性形体驾于之上,使用效率高。以对比达到统一。利用公寓山墙面,实现广告位布置,增加商业化立面观感。



由于项目为销售型商业,采用分体空调,为了呈现最好的建筑立面效果,建筑师对机电等管道设备的遮蔽工程也花足了心思。


设计将空调室外机布置在店招上方的空腔内,强弱电桥架及水管则利用剩余空间进行隐藏。需要明露的燃气管,或布置于雨棚上部,或隐藏于造型内侧。在有限的空间内,见缝插针,让方案能够更加精致的呈现。

△立面遮蔽工程示意


幕墙收尾,解决景观与建筑结合的痛点

通常项目最后一个收尾的是景观。孝陵卫项目四至存在很大高差,特别是室内外交接处,如果留给景观处理很难达到建筑对材料及尺寸的需求,会留下很不平整的缝隙。

设计将落地的玻璃幕墙底部用凸字形铝型材收口,在下方预留一块可视情况变换延伸的铝板构件,等景观做好后再安装。不仅降低了景观施工的难度,也避免了不平整的间隙。



△幕墙景观交接节点

△景观与建筑完美交接  ©刘松恺



金科•观天下

建筑设计:中哲国际工程设计

景观设计:四川蓝海环境发展


位于仙林东宝华山南麓的金科·观天下|映山,集金科多年山地建筑经验之大成,遵循长期主义的品质和审美理念,精研6年倾心打造的半山台墅,以更为自然而然的方式,将墅种在山中。



南北高差约30米,相邻高差约5.1米的半山台地之上,层层退让的台地空间,形成步步高升之势,确保每一户业主,在家里就能听到、看到、触摸到真实的山。



大面积的玻璃幕墙设计,做到了最大12面宽采光,使得阳光得以大面积、多角度进入室内,营造更通透、舒适的采光效果,同时也构成山景效果最大化的观景视野。


外立面材质上,运用石材一体板、铝板等,再以极简的直线线条和素雅统一的莫兰迪灰,立面精致坚毅,整体呈现出高级感,品质感,与周边山色融为一体,建筑与自然得以更加亲近。



在这里,空间是自然的,选取山间竹、松,叠石、流水等元素,以南朝生活为蓝本打造七境七巷空间,在多变的空间关系中,感染于此景此境丰富而开放的生活方式,满足社交、安静冥想等全龄需求。



儿童户外游乐区整体配色以暖黄嫩绿为主,在光照较短的冬日,也能为小朋友们带来温馨和愉悦的体验。



在这里,日常是自然的,三代人依据不同生活习惯分层而居,约5.1米挑高地下空间和南北双露台,又能让一家人团聚在一起吃茶、开party,一家人和而不同,美好总在身边。




招商蛇口·江心印

景观设计:LAURENT罗朗景观


江心印落子主城惟一生态岛,四面环水,与河西仅一江之隔,环境优越,超70%的综合森林覆盖率,坐拥10座富氧公园,以墅居尺度打造主城惟一桃源秘境。



外立面采用玻璃+铝板+石材+真石漆的组合,极具通透感的玻璃幕墙与极简的建筑线条成就天幕下的“镜面美学”,令顶豪圈层无界享受自然大观。



首次亮相的226㎡户型,超12米的转角阳台,270°无遮挡园景视野,把风景纳入生活,延伸空间尺度。



江心印园运用现代建筑语言诠释东方神韵,定以金陵折扇为主题的景观基调,配合“水、岸、森、居”四重线索、6大沉浸式入境礼序,营造出规划、悦动、共享、有氧、智能5重生活空间,在方寸之间,营造超乎物质的心之栖所,打造进退有序的江岛慢生活。



除高奢的居住感外,江心印园更打造超1500㎡高奢会所,配备健身房、瑜伽馆、恒温泳池、下沉景观庭院、茗香茶室、星级私宴厅等奢级会所,带来不可复制的星级奢享。



作为一个江岛奢居产品,江心印园对地下车库品质要求较高,利用BIM技术使得管线排布美观、合理,提升净高,并通过BIM管线综合、预留预埋,减少返工,节约成本。不仅践行可持续发展建筑,更是助力南京市BIM技术的发展。



其中合理规划人车分流,不仅有效缓解早晚高峰出行压力,更是充分考虑小区行人安全,特别保障老人和小孩出行安全,绿色的植物屏障更是减少噪音与尾气,带来一个绿色健康的鲜氧环境。


▲效果图


建面约226㎡岛居大平层首度亮相,纯粹改善岛居惊艳时光。入户270°环幕景观,超12米的转角阳台,将窗外15000㎡中央花园尽收眼底,搭载LDKB一体化通厅设计,一个“通透、高效、互动”的开放式社交场跃然而出。



除了建面约226㎡岛居大平层,建面约176㎡的户型同样是看点十足!两梯两户,四房起步双套房设计,约5.8米的PLUS版大横厅,独家岛居生活美学诠释南京主城洲岛上独树一帜的staycation住假式生活。



由G-ART集艾设计的销售中心,设计将意境同当代简约理念复合,借由克制内放的手法,创造功能和视觉的互渗同归;透过天然及人造材质巧妙组搭,表达敏感的情绪流露。


售楼部实景

售楼部实景


龙湖·山与城

建筑设计:帝奥设计集团/景观设计:DDON笛东


龙湖·山与城,秉承龙湖28载造墅修为,择址国家级江北新区中央别墅区老山麓,规划约161-272㎡私家温泉叠墅、大平层产品,整个项目占地约5.6万方,建筑面积约7.2万方,打造南京别墅封面著作!



项目建筑理念依托区位优势,引温泉入户,结合现代中式的建筑风格,“始于度假,终于墅区”,打造成品山居别墅梦想。



通过选用不同材质及做法来体现立面的三段式,首层采用偏暖色的白色石材,加之香槟金金属线条点缀,突显品质的同时,暖色系材料让冰冷的建筑变得有温度,每处细节都是匠心所在,致力打造现代高品质的墅居生活体验。


建筑景观,不仅仅是钢筋水泥、植物花草,更是文化和精神的载体。龙湖景观会结合本土地脉和风土人情,去创造每一个景观作品。在龙湖的社区,建筑点缀在园林之中,完美的园林景观也成为建筑的外立面。



项目东西方向为横向景观轴,为礼仪山水轴;南北方向为纵向景观轴,为森林轻氧轴;汤泉九境为九个景观节点,入户时的水镜归堂、示范区的池境浮台、溪镜流觞等,分布在两个主轴之上,伴随着您的归家路线,一步一景,曲径通幽。


除此之外,在不同楼栋建筑之间,通过植物的种类和色彩搭配,打造园中处处皆有景、四季景不同的完美景观。



园林中局部配置雾森系统,增加园区负氧离子含量,可以降温除尘、增湿保湿,净化空气,有助于身心健康。



客厅是一个宽厅设计,打造了一个会客厅,同时又布置一个读书空间。开间6.6米,南向超大四开间移门,联通南向的花园,西侧也设置了超大的落地窗,整个户型三面采光,采光和景观视野极佳。


与餐厅相连的便是利用率极高的U型厨房,厨房门设置超宽四联动移门,采用金属边框+ 艺术玻璃的设计,更富有细节,尽显奢华;



二楼打造了三室两卫,主卧为套房设计,非常具体品质感。主卧套房,开间也是6.6,卧室和衣帽间以及卫生间的空间相对独立,保证的业主居住空间的私密性。


另外,主卧和次卧阳台相连,开间近10米,体验感非常好,这样的2F高度非常好,保证采光的同时,随着室外景观的四季变化,都能看到不一样的风景。



地下室的面积根据户型不一样,面积在75-85平左右,层高3.6米,预留了空腔的位置,大概1.5米左右,也就是未来业主自己改造后,层高能达到5.1米,完全可以改造成2层的空间,提高面积的使用率。



中铁建·花语天境

建筑设计:常州宏筑国际建筑

景观设计:奥雅股份 上海一院 项目三组


中国铁建·花语天境深研当代人居理念,从人居需求出发,打造南京首个使用江水源热泵的五恒科技住宅项目。超高层办公摩天楼以垂直线条形成区域地标,而高层住宅则舒展延绵的线条与之形成对比:垂直体量更加挺拔,水平洞口更加舒缓。



住宅单体的立面设计在整体完整的外围框架内,依然遵循经典的“三段式”构图原则:基座、主体与顶部。以通高的米白色外框勾勒竖向的挺拔轮廓,以带状阳台、水平长窗描绘水平线条,在底层区域通过门廊形成优雅的宽景画框。


建筑整体色调是明朗优雅的,米白色的铝板显示出细腻的优雅感,北立面的入墙体所使用的深咖啡色铝板衬托调和色调是散发出优雅气质的香槟金色。



住宅区紧扣休闲花园主题,融合东方禅意元素与现代花园生活


整个小区分为一横一纵,东西横轴功能轴,小区东到西由“静”到“动”的空间逻辑,景观使用流动的曲线语言,将多重生活场景有机的联系起来依次通过阳光草坪,林下户外会客厅,多功能活动区的场景,串联东西成为一个整体的花园生活图景;南北轴仪式轴,仪式入口轴线,打造精奢归家仪式感。



精雕细琢高标准礼宾酒店式双精装大堂,通透明亮、视野敞阔的空间,承启建筑整体的出入礼序,尊贵之感显露于方寸之间。



匠心打造宽敞明亮的精装地下车库,提升归家的舒适体验,赋予居者“出入皆礼遇”的奢华体验。



四开间朝南+双联宽景阳台,宽幕瞰景视野;客餐厅采用LDK一体化设计,空间阔绰。



花语天境营销中心,是当代与现代的碰撞,是东方与西方的融合,设计师对传统文化再设计,以细致的处理手法,隽永流畅的线条,精密设计的格局,让每一处空间都深蕴持久的生命活力和艺术的华彩。



华发美的·云筑

建筑设计:PTA上海柏涛


云筑基于地段的考量,择址于城市山河间;因地制宜,打造台地式景观;多样化景观空间设计;追求建筑美学,设计现代风格外立面户型空间的数次打磨,是给予城市人居的不断优化。



建筑是实体美学的体现,优选铝板一体化打造质感立面,搭配玻璃幕墙提升整体美观,以极简美学锋芒,通透建筑肌理,打造城市高定的美学印象。



同时,云筑依循项目起伏的地貌特征,打破常规平地布局,利用高低差优势,打造区域唯一约2.5-5.1米的台地式园林景观,并以下沉式庭院、儿童活动区、共享社交、健康中心等,为业主提供休闲互动式的情境享受。



私享下沉式高端休闲会所,在优雅社交中,为您留住那些久违了的朋友和时光;开阔的2500㎡的林下中心花园,无论观赏、运动还是休闲娱乐,都为生活预留更多可能。



四间朝南,衔合阳台飘窗,将浪漫揉碎卷进生活;宽敞的餐厅区域与会客厅结合的设计,让空间体验感更为宽敞,同样配备的转角飘窗设计结合超大窗墙比,尽享生活的温暖。


约118㎡户型


宽尺阳台,衔带飘窗;主卧功能齐备,集衣帽间、卫浴、飘窗一体;三段分离,疏而不离的设计,是恰到好处的距离;约4米宽厅,开放式餐厨设计,厨房大展身手的同时兼顾待客闲聊,觥筹交错之间,眺望飘窗,宽大厅庭,尽显优雅格调。


约142㎡户型

金陵星图


金陵星图是由融政平台、银城国际、融创中国联合打造。项目位于江北新区研创园板块,周边不仅坐拥成熟的优质配套,同样拥有级别更高的城市界面,与江北核心区互为补充,错位发展。



项目住宅地块总占地约7.3万方,总建筑面积约26.1万方,共有16栋高层住宅,分为3个地块来打造,综合容积率约2.5,绿地率约30%,共计1679户,规划车位约1910个。



项目住宅部分采用了围合式的布局,所有楼栋错落布局,营造出较为阔绰的视野



项目住宅撷取自然水波灵动的曲线为元素,以极简几何形状与线条绘制出独特建筑美感;立面臻选高透玻璃、局部铝板、一体板、真石漆等材质碰撞出现代的高级质感,色彩上融合高级灰与亮银配色,塑就“未来系”产品先锋艺术的建筑调性。



整体南向窗墙比包含封闭阳台达到了约0.45,市场罕见。超高的窗墙比与立面材质的结合,历久弥新。



金陵星图从生命健康角度出发,在社区内部打造活力环:健身环跑道、轻氧健身区;全龄健身区:活力健身场等科学合理功能划分,打造不出社区,即可全身心拥抱绿色健康的生活方式。


社区内部功能区示意图


社区内部打造约300㎡森林星梦园,献给孩子重拾自在野趣的玩趣场地;还有与动物亲密接触的动森乐园,让爱宠也有撒欢社交的领地。摇摇马、蹦床、攀岩丘,甚至还贴心的设置了婴儿车停放区与洗手台,丰富悉心的景观功能,让每一个家庭绽放欢乐体验与亲密能量。


儿童游乐营地示意图


约89㎡户型南北通透、三开间朝南、动静分离,户型采用LDK一体化的餐客厨空间。


阳台封闭交付,并搭配180度观景大玻璃窗,未来观景面更加宽绰,阳光也会更加充足。三飘窗的设计,加强了整个房间的空间感,北向飘窗更是难得



约113平做了三房两厅两卫的设计,南北通透,三开间朝南,动静分离,独立的入户玄关,南向近12 米的超大面宽,将采光面充分的拉伸了,也进一步拉伸了室内的空间感。在满足餐厅功能的同时,纯粹的把客厅做到了约5.1米的横厅,并且增加了多功能区域,摆脱传统的“沙发+电视”的传统格局。


约113户型均为边户设计,主卧室及阳台都为180度观景转角窗,采光通风俱佳,景观视野绝佳。所有卧室均为飘窗设计,大大加强了室内的空间感。



约139平米的户型,整体户型南北通透,户型方正,户型设计采用3+1多功能布局,为成长型户型设计理念。横向近13米的超大面宽,南向开间达到四开间标准,居住舒适性高。


户型采用LDK一体化的餐客厨设计,结合6.6米横厅设计,整个活动空间面积高达约50㎡,极大的增大了整个公区的尺度空间感。



峻佳设计携手融创,精准定位融创i+美好生活体系,在南京金陵星图CULTURE HUB的高浓度复合场景叠加下,成就未来真实的生活潮趣打卡地。



深咖木色与黄铜金属质感让空间在拥有典雅质感。在螺旋分形结构的巨大行星装置之下,留下静谧的哲思。




【活动时间】


2022年9月22日 、9月23日两天

温馨提示:

本次活动名额有限,满员即止

感兴趣的朋友请及时联系报名


【活动报名】


活动组织:

主办方:搜建筑 & 经典人居


报名+咨询 联系如下


1、扫描二维码 加好友咨询

咨询微信:soujianzhu03


   咨询微信:soujianzhu008


2、联系电话:18132657351(微信同号)


2022年·新产品方向

《 品牌地产 | 精品楼盘活动 》

杭州、苏州、上海

成都、郑州......

广州、福州、重庆

西安、青岛......

扫描二维码 加好友咨询

领队微信:soujianzhu008

▼ 精品楼盘:考察回顾(优秀图集)

本资料声明:

1、本文资料为要约邀请,不视为要约,所有政府、政策信息均来源于官方披露信息,具体以实物、政府主管部门批准文件及买卖双方签订的商品房买卖合同约定为准。如有变化恕不另行通知。

2.因编辑需要,文字和图片无必然联系,仅供读者参考;


推荐一个

专业的地产+建筑平台

每天都有新内容

扫描二维码关注

微信公众号“搜建筑”(ID:sjz9999)


合作、宣传、投稿

联系微信:soujianzhu006

【声明】内容源于网络
0
0
搜建筑
关注全球时尚的、新的建筑资讯。
内容 10717
粉丝 0
搜建筑 关注全球时尚的、新的建筑资讯。
总阅读1.5k
粉丝0
内容10.7k