▲ 更多精品,关注“搜建筑”

无国界医生组织的重要性日益增加,需要在日内瓦的莫里昂区建造一个新的总部,在联合国的领事馆和机构附近。


医疗急救的国际组织必须能够立即在世界范围内对紧急事态作出反应。医学、法律、技术、通信和行政等学科的专业团队监督实地的各种工作队。一旦紧急情况得到解决,这些团队就会解散,并为下一个任务重新组合。像这样一个流动的、昼夜不停的有机体需要一个适应性强的建筑结构,能够 "呼吸 "并支持最多样化的星座中所有形式的行动。
The international organisation for medical emergency aid must be able to react immediately and worldwide to acute developments. Specialised teams in the disciplines of medicine, law, technology, communications and administration supervise various task forces in the field. Once the emergency has been resolved, those teams disband and regroup for the next mission. A fluid, round-the-clock organism like this needs an adaptable building structure that can "breathe" and support all forms of operations in the most diverse constellations.


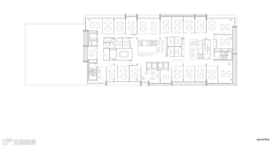
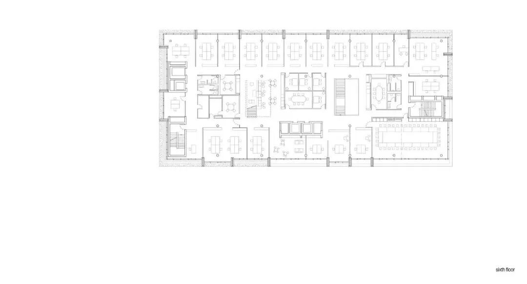
新楼的建筑以透明和以沟通为导向的空间结构来回应这种工作方式,积极促进同事之间的交流。工作空间的可扩展性和用户的福祉是设计的关键考虑因素,因为它结合了不同比例的空间,因此可以容纳大、中、小型的工作组。在单人和团体办公室之间是大型会议室和公共区域,用于所有楼层的非正式互动。
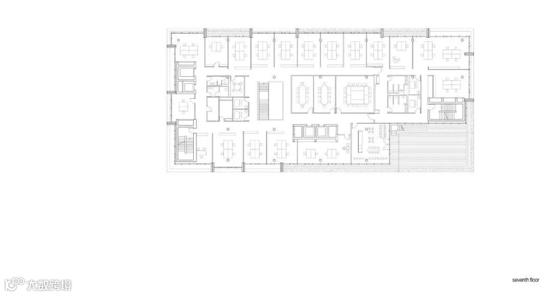
带有礼堂的门厅、广场和一个公共餐厅使底层充满活力,并使建筑向外开放。此外,一楼和七楼以及屋顶的露台创造了休闲的空间,并为日内瓦湖的勃朗峰和汝拉山开辟了视野。一个宽敞的楼梯自由地穿过整个建筑,在视觉和空间上连接所有这些区域,并加强了所有部门之间的沟通。
The architecture of the new building responds to this modus operandi with a transparent and communication-oriented spatial structure that actively promotes exchange amongst co-workers. Scalability of workspaces and the well-being of users were key considerations in the design, as it combines spaces of varying proportions and thus accommodates large, medium and small workgroups. Between the single and group offices are large conference rooms and communal areas for informal interaction on all floors. The foyer with the auditorium, the agora and a public restaurant animate the ground floor and open the building to the outside. Additionally, terraces on the first and seventh floors and on the roof create spaces for relaxation and open up views over Lake Geneva towards Mont Blanc and the Jura Mountains. A generous staircase leading freely through the entire building connects all of these areas, both visually and spatially, and strengthens communication between all departments.

一个三维的绿色外墙将这些内部结构传达给外部。由大型木制框架界定的阳台和木廊提供了在内部和外部空间之间过渡的工作环境。这些框架像一个巨大的拼图一样组合在一起,形成一个明确的体量,类似于一个为共同目标工作的个人专家组织。
A three-dimensional, green façade conveys these internal structures to the outside. Balconies and loggias defined by large wooden frames offer work settings that transition between interior and exterior space. Fitting together like a giant jigsaw puzzle, these frames form a clearly defined volume, analagous to an organisation of individual specialists working towards a common objective.

植被屏幕还在立面的缓冲区产生了一个小气候。在夏季,茂密的树叶提供了阴凉,减少了建筑的冷却需求;在秋季,这个自然屏幕变薄,在黑暗的季节让日光照射进来。此外,外墙的效果还延伸到建筑之外,通过吸收二氧化碳来改善新城区的空气质量。
The vegetation screen also generates a microclimate in the façade's buffer zone. During the summer, the dense foliage provides shade and reduces the building's cooling requirements; in autumn, this natural screen thins to let in daylight during the dark season. Moreover, the effect of the façade extends beyond the building by improving the air quality in the new urban district through the absorption of CO2.

外墙的性能是达到瑞士认证的 "Minergie-P "高标准的一个重要因素。除了作为桥顶和气候缓冲器的空间功能外,还提供了带有外部纺织遮阳板的三层玻璃。屋顶上安装了光伏板,该项目与GeniLac生态加热和冷却网络相连。该基础设施使用来自日内瓦湖的水和100%的可再生电力。因此,该建筑完全由可再生能源供电。
The performance of the façade constitutes a significant factor in meeting the very high standard based on "Minergie-P" in accordance with Swiss certification. In addition to the spatial function as a brise-soleil and climate buffer, triple glazing with an external textile sunshade has been provided as well. Photovoltaic panels are installed on the roof and the project is connected to the GeniLac ecological heating and cooling network. This infrastructure uses water from Lake Geneva and 100% renewable electricity. As a result, the building is powered entirely by renewable energy sources.

建筑材料的选择也对可持续性做出了重要贡献。招标时优先考虑 "从摇篮到摇篮 "的生产方式,提供可回收或容易回收的材料。使用当地木材,如银杉,有助于通过储存二氧化碳来降低温室效应。
The choice of building materials also makes an important contribution regarding sustainability. The call for tenders gave preference to "cradle to cradle" production methods that offer recycled or easily recyclable materials. The use of local timber such as silver fir contributes to lowering the greenhouse effect by storing CO2.

同样地,大楼的容积也被规划到未来。在启用时,大楼的总容量略微超过了无国界医生组织的空间需求,允许将部分空间转租给其他非政府组织。在底层的餐厅区上方有一个七层的扩建方案,这保证了该建筑在规模上保持适应性,并随着用户需求的变化而增长。
Likewise, the building's volume is planned into the future. At the time of its opening, the total capacity of the building slightly exceeds the space requirements of Médecins sans Frontières, allowing for parts to be sublet to other NGOs. The option of a seven-storey extension above the restaurant area on the ground floor guarantees that the building will remain adaptable in scale and grow with the changing needs of its users.

作为一个基本的规划目标,无国界医生组织的新总部大楼在多个层面上实现了可持续性--从灵活的空间范围和绿色外墙到谨慎的材料选择和细节设计。最重要的是,其结果是一个透明和宽敞的建筑,满足了致力于该组织日常工作的人对开放工作环境的要求。
As an essential planning objective, the new headquarters building for Médecins Sans Frontières implements aspects of sustainability on several levels - from a flexible range of spaces and a green façade to careful material selection and detailing. Most importantly, the result is a transparent and spacious building that meets the requirements of the open working environment for those committed to this organisation on a day-to-day basis.


平面图




剖面图




轴测分析图


可持续理念

建筑师:Sauerbruch Hutton
地点:瑞士
面积:14260 m²
年份:2022
本资料声明:
1.本文为建筑设计技术分析,仅供欣赏学习。
2.本资料为要约邀请,不视为要约,所有政府、政策信息均来源于官方披露信息,具体以实物、政府主管部门批准文件及买卖双方签订的商品房买卖合同约定为准。如有变化恕不另行通知。
3.因编辑需要,文字和图片无必然联系,仅供读者参考;
推荐一个
专业的地产+建筑平台
每天都有新内容
扫描二维码关注

微信公众号“搜建筑”(ID:sjz9999)
合作、宣传、投稿
联系微信:soujianzhu006

