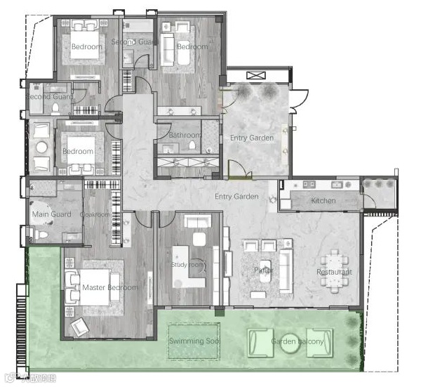
随着居住品质的不断提高,大阳台,越来越成为开发商的吸客的利器。甚至有“房屋的居住舒适度,由阳台决定”的结论。
近两年因阳台的变化,居住舒适度也得到了很大提升,现在的阳台,只有你想不到,没有它做不到。
阳台的大小、朝向、结构关系到整个房屋的采光、通风、甚至安全,所以无论是业主还是设计师都需要特别关注。

阳台示意图
1、阳台构造类型:一字型阳台、U型阳台、L型转角阳台、异形阳台
海口融创·桃源大观建筑面积约139.78 m²户型,约7m的“一字型观景阳台”,连接整个横厅,将每一丝光线纳入厅中,目之所及、步之所至皆是宁美浸润。

建筑面积约139.78 m² | 四室两厅两卫 ©成执设计

成都清凤·鹿溪源建筑面积约175㎡户型,颠覆传统阳台设计,打造约35㎡“U型跑道阳台”,无边界广角视野,三面环幕采光。采用U型阳台,实现客餐厅全采光。

建筑面积约175㎡户型图

成都清凤·鹿溪源实景图
南京招商蛇口·江心印建筑面积约226㎡户型,超12米的“L型转角阳台”,270°无遮挡园景视野,将窗外15000㎡中央花园尽收眼底。
优品道/复地-黄龙溪谷清峯岸转角阳台设计,将户型观景面增加,营造270°极致环幕视野,利用双层空间打造约6.3米半开放式挑高花园,立面形式与景观资源完美结合,户户拥有墅级私家花园和极致开阔视野。

洋房大平层D户型296m²偶数层

郑州未来天奕阳台采用奇偶错层设计,北向全部有阳台,视野非常宽广,能够很大程度看到东风渠的一线景观;每一户都能拥有无遮挡的观景视野。

同样是建面约288㎡的奇数层和偶数层户型,其最大的区别在于阳台的位置。

阳台效果图
偶数层的阳台,主要在餐客一体厅的北侧;南向主卧外还有约7.2米宽的阳台。奇数层的阳台,主要在餐客一体厅的东侧;南向起居间的弧形阳台,更是凸显全景落地窗的视觉享受。
比如西安国润当代境MOMΛ推出建面约133、151㎡的8层洋房,整体采用错层阳台设计,约6米挑高奇偶错层式天幕阳台,可以装扮成美丽的秘境花园、静谧的休憩基地、儿童乐园、或者一处诗意休闲天地。

建面约133㎡户型图
错层阳台的设计从视觉上拉大层高,蜿蜒流畅的立面曲线,营造出波浪一般的动感立体效果。加之大面积的玻璃带来很强的通透性,搭配蓝灰色的玻璃栏板,勾勒和凸显洋房的整体线条之美,营造出不一样的高级感。

效果图
重庆龙湖北岛通过创新错层阳台布局,打造了一个约6米双层挑空、270°观景“云端私宅”,把本属于地面的院落,移到了空中,构一方“空中庭院”,让人真正拥抱天空。转角空中庭院面积约20多㎡,最宽处长度约8米。

重庆龙湖北岛户型示意图
南北双阳台形式基本就一种:客厅+餐厅/厨房位置设阳台,比如下面这个户型:郑州万科·拾谧森语建筑面积约247㎡户型大边厅设计,两个厅南北双阳台环绕,270°环幕视野空间通透。

郑州万科·拾谧森语建筑面积约247㎡户型图
② 双联阳台
南京颐和源璟建面约188㎡户型,四室两三卫,多功能客厅落地窗设计,大横向开间达到了约6.8米,约10米的超大开间南向双联阳台。

开敞的双联阳台设计,不管是对阳台的观感,还是南向次卧的采光都有一定的提升。
重庆龙湖·宸峯建筑面积约223㎡大平层户型,约14.2米面宽的大尺度观景阳台更像是一个空中院子,为家人提供了与大自然亲密接触的无界空间;超豪华的主卧空间自成一体。

重庆龙湖·宸峯建筑面积约223㎡大平层标准户型

阳台是情景化的,而非晾晒衣物的空间。阳台设计正在不断往更人性化、更实用方向演变,能容纳更多生活的可能性。
进深做大,可开拓出多功能空间。可以划分成好几个部分,有休闲的,有种花种菜的,有晾晒衣服的等等。
保利发布的改善185㎡的户型,在更大的空间尺度下,需要更多功能和体验空间。

空间解析示意图

转角阳台场景
郑州万科·理想拾光建筑面积约143m²四房产品,南向宽尺景观阳台,决定了优良的通风性能与绝佳的广度采光,搭配宽广的楼距以及社区内花草缤纷荟聚的组团景观,推窗瞰望,不禁感叹生活的明亮多彩。

建筑面积约143m²户型图

郑州万科·理想拾光阳台意境图
悠然的午后,一杯咖啡伴着凭窗远眺饱的风景,阳光清风自由往来。与风景对话,便是与心灵的畅谈,优雅的下午茶时光徐徐展开,在时光中流转,开启生活无限想象。
金科金地商置观天下建面约190㎡四房两厅三卫户型,约7.6m南向双开间阳台,观景、健身、休憩......

建面约190㎡户型图
金科玖樾印象建面约143㎡四房两厅两卫户型,约7.5米阔景阳台,做了一个小吧台,让心灵回归宁静的纯粹,让一直寻求的生活理想变为现实。


阳台实景图
昆明西派国樾建筑面积约360㎡户型,23米转角阳台,极限采光+视野,2.75米进深,摆放价值40万独立泳池。

昆明西派国樾建筑面积约360㎡户型图
阳台人性化设计要遵循用什么东西都能随手拿到的原则,不止要“能装”,同时还要分类、易拿取。
洗衣晾衣一步到位直接在阳台进行,不用卫生间阳台两边跑,把家务动线缩到最短。
淮安中海·九樾143㎡户型中柘壹设计对居住空间的塑造重点,对阳台收纳模块的精细布局,高效利用起每一寸空间,在实现强大的收储功能之余,扩充了不同阶段的家庭使用需求,构建起住宅的全生命周期。

淮安中海·九樾143㎡户型图

阳台示意图
由融政平台、银城国际、融创中国联合打造的南京金陵星图项目,阳台封闭交付,并搭配180度观景大玻璃窗,未来观景面更加宽绰,阳光也会更加充足,而且做了超多人性化设计。

建筑面积约113㎡户型示意图

阳台实景图
1.本文为建筑设计技术分析,仅供欣赏学习。
2.本资料为要约邀请,不视为要约,所有政府、政策信息均来源于官方披露信息,具体以实物、政府主管部门批准文件及买卖双方签订的商品房买卖合同约定为准。如有变化恕不另行通知。
3.因编辑需要,文字和图片无必然联系,仅供读者参考;
推荐一个
专业的地产+建筑平台
每天都有新内容
扫描二维码关注

微信公众号“搜建筑”(ID:sjz9999)
合作、宣传、投稿
联系微信:soujianzhu006