悉尼街6号是一个精心伪装成有机雕塑的建筑结构,是一个由15个住宅组成的骨架,以工艺为基础,以自然为灵感。它位于普拉兰市内的郊区,其形式和定位创造了与邻近的Orrong Romanis保护区的自然环境的流畅连接。
A building structure carefully disguised as an organic sculpture, No. 6 Sydney Street is a collection of 15 residences within a skeleton, grounded in craft, and inspired by nature. Located within the inner-city suburb of Prahran, its form and positioning create fluid connectivity to the natural surroundings of the adjacent Orrong Romanis Reserve.
参照自然界的蜿蜒曲线,这个不对称的建筑似乎是由一种单一的原材料雕刻而成,抽象了其形式构成。其软化的楼板作为主要元素,巧妙地被塑造成细小的叶片,放在不规则的特色凹槽柱子的网格上。流动形式的相互作用使建筑具有视觉上的运动感。沿着不平坦的外墙的深层波纹,形成了有意识的正负空间的分层,使间歇性的花园与植被生长相结合,进一步软化了形式。
Referencing the sinuous curves of nature, the asymmetrical building appears to be carved from a singular raw material, abstracting its formal composition. Its softened floorplates read as the primary element subtly molded into fine blades resting on an irregular grid of feature-fluted columns. The interplay of flowing forms gives the building a sense of visual movement. Deep rippling along the undulant facades results in a conscious layering of positive and negative spaces allowing the integration of intermittent gardens with vegetation growing to further soften the forms.
建筑物的底部被掩盖在一个种植茂盛的花园中,在两个凹槽柱子之间的入口天棚通过一条弯曲的小路进入。入口处的顺序开始通过精致的天然材料调色板和工艺细节将外部概念过渡到内部。这方面的第一个迹象是,木门上有一个雕塑般的铸铜、浸银门把手的装饰。
The base of the building is obscured within a lushly planted garden framing the entry canopy between two recessed fluted columns accessed via a curving pathway. The entrance sequence begins to transition the external concepts more internally through a refined natural material palette and crafted details. The first indication of this is the timber door ornamented with a sculpted cast bronze, silver dipped door handle.
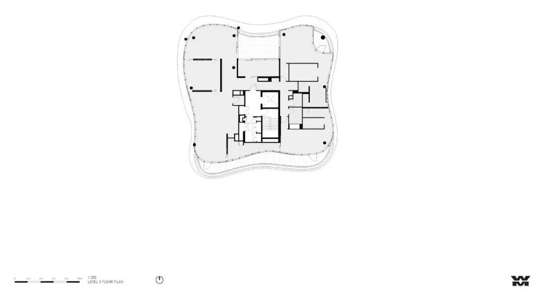
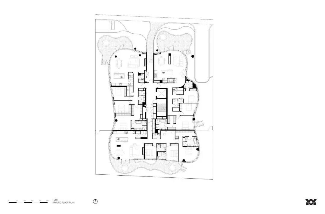
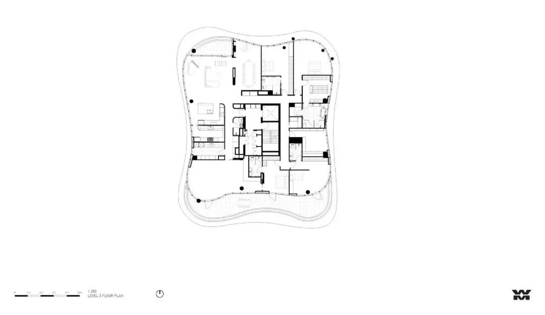
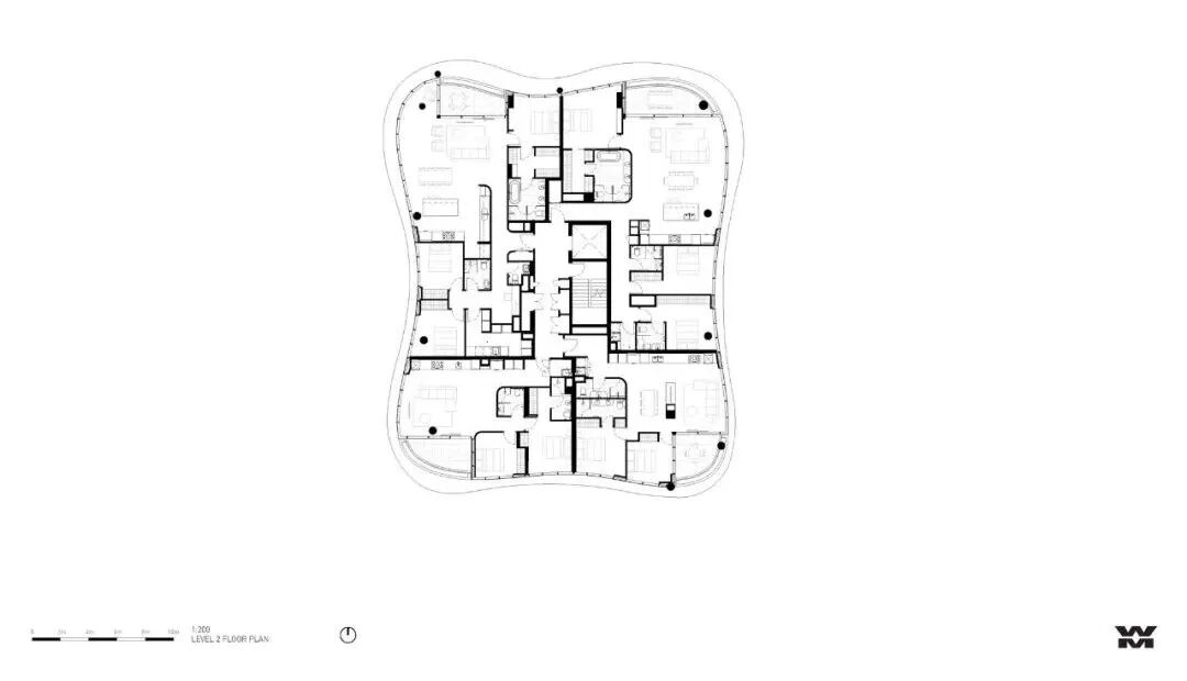
每个住宅都是独特的,有不同的采光、视线和露台。植被、公园和城市景观被广阔的玻璃和水平面所包围。许多室内表面通过使用弯曲的体量和石膏来软化,并从外部形式中汲取灵感。天然木材和书本上匹配的大理石的高工艺细木工制品增加了整体的温暖感、对比度和精简奢华的方法。浴室被石灰华马赛克包裹着,为空间提供了一种微妙的纹理质量,并与染色木材和石材的固体盥洗台形成对比。
Each of the residences is unique with different access to light, sightlines, and terraces. Planting, park, and city views beyond are framed by the expanse of glazing and horizontal planes. Many of the interior surfaces are softened with the use of curving volumes and plaster, taking cues from the exterior form. Highly crafted joinery in natural timber and book-matched marble add to the overall feeling of warmth, contrast, and a refined approach to pared-down luxury. The bathrooms are wrapped in a travertine mosaic providing a subtle textural quality to the space and contrasting with the solid vanity unit of stained timber and stone.
悉尼街6号是与V-Leader合作开发的,它是在城市街区进行雕刻的结果,打破了由其直线型邻居创造的围墙式街景。其抛光的形式在单色的视觉质量中仔细地试验了固体和空隙的概念。它与自然的联系和运动的使用,以及艺术性产生了一个独特的结果,与周围的住宅环境形成鲜明的对比。
Developed in collaboration with V-Leader, No. 6 Sydney Street is a curvaceous result of carving out its urban block, breaking down the walled streetscape created by its rectilinear neighbors. Its polished form carefully experiments with ideas of solid and void, in a monochromatic visual quality. Its connection to nature and use of movement, and artistry have produced a unique outcome that sits in contrast to its surrounding residential context.
本资料声明:
1.本文为建筑设计技术分析,仅供欣赏学习。
2.本资料为要约邀请,不视为要约,所有政府、政策信息均来源于官方披露信息,具体以实物、政府主管部门批准文件及买卖双方签订的商品房买卖合同约定为准。如有变化恕不另行通知。
3.因编辑需要,文字和图片无必然联系,仅供读者参考;
推荐一个
专业的地产+建筑平台
每天都有新内容
扫描二维码关注

微信公众号“搜建筑”(ID:sjz9999)
合作、宣传、投稿
联系微信:soujianzhu006