▲ 更多精品,关注“搜建筑”
荔园外国语小学北校区
高密度城市中心的人文绿洲
AUBE欧博设计
深圳作为一座“奇迹城市”,以短暂40年走过了一般城市需要上百年的城市化进程。但经济的高速发展和财富积累无法取代时间沉淀,包括教育在内的城市配套基础设施需要花时间和持续的财政投入进行建设。深圳人口结构年轻,出生人口年均增长率位居四座一线城市之首;同时作为移民型城市,大规模的外来随迁子女令中小学学位更加吃紧。基础教育、文化生活等公共服务领域的短板将影响城市的核心竞争力和可持续性发展。
近年深圳城市加大教育方面财政投入,扩大中小学规模,新建大量学校,增加学位供给。然而受限于有限的土地资源,校园建设多采取了更为高密度集约化的模式。根据其对四个一线城市相关规范标准的统计显示,深圳学生均用地面积低于北京、上海。相关数据显示:北上广每个学校仅需容纳1000个学生左右,而在深圳,平均每个学校要装下2000名学生。
在这样的背景下,在高密度城市空间中进行校园设计,兼顾社区功能的复合共享,是建筑师所面临的挑战。

荔园外国语小学北校区位于深圳福田区中部莲花街道,莲花路与景田路交汇处西南侧,四周被既有旧建筑包围。校园用地极为有限,正位于旧改区中央,构成整个周边社区的中轴。
项目立项之初社区希望新建校园空间可以在满足日常校园功能的同时与社区共享一部分空间为居民文化活动场所,并希望藉此探索一种公共设施共享的范式,尝试解决深圳高城市密度下公共生活品质亟待更新升级的需求。

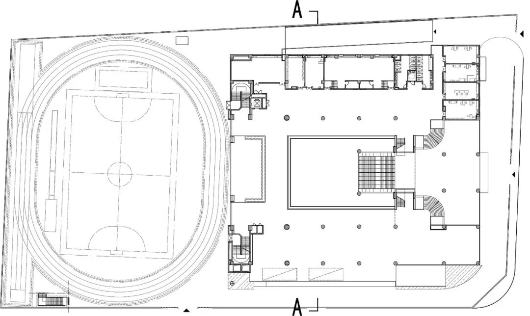
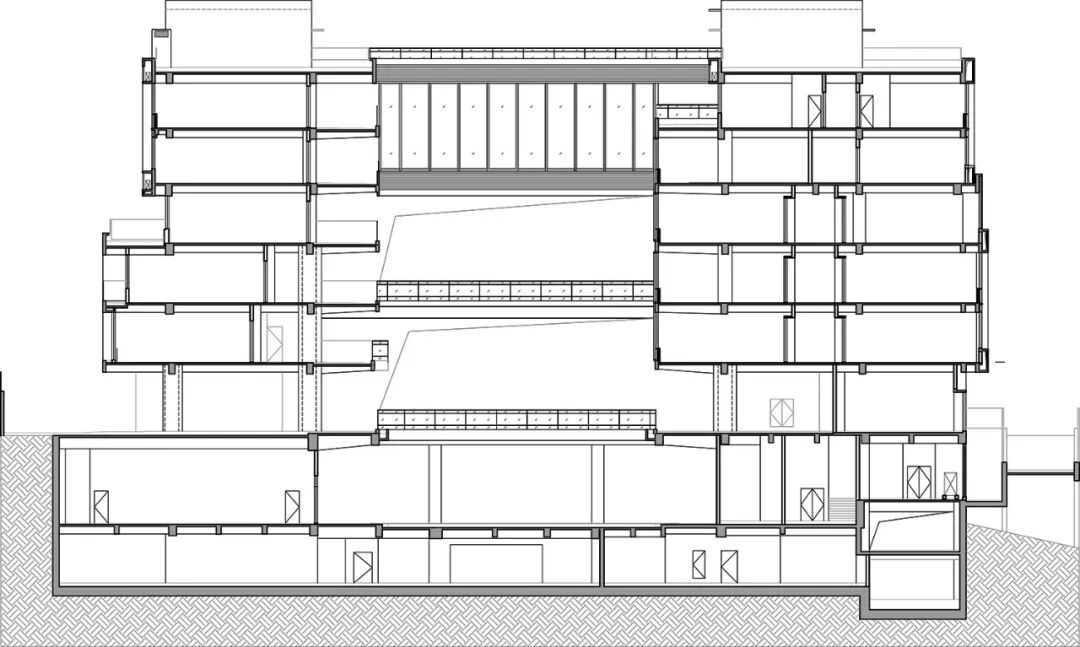
方案首先从城市角度重新整理联通了周边道路系统,通过调整路段坡度,将天骄二路与南侧道路系统连通,改善了原本基地孤岛化问题。巧妙利用基地自然高差,将学校教学楼设置在较高的南侧,面向南侧和东侧的小区打开。打通后的天骄二路周边社区道路系统相连,延伸到地块北侧的健身会所,从而把地下一层与周边社区联动形成一个体育共享活动空间——一座风雨操场。
社区居民可以从南侧小广场到达学校架空层,沿着室外台阶到达地下二层的风雨操场的入口,台阶也可以作为操场的看台使用。场地的自然高差将隔离了教学区与社区共享空间,保证了校园空间完整性、保障师生安全的同时实现了服务社区。


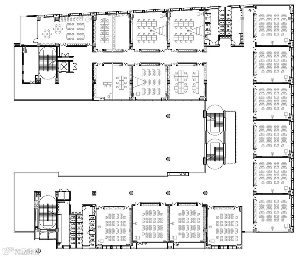
荔园外国语小学北校区可容纳30个班级,占地面积8700平方米,提供1350个学位。校园拥有一座6层高教学楼和南侧200米环形跑道操场。教学楼建筑以两个对峙的U型体块叠加构成,强调出室内空间和室外空间的虚实结合。中庭作为校园的核心社交区域和视觉焦点,强调教育殿堂庄严和秩序的同时,交错楼梯和空中连廊营造出流动、联通开放的自由氛围。






一个校园空间需要承担知识传承、启迪心智的职能,同时学校是微型社会的雏形,学生们在成长过程中的公民意识被无形而且深刻的塑造,学校即是对未来社会的一种空间愿景。荔园外国语小学北校区尝试了在学校的封闭性与社区公共性之间达成平衡,实现了空间的灵活自主与多样性,同时保证了校园的安全舒适,在高度密集的城市中心创造一片开放共享的人文绿洲。
技术图纸
总平面图

首层平面图


A-A剖面图
项目档案
项目地点:广东省 深圳市
设计单位:深圳市欧博工程设计顾问有限公司(建筑、结构、机电)
建设单位:福田区建筑工务署
使用单位:福田区教育局
代建单位:深圳市天珺房地产开发有限公司
用地面积:8700㎡
建筑面积:29400㎡
设计建设周期:2016年-2019年
摄影师:陈冠宏
本资料声明:
1.本文为建筑设计技术分析,仅供欣赏学习。
2.本资料为要约邀请,不视为要约,所有政府、政策信息均来源于官方披露信息,具体以实物、政府主管部门批准文件及买卖双方签订的商品房买卖合同约定为准。如有变化恕不另行通知。
3.因编辑需要,文字和图片无必然联系,仅供读者参考;
推荐一个
专业的地产+建筑平台
每天都有新内容
扫描二维码关注

微信公众号“搜建筑”(ID:sjz9999)
合作、宣传、投稿
联系微信:soujianzhu006
阅读原文:“AUBE欧博设计”更多精品

