位于柏林-克鲁兹堡区Cuvrystrasse 50-51的约9800平方米的场地从Schlesische Strasse延伸到施普雷河畔。步行几分钟即可到达奥伯鲍姆桥和东侧画廊。在这里,根据Reinhard Mueller的城市设计和TCHOBAN VOSS Architekten的规划,创建了一个集办公空间、美食和零售为一体的多功能办公园区,以及一个可供公众使用的景观内院,可以看到Rudolfkiez的Osthafen-Promenade全景。
The approximately 9,800 sqm site at Cuvrystrasse 50-51 in the Berlin-Kreuzberg district stretches from Schlesische Strasse to the banks of the Spree River. The Oberbaum Bridge and the East Side Gallery are only a few minutes walk away. Here, a multifunctional office campus with office space, gastronomy, and retail and a publicly accessible, landscaped inner courtyard with a panoramic view of the Osthafen-Promenade of the Rudolfkiez was created according to the urban design by Reinhard Mueller and the planning by TCHOBAN VOSS Architekten.
建筑的结构和立面设计直接参考了该建筑在前城市港口区的位置。浅色的熟料外墙是对奥斯特港工业建筑的参考:它们借鉴了现有开发项目中仓库的材料特性。
The structure of the building and the façade design makes direct reference to the building's location in the former urban harbor area. The light-colored clinker facades are a reference to the industrial architecture of the Osthafen: they borrow from the materiality of the warehouse in the existing development.
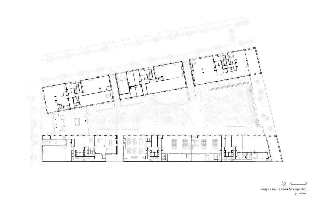
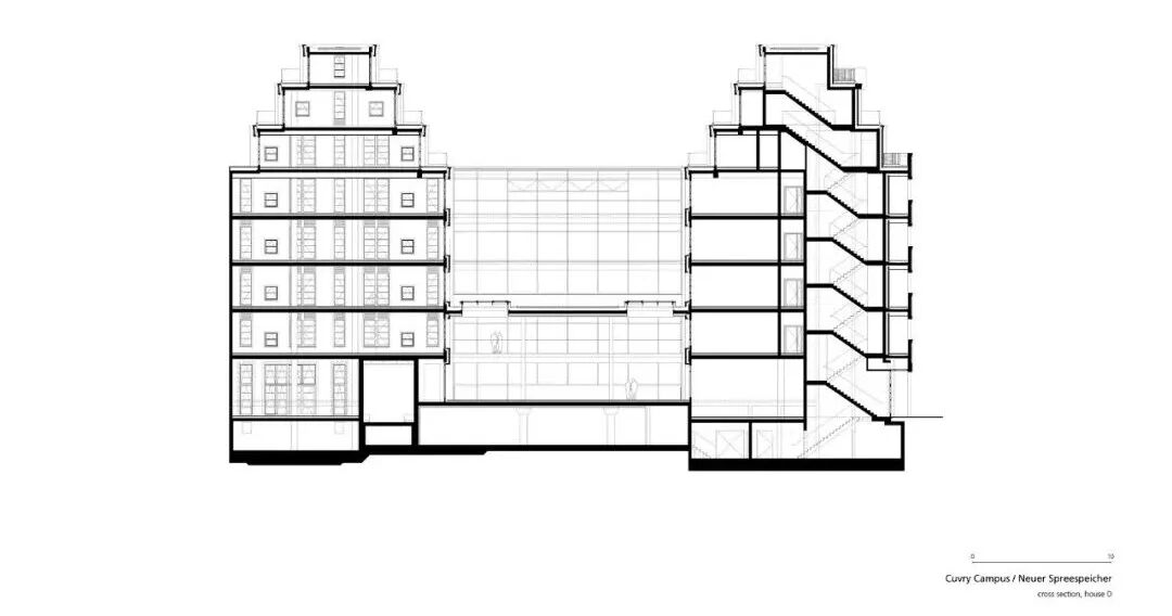
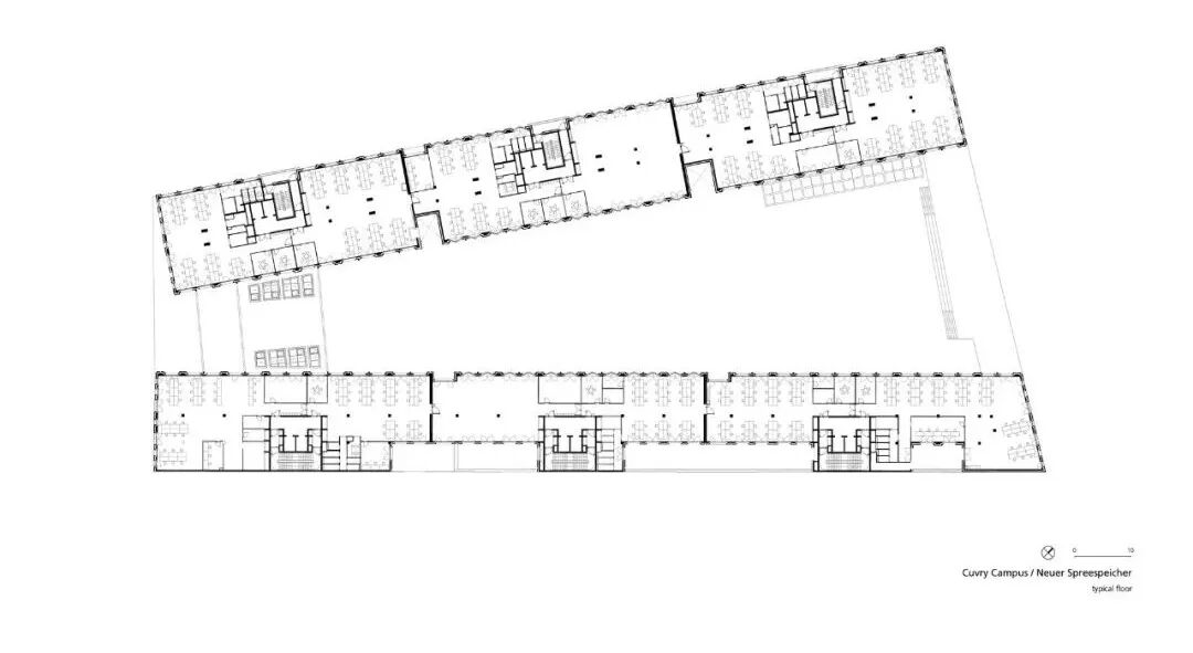
该建筑群由两座七层楼高的建筑群组成,向水面呈锥形开放。每个区块由三栋房子组成。最后三层是类似楼梯的后退式楼层,有长长的梯田。朝着Schlesische大街,一个略微凹陷的玻璃连接建筑填补了两个体块之间的空隙,游客在这里进入明亮的、光线充沛的大厅。
The complex consists of two seven-story building blocks that open conically toward the water. Each of the blocks consists of three houses. The last three upper stories are staircase-like stepped-back stories with long terraces. Towards Schlesische Strasse, a slightly recessed glass connecting building fills the gap between the two volumes, where the visitors enter the bright, light-flooded lobby.
通往两个街区的垂直通道是通过一个楼梯核心和两部电梯,而通往地下室的通道是通过两个独立的地下停车场入口,一个来自Schlesische大街,一个来自Cuvry大街。
Vertical access to both blocks is via a staircase core and two lifts, while access to the basement is via two separate entrances to the underground car park, one from Schlesische Strasse and one from Cuvrystrasse.
延伸到码头墙的建筑可以通过拱廊进入两边。白天向公众开放的绿色内院和宽阔的、可供公众使用的河岸提高了住宅的质量。
The buildings extending to the quay wall can be accessed on both sides via arcades. The green inner courtyard, which is open to the public during the day, and the wide, publicly accessible riverbank enhance the residence quality.
建筑师:Tchoban Voss Architekten
本资料声明:
1.本文为建筑设计技术分析,仅供欣赏学习。
2.本资料为要约邀请,不视为要约,所有政府、政策信息均来源于官方披露信息,具体以实物、政府主管部门批准文件及买卖双方签订的商品房买卖合同约定为准。如有变化恕不另行通知。
3.因编辑需要,文字和图片无必然联系,仅供读者参考;
推荐一个
专业的地产+建筑平台
每天都有新内容
扫描二维码关注

微信公众号“搜建筑”(ID:sjz9999)
合作、宣传、投稿
联系微信:soujianzhu006