

The new headquarters for the MOL Group in Hungary has now opened. Located in southern Budapest and designed by Foster + Partners in collaboration with Finta Studio, the building consolidates the company’s Budapest operations in a single location.
It is an integral part of the MOL Group’s sustainable vision for 2030, providing a blueprint for the office of the future.
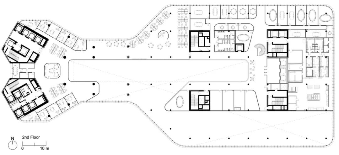
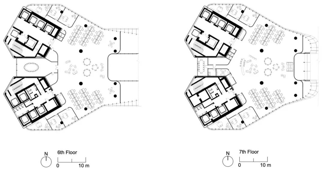
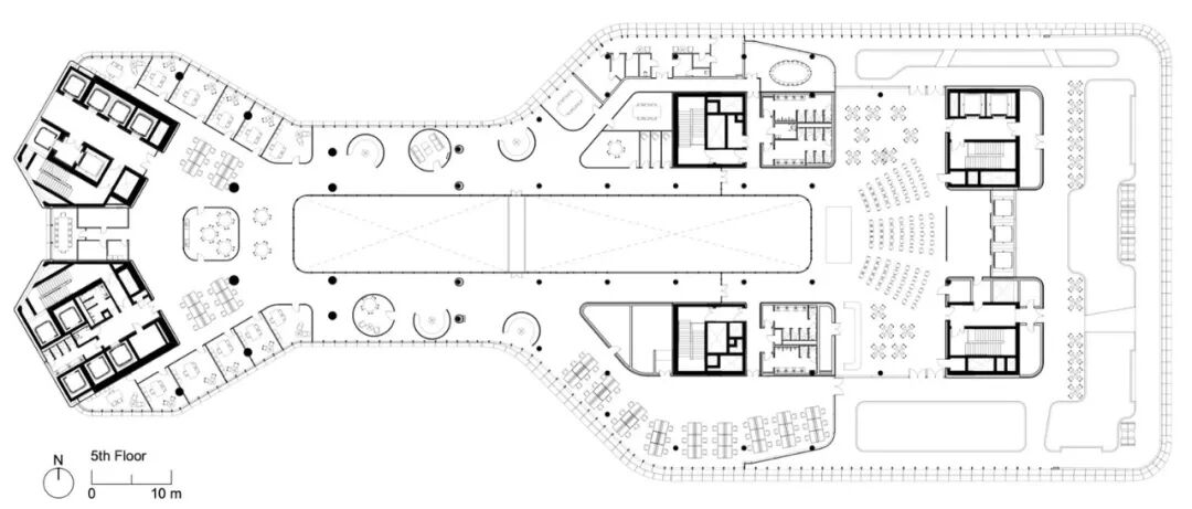
The 28-story building’s lower floors house restaurants, a gym, a conference center, and a whole host of other facilities for staff, while the flexible office spaces are on the upper levels. Greenery travels through the heart of the building, from the central atrium to the rooftop, bringing nature closer to the workspace. It also acts as a social catalyst, creating spaces for collaboration, relaxation, and inspiration.



The offset service cores create large flexible areas that encourage collaborative patterns of working. Using cutting-edge technology to control light levels, temperature and views these workspaces are finely calibrated to create the perfect working environment, a light-filled inspirational space for people to work in. All occupants have a direct connection to the external environment providing daylight and views.

The building utilizes low and zero-carbon technologies, such as integrated rooftop photovoltaic panels, and ground source heat pumps, and features a greywater recycling and rainwater harvesting system. Heating and cooling are provided via a radiant panel system which enhances indoor environmental quality and comfort while allowing the central plant system to operate more efficiently compared to conventional systems. The heating and cooling plant system also integrates with the district heating system for added support and resilience, as well as cooling towers for ‘free-cooling’ when external conditions are appropriate.

The MOL Headquarters seeks to preserve live-work relationships as part of the urban experience, where people can walk or cycle to work. The building is on track to achieve LEED Platinum and BREEAM Excellent certifications, setting new benchmarks both for Budapest and Hungary, the design of the building makes the most of its urban context to drive a sustainable response.
本资料声明:
1.本文为建筑设计技术分析,仅供欣赏学习。
2.本资料为要约邀请,不视为要约,所有政府、政策信息均来源于官方披露信息,具体以实物、政府主管部门批准文件及买卖双方签订的商品房买卖合同约定为准。如有变化恕不另行通知。
3.因编辑需要,文字和图片无必然联系,仅供读者参考;
推荐一个
专业的地产+建筑平台
每天都有新内容
扫描二维码关注

微信公众号“搜建筑”(ID:sjz9999)
合作、宣传、投稿
联系微信:soujianzhu006

