引言
510生活广场位于常州科教城腹地,自2002年科教城始建至今,从无到有,从有到优,“低洼农田”变身“创新高地”。作为第一期的商业配套,落成于2012年的510生活广场已无法满足现有的板块需求。设计团队期望通过本次改造将其焕活,重新赋能科教城这颗“创新之核”。
随着高教园区、科技产业园先后建设落成,人才公寓、基础教育等优质配套也日益完善,科教城正处于快速发展向品质提升转型的节点。
而针对商务办公建设而成的510生活广场,作为整个科教城核心的商业配套,已逐步与板块发展脱节,亟需改造升级。
项目地块西侧与大学城、科技园一河相隔,东临产业园区,北侧为人才公寓,南端是富都酒店,位于产学研一体化基地的中心区域,起着粘合各个板块的重要作用。
整个商业配套主要由三个部分构成,即510生活广场改建的全新商业街,也是本次改造的重点,富都长江酒店、以及东侧的两栋商办建筑(二期建筑)。
现状建筑平面以打开科技之门的“钥匙”为概念,但建筑形态与商业逻辑不够匹配,空间也生硬乏味,导致商铺经营不善,消费者游逛体验不佳。
200余米长的盒子体块,以格子为基础元素,但缺乏变化与特色,可识别性低。
原有湿地主题公园,与商业氛围格格不入,冗长的建筑体块将场地完全割裂,景观与建筑毫无互动。
地块北侧的人才公寓即将落成使用,大量高校学子、科研菁英、常住居民聚集周边,却缺乏服务于他们的社区型商业与运动休闲空间,510生活广场的改造恰好为这些需求的实现提供了可能。
设计团队希望跳脱地块本身,以更广阔的城市视角,整合周边所有的环境与元素,并与建筑结合,打造一个集服务配套、共享社交、智能便捷、生态自然于一体的公园里的“青年公社”。
以这样一个非传统型的商业环境,自然而然的将人与人、人与环境紧密地联系在一起,生根于城市,又反哺于城市。
新的设计愿景与功能定位,对建筑空间与环境的改造提出了挑战,如何有机整合地块内所有元素,活化空间,使得人、建筑、场地与城市更好地互联,是改造的首要问题。
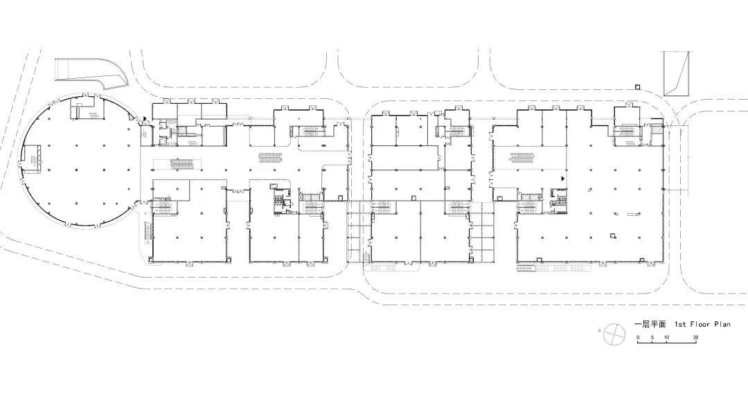
面对失活的空间,设计团队对外在湖塘河上增设景观桥,联系起大学城与生活广场,也通过这条串联城市能量与青春活力的重要纽带,加强地块的可达性,拉动两侧城市互联。
对内打通东西两侧的互动的通道,让空间流动并分区打造主题化公园,打破独立与陈旧的现状,营造商业和市民活动所需的不同氛围。
设计团队解析现有建筑的立面构成元素,升级沿街、沿河的形象展示面,并打造“第五立面”,让项目呈现360度的美。
在对成本把握不明的情况下,设计团队用开放的思维,对项目进行了不同程度的改造尝试,为业主提供了更直观的比选思路。
以像素云的概念,用最小的拆改,最大的利旧,融合建筑与景观。
“掀起”表皮打造彩虹巨幕与步行通廊,景观以雨水坠落晕出的水纹为灵感,生动活泼。
在业主确定了轻改造的方向后,设计团队在“云公社”的基础上进一步打磨,完成了最终的实施方案——共享立方。
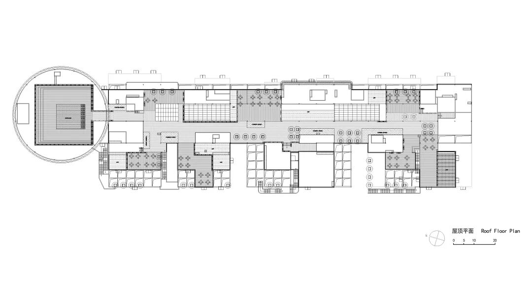
为了打破东西两侧空间的割裂,我们将建筑底层架空,使空间融合互动。现状管线密布的屋面,在抬高地坪后被打造成充满活力的屋顶花园。
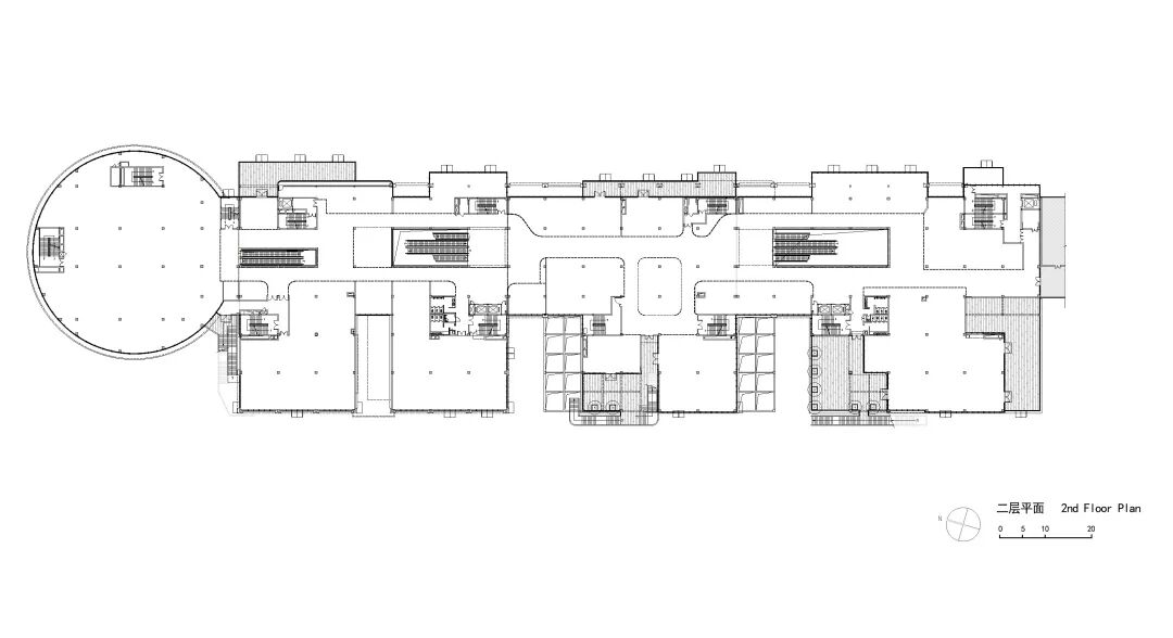
在建筑造型上,我们从原有建筑的设计手法中提取立方元素,并结合东侧商办建筑的立面构成,利用现状仅有装饰功能的格网结构,用柔和的“加法”嵌入不同主题的盒子。错落穿插的体块自然地形成了丰富的退台,让整个空间生动趣味。
入口的商业广场,建筑两侧的休闲广场,营造了优质的商业氛围;沿街的运动公园与滨水的休闲带,一动一静,满足市民不同的休闲需求,带来多样化的场所体验。
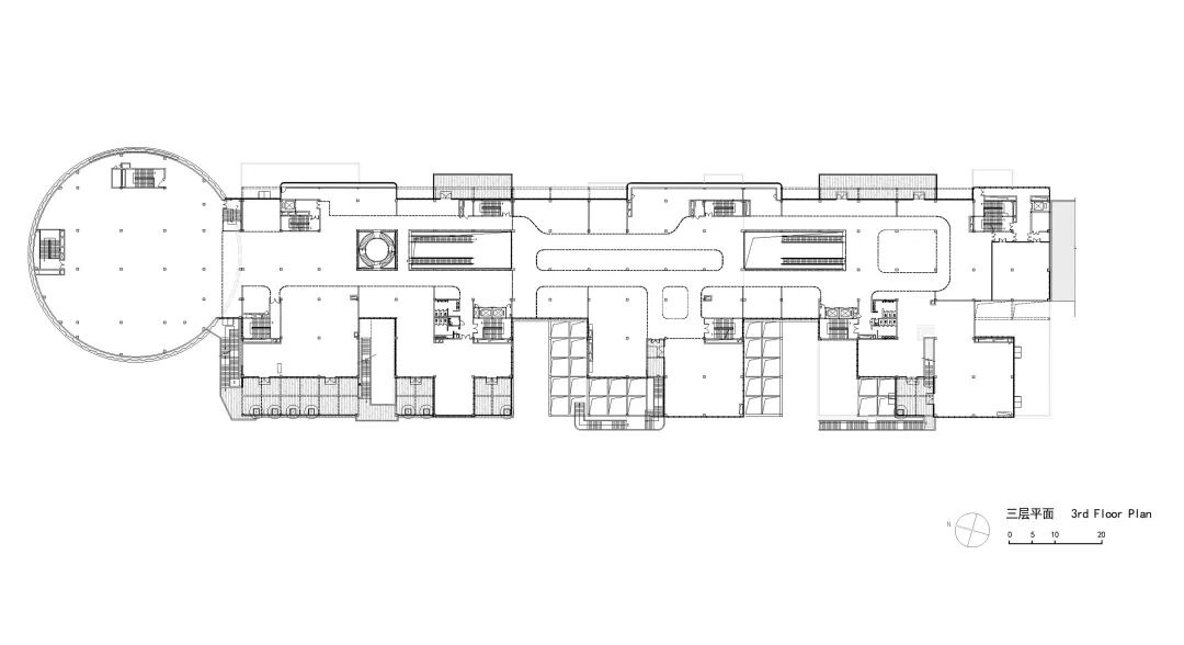
马赛克式的地面图案铺装,用像素化的设计语汇回应并强化了建筑的造型与立面。
室内设计延续“共享立方”的设计元素,并以“活力魔方”和“共享魔方”为主题,重点打造两个中庭空间,营造潮流活力的商业与社交氛围。
在510生活广场改造的设计实践中,我们坚守着既是设计师又是使用者的初心,用有温度的“共享立方”,打造公园里的“青年公社”,为片区间增加互联纽带,为城市打造崭新名片,让人与城共生共享、互动互助。
方案设计团队:梁泽渊、张皖莉、米合来木·艾克热木、郭嘉城、孟丹、董超、余卿、钱韵
施工图设计:刘攀、李健、环华兵、王豪、原慧智、李腾飞、张真、史振华、管吉庆、周金鹏、吴同、张倩
室内设计:陈思南、潘学锐、李艳红、张兵、李莹、花鑫莲
景观设计:马宾、孙振越、段闪闪、李娜、曹可鑫、刘东、苏妮、陈美玲
▼ 更多精品·点击关注
本资料声明:
1.本文为建筑设计技术分析,仅供欣赏学习。
2.本资料为要约邀请,不视为要约,所有政府、政策信息均来源于官方披露信息,具体以实物、政府主管部门批准文件及买卖双方签订的商品房买卖合同约定为准。如有变化恕不另行通知。
3.因编辑需要,文字和图片无必然联系,仅供读者参考;
推荐一个
专业的地产+建筑平台
每天都有新内容
扫描二维码关注

微信公众号“搜建筑”(ID:sjz9999)
合作、宣传、投稿
联系微信:soujianzhu006
阅读原文:“GEN”更多精品