▲ 更多精品,关注“搜建筑”
江南一梦
琴湖溪里商业中心
DDB秉仁设计
项目背景
七溪流水皆通海,十里青山半入城
虞城枕山麓,七水流如弦。昔人肇嘉名,千古称琴川。常熟,古称“虞城”、" 琴川",作为历史文化名城,城市依山傍湖而起,琴川河穿城而过,山、水、城一体,集自然风景与人文古迹于一城间。琴湖溪里商业中心项目位于常熟市新老城交接处,处于虞山和琴湖的湖山之轴视线通廊上,东临琴湖,遥望虞山,景观资源丰富。设计从城市视野考虑整体规划布局,打通从虞山到琴湖的视线通廊与联系新老城的湖山之轴,打造一处文化时尚、精致现代的城市客厅。

▲ 东临琴湖,西望虞山 ©王健Mikewang

▲ 区位分析 ©DDB秉仁设计
总体设计
戏游双岸不知处,坐看湖山两相连
项目以商业逻辑为线索展开全面设计。基地由东西两块割裂的场地构成,针对两个地块外部条件及商业价值上的不同,设计遵循用地各自特性及土地价值最大化的原则,采用和而不同的设计策略。整体规划及建筑形态上,注重统一而有联系的特性,根据地块特质进行各地块内的业态布局。

▲ 全景图 ©王健Mikewang
项目定位为体验型主题商业街区,通过环形主动线串联两个地块,结合湖山之轴与商业广场设置视线通廊,链接各个广场与院落间的商业活动,友好互动滨湖景观资源,激发商业活力。


▲ 鸟瞰图 ©张全
业态布局
湖畔里街各成趣,一弯七弦舞天边
东西地块合理分布业态。西地块紧邻城市主干道,有较佳的城市展示性。设计以连续商业界面为主,突出城市界面,通过外摆及二层商业平台提升店铺溢价。院落式的商业街区结合不同层次的景观广场,解决了商业地块面积大与低密度、低容积之间的矛盾,提供更多元的商业购物公共空间体验,打造集精致零售、艺文影音、社交聚会、亲子游乐、生鲜超市为一体的商业核心区。地块设置连廊以及象征“琴湖七弦”的特色天幕贯穿商业街,适应全天候,提升商业价值的同时,提供标志性的城市形象。双首层的设计,无缝连接多层次的商业。

▲ 西地块天幕区连廊 ©张全

▲ 植入不同维度的公共空间 ©DDB秉仁设计

▲ 商业主广场 ©张全

▲ 商业内街 ©张全
东地块结合生态湖景资源引入休闲娱乐、活力社交、精致餐饮等业态。建筑以独栋的滨湖商业为主,通过体块错动,最大程度利用湖景资源,提升商业溢价,打造活力社交地。东西地块通过南北两条主要步行道路串联,并在中央的琴湖路界面打造休闲怡人的慢行街区体验。

▲ 景观视线分析与湖景资源利用 ©DDB秉仁设计

▲ 东地块独栋滨湖商业 ©张全

▲ 琴湖路界面 ©张全
以人为本的街道步行尺度,由西到东的步行动线,也是从城市商业空间慢慢过渡到滨水休闲商业空间再到滨水景观空间的过程,创造出多变丰富的空间体验。

▲ 商业内广场 ©张全
造型设计
一隅姑苏携画意,十里江南入城来
正如吴冠中先生作品中对江南传统建筑符号的提取,建筑外观的设计融入地域文化特色,将画中江南民居黑白灰的建筑文化进行抽象概括,辅以现代的立面拼贴手法,结合蕴含地域特色的现代材料进行演炼和提升,形成本案现代中式屋面与虚实相接的整体建筑造型。不同盒子的穿插咬和,在阳光下打造出丰富的体量与材料变化关系。通过不同大小、比例、组合关系的体块碰撞,在成本标准化控制的前提下,打造出整条街丰富的造型和浓厚的商业氛围。

▲ 抽象概括江南民居黑白灰的画中景 ©DDB秉仁设计

▲ 虚实相接、错落变化的整体造型 ©张全

▲ 虚实相接、错落变化的整体造型 ©张全

▲ 虚实相接、错落变化的整体造型 ©张全
重点区域的造型形态,则通过个性化差异化的设计,丰富空间层次,激活空间亮点。

▲ 重要节点打造 ©张全

▲ 重要节点打造 ©张全

▲ 主广场彩色背景墙 ©DDB秉仁设计
在常熟这座千年古城,在承载代代人记忆的琴湖之畔,项目从地域与建筑的本质出发,探讨空间、尺度、商业、造型的逻辑生成,根植于此时、此地、此人,创造出适时、适地、适人的琴湖新生活。

▲ 入口广场 ©张全

▲ 总一层平面图

▲ 总二层平面图

▲ 典型立面图

▲ 典型剖面图

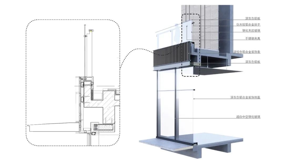
▲ 典型剖面分析

▲ 典型剖面分析

▲ 典型剖面分析
项目基本信息
项目名称: 常熟琴湖溪里商业中心
项目类型:商业
项目地点:江苏省常熟市
建筑事务所: 上海秉仁建筑师事务所(普通合伙)
事务所网站: www.ddb.net.cn
主创设计师: 马庆禕
设计团队:
方案深化阶段——滕露莹、彭智谦、林家豪、徐荣耀、张庭维、王梓如、陈金锋、陈腊梅
方案投标阶段——滕露莹、黄立妙、孟凡宇、黄紫璇、王欢、瞿子岚、张浩然、贺还瑀
业主/委托方: 常熟招商琴湖投资发展有限公司
建成状态:建成
设计时间(起迄年月):2018年-2021年
建设时间(起迄年月):2022年6月
用地面积(平方米):85,190平方米
建筑面积(平方米):84,260平方米
建筑施工图:扬州市建筑设计研究院有限公司
幕墙施工图:上海幕名工程设计有限公司
景观设计:上海栖城建筑规划设计有限公司
泛光设计:上海泓荧照明设计有限公司
室内设计:苏州金螳螂建筑装饰股份有限公司
摄影师:张全、王健Mikewang、DDB秉仁设计
本资料声明:
1.本文为建筑设计技术分析,仅供欣赏学习。
2.本资料为要约邀请,不视为要约,所有政府、政策信息均来源于官方披露信息,具体以实物、政府主管部门批准文件及买卖双方签订的商品房买卖合同约定为准。如有变化恕不另行通知。
3.因编辑需要,文字和图片无必然联系,仅供读者参考;
推荐一个
专业的地产+建筑平台
每天都有新内容
扫描二维码关注

微信公众号“搜建筑”(ID:sjz9999)
合作、宣传、投稿
联系微信:soujianzhu006
阅读原文:“DDB秉仁设计”更多精品

