由Cro&Co建筑公司设计的三一大厦是未来高层建筑的典范和宣言,通过重新连接用户和他们的环境,以福祉和可持续性为核心进行想象。三一大厦位于巴黎拉德芳斯商业区,是一座32层的高层建筑,建在一条七车道的道路上,这是一个令人印象深刻的土木工程壮举,也是法国的首例。除了46,000平方米的办公空间和4,000平方米的服务设施外,该项目还包括超过3,500平方米的公共空间,促进了整个开放性的互动,将各种以前互不相干的社区聚集在一起。
Designed by Cro&Co Architecture, Trinity Tower serves as a model and manifesto for the tall building of the future, imagined with well-being and sustainability at the heart through reconnecting users to their environment. Located in the Paris La Défense business district, Trinity Tower is a 32-story high-rise built atop a seven-lane roadway, an impressive feat of civil engineering and a first in France. Besides 46,000 m² of office space and 4,000 m² of services, the development includes over 3,500m² of public space, facilitating open interaction throughout to bring together various formerly disconnected neighborhoods.
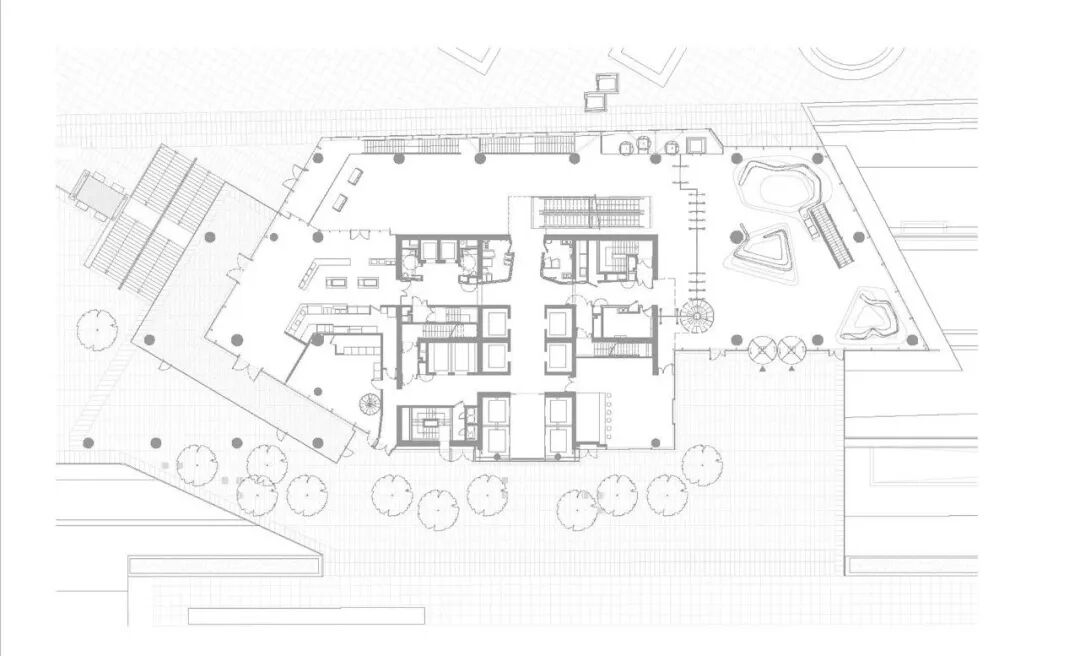
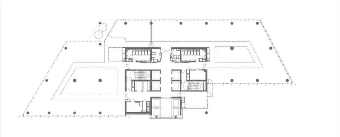
三一是拉德芳斯第一座开发了一个偏离中心的核心,一个 "生活的中心",外墙有玻璃墙的电梯;允许从外面看到建筑内的活动,让用户利用拉德芳斯的广阔景观。大型植被露台和社区空间位于电梯厅附近,作为临时的聚会点。在不同的楼层还增加了一系列其他的非正式社交区域。在塔楼的顶部,六层楼合并成三个复式楼,有连接的方便楼梯。25层有一个全景露台,一个大型会议室和一个健康中心,提供各种共享的设施和景观。
Trinity is La Défense's first tower to develop an off-center core, a "heart of life" with exterior glass-walled elevators in the façade; allowing for visibility of activity in the building from outside and for users to take advantage of the sweeping landscape views of La Défense. The large, vegetated terraces and the community spaces are located near the elevator lobbies working as improvised meeting points. A series of other informal social areas are added on different floors. At the top of the tower, six floors merge into three duplexes with connecting convenience stairs. The 25th floor has a panoramic terrace, a large meeting room, and a wellness center, offering various shared amenities with a view.
该塔楼共有1500平方米的室外空间(8个露台、12个木屋和23个阳台)。该项目也是一个可持续发展的典范。除了每层楼的种植露台外,三一大厦在每个第二立面网格中引入了生物气候玻璃立面和可操作的窗户,以创造内部和外部之间的互动。
它优先使用当地的低碳材料,包括低碳混凝土,其碳排放量比传统混凝土少30%。其他可持续发展的努力包括能源的再利用和对不同交通方式的激励,包括一个有200个车位的大型自行车室。
The tower has a total of 1,500 m² of outdoor spaces (8 terraces, 12 loggias, and 23 balconies). The project is also a model for sustainability. Beyond planted terraces on every floor, Trinity Tower introduced bioclimatic glass façades and operable windows in each second façade grid to create interaction between inside and outside. It prioritized the use of local and low-carbon materials including low-carbon concrete, which emits 30% less carbon than conventional concrete. Additional sustainability efforts include the reuse of energy and an incentive for different means of transport, including a large 200-space bike room.
三一处于建筑和城市化的交叉点。它的具体解决方案有助于将拉德芳斯的前单一功能的商业中心转变为一个网状的城区。3,500平方米的景观和公共空间将在其之后创建,连接Cnit和Coupole-Régnault社区并提供公共服务。
三一大厦此前已获得多个奖项,包括2022年设计大奖、2021年建筑大奖、2021年升值大奖和2020年SIATI大奖。CTBUH还在2021年认可了该建筑的城市人居环境--单一场地优秀奖。最近,三一大厦于2022年11月赢得了高层建筑和城市人居委员会(CTBUH)梦寐以求的最佳高层办公建筑奖。
Trinity is at the intersection of architecture and urbanism. Its concrete solutions contribute to transforming the former monofunctional business center of La Défense into a meshed city district: 3,500 m² of landscaped and public spaces will be created in its wake, linking the Cnit and Coupole-Régnault neighborhoods and offering public services. Trinity Tower has previously received multiple awards including the Grands Prix du Design 2022, Trophées de la construction 2021, Trophées de l’Ascenseur 2021, and the Prix SIATI 2020. CTBUH also recognized the building in 2021 with the Urban Habitat - Single Site Award of Excellence. Most recently, Trinity Tower won the Council on Tall Buildings and Urban Habitat’s (CTBUH) coveted Best Tall Office Building Award on November 2022.
本资料声明:
1.本文为建筑设计技术分析,仅供欣赏学习。
2.本资料为要约邀请,不视为要约,所有政府、政策信息均来源于官方披露信息,具体以实物、政府主管部门批准文件及买卖双方签订的商品房买卖合同约定为准。如有变化恕不另行通知。
3.因编辑需要,文字和图片无必然联系,仅供读者参考;
推荐一个
专业的地产+建筑平台
每天都有新内容
扫描二维码关注

微信公众号“搜建筑”(ID:sjz9999)
合作、宣传、投稿
联系微信:soujianzhu006