Soiva--意思是共鸣或音乐--是一座制作音乐的建筑。它有两所音乐学校,教授节奏音乐和古典音乐。这些机构为儿童提供游戏学校,并为业余爱好者和专业学生提供教育,范围包括器乐和声乐以及音乐技术和制作。
Soiva – meaning resonant or musical – is a building for making music. It houses two music schools teaching rhythmic and classical music. The institutions provide playschool for children and education for amateurs and professional students ranging from instrumental and vocal music to music technology and production.
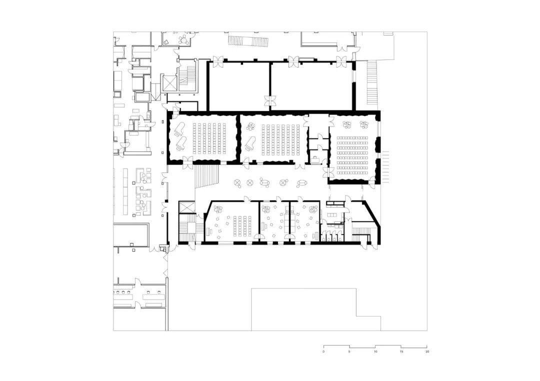
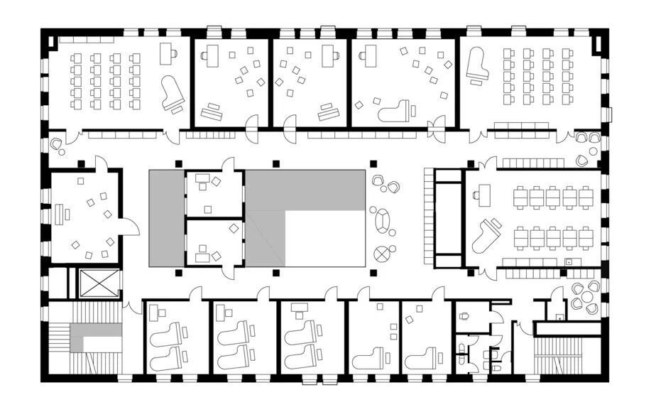
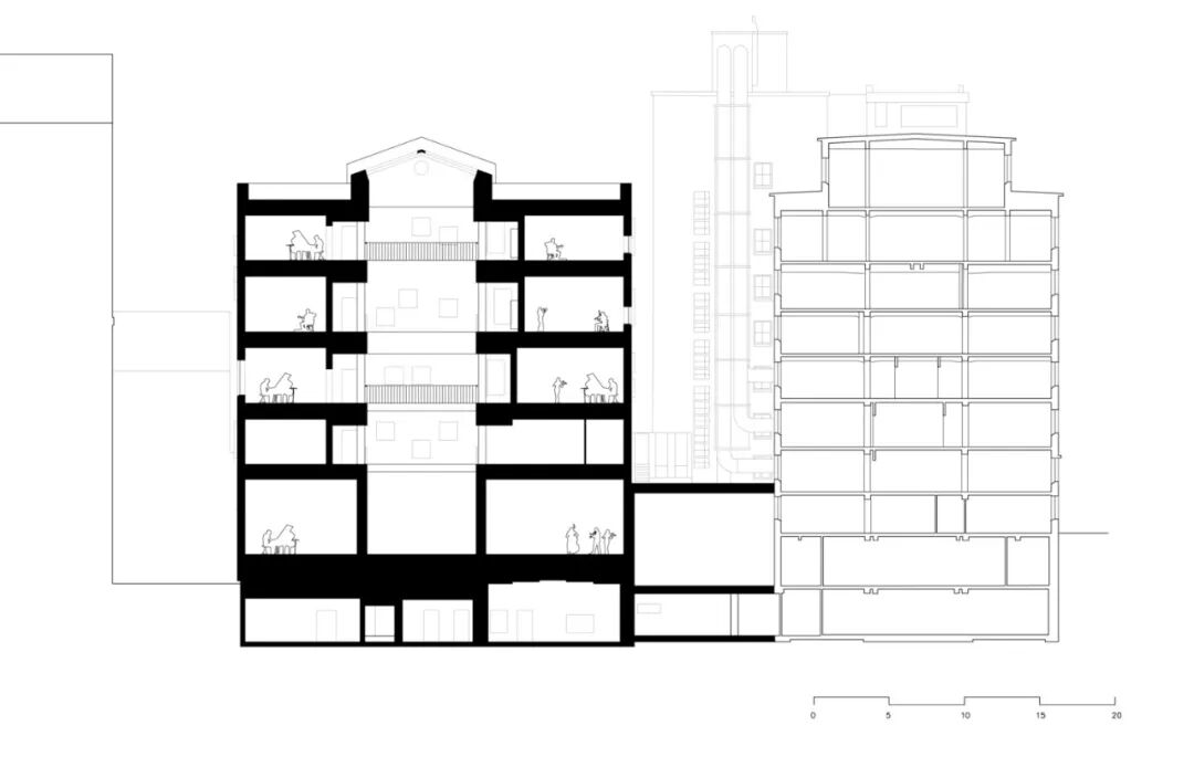
在与用户的合作中,Tommila建筑事务所将建筑组织起来,以满足来访者和各种常规用户的需要。五层楼的所有空间都通过一个中央中庭整合在一起。一楼大厅兼作门厅,具有深色和泥土质地,与上层和私人楼层相比,像更深的低音频率,其外观更明亮、更柔和、更舒适。
In collaboration with the users, Tommila Architects organized the building to cater to both visiting audiences and various regular users. All spaces across five stories are integrated via a central atrium. The ground floor lobby doubles as a foyer and has dark colors and earthy textures, like deeper bass frequencies in comparison with the upper and more private floors, which have a brighter, softer, and cozier appearance.
休息室和排练室在中庭上架起了桥梁,创造了一个多面的公共空间,自然光流经这里。这种安排鼓励了休闲会议和建筑内两所学校之间的共同感。
Lounges and rehearsal rooms bridge over the atrium, creating a multifaceted common space, through which natural light flows. The arrangement encourages casual meetings and a sense of commonality between the two schools in the building.
学习空间被安排在建筑的周边,享受着充足的日光和地平线上的美景。隔音设施经过调整,使建筑物没有噪音,但并不安静;人们几乎可以听到门外的声音。这为学习音乐创造了最重要的宁静环境。
The learning spaces are arranged around the building’s perimeter, enjoying ample daylight with vistas to the horizon. Sound-proofing is adjusted so that the building is noiseless but not silent; one can just about hear through doors. This creates the all-important serenity for studying music.
地下室的洞穴式工作室设计新颖。几个监控和编辑室聚集在记录空间周围,因此它们可以以不同的组合同时使用,这在教学方面是开创性的。上面音乐厅的音乐会也可以在这里录制。
Cavernous studios in the basement are innovatively designed. Several monitoring and editing rooms cluster around recording spaces so that they can be used simultaneously in various combinations, which is ground-breaking in pedagogy. Concerts in the performance halls above can be also recorded here.
建筑的立面和内部暗示了音乐流派:摇滚乐的黑色和古典乐器的黄铜。黑色砖墙的开窗节奏与音乐符号相呼应,使每个房间都独一无二。一个演出大厅通过一扇巨大的窗户面向街道,让音乐融入城市肌理中。
The facades and interiors allude to music genres: the black of rock’n’roll and the brass of classical instruments. The rhythm of the window openings in the black brickwork echoes musical notation, making each room unique. One performance hall opens to the street through an enormous window, making music present in the urban fabric.
Soiva是历史悠久的阿拉伯陶瓷厂的附属建筑,它曾经是欧洲最大的生产商,并以其设计而闻名国际。制造业已经停止,但设计和文化占主导地位。Soiva与翻新后的工厂内的创意研究校园相连,并共享其设施。Tommila建筑事务所设计了整个校园。
Soiva is an annex to the historic ceramic factory of Arabia, once the largest producer in Europe and internationally known for its designs. Manufacturing has ceased but design and culture prevail. Soiva connects to a campus of creative studies within the refurbished factory and shares its facilities. Tommila Architects has designed the entire campus.
本资料声明:
1.本文为建筑设计技术分析,仅供欣赏学习。
2.本资料为要约邀请,不视为要约,所有政府、政策信息均来源于官方披露信息,具体以实物、政府主管部门批准文件及买卖双方签订的商品房买卖合同约定为准。如有变化恕不另行通知。
3.因编辑需要,文字和图片无必然联系,仅供读者参考;
推荐一个
专业的地产+建筑平台
每天都有新内容
扫描二维码关注

微信公众号“搜建筑”(ID:sjz9999)
合作、宣传、投稿
联系微信:soujianzhu006