▲ 更多精品,关注“搜建筑”
中国产业园经过近40年的发展,从最初的工业园区演变到了到如今的产业园区。
产业园区作为产业高密度集聚之地,与地方经济发展密切相关,是发展高新技术产业、促进产业集聚的重要平台,已经成为各地区域经济发展的重要助推器。
但是受片面追求经济快速发展模式的影响,当前的产业园区普遍存在内生增长动力不足、产业集群程度不深、资源利用率不高、环境破坏、产城融合步伐缓慢、园区配套设施不足、园区建设形象低端等严重制约着园区经济可持续发展的问题。
所以,产业园区的转型升级已迫在眉睫,必须以产业集聚、产城融合、功能完善、绿色生态、智能数字园区建设为导向加快园区转型升级步伐。

实景图
下面,我们来具体盘点一下产业园区未来发展的主要方向。
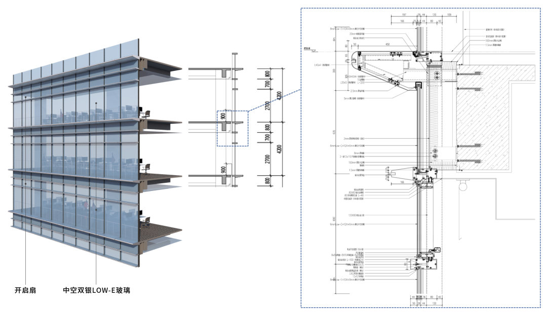
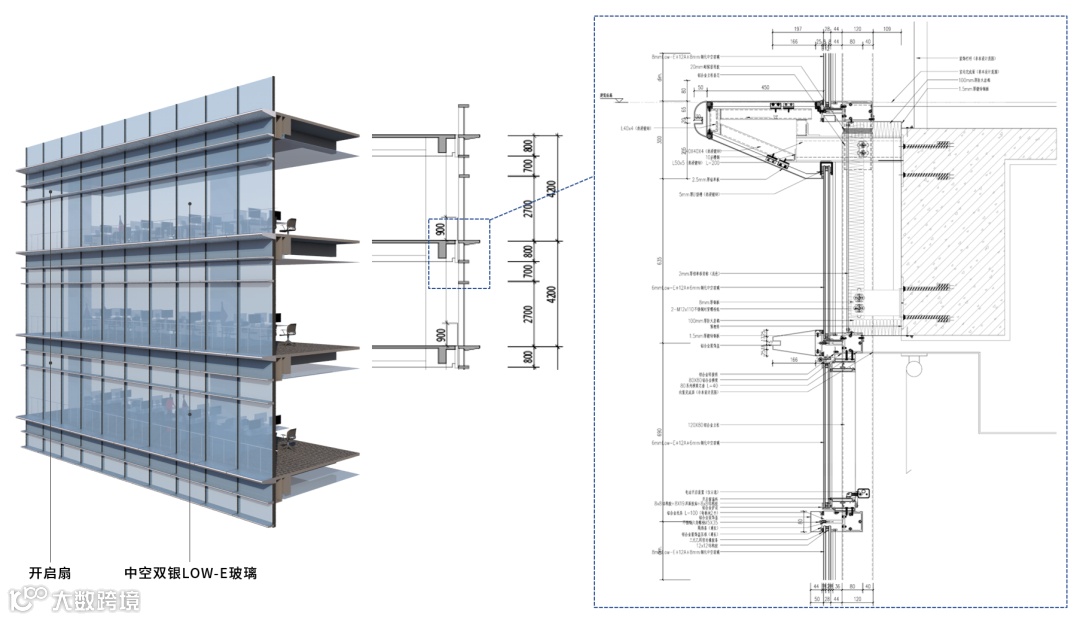
园区形象创新,逐渐现代化
产业园区的外立面设计在很大程度上决定了园区的品质和颜值。
一般来说,传统产业园区立面形态单一,大多以标准厂房为主,建筑冰冷呆板。而在当下既要实用又要好看的时代,如何全方位考量立面设计兼顾经久耐用和美学体验,是所有设计师应不断发力的方向。
如杭州开源智慧网谷–顺丰创新中心的立面由国际知名设计事务所Gensler参与设计,为建筑创造极具未来科技感和律动变化的现代表皮。

实景图 ©此间建筑摄影
以飘带式的设计,将“水”为核心的开源文化再次升华,抽取精髓成为建筑的灵感,在不同角度和时间,呈现出不同的颜色以及“S”型的水波纹动态变化。
让建筑不再是传统印象中冷冰冰的钢筋混凝土构筑物,而是能够具有韵律感的与周围环境融于一体。

实景图 ©此间建筑摄影
体块圆角处理及流畅的水平线条,首层入口大堂大面积的落地安全玻璃,形成完整、连续的入口立面,兼顾功能与造型,使建筑在自然环境中成为城市景观的一部分。

实景图 ©此间建筑摄影
再比如招商蛇口杭州运河网谷项目,塔楼建筑采用横明竖隐的幕墙形式,结合倒角的形体设置横向飘板。层间第二条杆件在强化中部阴影关系的同时,考虑灯光的隐藏设置,实现整体的简洁感。

塔楼实景图 ©曾天培

塔楼立面节点示意
转角则以简洁的金属线条与干净玻璃幕墙为主,强调纯粹、通透、面向未来的建筑气质。

独栋实景图 ©曾天培
独栋建筑采用虚实结合的立面方式,强调了建筑体量感的同时弱化独栋之间的对视,实面主要以格子形态处理,为保证格子体量的纯粹简洁,开启扇采用隐藏式处理方式。

实景图 ©曾天培

独栋立面节点示意
外面设置香槟金色穿孔板,内侧设置内平开窗,保证正常使用时,立面的完整性。
高低两个层次的天际线,搭配着不一样的立面,形成与传统集群造型不同的建筑语言,从而产生一个新的标志性集群建筑。

实景图 ©曾天培
且项目立面设计均采用模数化,保证整个项目落地的精细化。同时为确保幕墙上墙效果,设置异地样板段比选,通过多轮制作对比,确定玻璃及材料颜色型号,以及未来幕墙拼接形式,来达到预期效果。
XPACE湾区数字公园的立面造型选用了参数化设计方法,以动态统一的立面语言设计整合两幢旧厂房建筑的外观。

实景图 ©金伟琦
在具体的立面处理中,设计师营建了富有光影效果、且经济的铝板百叶立面景观,包裹于原建筑外立面。

实景图 ©金伟琦
新建的百叶立面通过反射、折射阳光,在建筑立面呈现了波光粼粼的动态视觉体验。同时,百叶立面为室内提供柔和的侧向光源,也满足了数字化办公模式所要求的直射光源控制要求。

实景图 ©金伟琦
“包”治百病的铝板百叶立面语言具有如下优势:
· 铝板百叶由工厂预制,工厂预制的流程和项目其它部分的改造同步进行,从而缩短工期、节约时间
· 百叶采用外挂的方法,减少对外立面的破坏
· 立面通过百叶和弧线的形式语言可以形成一种视觉动势,引导视觉,平衡两座厂房的高差问题,通过这样一抑一扬的手法,同时可以调整两个大体量视觉比例
· 连贯的弧线形式语言可以将两个体量连接在一起
· 百叶有利于解决采光问题,原工厂建筑对采光要求不高,使用百叶有控制阳光和遮阳作用

数化整体立面形式语言和操作系统图系列 ©STUDIO QI
园区“产城融合”,逐渐多元化
在当下的经济时代,传统产业园区已成为过去式,想要实现产业发展与城市规划相互促进,必须由原来的单一运营模式向“产城融合”模式发展。
因此,产业园要做到空间更开放、企业生态更多元、社群交流更活跃,不再是单独的个体,而是城市规划配套符合产业发展,产业规划发展嵌入城市发展,形成产业与城市高度融合,相互促进,共同迈向高质量发展。
如杭州西子智慧产业园的开发,设计师所提出的整体规划目标为:不局限于提供一个产业的容器,而是融合多种功能为一体,塑造一个综合的社区。

实景图 ©shiromio studio
功能的丰富、尺度的合宜、密度的适中是着眼点。

功能轴测图 ©goa大象设计
整片21.5公顷的土地分三期启动建设,具有丰富的功能业态。一期容纳智能制造中心、研发中心、创意办公、艺术中心等;二期容纳仓储式超市、集中式商业、停车楼;三期建设复合时代所需要的中试车间等。
实景图 ©goa大象设计
首先是杭锅旧厂房更新设计,一是在其中置入商业业态及基础配套,激发土地价值、服务周边区域;二是在保留工业建筑氛围的同时对“尺度”进行转换,使之成为真正宜人的商业空间。
最终置入功能包括约2万㎡的山姆会员店、3万㎡的集中式商业及2.7万㎡的停车楼。

交通便利、尺度宜人的商业空间 © goa大象设计

实景图 ©goa大象设计
其次是研发园区,建筑师试图在公共空间格局、建筑形态、景观层次等方面实现一种更为有机的状态,作为对产业空间“城市性”的探索。

研发园区与艺术中心鸟瞰 ©shiromio studio
园区之中,建筑与花园交错。组团花园如同大小各异的细胞,步行道如同毛细血管串联其中。花园尺度以50m见方为基本规则进行延伸,方形、椭圆形、L形等有机的形式映射不同的院落氛围。

研发总部 ©shiromio studio

研发总部入口 © shiromio studio
人车分流的地面上,15m见宽的街道、4m的园区主路及2m的花园小径构成丰富的步行层次。建筑二层以下以连廊、雨棚提供灰空间,满足人的停留需要。

实景图 ©shiromio studio
高层建筑位于沿街,为研发中心及智能制造中心;5层左右的独栋研发总部及更为低矮的创意办公位于内侧,空间上形成高低层次。

实景图 ©goa大象设计
在存量工业用地之上,建筑师同开发商、政府携手共谋,平衡经济利益的开拓、场所文脉的延续、公众利益的兑现三者的关系,实现了一座综合性的产业社区。随着城市化的加深,这一片区的发展进程还在被继续谱写。
园区宜产宜居,逐渐生态化
绿色与自然走进产业园区,是产业的进步与城市自然环境的融合,从企业发展的角度看,更加绿色生态的办公环境给予使用者更多与自然接触的空间,缓解精神与压力,促进人与人的连接,也有助于工作效率与企业效率的整体提升,更加深了园区与企业的粘性。
深圳碧桂园凤凰智谷的外立面简洁挺拔,采用玻璃幕墙与竖线条遮阳板,给人以清爽高效的整体印象。

实景图 ©ACF域图视觉
但最大的亮点是内立面低维护的垂直绿化。
楼层边缘和退台边缘,出挑通长的绿化种植池,栽种勒杜鹃、君子、龙吐珠等易于打理的本土藤本植物,塑造郁郁葱葱的建筑表面。

实景图 ©ACF域图视觉
垂直绿化采用模块式工艺,模块具有独立的九宫格种植穴,可防止基质下沉,植物更换简单快捷。模块内置农用岩棉,可极大增强根系延展空间以及基质的蓄水能力,为植物提供最适宜生长的气水比。

实景图 ©ACF域图视觉
随着春夏秋冬四季变换, 立面会呈现出变化不同的效果,整体凸显绿色低碳的理念。

垂直绿化结构剖立面图 ©深圳风会云合生态环境有限公司
还有湖北武汉的小龟山金融文化产业园,由电建厂改造而来。

两轴、三心、多节点©迈丘设计
整体框架围绕“两轴、三心、多节点”,形成“金融景观主题轴线和景观空间轴线”,以“龙门秀场、文化广场、小龟山森林公园”为中心,衔接南入口广场、北入口广场、办公花园等节点空间。

实景图 ©HOLI河狸景观摄影
龙门秀场 · 中央公园,是一个东西长约130米,南北宽约45米的长方形空间,现状空间平整、开阔,龙门吊孤立在场地中,烘托氛围。

实景图 ©HOLI河狸景观摄影
“金融之眼”空中栈道以螺旋构架形态创造立体的景观氛围,多个景观序列节点的结合,让龙门秀场成为一个多元化、可运营的艺术活动场地,交流、聚会、音乐PARTY,生活的各种想象皆可容纳,这里成为整个园区的活力之心。

实景图 ©HOLI河狸景观摄影
小龟山森林公园,是这个项目的生态之心。设计师还原山体坡地,打造不同高差的公园绿地,阳光草坪、富氧林荫与办公园区衔接在一起,让人们得以再次拥抱小龟山。
园区智慧管理,逐渐数字化
新一代的产业办公应抓住数字经济带来的机遇,倚重科技、互联网、大数据的发展,加速园区智慧化的突破,实现园区产业结构高端化,推动数字经济与实体经济融合发展形成具有国际竞争力的产业集群。
比如数字江海基地,该园区位于上海奉贤新城核心区域,这座“未来之城”,将以5G、大数据、云计算、人工智能、物联网等为核心内容,推动数字产业集群聚集,构建产业发展的数字化平台,为奉贤区的既有优势产业赋能,全力打造数字化转型的创新示范区。

效果图 ©SOM
该园区将利用数字化城市管理平台实现未来城市的高效运作与科学管理。园区运营以 “数字底座”为核心管理平台;实现无人工程、工业互联网、线上产业孵化器,以及智慧交通等产业及基础设施数字化场景。

数字化城市管理平台示意图 ©SOM
结合奉贤区智能网联产业的先发优势,园区内将率先实现客货分流、人车分流、分时管控的智慧交通系统。

融合绿色交通+城市服务的智能网联公交系统 ©SOM
作为智能网联汽车综合测试示范区,未来园区的使用者可通过智能网联公交系统,按需呼叫无人驾驶,自动巡航的公共交通工具,联系地铁站、BRT站或周边主要的办公及生活目的地。
再比如成都独角兽岛,它的目标是扶持、孵化全球范围内具有发展潜力的“独角兽”企业。(独角兽是指:成立时间不超过 10 年、估值超过10亿美元的未上市创业公司。)

效果图
整个园区的业态涵盖了商业、办公、酒店、公园、高端公寓、高端住宅以及配套幼儿园等。
整个园区运用5G技术、智慧城市、扩增实境、人工智慧 、自动驾驶等几大前沿技术,智能化的管理,形成高效、便民的智慧政务系统。
园区创意主题,逐渐特色化
产业园的设计需要传承中国味道,留住文化根源,找出本土文化向前继续发展的内需动力,打造具有鲜明文化形象并对外界产生一定吸引的核心竞争力,形成产业特色化和差异化。
如深圳粤港澳青年创业区一期,设计师以开放、多元的姿态,塑造出中国传统山水画的意境,使“山峦”“陆地”“流水”三者间自然和谐的交织流动,带动城市客厅区域活力。

实景图 ©张超

源自中国传统山水画的灵感©RSHP
整个项目呼应粤港澳岭南地域特色,融合中国园林的空间布局,并以高技派建筑风格,打造出引领湾区、实现青年科技创新创业梦的复合型科创基地。

规划布局 ©RSHP

园区从唐长安城的规划中吸取灵感,提出新型、对外开放式“里坊制”街区模式,强调通透的轴线关系,同时提炼岭南园林布局形式,建筑成组成群地围合着一个大庭园,园内的空间像小街坊一样穿插组合,整个园区宛如岭南传统园林的现代诠释。

© 罗灿辉
同时,方案从中国传统岭南建筑中提取设计元素:骑楼、走廊、水景庭院,调节园区微气候,实现绿色生态友好节能园区。

© 罗灿辉
公共空间的方案设计提取岭南村落传统空间结构,结合现代办公的空间功能,通过结构的提取与剥离,打造一个承载岭南文化延续,公共开放的多元城市空间。
还有桂林的十如,因受到桂林山水的启发,吕元祥建筑师事务所RLP将建筑与自然地貌相融合,打造了一座最大限度展示中国山水文化、并与最新工业概念相结合的产业园区。

实景图 ©存在摄影
设计师通过研究广西当地民俗文化,发现古朴的村落民居大面积使用青砖灰瓦,竹藤在家家户户中更是随处可见。

实景图 ©存在摄影
于是,设计师在建筑的外表面采用当地特有的青砖和回收的竹条,不仅用“工字砌法”致敬民间的传统手工艺,更通过“变废为宝”实践可持续发展的环保理念。


实景图 ©存在摄影
除青砖墙体之外,建筑师又加上了一层渐变的半通透“竹帘”。尤如一道窗纱使得砖墙结构若隐若现,既与遍布四周的花草树木轻易融合,又柔化了横向展开的庞大建筑体量,使工厂在自然环境中显得和谐而谦卑。

实景图 ©存在摄影
本资料声明:
1.本文为建筑设计技术分析,仅供欣赏学习。
2.本资料为要约邀请,不视为要约,所有政府、政策信息均来源于官方披露信息,具体以实物、政府主管部门批准文件及买卖双方签订的商品房买卖合同约定为准。如有变化恕不另行通知。
3.因编辑需要,文字和图片无必然联系,仅供读者参考;
推荐一个
专业的地产+建筑平台
每天都有新内容
扫描二维码关注

微信公众号“搜建筑”(ID:sjz9999)
合作、宣传、投稿
联系微信:soujianzhu006

