VenhoevenCS为伊拉斯谟大学设计的能源中立的体育场馆。鹿特丹Woudestein校区的体育大楼启用。体育馆刺激了鹿特丹伊拉斯谟大学Woudestein校区的社会和健康的学生生活。VenhoevenCS建筑+城市主义设计了这个体育综合体,通过在一个紧凑的地块上堆放体育场馆来容纳50多项运动。该综合体的功能是能源中立的,活泼的公共内部是由循环收获的、再利用的材料制成的。贯穿建筑的中轴线同时具有目的地和交通的功能,是一个真正的物理和社会连接器。体育大厦在今年秋天正式开放。
Energy-neutral sports complex by VenhoevenCS for Erasmus University. Sports Building on Campus Woudestein Rotterdam opened. Sports Building stimulates social and healthy student life at campus Woudestein of Erasmus University Rotterdam. VenhoevenCS architecture+urbanism designed this sports complex to accommodate over fifty sports by stacking the sports hall on a compact plot. The complex functions are energy-neutral and the lively public interior is fashioned from circularly harvested, re-used materials. The central axis through the building functions as destination and transit at the same time and is a true physical and social connector. Sports Building was officially opened this fall.
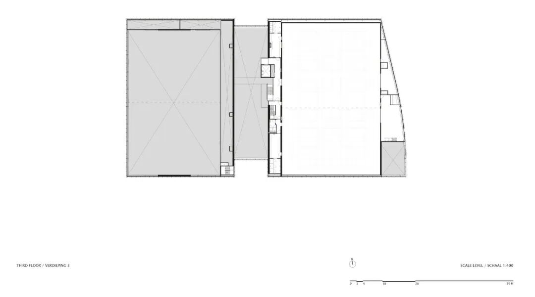
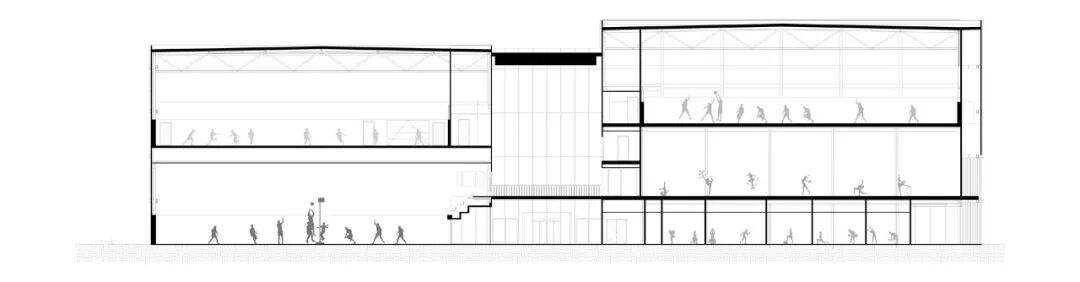
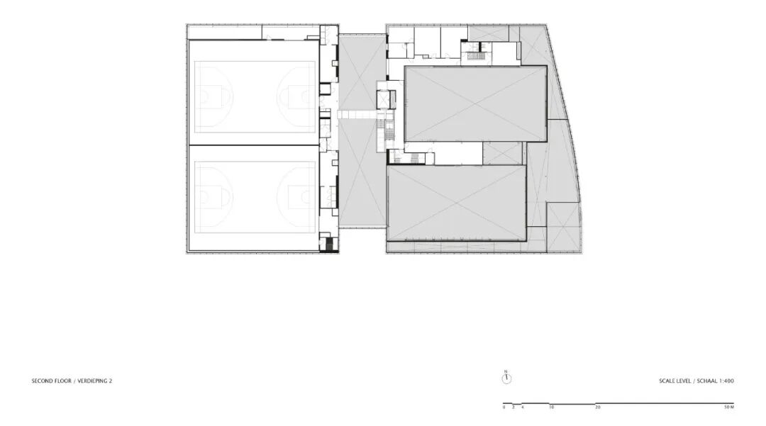
游戏开始! 鹿特丹伊拉斯谟大学的新体育大楼是一个训练和比赛设施;一个供大约11000名学生、同事以及顶级运动员锻炼和进行团队运动的场所。体育大楼是大学Woudestein校区的入口。在尊重校园布局的前提下,我们在紧凑的地块上安排了所有的体育设施,将它们组织成堆叠的 "体育盒子"。这些盒子形成了两个体量,相互之间略有偏移,由公共核心区连接。
Game on! The new Sports Building of the Erasmus University in Rotterdam is a training and competition facility; a venue for about 11.000 students, colleagues as well as top athletes to work out and play team sports. Sports Building marks the entrance of the University’s Campus Woudestein. Respecting the campus layout, we arranged all sports facilities on the compact plot by organizing them in stacked ‘sports boxes’. The boxes form two volumes, slightly offset from each other, connected by the public core.
这个公共区域将功能、运动和运动员以及校园的两边联系起来。"内街真的是一个真正的物理和社会连接器;光线充足,高度较高,有楼梯和人行道,有很多绿色植物,当然还有一个酒吧。从这里看,所有这些爱运动的学生的景色真的鼓励人们参与进来"。 - 曼弗雷德-万辛克,建筑师,以及合伙人-董事VenhoevenCS。透明度和韵律。体育大厦由玻璃和铝皮包裹,水平衔接和垂直鳍状物的相互作用形成了多种节奏。
This communal area links functions, sports, and athletes, as well as both sides of campus. “The inner street really is a true physical and social connector; light, high, with stairs and walkways, lots of greenery, and of course a bar. From here, the view on all these sporty students really encourages participation.” - Manfred Wansink, architect, and partner-director VenhoevenCS. Transparency and rhythm. Sports Building is enveloped by a glass and aluminum skin with an interplay of horizontal articulation and vertical fins in multiple rhythms.
建筑群略微弯曲的东面立面以全高的玻璃角打开。另外,中央通道的两端都是纯玻璃的。当然,这种透明性最大限度地增加了视野,实现了室内外的平滑过渡,并允许日光进入;它也标志着热闹的地点:公共功能,在街道层面和上面,加上不需要封闭大厅的体育活动。
The slightly curved eastern façade of the complex opens with a full height glass corner. Also, both end ends of the central passage are glass-only. Of course, the transparency maximizes views, enables a smooth indoor-outdoor transition, and allows for daylight to enter; it also marks the lively spots: the public functions, on street level and above, plus the sports activities that do not require a closed hall.
重建生态系统。由于VenhoevenCS和伊拉斯谟大学在可持续发展和能源消耗领域的雄心壮志,该建筑的功能是能源中立,这是一个日益紧迫的条件。所有的设施都是为了捕捉、保留、交换和再利用水和太阳能;并尽量减少其使用。这些是VenhoevenCS所有设计的主导原则,如巴黎2024年的水上运动中心和Lokeren的新体育场馆(BE,2023年)。此外,我们用从循环拆迁中收获的建筑材料塑造了公共内部。
Rebuild ecosystems. Due to high ambitions in the field of sustainability and energy consumption, shared by VenhoevenCS and Erasmus University, the building functions energy neutral, an increasingly urgent condition. Full facilities are built in to capture, retain, exchange and reuse water and solar energy; and to minimize its use. These are leading principles for all VenhoevenCS designs, like the Aquatics Centre for Paris 2024 and the new sports complexes in Lokeren (BE, 2023). Furthermore, we shaped the public interior from building materials harvested from circular demolition.
例如,泽斯特(荷兰)的一个前青少年拘留中心的金属板再次发挥了天花板的作用,我们让埃因霍温技术大学馆的1100平方米的木地板获得了新的生命,成为内街的外墙板。通过强调这种再利用,我们的目的是让社会参与并激励这个学生群体为循环经济作出贡献。
For example, metal panels from a former juvenile detention center in Zeist (NL) once again function as a ceiling and we gave 1,100m2 of wooden floors of the Technical University Eindhoven pavilion a new life as facade panels that characterize the inner street. By underlining this reuse, we aim to socially engage and inspire this community of students to contribute to the circular economy.
建筑师:VenhoevenCS
地点:荷兰
面积:8800 m²
年份:2022
本资料声明:
1.本文为建筑设计技术分析,仅供欣赏学习。
2.本资料为要约邀请,不视为要约,所有政府、政策信息均来源于官方披露信息,具体以实物、政府主管部门批准文件及买卖双方签订的商品房买卖合同约定为准。如有变化恕不另行通知。
3.因编辑需要,文字和图片无必然联系,仅供读者参考;
推荐一个
专业的地产+建筑平台
每天都有新内容
扫描二维码关注

微信公众号“搜建筑”(ID:sjz9999)
合作、宣传、投稿
联系微信:soujianzhu006