▲ 更多精品,关注“搜建筑”
河南·嵩县三馆合一建设项目
王晖建筑工作室
▲视频:嵩县三馆12秒 ©王晖建筑工作室
嵩县三馆合一建设项目位于伊河对岸的新城。在不足9000㎡的基地上,承载了博物馆、档案馆和规划馆等主要功能,地上建筑面积1万㎡,容积率高达1.14,对于文化建筑来说用地极为局促。同时这幢建筑又是县内第一座综合性文化设施,发挥着保存、展示嵩县的历史记忆与未来愿景的重要作用。

▲三馆近景 ©章鱼见筑

▲主入口 ©章鱼见筑
自然
对人类而言,自然环境的山水特征是亘古不变的存在,构成了世世代代的心象记忆。当地的“嵩县八景”就是这种共同记忆的结构化呈现,其中伊水秋声、七峰叠翠是新城所依傍的近水远山,因此,以抽象的方式回应周边的自然山水是让这座建筑锚固于此地的直觉选择。
Nature. For human beings, the natural landscape is everlasting and forms the historical scenery memory for generations. The Eight Scenes of Song County are the structured presentation of this common memory. Among the eight scenes, Stream Sound of Autumn and the Seven Peaks surround the new city. Therefore, responding to the natural landscape nearby in an abstract way becomes the intuitive choice in order to anchor the building in this place.

▲草图之一 ©王晖建筑工作室

▲东南方向 ©章鱼见筑
山与水的二元关系
设计中将“山”与“水”的二元关系与体量的虚实、空间的开合、功能逻辑等整合考虑,运用几何形体的组合获得一种较为抽象的表达。博物馆、档案馆等功能空间在外部构成了“山岳”,公共空间的玻璃顶如溪流从山体间奔涌而下,在两个方向分别覆盖了共享大厅与档案馆门厅。
The Duality of Mountain & River. The duality of the mountain & river is integrated with the emptiness & entity of volume, the opening & closing of space, and the logic of functions, and is expressed by the combination of geometric forms. The glass roofs of the public space are like streams rushing down from the mountains, covering the main hall and the foyer of the archives on two sides.

▲夜景俯瞰 ©章鱼见筑

▲山与溪 ©章鱼见筑

▲西北方向 ©章鱼见筑

▲东北方向 ©章鱼见筑

▲东南立面 ©章鱼见筑
溪山行旅
进入博物馆大厅后观者处于山体的包围之中,可以抬头透过屋顶看到高处的层峦叠嶂,以及屋顶下悬挑的巨石崔嵬。拾级而上,如在山谷间溯溪流行进,时而山重水复、曲折尽致,时而峰回路转、别有洞天。古人溪山行旅的意境与林泉高致的情怀,或能在游走中体验一二。
Traveling Among the Mountains and Streams. Upon entering the museum, visitors will be surrounded by mountains and boulders overhanging above the hall. They can trace the spatial flow of streams through the valley, with unexpected twists and turns. The mood and spirits of the ancient poet who glorify the mountains, streams, and forests, would be felt to some extent.

▲共享大厅 ©章鱼见筑

▲共享大厅 ©章鱼见筑

▲山径曲折 ©章鱼见筑

▲洞天与桥 ©章鱼见筑

▲“溪流”空间 ©章鱼见筑
“远山无脚”
“远山无脚,远树无根,远舟无身(只见帆),这是画理,亦造园之理”(陈从周《说园》)。三馆的底层体量虚化,四周环以柱廊和玻璃,将山体托举于其上,凸显群山的巍峨高远,与“远山无脚”的画意相合。
The Bottoms of Distant Mountains are Invisible. The bottoms of distant mountains, the roots of distant trees, and the hull of distant boats are invisible. It is the logic of painting and gardening. (Chen Congzhou, Talking about Gardens). Similarly, in the building the facade of the ground floor surrounded by colonnades and glass is set back, holding the majestic mountains above them.

▲上下与虚实 ©章鱼见筑

▲西面档案馆入口 ©章鱼见筑
传统“三合院”
嵩县当地传统民居一般为三合院,由正房和东西厢房(当地称“厦房”)构成,院落尺度相对宽敞,在冬季能获得更好的日照。三馆的空间布局可以看作一正一侧、一大一小两个三合院的组合,两个大厅是有玻璃顶的“庭院”,均直接进入,呼应了当地民居格局。
Traditional Courtyard. Local traditional dwellings in Song County are generally courtyards consisting of the main house and the eastern and western wings, which are relatively spacious and suitable for better sunlight in winter. The spatial layout of this project can be seen as a combination of such courtyards, with one on the front and another on the side. The two halls are glass-roofed, both of which are directly open to the outside, echoing the pattern of local dwellings.

▲当地村落与三馆底层平面 ©王晖建筑工作室
副阶周匝
沿街两面的底层向后退进形成连续柱廊,类似于古代建筑的“副阶周匝”。柱间的宽高比控制接近√2,根据清华大学王贵祥、王南等先生的研究,这是中国古典建筑最常用的比例之一。正面共享大厅及柱廊先前凸出半个开间,宛如 “抱厦”。如流水泄下的玻璃顶在主入口形成雨棚,柱头和屋面之间用钢构件比拟传统的“斗栱”,避免了钢结构屋面的单薄感。
Fujiezhouza. The ground floor along the streets sets back to form a continuous colonnade, similar to the Fujiezhouza of ancient architecture. The width-to-height ratio between the columns is close to √2, which is one of the most common ratios in classical Chinese architecture according to the research of Prof. Wang Guixiang and Wang Nan. The glass roof, like a flowing stream, forms a canopy at the main entrance. The form of steel column heads under the canopy derives from the traditional Dou Gong.

▲入口雨棚 ©章鱼见筑
“斗栱”的形式探索
日本建筑大师对斗栱形式的提炼早已闻名于世,采用单一类型构件叠合的手法充分体现了日本文化所追求的洗练和极致。三馆在斗栱的设计中探索了另外的方式,继续坚持“二元论”,把“斗”和“栱”进行各自独立的提炼,再按照传统逻辑进行组合。最终完成的钢结构柱头介于抽象与具象之间,保持了传统斗栱的构成关系。
Exploration of Dou Gong. Japanese architects were known for their innovative design of traditional Dou Gong. In this project, the designer explored a different approach that kept the idea of duality by refining the Dou and Gong independently. The combination of components still follows the traditional logic so that the figure is both abstract and figurative.


▲斗栱详图 ©王晖建筑工作室

▲西南夜景 ©章鱼见筑
现实问题之“城市”
三馆用地处于周边高层建筑的包围之中。尽管自身用地局促,三馆仍努力在沿街面进行退让,形成前场空间。底层4米宽的柱廊为市民提供了随时可以利用的半室外活动空间。为避免对街道形成压迫,三馆的体量从道路交叉口沿对角线方向呈前低后高布置,让城市街道空间显得更为开阔。
Realistic Issue of City. The site is surrounded by high-rise buildings and is very narrow. Even so, the building takes great effort to set back from the streets to create a foreground space. The 4-meter-wide colonnade along the streets provides a semi-outdoor space that is available to the public all the time. The volume of the building is restrained in a diagonal direction with low volumes in the front and high volumes in the back, making the space of the crossroads broader.

▲城市环境 ©王晖建筑工作室

▲西南鸟瞰 ©王晖建筑工作室

▲西北鸟瞰©章鱼见筑

▲鸟瞰夜景©章鱼见筑
现实问题之“空间效率”
要在1万平米的容量内容纳博物馆、档案馆、规划馆和会议厅等多种空间,三馆的平面设计非常紧凑,公共空间以及楼梯、电梯、卫生间等尽可能共享使用;人流量大的规划馆布置在底层,2-3层为博物馆,二者围绕共享大厅布置;3-5层为开放度较低的档案馆,在西北侧有独立的门厅,会议人流使用档案馆门厅,避免与公众人流相互干扰。
Realistic Issue of Spatial Efficiency. To accommodate a variety of spaces such as museums, archives, and Urban planning exhibition hall, and a conference hall within a capacity of 10,000 square meters, the plan of the building is very compact. Public spaces, stairs, elevators, and restrooms are shared as far as possible. An urban planning exhibition hall with crowd visitors is arranged on the ground floor. The museum locates on the 2nd and 3rd floors. The archive locates on floors 3-5, with an independent foyer on the northwest side which also serves the conference hall.

▲档案馆门厅©章鱼见筑

▲会议厅©章鱼见筑

▲外墙 ©章鱼见筑
现实问题之“材料与结构”
主体部分采用浅色石灰石,底层檐口和柱廊采用深色花岗岩。石灰石板以三种尺寸进行拼贴,强化了整体的水平感和质朴自然的格调。为了实现虚与实、轻与重的对立统一效果,三馆的结构设计付出了很大努力,如以直径60公分的钢管混凝土柱承托大厅上方巨大的悬挑体量,大厅采用轻盈的张弦梁以避免玻璃顶棚的结构过于厚重,等等。
Realistic Issue of Material and Structure. The surface of the upper volume is made of light-colored limestone, while the gable and colonnade on the ground floor are made of dark granite. The limestone slabs are used in three different sizes to reinforce the overall horizontality and the natural appearance. Efforts were also made in the structural design, such as using concrete-filled steel tubular columns and Beam String Structure to obtain a light and graceful vision.

▲俯瞰共享大厅©章鱼见筑
被动式绿建技术
为了降低大面积玻璃屋顶在夏季的温室效应,除了采用三层带镀点Low-E中空玻璃以外,在大厅屋顶的下端和上端设置了电动可开启百叶窗,利用热空气向上流动的原理,通过自然通风将屋面下的热量带走。
Passive Green Building Technology. In order to reduce the greenhouse effect in the summer, three layers of Low-E insulating glass with plated dots are used on the roof of the hall, and electric openable louvers were installed serving to take away the heat under the glass roof by natural ventilation.

▲大厅自然通风设计©王晖建筑工作室
求解最大公约数
嵩县三馆的设计将地域文化拆解为自然、传统与现实的三个方面,努力寻求三种“函数值”的最大公约数。这种方法论希望所形成的建成环境,能够针对现实问题采用适宜的应对策略,回应人们对于延续文化传统与纪念性价值的期待,并映照出潜藏在吾乡吾民内心深处的原风景。
Exploring the Maximum Convention. In the design of this project, regional culture was generalized into three aspects: nature, tradition, and reality. The possibility of the optimal solution, somehow likes the maximum convention of function values in mathematics was explored. This methodology is intended to create a built environment that can fulfill the realistic requirements with appropriate strategies, respond to the expectation of cultural continuation, and reflect the original scenery hidden in the heart of local residents.
项目图纸

▲总平面图 ©王晖建筑工作室

▲一层平面图 ©王晖建筑工作室

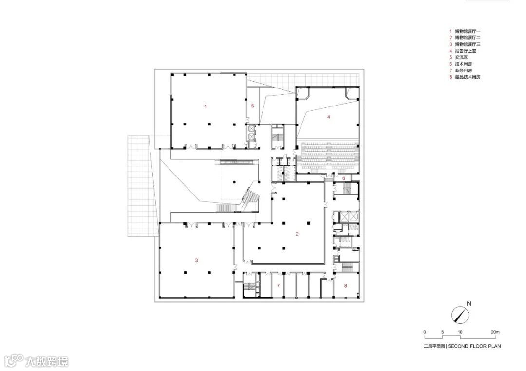
▲二层平面图 ©王晖建筑工作室

▲三层平面图 ©王晖建筑工作室

▲四层平面图 ©王晖建筑工作室

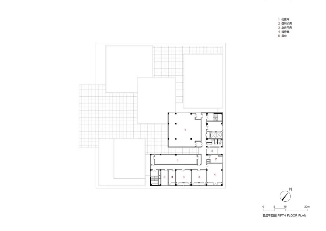
▲五层平面图 ©王晖建筑工作室

▲地下一层平面图 ©王晖建筑工作室

▲西南立面图 ©王晖建筑工作室

▲西北立面图 ©王晖建筑工作室

▲1-1 剖面图 ©王晖建筑工作室

▲2-2 剖面图 ©王晖建筑工作室
项目名称:嵩县三馆合一建设项目
项目类型:建筑
主创机构:WH Studio王晖建筑工作室
联系邮箱:wh_studio@126.com,wang_hui@zju.edu.cn
主创建筑师:王晖
设计团队:王蓉蓉 朱明 曾雨婷 秦阗怡 叶佳成
甲级设计院:天尚设计集团有限公司
各专业主要人员:蔡辅奎(建筑)杨国松(结构)易远山(给排水)朱家泉(电气)张剑(暖通)
室内与展陈机构:上海风语筑文化科技股份有限公司
设计-建成时间:2017-2022
项目地址:河南/洛阳/嵩县
用地面积:8796㎡
建筑面积:14669㎡(地上9996㎡)
建筑层数:地上5层,地下1层
摄影:章鱼见筑、王晖建筑工作室
业主:嵩县住房与城乡建设局、档案局、文广新局
材料:石灰石,花岗岩,玻璃幕墙
本资料声明:
1.本文为建筑设计技术分析,仅供欣赏学习。
2.本资料为要约邀请,不视为要约,所有政府、政策信息均来源于官方披露信息,具体以实物、政府主管部门批准文件及买卖双方签订的商品房买卖合同约定为准。如有变化恕不另行通知。
3.因编辑需要,文字和图片无必然联系,仅供读者参考;
推荐一个
专业的地产+建筑平台
每天都有新内容
扫描二维码关注

微信公众号“搜建筑”(ID:sjz9999)
合作、宣传、投稿
联系微信:soujianzhu006

