▲ 更多精品,关注“搜建筑”


自19世纪末公司成立以来,米其林的天幕就被植入克莱蒙费朗的Carmes场地,在2000年代获得了公司总部的地位。该项目于2021年交付,由Encore Heureux Architectes、Construire和Base合作进行,旨在将集团的形象体现在一个温馨、独特、有凝聚力的空间中,同时将其插入一个标志性的公共广场。总部的创新接待区象征着米其林的重塑,其设计理念是直面21世纪的挑战;其设计和运作是从循环经济的角度来构思的,考虑到了对环境的影响。
Implanted on the Carmes site of Clermont-Ferrand since the company’s inception in the late 19th century, Michelin’s Canopy acquired its status as the company's headquarters in the 2000s. The project, delivered in 2021, and carried out in partnership between Encore Heureux Architectes, Construire, and Base, aims to embody the image of the group in a welcoming, unique, and cohesive space while inserting itself in an emblematic public square. The headquarters’ innovative new reception area symbolizes Michelin’s reinvention, conceived to face 21st-century challenges head-on; a design and operation that were conceptualized from a circular economy perspective, mindful of environmental impacts.


一个新的身份。为了满足米其林在不抹杀其过去的情况下进行自我更新的愿望,该项目致力于为目前的总部提供一个两层的扩展。该扩建项目提供了一个充满活力的新外墙,旨在欣赏其历史结构。新项目连接了目前的建筑,同时体现了一个接待区和集团的主要入口。它也是公司的私人空间和公共广场之间的一个可渗透的界面,后者也在城市和米其林集团进行的发展计划中被翻新。从轮廓到交付,建筑方案的构思和项目的设计都是在建筑咨询期的范围内展开的。这种持续存在和现场跟踪的方法使我们能够更好地了解该集团的特性,同时引入一种认识到居民需求并相应调整方案的心智实践。
A new identity. In order to respond to Michelin’s wish of renewing itself without erasing its past, the project’s committed position is to offer an extension of the current headquarters over two levels. The extension is provided with an energetic new façade that seeks to appreciate its historic structure. The new project connects the current buildings, while simultaneously embodying a reception area and the group’s main entrance. It also acts as a permeable interface between the company’s private spaces and the public square, the latter of which was also renovated in a development plan conducted by the city and Michelin Group. From outline to delivery, the conception of the architectural program, and of the project’s design, unfolded within the remit of an architectural consulting period. This method of continuous presence and on-site follow-up allowed for a greater understanding of the group’s identity while introducing a mindful practice that recognized the residents’ needs and adapted the program accordingly.

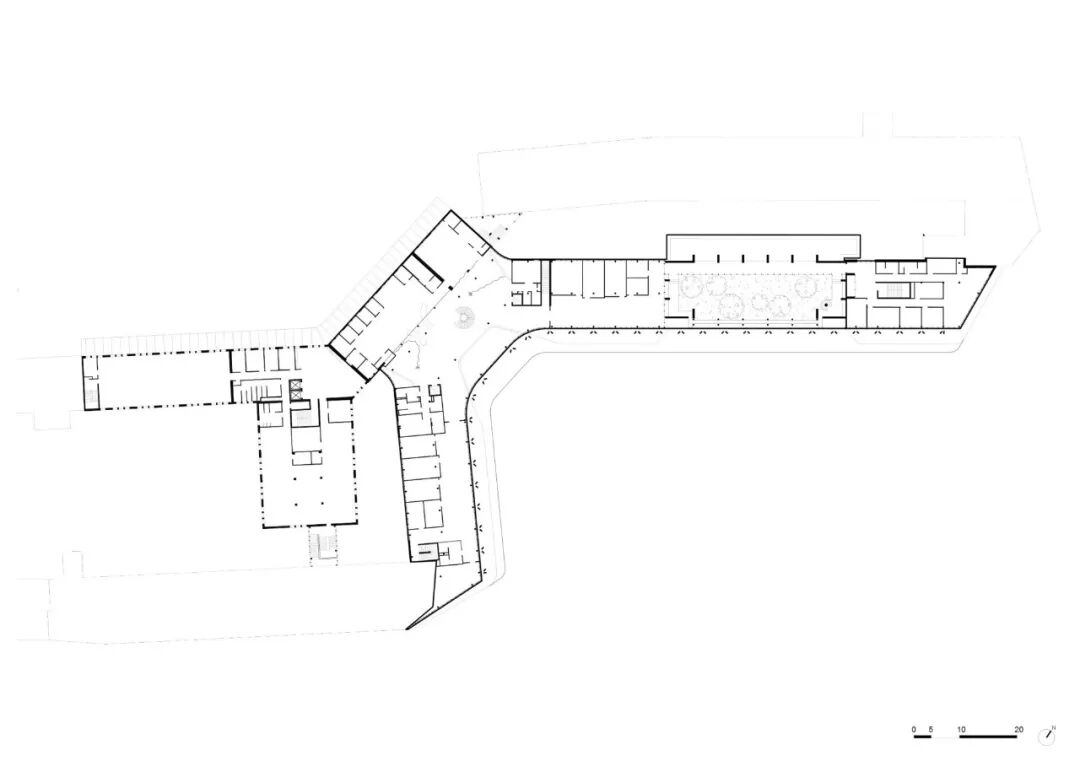
一个多层面和创造性的项目。该项目的主要挑战是将不同的空间连接在一起,形成一个一致的联盟,以便每天接待成千上万的游客。由爱德华-米其林在21世纪初在广场上发起的热带玻璃屋,拥有一个不确定的未来;它被保留在建筑项目中,并被整合到游客的体验中。玻璃房上的标志,象征着该集团对城市和世界的透明和开放的价值观。
A multi-faceted and inventive program. The main challenge the project addressed was that of connecting heterogeneous spaces between themselves in a consistent union intended to receive thousands of visitors daily. The tropical glasshouse, initiated by Edouard Michelin on the plaza in the early 2000s, held an uncertain future; it was preserved in the architectural program and integrated into the visitor’s experience. The glasshouse features the logo, acting as a symbol of the group’s values of transparency and openness towards the city and the world.

绿树成荫的广场一直延伸到卡梅斯广场的边缘,提供了家具、绿植和水景,以确保夏季的新鲜度。历史上为米其林员工保留的卡梅斯场地,现在提供给公众使用。它具有多功能的展览空间、商店、玻璃屋博物馆和热情的Equateur咖啡馆。工作区适应了新的工作和更多的协作性工作方法,建筑方案的顺序也在不断变化,以引导游客从公共区域到公司的私人空间。
The tree-lined plaza extends to the edges of Carmes square, provided with furniture, greenery, and water displays to ensure freshness in the summertime. The Carmes site, historically reserved for Michelin employees, now offers public access. It features versatile exhibition spaces, a store, the glasshouse museum, and the welcoming Café Equateur. Working areas are adapted to new jobs and more collaborative working methods, and the order of the architectural program evolves to lead visitors from the public area to the company’s private spaces.


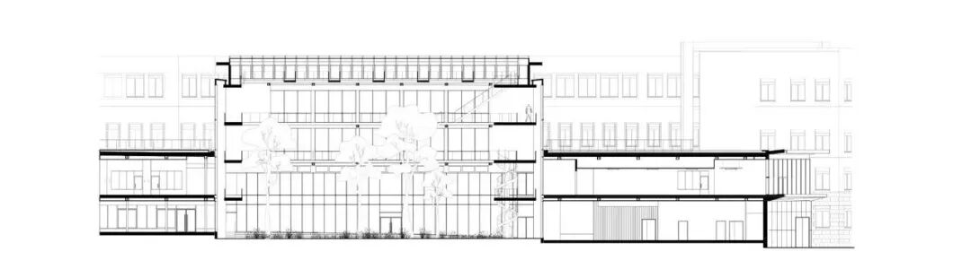
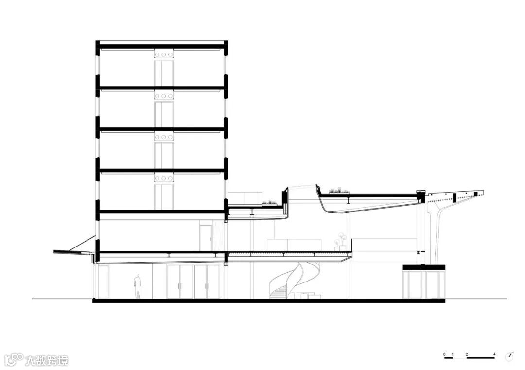
一个立足于当代挑战的设计。天幕不仅仅是一个接待建筑。它的结构回应了两个主要的挑战:一方面是透明度和接近性,另一方面是低碳足迹。透明度的选择体现在巨大的玻璃幕墙上,通过覆盖160米长的木制遮阳篷来遮挡阳光,这为新总部提供了独特的身份。建筑设计和家具中普遍采用曲线,与米其林轮胎的曲线相映成趣。
A design anchored in contemporary challenges. The Canopy is more than a reception building. Its structure responds to two primary challenges: transparency and proximity on the one hand, and a low carbon footprint on the other. The choice of transparency is embodied by the vast glass façade, sheltered from the sun by the wooden awnings that cover its 160-meter length, which provides the new headquarters with its unique identity. Curves are prevalent in architectural design and furniture, mirroring those of Michelin’s tires.


水泥的消耗量非常有限,而是采用可持续采购、再利用和当地材料。我们特别关注当地的情况,因此绝大多数参与施工的公司都是当地的。使用当地材料是一个共同的目标,旨在实施简单的建设性原则,而不损害场地的工业性质,如使用钢结构,或决定使网格和框架可见。
Consumption of cement was extremely limited, in favor of sustainably sourced, repurposed, and local materials. Particular attention was attached to the local area, and thus an overwhelming majority of companies that worked on the construction are local. The use of regional materials was a common goal that aimed to implement simple constructive principles without compromising the site’s industrial nature, such as the use of steel for the structure, or the decision to make the grid and frames visible.


技术、质量和创新是米其林所体现的价值。Encore Heureux和Construire机构也完全认同这些价值观,并将其纳入项目进程。天幕象征着可持续交通所面临的新挑战,同时说明了米其林和克莱蒙费朗市的联系。
Know-how, quality, and innovation are values that Michelin embodies. They are wholly shared by the Encore Heureux and Construire agencies that suffused them into the project process. The Canopy symbolizes the new challenges sustainable mobility is faced while illustrating the connection that unites Michelin and the city of Clermont-Ferrand.






平面图




立面图


剖面图


轴测分析图

建筑师:ENCORE HEUREUX Architectes
本资料声明:
1.本文为建筑设计技术分析,仅供欣赏学习。
2.本资料为要约邀请,不视为要约,所有政府、政策信息均来源于官方披露信息,具体以实物、政府主管部门批准文件及买卖双方签订的商品房买卖合同约定为准。如有变化恕不另行通知。
3.因编辑需要,文字和图片无必然联系,仅供读者参考;
推荐一个
专业的地产+建筑平台
每天都有新内容
扫描二维码关注

微信公众号“搜建筑”(ID:sjz9999)
合作、宣传、投稿
联系微信:soujianzhu006