严州古城,被誉为“半朵梅城”,与北京与南京并称全国“梅花两朵半”。建德梅城因之得名。其半梅城廓,王妃身故,留半梅城垛之传说,往事林林。
不自觉,心中浮响起清美的词曲:春水泛,柳帘弄鸳鸯。弦月上,昏明各半圆。古城事,未了一桩桩…… 《古城旧事》词曲/演唱:林清姗
The ancient city of Yanzhou is known as the "Half Plum Blossom City", and together with Beijing and Nanjing, it is called the "Two and a Half Plum Blossoms" in the whole country. Jiande Meicheng got its name from it. The outline of the Banmei city, the death of the princess, left the legend of the Banmei battlements, and there are many past events.
这是一处四进的老宅院,位于建德梅城的主街。胡亨茂是晚清时期当地有名的商贾世家,制蜡、印书、制五加皮酒、南北杂货,经营着梅城严州城内数量过半的商行。这处百年古宅曾在2009年10月经历过一场大火,古宅的防火墙,保住了周边大部分的宅院,仅西边的三百多平被烧,保护性复建后留存至今。
This is an old house with four entrances, located on the main street of Jiandemei City. Hu Hengmao was a well-known family of local merchants in the late Qing Dynasty. They made wax, printed books, made Wujiapi wine, and groceries from the north and the south, and operated more than half of the commercial firms in Yanzhou, Meicheng. This century-old house experienced a fire in October 2009. The firewall of the ancient house kept most of the surrounding houses. Only more than 300 square meters on the west side were burned, and it has been preserved to this day after protective restoration.
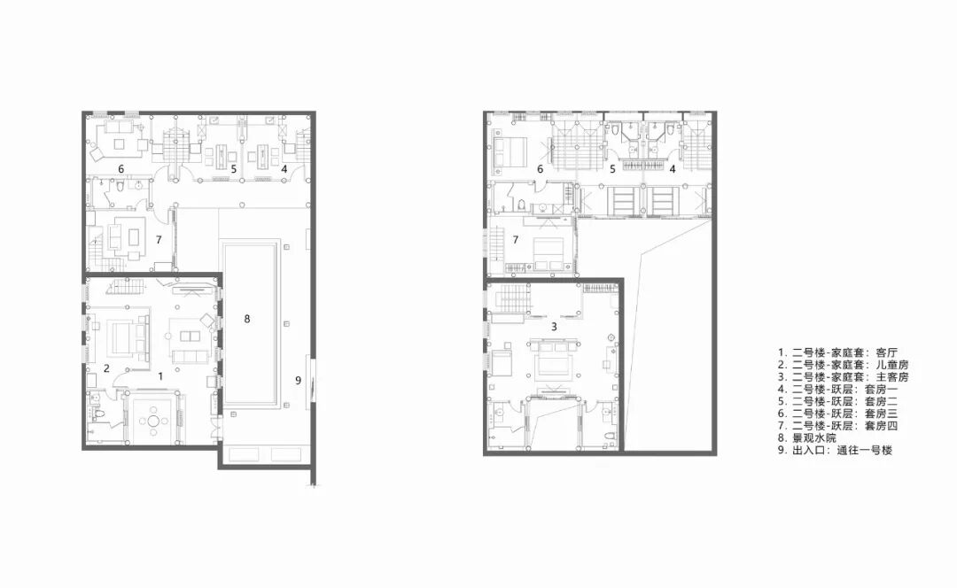
宅院建筑面积3080平方米,主宅内呈现以一种标志性的连续四进院落:一进院始建于清末,主宅前后四进,全部打开后可由主街一直通往后巷,整四进均有为清代的木结构建筑。四进院落组成古宅的主体(一号楼),而后拓建北侧院(二号楼)与东侧合院(三号楼),北侧院落幽静独立,东合院为后来复建的仿古立面框架结构建筑。设计内容包括古建筑和现代建筑改造、室内设计及庭院改造,将故居老宅变身为属地文旅酒店。
The construction area of the house is 3,080 square meters. The main house presents a symbolic continuous four-entry courtyard: the first courtyard was built in the late Qing Dynasty. All of them are wooden structures of the Qing Dynasty. The four-entry courtyard forms the main body of the ancient house (Building No. 1), and then expands the north courtyard (Building No. 2) and the east courtyard (Building No. 3). The north courtyard is quiet and independent, and the East courtyard is a later reconstruction. Antique façade frame structure building. The design content includes the renovation of ancient buildings and modern buildings, interior design and courtyard renovation, transforming the former residence into a local cultural tourism hotel.
“乾隆年间,“汉英公”胡述沛到严州开拓地盘,中间又遭咸丰兵乱,战乱平定,努力经营,再现生机。同治、光绪这四十年,是胡子亨改店号为胡亨茂之后,开辟经营,兴旺发达的四十年。吴昌硕,为其题“胡亨茂”商号木匾。抗战年间,恰逢国难,战火中的梅城,饱受灾难,胡亨茂迁至乡下,虽辛苦经营,也饱受市场萧条而歇业,是中国民族工商业衰落的一个缩影。民国年间,胡氏每年冬季,对贫寒孤独,施衣施食。袁世凯,为表彰义行,题赠“厚德载福”四字木匾。”
2022年4月,安静访谈的早晨,听家族后人娓娓道来。财富可以被带走,唯有知识和智慧永不流失。这一份质朴的贵族精神。
曾经胡亨茂近200年的家族史诗,顶峰时期几乎垄断了严州整个行业,也经历新中国初期的伤痕累累。故居酒店,是设计本身与历史与人文的对话,封尘已久的黄金时代,当代人的再次遇见和感动。也是对古城更新模式的一种新思考的开始。故居酒店是故人曾经居住过的地方,故居酒店既是酒店,亦是生活的博物馆。
"During the Qianlong period, Hu Shupei, the "Han Ying Gong" went to Yanzhou to open up the territory, and in the middle there was a rebellion in Xianfeng. Forty years of prosperous and prosperous business. Wu Changshuo inscribed the wooden plaque of "Hu Hengmao" for him. During the Anti-Japanese War, it coincided with the national calamity. The market is depressed and closed, which is a microcosm of the decline of China's national industry and commerce. During the period of the Republic of China, the Hu family provided food and clothing to the poor and lonely every winter. Yuan Shikai, in recognition of his righteous deeds, inscribed a four-character wooden plaque with "good virtue and good fortune". "
In April 2022, on the morning of the quiet interview, listen to the stories of the descendants of the family. Wealth can be taken away, only knowledge and wisdom will never be lost. This simple aristocratic spirit.
Hu Hengmao's family epic of nearly 200 years almost monopolized the entire industry in Yanzhou at its peak, and also experienced many scars in the early days of New China. The former residence hotel is a dialogue between design itself, history and humanities, the re-encounter and touch of contemporary people in the long-lost golden age. It is also the beginning of a new thinking about the renewal mode of the ancient city. The former residence hotel is the place where the deceased once lived. The former residence hotel is not only a hotel, but also a museum of life.
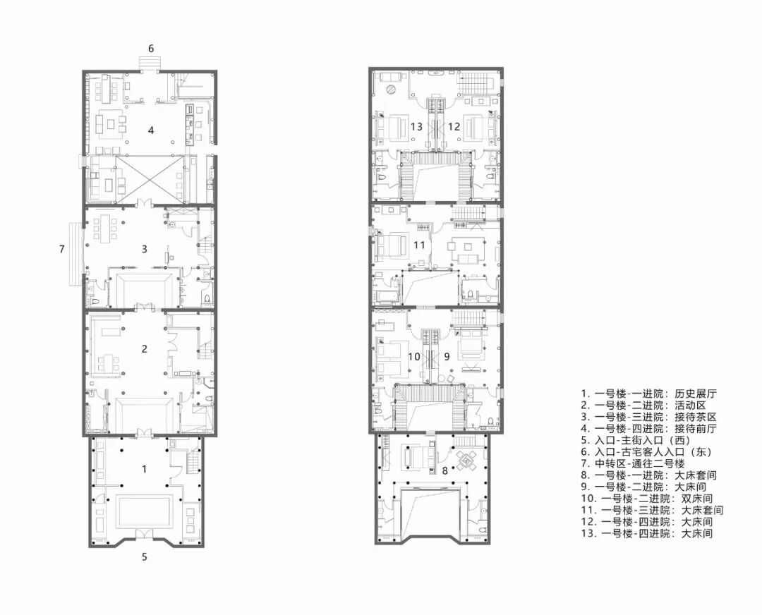
故居座东朝西,东西轴线正门向西,面向南北正街。东西合院之间有另一个轴线连结南北,宅门面北,两条轴线十字交叉形成两条主要的交通动线。面向西面正大街的是形象面的主入口,商铺林立,游人熙攘,是当下的特色街区,因此在设计时,客人通道有意避开这个入口,利用设置在东西合院中间的北入口,客人跨过河边一座古桥——三板桥,由此入内下蹋。酒店的前厅设置在东西院的交汇的第四进院。一进院至三进院底层,设为文展空间,供游人入内,行至四进院,前二、三进院设故居展介,古器旧物,陈呈“勤勉精业,厚德载福”,亦可驻足小座。
The former residence faces east to west, the main entrance on the east-west axis faces west, and faces the north-south main street. There is another axis connecting the north and south between the east and west courtyards, and the facade of the house faces north. The two axes intersect to form two main traffic lines. Facing the main street in the west is the main entrance of the image side. There are many shops and bustling tourists. Across an ancient bridge by the river—Sanban Bridge, you can enter and step down from here. The front hall of the hotel is set in the fourth entrance courtyard at the intersection of the east and west courtyards. From the first entrance to the bottom floor of the third entrance, there is a cultural exhibition space for visitors to enter. When you go to the fourth entrance, the former second and third entrances are set up with exhibitions of former residences, antiques and old objects. Fu", you can also stop at the small seat.
古宅 一号楼-四进院总平面图 一层、二层 制图:植田建筑
整体的功能沿着北侧入口展开,进入后可以见南北向轴线长廊,转向东西一明一暗,一新一旧对称递进的同时,完成公共向私密的过渡和转化。北合院为独立合院,从一号楼的三进院侧出,经过户外水庭,即可去到一间两层套房;北院东侧有四间客用阁楼厢房。此院与前四进院的二楼七间客房均原生空间形态,嵌插置入家具屏隔,构筑起客房起居场域。东合院三号楼为新起的仿古立建筑,复建时的内部框架格局均以酒店式隔间成形了。三号楼在客群上更偏向商务接待,因此在内部空间上也有意与前院形成反差,使用简洁而纯粹的现代语言,以浅色细木作板壁,采用白腊原木色家具,与古代建筑室内的深色形成对比,简洁明朗的酒店氛围表达。新与旧有着各自清晰的逻辑,在对比和碰撞中和谐共存。
The overall function unfolds along the entrance on the north side. After entering, you can see the north-south axis promenade, turning to the east and west, one light and one dark, one new and one old symmetrically progressing at the same time, completing the transition and transformation from public to private. The North Courtyard is an independent courtyard. From the side of the third entrance courtyard in Building 1, you can go to a two-story suite through the outdoor water court; there are four attic rooms for guests on the east side of the North Courtyard. The courtyard and the seven guest rooms on the second floor of the former fourth entrance courtyard all have original spatial forms, and furniture screens are embedded to construct the living area of the guest rooms. Building No. 3 of Dongheyuan is a new antique building, and the internal frame pattern during the reconstruction was formed with hotel-style partitions. Building No. 3 is more oriented toward business reception in terms of customer groups, so the interior space also intentionally forms a contrast with the front yard. It uses simple and pure modern language, uses light-colored joinery as board walls, and uses ash wood-colored furniture, which is in harmony with ancient buildings. The dark colors in the interior form a contrast, expressing a concise and clear hotel atmosphere. The new and the old have their own clear logic, coexisting harmoniously in contrast and collision.
“退色还尘”是在项目设计中渐渐明晰起来的感念。设计基本沿用了原有的庭院布局。没有“修旧如旧”,没有“新中式”。“退”是想让设计的度退减一些。“色”是“原色”的意思,尽量减少人工光源的应用,而使用尽可能的自然的光,接纳日常的天光侵入室内,完成人工光源无法达成的成色。自然的平光、侧光和逆光,透过原有的花格平窗,平静的撒落寝室与廊间,那可见的尘烟,散发时光累积后的恬静,惆然而温和。
"Fade to dust" is a concept that gradually became clear in the project design. The design basically follows the original courtyard layout. There is no "restore the old as the old", no "new Chinese style". "Back" means to reduce the speed of the design. "Color" means "primary color", minimize the application of artificial light sources, use as much natural light as possible, accept the daily skylight to invade the room, and complete the fineness that artificial light sources cannot achieve. Natural flat light, side light and backlight, through the original lattice windows, calmly scattered in the bedrooms and corridors, and the visible dust and smoke radiated the tranquility accumulated over time, melancholy and gentle.
墙面所置挂的当代绘画,适时提醒自己正处在当下时光。设计时有意移去画框射灯,只想任由外部天光漫入的半暗情境,又再度让自己沉入那似曾相识的幼时光阴。辗转,安下此刻的心情。
对于古建改造部分,设计保留了全部的木结构,除了增设内部空调和供暖系统,原有大木作均保留原始木作痕迹,紧固榫卯的木楔自在的突起在梁柱侧边。设计时刻意不去打磨老漆,尽管这些木作并没有过人木雕工艺,它们的美不是形式本身,而是拙朴沉积其上,可被感知的时间。
The contemporary paintings hanging on the wall remind you that you are in the present time. The frame spotlights were intentionally removed during the design, just to allow the semi-darkness of the outside skylight to flood in, and let myself sink into the familiar childhood time again. Toss and turn, settle down the mood at the moment.
For the renovation part of the ancient building, the design retains all the wooden structures. In addition to the addition of internal air conditioning and heating systems, the original woodwork retains traces of the original woodwork, and the wooden wedges fastening the mortise and tenon protrude freely on the sides of the beams and columns. The design does not intend to polish the old paint at all times, although these woodworks are not superior to wood carving techniques, their beauty is not the form itself, but the time that can be perceived by the simplicity deposited on it.
酒店的前厅设置在东西与南北两条轴线交汇的古宅第四进院。古宅的改造是一种与历史的对话,回家的客人从外面的城市节奏自然地转换到园林宁静自然的氛围里。在前厅的设计上我们强调自然的质地,材质上采用胡桃木材、天然石材等自然材质,忠实于材料本身真实的质感,延续自然醇厚的氛围。家具形态上,则去除了原先空间固有的古朴符号,简洁而纯粹的现代语言。与原有建筑室内的深色木质微妙共生,更具有轻松舒适的现代气息。在关键的部位,点缀以深邃的大漆红色,让新与旧有着各自清晰的逻辑,在对比和碰撞中和谐新生。
The front hall of the hotel is set in the fourth courtyard of the ancient house where the east-west and north-south axes meet. The transformation of the ancient house is a dialogue with history, and the guests returning home naturally switch from the rhythm of the city outside to the tranquil and natural atmosphere of the garden. In the design of the front hall, we emphasize the natural texture, using natural materials such as walnut wood and natural stone, faithful to the real texture of the material itself, and continuing the natural and mellow atmosphere. In terms of furniture form, the simple and pure modern language has been removed from the original space. It subtly coexists with the dark wood in the interior of the original building, and has a relaxed and comfortable modern atmosphere. In the key parts, it is embellished with deep lacquer red, so that the new and the old have their own clear logic, and they are reborn harmoniously in the contrast and collision.
从公区回到客房中,静思、安眠,享受远离现代喧嚣的安宁。卧室空间更多传达,柔软舒适、纯粹自然的写意生活,也是一段亲密之旅的开始。床是一件空间家具,沙发桌台,衣柜茶几,嵌插在相应的位子,构建出室内的起居环境。在空间中多处关键位置,豆绿色的床背与朱红色大漆的镶板带来过去曾有的印象。
Return to the guest room from the public area, meditate, sleep peacefully, and enjoy the tranquility away from the hustle and bustle of modern times. The bedroom space conveys more, soft and comfortable, pure and natural freehand life, and it is also the beginning of an intimate journey. The bed is a piece of space furniture, the sofa table, the wardrobe coffee table are embedded in the corresponding seats to create an indoor living environment. In many key positions in the space, the pea green bed back and vermilion lacquer panels bring out the impression of the past.
暗是一种品质,我们有意的控制室内的亮度,一方面暗容易让我们将自己带回到过往的时空中,回到那个家族的兴衰中去,这时候任何一个过于刺眼的物象都是显得那么“出戏”。另一方面“暗”也让我们更好的利于我们身心的休息,散去市井的繁华嘈杂。而在暗的空间中,大漆的红色显得更为亮眼,他似乎在为我们传递着某种讯息,传递着那份遥远精神和文化凝聚成的清雅气质。
Darkness is a quality. We intentionally control the brightness of the room. On the one hand, darkness can easily bring us back to the past time and space, to the rise and fall of that family. Then "play". On the other hand, "darkness" also allows us to better rest our body and mind, and disperse the bustle and noise of the market. In the dark space, the red color of lacquer is more eye-catching. It seems to be conveying some kind of message for us, conveying the elegant temperament condensed by the distant spirit and culture.
本资料声明:
1.本文为建筑设计技术分析,仅供欣赏学习。
2.本资料为要约邀请,不视为要约,所有政府、政策信息均来源于官方披露信息,具体以实物、政府主管部门批准文件及买卖双方签订的商品房买卖合同约定为准。如有变化恕不另行通知。
3.因编辑需要,文字和图片无必然联系,仅供读者参考;
推荐一个
专业的地产+建筑平台
每天都有新内容
扫描二维码关注

微信公众号“搜建筑”(ID:sjz9999)
合作、宣传、投稿
联系微信:soujianzhu006