▲ 更多精品,关注“搜建筑”

分配给该项目的土地正在开发中,作为Roissy更新计划的一部分,位于Roissy 1号航站楼附近,该航站楼旨在容纳多家酒店和办公楼。


因此,未来的各种酒店项目将沿着城市轴线设置,最终将有轨电车、有轨电车两侧的双服务道路以及沿线的自行车和步行道结合起来。酒店的前院。我们的土地位于这条主轴的东端,就在它通过滑行道之前,滑行道专用于起飞前后的各种飞机运动:轴端的这种情况使项目完全可见。
The various future hotel projects will therefore be set up along an urban axis, eventually combining the tram, a double service road on either side of the tram, and bicycle and pedestrian paths along the lines. forecourt of the hotels. Our land is located at the eastern limit of this major axis, just before it passes under the taxiway dedicated to the various aircraft movements before and after takeoff: this situation at the end of the axis gives the project total visibility.


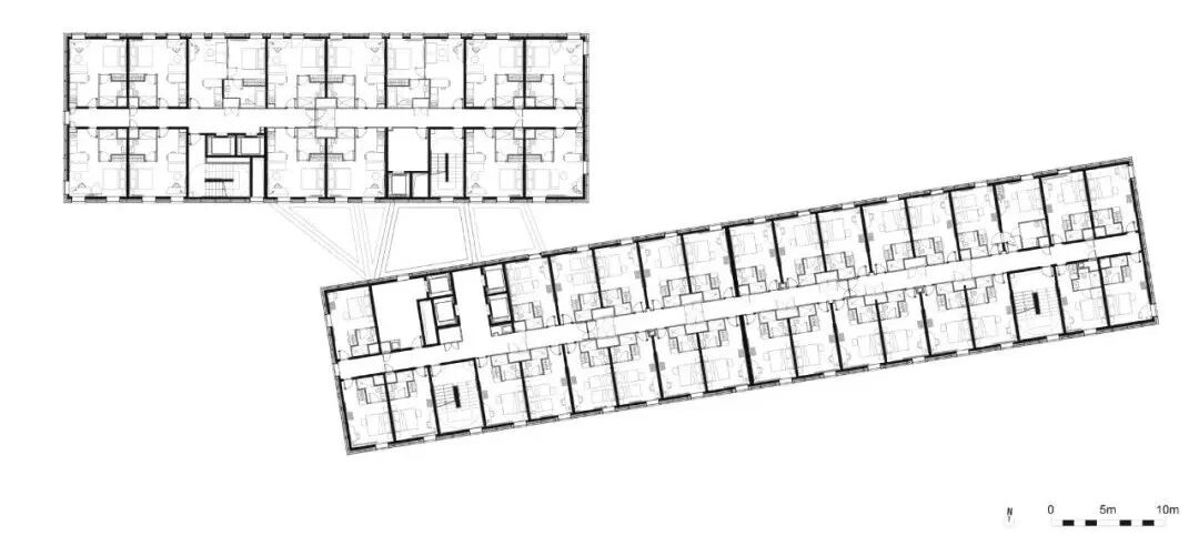
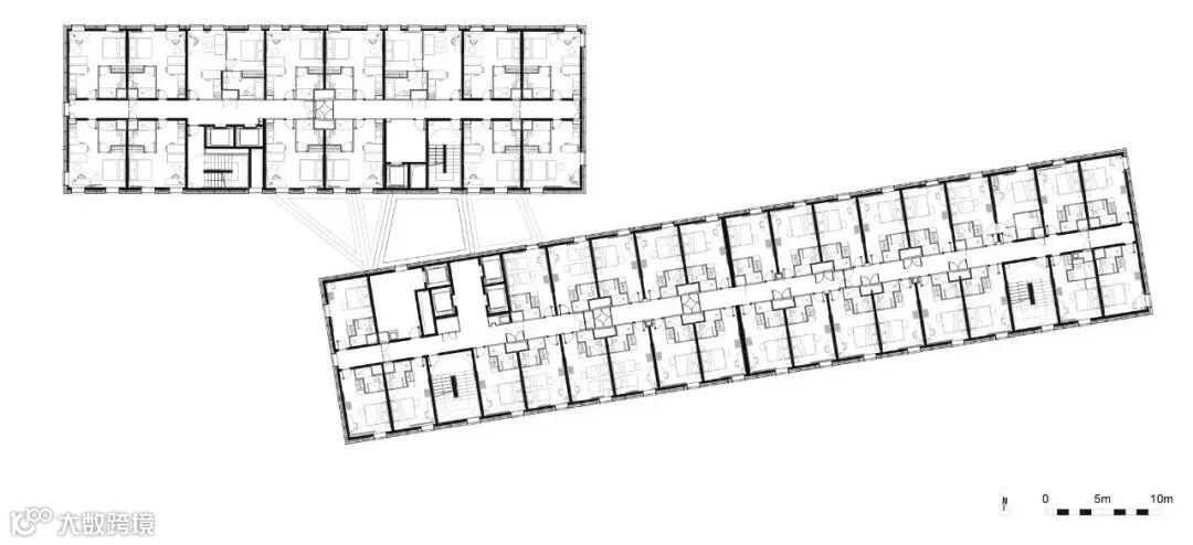
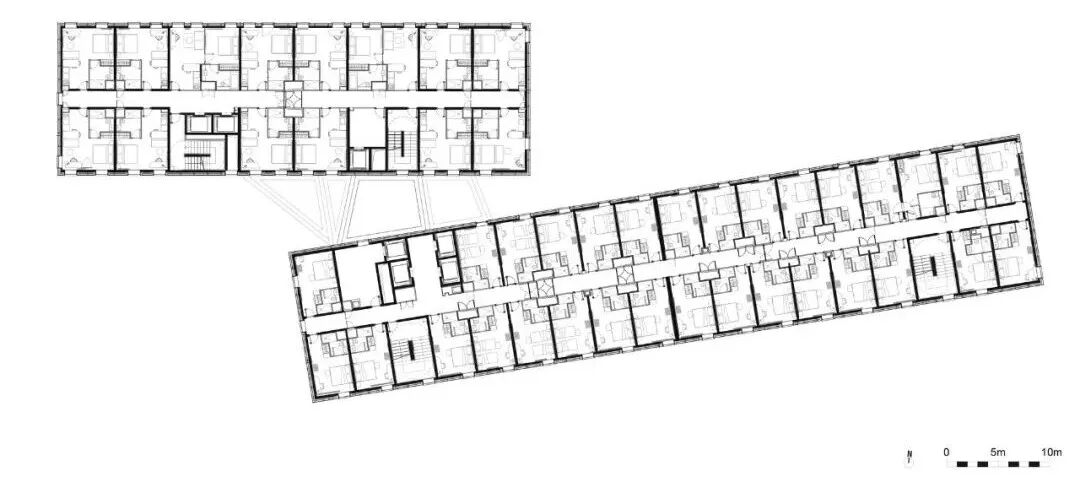
该项目由两个酒店组成,分为两个独立的体量:拥有229间客房的Courtyard酒店和拥有106间客房的Hotel Residence Inn酒店。这两个卷一个在另一个后面,通过一个基座连接,允许共享一些公共区域。
The program consists of two hotels designed in two separate volumes: the Courtyard Hotel with 229 rooms and the Hotel Residence Inn with 106 rooms. The two volumes sneak one behind the other and connect by a base, allowing to share some common areas.


两种类型的功能通过两种不同的体积实现:房间的重复性、紧凑性和规则性,而公共部分的设计则是以流动的精神进行的,并对外开放,完全玻璃化。
Two types of functions are materialized by two different types of volumes: that of the rooms is repetitive, compact and regular, when that of the common parts is designed in a fluid spirit and open to the outside, fully glazed.


立面由与房间相对应的彩色模块组成,形成了一个大的渐变,从底部从最暗到最亮。每个模块的独立性通过形成一个大网格的轮廓来体现,这是明智的安排。
The facades are composed of colored modules corresponding to a room, creating a large gradient, from the darkest to the lightest from the bottom. The independence of each module is materialized by outlines that form a large grid, as wisely arranged.













区位图

平面图



剖面图


模型图


手绘图




建筑师:Manuelle Gautrand Architecture
地点:法国
面积:14000平方米
年份:2022
本资料声明:
1.本文为建筑设计技术分析,仅供欣赏学习。
2.本资料为要约邀请,不视为要约,所有政府、政策信息均来源于官方披露信息,具体以实物、政府主管部门批准文件及买卖双方签订的商品房买卖合同约定为准。如有变化恕不另行通知。
3.因编辑需要,文字和图片无必然联系,仅供读者参考;
推荐一个
专业的地产+建筑平台
每天都有新内容
扫描二维码关注

微信公众号“搜建筑”(ID:sjz9999)
合作、宣传、投稿
联系微信:soujianzhu006

