▲ 更多精品,关注“搜建筑”
深圳华侨城香山里小学
AUBE欧博设计
深圳华侨城片区毗邻深圳湾畔,自1985年正式规划建造以来,这里最大化保持着最原始生态的地形地貌,保证了整个片区规划的完整、综合、连续、生态,被誉为深圳城市的中央绿肺,富含人文与创新气息。根据华侨城片区人文、生态、创意、科技的区域特征,深圳华侨城香山里小学致力要办一所能够代表南山教育质量、与国际接轨、与世界级创新型滨海中心城区相匹配的“高品质、定制式”社区配套学校。

学校中央庭院
深圳华侨城香山里小学地处华侨城西北片区,位于南山区沙河东路与侨北三街交汇处,规划班数36班,学位1620个,总用地面积约1.87万㎡。
在项目用地并不宽裕的情况下,整体设计结合建筑布局和景观环境,建筑功能及空间造型创造出结构清晰、分区合理、尺度宜人的书院氛围,并通过底层架空、复合功能分区等方式整合场地高程,为师生营造出开放、多层次的现代化教学空间。

总体鸟瞰图
学校主入口位于用地南侧小区路上,底部实现两层架空以扩展入口广场空间,利用场地高差及合理的绿化处理设计多条隐藏式阶梯及走道,直接打通校园与城市之间的视觉通廊。入口大门设置在教学楼内侧,迎合主入口人流之余保证学生、家长在各种天气情况的等待条件。

西南立面实景图

架空层主入口
教学楼体块一分为二,平行围合形成中央庭院,充分满足36班教室的南向日照,外部增设立面遮罩,丰富建筑形体的视觉效果。两栋主体教学楼之间设置实验楼,并采用玻璃屋顶保证实验楼中庭采光,不规则连廊联通两侧后使得空间集中、有活力。
在满足教学用房个数及面积的前提下,教学楼与实验楼交界处设计两跨、两层16米宽无柱大架空,以用作半室外教学及活动空间,创造出复合校园空间。教学楼室内底层架空空间贯通中央庭院和东侧运动场地,为学生无缝切换室内外活动空间。

公共活动空间

公共活动空间
实验楼中庭
位于教学楼西北侧的生活用房建筑单体,由两块不同层高的长方形体块互相咬合而成,主要功能为食堂、风雨操场及教师宿舍。一座空中连廊将教学楼与风雨操场连接起来。连廊下方直接设置食堂入口,使师生能不受天气影响快捷到达教学空间。教学楼和生活用房主体建筑色彩选用灰白为主色调,灵感源于中国传统书院白墙灰瓦的形象,彰显肃穆雅致。

西北立面实景图

风雨连廊

东北立面实景图
学校室外基地高差通过布局生物园、地理园等场地放坡进行消解。两栋教学楼围合而成的中央庭院成为整个校园的景观中心,木材作为景观处理的主要材料,打造出大面积立体化的生态景观,使校园突破规划指标使整体绿化率达40%。屋顶花园、架空层、入口等各处绿化均衡,保证小学生在平时学习生活中,有足够接触大自然的机会。

学校景观绿化
整体开放式的校园环境让学生不仅仅局限于教室学习,学校空间的丰富变化和学生多样性的活动结合起来,营造出舒适、灵活、绿色的学习环境。

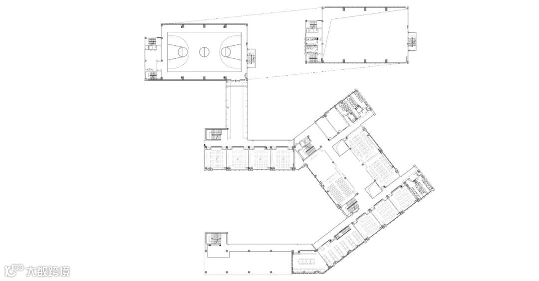
一层平面图



剖面图
项目位置:广东深圳·南山区
建设单位:深圳华侨城房地产有限公司
使用单位:南山区教育局
设计单位:深圳市欧博工程设计顾问有限公司
摄影师:陈冠宏
主要功能:学校、行政楼、辅助用房
用地面积:18711㎡
建筑面积:10500㎡
设计|竣工年份:2014年|2017年
本资料声明:
1.本文为建筑设计技术分析,仅供欣赏学习。
2.本资料为要约邀请,不视为要约,所有政府、政策信息均来源于官方披露信息,具体以实物、政府主管部门批准文件及买卖双方签订的商品房买卖合同约定为准。如有变化恕不另行通知。
3.因编辑需要,文字和图片无必然联系,仅供读者参考;
推荐一个
专业的地产+建筑平台
每天都有新内容
扫描二维码关注

微信公众号“搜建筑”(ID:sjz9999)
合作、宣传、投稿
联系微信:soujianzhu006
阅读原文:“AUBE欧博设计”更多精品

