2018年,KIRK受NIOA委托,调查在短时间内增加办公空间的方案,以适应迅速扩大的员工队伍。NIOA木材大厦是一个实验性项目,是澳大利亚第一个使用当地种植和制造的大规模工程木材的非住宅商业建筑。5层的结构在不到一个月的时间内就被搭建起来,包括为100名员工进行的综合装修,在7个月内就完成了。
In 2018 KIRK was engaged by NIOA to investigate options for additional office space, in a short period of time, to accommodate a rapidly expanding workforce. The NIOA Timber Tower is an experimental project that is the first non-residential commercial building in Australia to use locally grown and manufactured Mass Engineered Timber. The 5-level structure was erected in less than a month and the building, including the integrated fit-out for up to 100 staff, saw completion within 7 months.
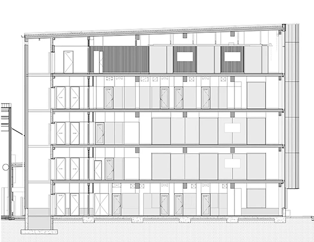
木材大厦是昆士兰第一座采用完全大规模工程木材CLT(交叉层压木材)垂直结构的多层次商业建筑。这增加了无柱可用的楼层面积,并提供了一个更坚实的外墙,从而提供了一个非常有效的建筑围护结构。暴露在外的木材结构、较小的无柱楼板和宽大的窗户所产生的效果,为商业办公提供了一个全新的类型。
The Timber Tower is Queensland’s first tall Mutli-level commercial building to utilize a fully Mass Engineered Timber CLT (Cross Laminated Timber) vertical structure. This increases the column-free useable floor area with the added benefit of providing a more solid façade thereby providing a very efficient building envelope. The resulting effect of exposed timber structure, smaller intimate column-free floor plates, and generous windows produces a completely new typology for the commercial office.
木材塔的开发是为了直接应对项目的挑战,即有限的建设时间、有限的场地、固定的楼层面积,以及一个具有国家意义的已被占用的运营场地的建设挑战。塔的形式占据了整个可用场地。结构和建筑系统的完全制造方法允许 "及时 "的施工装配。木板直接从运输车辆上吊起,采用原始结构作为主要的装饰,为空间提供了一个家庭品质。额外的(干贸易)墙体元素延续了预制木材元素的逻辑,如胶合板。
The Timber Tower was developed in direct response to the project challenges of limited build time, limited site, a fixed floor area, and the construction challenges of an occupied and operational site of national significance. The tower form occupies the entire available site. The fully fabricated approach to structure and building systems allowed for “just in time” construction assembly. Timber panels were lifted directly from the transport vehicles, and the adoption of the raw structure as the primary finish provides a domestic quality to the spaces. Additional (dry trade) wall elements continue the logic of prefabricated timber elements, such as plywood.
KIRK将木材大厦项目作为一个原型,采用了一套建筑系统:木材结构、结构木材玻璃幕墙和锌皮。所有元素都能在主承包商开始现场施工之前制造出来,或在非常有限的交货时间内制造出来。 木质结构是在承包商参与之前从建筑模型中绘制出来的--将项目中通常的停工时间(12周)降到最低。
除了明显的时间优势外,这种预制方法最大限度地减少了现场浪费,简化了整个建造过程,并展示了脱碳对建筑业的意义。场地本身很复杂,有高腐蚀性的空气,来自各个方向的飞机噪音,高度限制和大风。这些条件为材料选择和细节设计提供了依据。
KIRK approached the Timber Tower project as a prototype that adopted a set of building systems; timber structure, structural timber glazed façade, and zinc skin. All elements were able to be manufactured in advance of the main contractor starting on-site or with very limited lead times. The timber structure was shop drawn from the architectural model prior to the engagement of the contractor – minimizing the usual downtime (12 weeks) in projects. Apart from the obvious time benefits this prefabricated approach minimized on-site waste and streamlined the entire build process and demonstrates what decarbonization can mean for the construction industry. The site itself is complex, with highly corrosive air, aircraft noise from all directions, height restrictions, and high winds. These conditions informed material selection and detailing.
木材塔几乎是碳中和的(由于使用了金属覆层和固定装置)。木材在结构的整个生命周期中对碳进行了封存。如果结构需要拆除,它可以完全拆卸和重新组装--包括包层和玻璃系统,它们是干式连接系统。
木材塔成功地解决了以前认为太小的场地和似乎不可能的项目的挑战,产生了一个充满创意的项目,可以适用于许多其他项目和情况。该塔楼展示了工业环境中工作场所的另一种模式。较小的楼板更适合后流行世界中的许多组织,与大型密集的楼板相比,更亲密的规模更健康、更安全。
The Timber Tower is almost carbon neutral (due to the use of metal cladding and fixings), and the entire timber structure was regenerated within 45 mins from Australian commercial plantation forests. The timber sequesters carbon for the life of the structure. Should the structure need to be removed it can be completely disassembled and reassembled – including the cladding and glazing systems which are dry-jointed systems. The Timber Tower successfully addresses the project challenges of a site, previously thought of as too small, and a program that seemed impossible, yielding a project replete with ideas that can apply to many other projects and circumstances. The tower shows an alternative model for workplaces in an industrial setting. The smaller floor plates are more appropriate to many organizations in a post-pandemic world where more intimate scales are healthier and safer, as compared to large densely populated floor plates.
本资料声明:
1.本文为建筑设计技术分析,仅供欣赏学习。
2.本资料为要约邀请,不视为要约,所有政府、政策信息均来源于官方披露信息,具体以实物、政府主管部门批准文件及买卖双方签订的商品房买卖合同约定为准。如有变化恕不另行通知。
3.因编辑需要,文字和图片无必然联系,仅供读者参考;
推荐一个
专业的地产+建筑平台
每天都有新内容
扫描二维码关注

微信公众号“搜建筑”(ID:sjz9999)
合作、宣传、投稿
联系微信:soujianzhu006