▲ 更多精品,关注“搜建筑”
深圳市盐田区海曦(未来)小学
山与海之间的未来学校
AUBE欧博设计
深圳复合型有机开放的教育建筑已逐渐成为一种趋势,校园建筑不再拘泥于传统的布局,更多地倡导学校与社区共建,以缓解城市公共功能用地紧张的现实问题。有别于市区内的教育建筑面临用地紧张、改造需求多于新建等问题,对于远在城市外围的新建学校项目,如何利用周边资源、塑造道路的城市形象、合理配置复合功能,成为了设计中的重要议题。

海曦小学位于盐田大梅沙旅游片区内,北侧为深圳著名旅游景点东部华侨城,南侧毗邻大型购物中心以及万科中心,东西两侧为住宅小区。
学校位于大梅沙旅游片区,在享有东部华侨城的崇山峻岭、南侧人工湖及大海等丰富的景观资源的同时,需要在30班小学的设计任务之外,提供497车位的社会停车场。从传统的“封闭校园”转变到“学校教育设施向社区开放”之后,新的设计任务还包括整合利用周边资源、探讨学校空间的分时利用及其管理模式。

社会停车场这一看似普通的功能,且位于地下一层和二层,却在多个层面影响了建筑布局。在对比了多种布局模式之后,设计将用地分为了东西两部分,建筑体量集中于东侧,在矩形场地中依次排列开,维持了原有城市空间的纵向延伸,200米的标准跑道位于西侧三角形场地,旁边穿插布置户外篮球场等运动场地。正对操场的综合楼,利用阶梯教室下部的架空空间,设置了大台阶,作为运动场的休息和观看区。


正交的柱网在停车位数量的最大化与建筑平面布局的灵活度中找到了平衡点。停车库的出入口分别设置于场地的东侧现有市政路与北面规划市政路,避免在同一条道路上造成拥堵。应对东北面嘈杂的交通界面,布置后勤、风雨操场、行政办公等非教学空间,同时屏蔽噪音干扰,向东结合综合楼围合出学校主入口,三排教学楼形成的E字形的建筑体量布置于南侧,半围合的内院朝向景观较好的西侧开口,提供了空间活动场地,同时保证东侧道路一侧的建筑体量完整,塑造出连续的城市界面。

一条S形的建筑长廊,由南至北整合并串联了教学区、行政区与后勤区多个节点,形成由点至面的多层次立体组合,它还连接了东侧校园主入口的动态广场、运动区和教学楼之间朝西的安静内院,多个庭院通过架空连廊相互联系、渗透,将传统校园的交通空间,扩展为同学们休闲、交往、观景的主要空间,功能高度复合的同时,营造了极具辨识度的校园新面貌。

建筑整体形象明亮而温暖,东侧的连续立面,使用格栅作为统一的建筑语言,塑造了内向的校园特质。综合楼立面通过调整格栅的尺寸及间距,提高了辨识度,易于定位和导向,加强了入口空间的公共性。教学楼朝向操场的一侧立面设有半室外楼梯,内侧贯穿到扶手细部的鲜明色彩,增加了建筑的趣味性,符合小学生活泼积极的特点,也提高了不同教学楼里学生们的归属感。



学校与社会停车库对周边错峰利用,工作日主要为学校车辆及人行出入,并借用社会停车库解决家长接送学生停车难的问题,节假日主要解决景区的社会车辆带来的交通压力。停车库的分时重叠利用,管理相对独立。享有景区资源的同时,也在基础设施层面进行回馈,学校与社会停车库和谐共存。
技术图纸

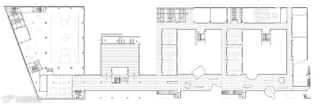
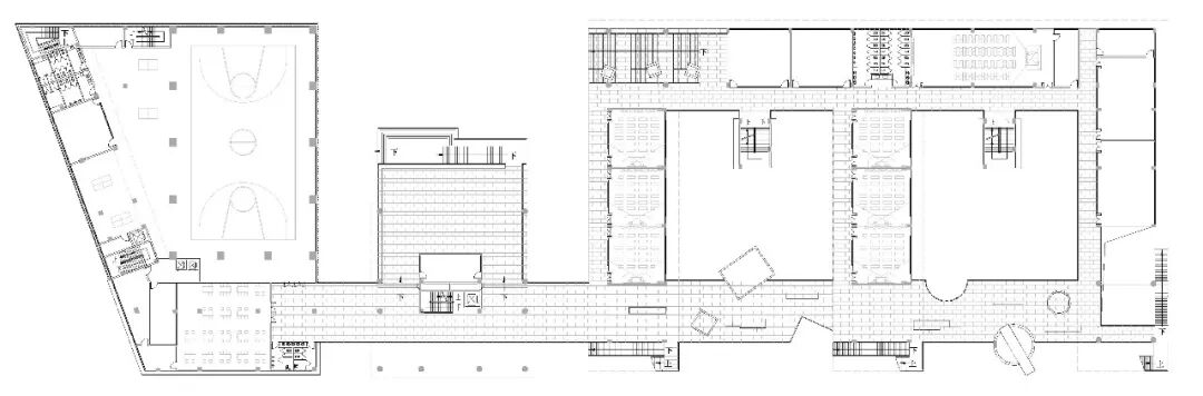
总平面图

一层平面图

二层平面图

A-A剖面图
项目档案
项目地点:广东省 深圳市
设计单位:深圳市欧博工程设计顾问有限公司(设计总包)
建设单位: 深圳市盐田区建筑工程事务署
使用单位: 深圳市盐田区教育局
代建单位: 核工业志诚建设工程有限公司
用地面积:18855.96㎡
建筑面积:45657.16㎡
设计建设周期:2013年-2019年
摄影师:胡明俊
本资料声明:
1.本文为建筑设计技术分析,仅供欣赏学习。
2.本资料为要约邀请,不视为要约,所有政府、政策信息均来源于官方披露信息,具体以实物、政府主管部门批准文件及买卖双方签订的商品房买卖合同约定为准。如有变化恕不另行通知。
3.因编辑需要,文字和图片无必然联系,仅供读者参考;
推荐一个
专业的地产+建筑平台
每天都有新内容
扫描二维码关注

微信公众号“搜建筑”(ID:sjz9999)
合作、宣传、投稿
联系微信:soujianzhu006
阅读原文:“AUBE欧博设计”更多精品

