成都生活始终与院子的情结相连,独有的慢生活的雅致与“无庭不成居”的情怀相结合,共同构成了“宅中有园”、“屋中有院”的生活理想。院落是刻在骨子里的城市记忆,成为传统居住空间的缩影。
项目位于成都武侯新城核心区域,周边开发程度高,紧邻地铁交通,地块带有成熟的居住条件、配套能力与悠久的城市文化,聚集性强。设计意图在快节奏、高密度的城市板块之中,以独特的低密规划与院落打造,还居住者以“凡宅必有院”的人居构想,在还原传统生活尺度的基础上,升级使用空间体验,统合外部尺度与内部生活,构建成都“新里院”。
▲项目区位图
通过对传统四围合院与常见联排产品的研究,设计对大区总体的规划形式进行革新,项目结合中式合院独门独院的空间感受与联排产品良好的空间利用,对产品布局进行升级。规划以主街与次街分割出不同尺度的产品组团,通过不同产品的相互穿插,令社区在低密的空间前提下更具层次感与丰富性。
项目总体规划以常见联排产品为基础,大区设置宽度约10m的横纵主街,分割组团,构建既具有里巷印象、又符合现代人居需要的外摆空间;在内圈设立场地节点形成公共空间,同时设置围合次街,构成内部大合院;四叠产品沿主街布局,充分利用中轴核心的景观面与空间感,与项目中央约50m尺度的中央广场,构成宽阔丰富的空间感受,阐释成都传统文化底蕴,营造具有独特气质的城市天际线。
▲街巷、节点与产品构成丰富空间
设计缘起自成都的院落情结、历史传承与自然交流,在造型理念上,强调建筑与自然的和谐共生,从老成都地域特色中提取元素,同时以现代材料替代传统材料,在塑造意境的同时提升建筑价值感,令传统与现代在细节中有机结合统一,呼应成都人开放的态度、沉稳的性格。
为强化人与院落的互动共生,建筑利用结构出挑形成无柱转角落地窗,模糊室内外空间边界,将已有的极致景观延展面渗透入室内,同时,客厅转角的通透无柱设计也加强别墅的度假感,让大尺度落地窗与传统花格栅形成对话,大面玻璃栏杆与立面传统建筑符号形成碰撞。
▲无界空间升级院落感受©王斌
设计不仅在立面造型手法上打破建筑与庭院间的界限,更通过对合院型产品内部空间的研究,以多层的院落和露台,极致地方大与自然景观互动的参与度,进一步为居住者提供私属的生态居住感受。
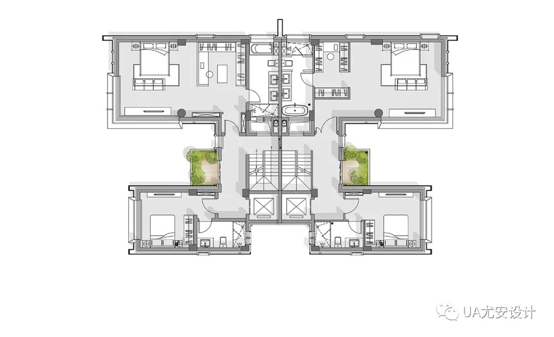
198户型
多层共享的私密庭院
198户型采用C型院落设计,既保障独享庭院的私密性,也让院子的景观成为使用者视野的中心。首层客餐厅面朝院落设计采光面,公区和私区均同时享有风景与采光;二、三层面朝院子采光,化空中花园的生活理想为现实。
<<< 滑动查看更多图片 >>>
▲198户型平面图
148户型
礼序有秩的内部院落
148户型产品中的院落层层分设,分别承担不同的秩序功能:“礼院”——提供独立天地的入户空间;“景院”——归并后勤动线;“雅院”——为卧室提供私密景观花园;“内院”——承担内部空间的过渡功能;“合院”——在顶层提供家庭共享的大花园。多重院落的设置,真正实现了层层有院,院院有序。
▲层层设置院落的自然空间
<<< 滑动查看更多图片 >>>
▲148户型平面图
本资料声明:
1.本文为建筑设计技术分析,仅供欣赏学习。
2.本资料为要约邀请,不视为要约,所有政府、政策信息均来源于官方披露信息,具体以实物、政府主管部门批准文件及买卖双方签订的商品房买卖合同约定为准。如有变化恕不另行通知。
3.因编辑需要,文字和图片无必然联系,仅供读者参考;
推荐一个
专业的地产+建筑平台
每天都有新内容
扫描二维码关注

微信公众号“搜建筑”(ID:sjz9999)
合作、宣传、投稿
联系微信:soujianzhu006

