武汉BFC复星外滩中心|御江廷-云轩地处武汉两江交汇的稀缺核心地段,沿长江主轴布局,与汉正阳台相毗邻,是复星外滩中心CBD核心区的重要组合部分,将成为武汉未来的城市名片。大区坐拥长江、汉江、龟山等景观资源,位置较为理想,总体规划结合重点功能区沿长江主轴布局高层簇群,西岸将形成具有韵律的天际线。
▲项目规划效果图©KPF
▲建成实景图©夏强
作为超高层住宅地块,项目承载地块划分小、整体开发强度高的限制,针对高定位、集约化的多功能复合型超高层微社区。综合考虑两江景观的资源价值,设计团队为高度在180-250m、面积段为170-380㎡的超高层住宅设计制定更全面的设计方案,以生活模块优化提升归家体验,合理规划超高层产品,释放产品力,通过立面手法创新,确保极具未来感的创新造型有效落地。
©KPF
核心景观定制规划
考虑到住区所处地块坐拥两江丰富景观的优势,与不足20000㎡的用地面积,项目在整体规划时,首先考虑景观视野最优化,结合产品面积段逻辑,规划将核心资源布置东向长江,精品户型南向汉江,实现江景户数最大化,楼栋排布灵活,景观资源利用充分,充分挖掘地块的价值。
▲资源分析©KPF
5+5生活场景模块
设计团队通过对国内外大量高端住区设计规划进行总结,提炼出归家动线中5大步行生活场景模块与5大车行生活场景模块,并一一归纳其仪式感营造重点及配置需求,以精确手法铺就奢阔的归家体验。
▲5+5生活场景模块©BFC复星外滩中心©来源于网络(部分)
设计对归家动线上的重点部位进行全模全场景的推敲,通过立体景观的处理手法,在集约地块中实现了丰富的景观体验。步入式的风雨连廊轻盈通透,令归家具有度假般的体验感,并与单元大堂紧密结合,形成便利的一体化设计。单元大堂入口优雅,体现近人尺度的陌生感和未来感,架空层则采用建筑景观一体化设计,模糊室内外界限,令使用者充分感受室内外景观的联动。
▲归家入户动线推敲模型
©夏强
▲丰富的立体景观
©夏强
▲度假般的风雨连廊系统
▲未来感的单元入口©夏强
▲内外无界的架空层©夏强
为实现最优的入户体验感,入户大堂模块设置了四级空间体验,设置面积150㎡、高度6m的四层挑高大堂,以景观艺术廊过渡,形成由单元入户雨棚灰空间—挑高接待大堂—景观艺术长廊—分户私属侯梯厅所构成的回家场所感。
▲入户雨棚实景©夏强
▲挑高入户大堂©BFC复星外滩中心
©BFC复星外滩中心
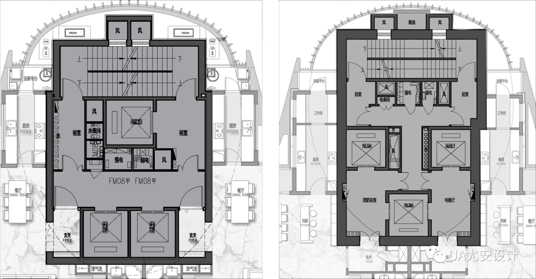
核心筒结构优化
在超高层住宅的设计中,如何平衡核心筒结构与使用体验品质是一大难题,需要在保证经济、合理、安全的同时,避免因结构墙过厚而降低产品的舒适性。设计将原概念方案中采用框架-核心筒的结构体系,结构墙厚需800mm以上的结构进行优化,通过增加核心筒的纵向净深和刚度降低建筑的高宽比,将结构墙厚度控制在了600mm以内,令户型实现薄板化,更具舒适感。
Before:
After:
▲核心筒结构方案修改对比
结合规范要求与核心筒方案比选,产品方案采用中小户型使用双电梯厅、大户型使用三电梯厅的组合,在空间构成上实现管井集约的布置。
超尺度景观户型
为实现景观最优化,项目在楼王产品设计中设置突破式的尺度与视野,为居住者提供更具奢阔感受的情景交融。以195㎡产品为例,为最大化沿江观景面优势,产品设置面江4面宽的奢阔尺度,客厅与书房构成约7.5m×8.9m的超大宽厅,并拥有双梯入户的仪式感与南向沿江180度的超尺度景观面。
▲195㎡户型平面
▲195㎡户型样板间©BFC复星外滩中心
©夏强
南北立面一体化
作为武汉城市名片,项目需呈现更契合CBD气质的优雅公建化立面,考虑到住宅建筑规范要求,经过与幕墙顾问RFR的研讨,立面设计确定南北一体化设计的类幕墙式窗墙体系,通过栏板玻璃材质、飘带铝板材质及涂料搭配的选材方案,最终呈现具有独特记忆点的公建化立面落地效果。
▲立面建成效果对比
手工感细部构造
为打造更具一体性与品质感的立面细节,设计对立面施控提出详细解决方案,令立面在千篇一律的公建化风格中体现出不一样的调性和品质。例如,设计通过全模推演,提出阳台栏杆底侧刷白色条纹漆方案,优化立面在交接细部的效果。
▲阳台栏杆交接方案
▲立面细部精工呈现©夏强
建筑类型:住宅
建筑面积:110 038平方米
开发业主:复地产发
规划及造型概念设计:KPF建筑设计事务所
规划及造型深化设计:UA尤安设计人居创作事业部 | 事业十二部
平面设计:UA尤安设计人居创作事业部 | 事业十二部
施工图设计:中信设计CADI
幕墙设计:阿法建筑设计咨询(上海)有限公司
交通顾问:MVA弘达
机电顾问:Arup奥雅纳
结构顾问:广州容柏生建筑结构设计事务所
获奖荣誉:第三届Pro+Award普罗奖居住建筑类铂金奖 | 第四届REARD全球地产设计大奖居住类建筑佳作奖
ATTENTION
*以上文字、数据、图片,仅为辅助项目设计表达,不构成任何要约和承诺。
本资料声明:
1.本文为建筑设计技术分析,仅供欣赏学习。
2.本资料为要约邀请,不视为要约,所有政府、政策信息均来源于官方披露信息,具体以实物、政府主管部门批准文件及买卖双方签订的商品房买卖合同约定为准。如有变化恕不另行通知。
3.因编辑需要,文字和图片无必然联系,仅供读者参考;
广州·精品项目考察

微信公众号“搜建筑”(ID:sjz9999)
合作、宣传、投稿
联系微信:soujianzhu006
阅读原文:“UA尤安设计”更多精品


