
The Sui and Tang Grand Canal is the earliest and largest canal in the world. Sui-Tang Dynasties Grand Canal Culture Museum is an important node project of the national canal culture strategy. The architectural design mainly has the following characteristics:
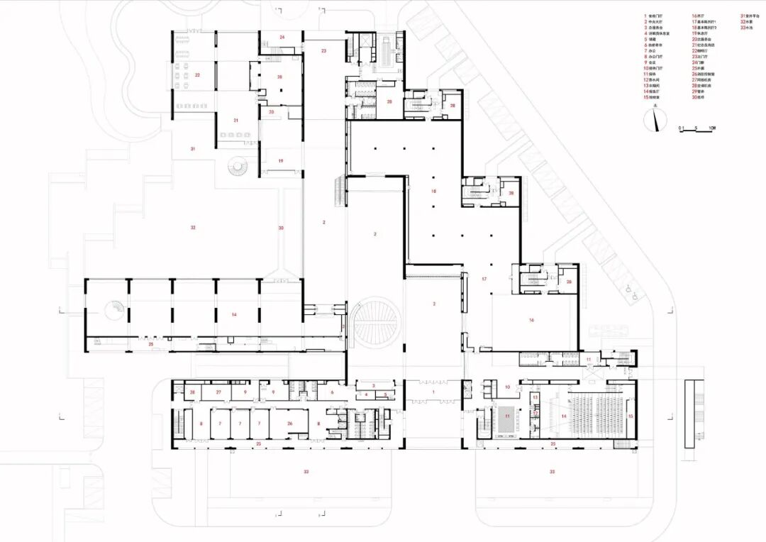
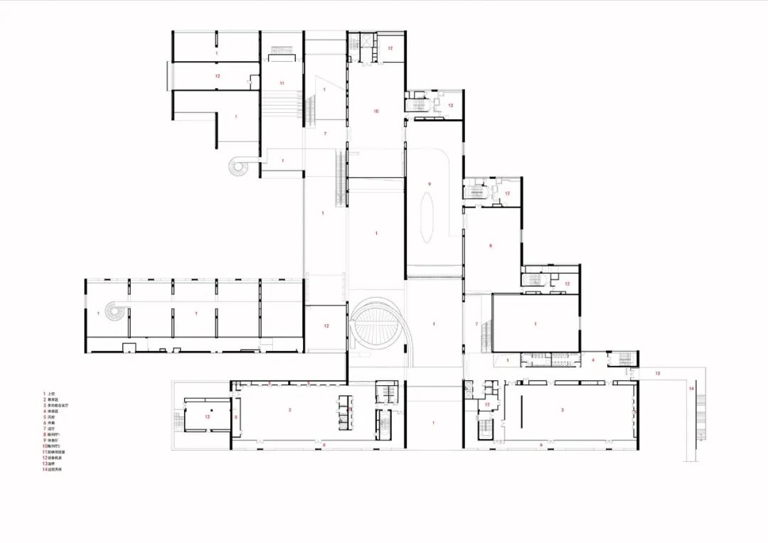
二层平面图
The site is located in triangular land at the intersection of Luo River and Chan River, and the spatial organization is inherently limited. On the one hand, the architectural layout of the museum respects and echoes the central axis of the Tang Dynasty-style buildings that have been formed on the Luo River embankment. On the other hand, in terms of the internal space organization, it uses the progressive functional space layout layer by layer to avoid adverse terrain effects, forming a complete and continuous exhibition hall unit and a variable internal space experience.
剖面图
In terms of architectural style, the museum is located within the scope of Luoyang City ruins in the Sui and Tang Dynasties, and a large number of landscape buildings imitating the Tang Dynasty style are planned around it. According to the usual thinking, this canal museum must be a Tang Dynasty-style building, Our design attempts to break away from the encirclement and bondage of imitating the style of the Tang Dynasty and look for different perspectives on the history and culture of the Sui and Tang Dynasties.
The Sui and Tang Dynasties was a peak period of the development of ancient technology in China. We grasped the technical characteristics of the ancient water conservancy projects of the Grand Canal in the Sui and Tang Dynasties, took the arch bridge structure erected on the Luo River as the prototype, and replaced the concrete imitation of the traditional style with the natural presentation of modern construction technology, so as to realize the dialogue between ancient and modern civilizations.
Dual application of structure: in the plane organization, the arch shear wall with transverse and longitudinal interweaving is adapted to form an effective two-way seismic structure system. In the section organization, the upper roof adopts prestressed concrete suspension plate & end concrete "Tang Dynasty tile" and the arched shear wall of the lower base to form a closed shear wall force transmission system. The structural features of plane duality form a clear indoor space structure through the pouring of fair-faced concrete with large formwork, while the structural relationship of section duality endows specific historical memory and cultural connotation through the combination of ceramic and blue brick materials.

爆炸轴测图

In terms of functional organization, the design especially strengthens the public conference area open to the Luo River in the South and the cultural and creative exhibition and education experience area open to the Grand Canal Park in the north, making the museum a veritable city living room.
The selection of main building materials emphasizes the principle of locality, i.e. "made in Luoyang". A large number of indoor and outdoor uses of the improved Luoyang three-color ceramic cladding, which better alleviates the alienation caused by the fair-faced concrete buildings and the defects in the internal space acoustics. Among them, the ceiling "Yunfan" is the world's largest ceramic ceiling artwork composed of 126986 three-color ceramic units.
During the design process, we repeatedly discussed the samples with local craft artists in Luoyang, and combined traditional ceramic crafts with modern design and processing techniques to promote the innovative development of Luoyang's traditional ceramic industry.

项目名称:隋唐大运河文化博物馆
项目地点:河南省洛阳市
项目业主:洛阳市文物局
基地面积:31817㎡
建筑面积:32986.3㎡
设计时间:2018.10~2020.9
施工时间:2020.9~2022.5
设计单位:同济大学建筑设计研究院(集团)有限公司
主创建筑师:李立
建筑设计:高山、王文胜、肖蕴峰、周峻、胡海宁、叶雯、郝竞、李飒、申银珠、李霁原、张溯之、黎彦希
结构设计:张准、张锦骁、马卫强、高文虹、高戈
暖通设计:曾刚、姚赛、徐桓、周鹏、祁栋盛
给排水设计:李伟、路璐、冯玮、黄倍蓉
电气设计:王坚、程青、程贵华、付明民、刘永强、陈佳璐、陈伟
灯光设计:杨秀、卞晨、杜怡婷、陈幸如、蔡文静、李彬豪
幕墙设计:金颖、闫云斌、张亮、李根恒
驻场建筑师:李飒
驻场结构师:孔忆辰
三彩陶艺制作:郭爱和、郭家启(室内) 、高水旺(室外)
展陈大纲:中国文化遗产研究院中国世界文化遗产中心
展陈设计:上海宽创国际文化科技股份有限公司
展陈施工:天禹文化集团
施工单位:河南三建建设集团有限公司
摄影师:姚力
本资料声明:
1.本文为建筑设计技术分析,仅供欣赏学习。
2.本资料为要约邀请,不视为要约,所有政府、政策信息均来源于官方披露信息,具体以实物、政府主管部门批准文件及买卖双方签订的商品房买卖合同约定为准。如有变化恕不另行通知。
3.因编辑需要,文字和图片无必然联系,仅供读者参考;
3月30-30号
武汉·精品项目考察
推荐一个
专业的地产+建筑平台
每天都有新内容
扫描二维码关注

微信公众号“搜建筑”(ID:sjz9999)
合作、宣传、投稿
联系微信:soujianzhu006
阅读原文:“同济设计”更多精品


