威盛大学学院霍森斯校区是一个开放和统一的共享学习和知识环境,直接与城市和景观相结合,在学生、员工、企业和城市市民之间创造联系和关系。该建筑是霍森斯校区的一部分,同样由C.F. Møller建筑事务所设计,位于霍森斯火车站旁的中心位置。总的来说,威盛大学学院霍森斯校区将教育、商业、城市生活和艺术结合在一起,促进了协同作用和凝聚力。
VIA University College Campus Horsens is an open and unifying shared learning and knowledge environment that is directly integrated with the city and landscape, creating connections and relationships between students, staff, businesses, and the city's citizens. The building is part of Campus Horsens, also designed by C.F. Møller Architects, and is centrally located alongside Horsens Railway Station. Overall, VIA University College Campus Horsens unites education, business, urban life, and art in a way that boosts synergies and cohesion.
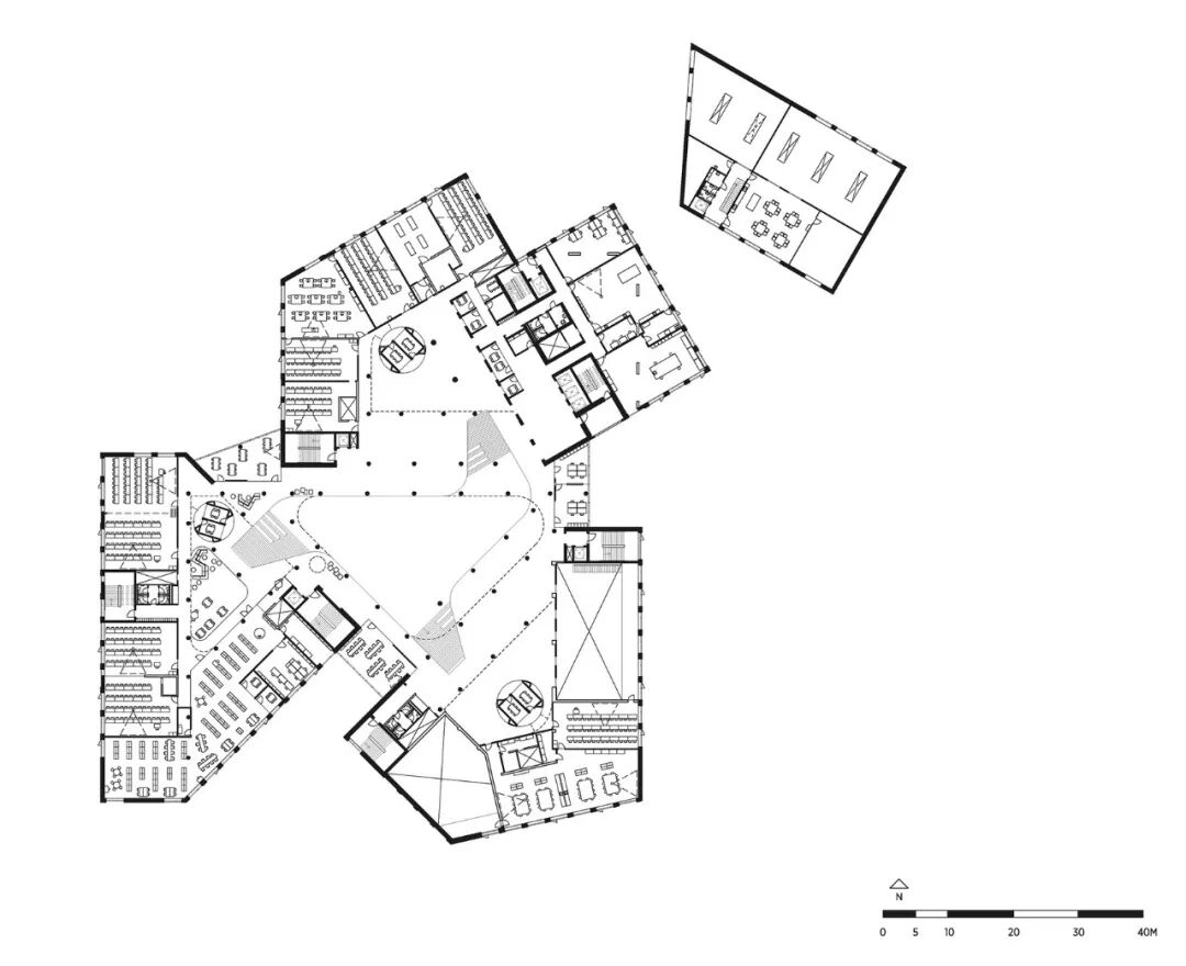
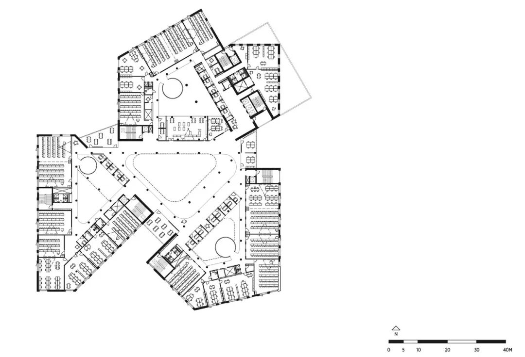
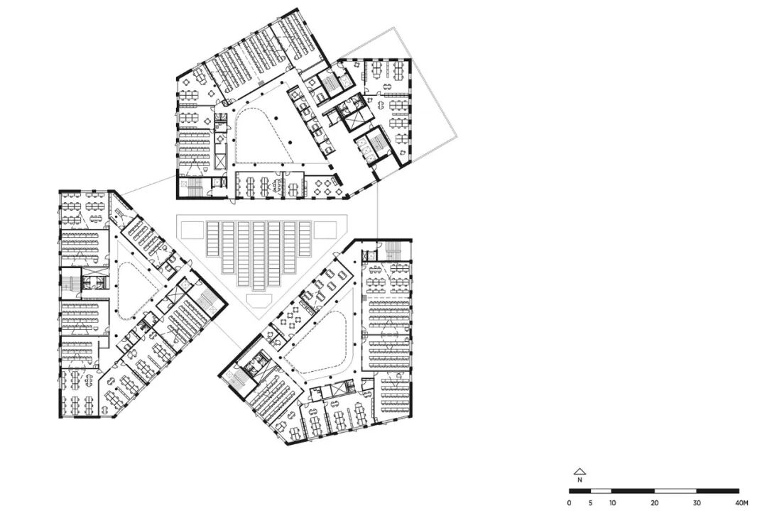
该建筑群由一座明亮、细长的16层塔楼和三座中庭建筑组成,所有这些建筑都由一个中央的内部公共中庭空间连接,它既将所有的教育研究统一起来,又作为一个新的公共空间供城市的市民使用。
The building complex consists of a bright, slender 16-storey tower and three atrium buildings, all of which are connected by a central inner common atrium space, which both unites all educational studies and serves as a new publicly accessible space for the city's citizens.
The building complex consists of a bright, slender 16-storey tower and three atrium buildings, all of which are connected by a central inner common atrium space, which both unites all educational studies and serves as a new publicly accessible space for the city's citizens.
这座被称为 "创新之家 "的塔楼,下面八层是威亚大学学院,而上面八层则由丹麦建设中心占用,这是一个将初创企业和成熟企业联合起来的创新环境。这种双重占用为学生和公司之间的交流提供了机会。
创新之家高度为68米,是霍森斯市最高的建筑。建筑物的外部几何形状和材料组成都经过精心筛选,以适应该地区和城市,建立新的外部城市空间,使威亚大学学院与附近的城市生活相结合。
The tower, called Innovation House, houses VIA University College on the lower eight floors, while the upper eight floors are occupied by Construction Center Denmark, an innovation environment that unites start-ups and established companies. This dual occupation provides opportunities for exchange between students and companies. At 68 metres in height, the Innovation House is the tallest building in Horsens. The buildings' external geometry and material composition are carefully attuned to the location and the city, establishing new exterior urban spaces that integrate VIA University College with nearby city life.
霍森斯威盛大学学院的建设重点是创造开放和鼓舞人心的学习环境和学术中心,在学生、企业和市民之间创造协同作用和跨学科关系。每个中庭建筑都有代表自己的专业和学习项目。这里有壁龛、中庭楼梯和热点以及生活和学习的阳台,结合开放空间和团体的中心,教师和学生对空间的使用和活动作出贡献。
VIA University College Horsens is built with a strong focus on creating open and inspiring learning environments and academic hubs that create synergies and interdisciplinary relationships between students, businesses, and citizens. Each atrium building represents its own professions and study programs. There are niches, atrium staircases, and hotspots along with balconies for living and learning, combined with open spaces and hubs for groups where teachers and students contribute to the use and activities of the space.
学习项目围绕学术中心和共享环境进行分组,如图书馆、礼堂和一个可供公众使用的食堂和咖啡馆。低层的设计是为了支持基于活动的学习和知识共享,而高层则提供安静和沉思的空间。建筑内部显得柔和而圆润,以支持一个充满活力和友好的环境,在中庭建筑之间有独特的视觉连接,并向外延伸到城市,同时也让公众能够看到。
The study programs are grouped around academic hubs and shared environments such as the library, auditorium, and a publicly accessible canteen and café. The lower levels are designed to support activity-based learning and knowledge sharing and the upper levels provide spaces for quiet and contemplation. The interior of the building appears soft and rounded to support a vibrant and friendly environment, with unique visual connections across the atrium buildings and out to the city, as well as for the public to look in.
该建筑的特点是采用简单的设计策略,使用精选的触觉材料,如红色和金色细微差别的砖、温暖的橡木、少数精选的暖色系纺织品,以及中庭中引人注目的明亮和动态的切口,并配有天窗,将建筑物的内部统一在一个既明亮又充满活力的景观中。
总的来说,室内创造了柔和的角落和有机的生活氛围,这与建筑外部更鲜明的切割形成了鲜明的对比。栏杆和室内的其他关键元素也是由C.F. Møller建筑事务所设计的,由耐用材料制成,使用寿命长。
The building is characterized by a simple design strategy, using a selection of tactile materials such as brick in red and golden nuances, warm oak, textiles in a few selected warm colors, and striking bright and dynamic cut-outs in atriums with skylights that unite the interior of the buildings in a landscape that is both bright and vibrant. In general, the interior is created with soft corners and an organic living touch, which contrasts with the more sharply cut exterior of the buildings. Balustrades and other key elements of the interior, also designed by C.F. Møller Architects, are made of durable materials with a long lifespan.
直接融入大楼的艺术是由法国著名艺术家丹尼尔-布伦与C.F. Møller建筑事务所合作创作的。这些艺术为学生、企业和城市市民创造了独特的体验,同时使用户很容易找到他们在建筑中的位置。例如,可以看到综合艺术以大型作品的形式与创新之家、礼堂和中庭的玻璃天花板相连,彩色玻璃创造了一个将学生、空间和光线结合起来的作品。
Art integrated directly into the building was created by the renowned French artist Daniel Buren in collaboration with C.F. Møller Architects. The art creates unique experiences for students, businesses, and the city's citizens while making it easy for users to find their way around the building. The integrated art can be seen, for example, in the form of a large work in connection with the Innovation House, the auditorium, and in the atrium's glass ceiling, where colored glass creates a work that unites students, space, and light.
这些建筑被建造和设计为紧凑型建筑,重点关注能源优化、建筑材料最小化、低运行成本以及良好的室内气候和优化的日照条件,使学生和教师感到舒适。建筑物设计紧凑,所有功能都在一个屋檐下,因此教育项目之间的距离很短,服务运行时间也较短,外墙面积较小,从而减少了对供暖和制冷的需求。建筑物的结构墙很少,而且有集成的扩散性通风,这使得建筑物在未来的适应性方面很灵活和坚固。
The buildings have been constructed and designed as compact buildings with a focus on sustainability in terms of energy optimization, minimization of building materials, low running costs, and a good indoor climate with optimized daylight conditions in which students and teachers feel comfortable. The compact design of the building with all functions under one roof results in short distances between the education programs, shorter service runs, and a smaller facade area, which reduces the need for heating and cooling. There are few structural walls and integrated diffuse ventilation, which makes the buildings flexible and robust for future adaptations.
霍森斯校区是城市新发展的地标,未来的重点是知识共享和创新。
The Horsens campus is a landmark for the city's new development and future focus on knowledge sharing and innovation.
获取更多新内容、新知识
本资料声明:
1.本文为建筑设计技术分析,仅供欣赏学习。
2.本资料为要约邀请,不视为要约,所有政府、政策信息均来源于官方披露信息,具体以实物、政府主管部门批准文件及买卖双方签订的商品房买卖合同约定为准。如有变化恕不另行通知。
3.因编辑需要,文字和图片无必然联系,仅供读者参考;
推荐一个
专业的地产+建筑平台
每天都有新内容
扫描二维码关注

微信公众号“搜建筑”(ID:sjz9999)
2月16-17号
重庆·精品楼盘考察活动
▼点击下图,了解报名
