▲ 更多精彩,点击关注“搜建筑”
类四代住宅
都市与田园兼顾的人居创想
徐辉设计股份有限公司

闻风赏月繁花里,煮酒吟诗醉星辰
从城市回归森林
这里是,龙记未来城市森林
日益加速的城市化进程,加大了中小城市的建设步伐,伴随着日渐完善的城市基础设施建设、社区建设,人们对于理想人居标准的“关键词”不再止于交通、配套、现代化,森林、生态、庭院、花园逐渐成为城市住宅的稀缺品。

龙记未来城市森林
位于安徽省滁州天长市城东板块
项目近享天长中学等教育资源、宝龙城市商业广场等配套
距天长汽车客运中心3.2公里,交通便利
值得一提的是,项目周边规划三大公园
天长地久公园、市政公园、奥林匹克健康公园
区域内景观资源丰富

▲项目区位
针对项目所在区域特点和人居产品类型,“泯然于众”的传统住宅项目对于客户及购房者来说,都不足够有购买价值。设计团队希望能呈现出能够“出圈”的优质方案——立足区域便捷的生活、景观资源,兼顾业主居住感受及区域建筑协调性,设计团队计划开创区域内“类四代住宅”先河——将居住属性与自然生态融为一体,让高层人居拥有不输于花园别墅的居住体验。

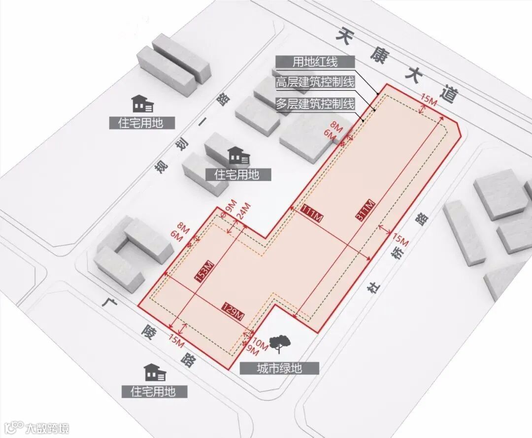
▲项目基地情况
此外,项目所在地块的局限性同样给设计团队带来不小挑战。项目基地狭长而不规则,且当地技术条件对产品面宽最大化的实现也有限制,传统的住宅设计很难满足“类四代住宅”的超大面宽需求。设计团队通过“研发+设计”双管齐下,对基地价值进行了充分挖掘。


▲设计方案演变
在人居体验方面,充分结合当地技术规定和日照限制条件,通过建筑之间错位布局,增加居住私密性的同时,将产品面宽做到极致,形成超大景观视野。
在区域形象方面,设计团队则将“打造区域名片”作为目标,充分考虑项目外在视觉体验,通过楼栋位置的巧妙错位结合,提高沿街界面的视觉渗透感,将城市界面最大化展示,使城市天际线富有变化,充满节奏感。

▲沿街日景效果图
随着时代变迁,住宅建筑的功能属性早已不止于传统的遮风挡雨。市场产品创新研发能力及市场化设计思路是徐辉设计的三大核心特点之一。在本项目,徐辉公司设计团队通过构建新的建筑形式,以区域资源孕育项目风格,用项目界面提升区域形象。


▲多维度复合景观体系
在社区内部,通过内部造园实现“类四代住宅”的最大特色——让高层与庭院共生。引入“地面绿化+层间绿化”的多维景观结构,使空中庭院与社区景观进行有机结合,打造多维度复合景观体系。

▲剖面示意图
独特的设计也将为区域业主提供前所未有的居住体验——家中有景、景中有家,满足中国人对于院落式居住的特殊情结,于繁华中享受自然环绕的居住乐趣。
在户型设计方面,设计团队破旧立新,以T4与T3的116-135㎡三、四开间产品为主,整体采用私家电梯厅,3.15m层高,通过飘窗、两层通高空中花园设计,极大提高居住的舒适度。

▲135㎡户型图
135㎡户型,采用3+1房多厅设计,空中花园赠送面积约为33.91㎡/45.90㎡,7.3m*6.2m方厅设计,超大挑高空中花园与270°全景客厅相映成趣。270°全景客厅引景入室,四时之景一览无余;电梯独立入户的设计,提高入户私密性、品质感与尊崇感。


▲项目立面效果图
优秀的建筑设计不仅要营造舒适的空间体验,更要考虑项目整体的城市形象,竭力为客户打造极具市场竞争力的产品。

▲充满韵律的立面设计
在立面造型设计方面,设计团队结合市场,采用简约现代的立面形象,通过横向线条及材质的变化加强建筑的韵律感;弧形的转角设计让建筑外形更加灵动,凸显时尚未来感;加之挑高的空中庭院,将现代建筑立面风格与自然生态完美结合,实现无界的绿色森系人居体验。

▲大门前场效果图

▲售楼部与景观示范区实景图
在社区的入口空间,设计团队结合项目景观示范区、城市会客厅的设计,通过多重院落的引入,提高居民归家仪式感,营造充满活力、富有趣味的归家体验。

▲多重院落组织,提高归家仪式感
本案多维生态与居住功能的完美结合,使得建筑美学得到充分展现,也彰显了设计团队卓越的设计能力、创新研发能力及对细节的专注。本案将人居建筑设计看做一颗种子,赋予其源源不断的生命力,让项目得以扎根落地,与城市共生。
项目信息
项目名称:龙记未来城市森林
项目地点:安徽省滁州天长市
建设面积:14.8万平方米
设计时间:2021年3月
业主单位: 天长市德瑞景房地产开发有限公司
规划/建筑设计单位: 徐辉设计股份有限公司
项目指导总监:董佩、李拓栋
项目主创:陈晓宁
设计团队主要成员:田亚奇、马永亮、程武一、李明、张晓明
更多精品·点击关注
郑州·精品项目考察

微信公众号“搜建筑”(ID:sjz9999)
合作、宣传、投稿
联系微信:soujianzhu006


