摘要
Abstraction
设计灵感来源于项目所在的大榭岛上“海阔凭鱼跃,天高任鸟飞”的壮丽景致。建筑的曲线造型细腻而富有动感,仿佛是周围山脉的自然延伸,也如一艘乘风破浪的万吨巨轮,正航行在走向世界的广阔海洋,以彰显万华的企业愿景与开放进取的博大胸怀。
联创集团承担了项目的总包管理、以及从建筑到室内、景观、照明等全工种,全过程的设计,保证了高度的设计一体化。室内设计也延续了海浪的设计理念,与建筑的曲面造型相呼应,让外形与内部空间之间保持一致。
The design inspiration comes from the magnificent scenery of "the sea is wide enough for fish to leap, and the sky is high enough for birds to fly" on Daxie Island where the project is located. The building's curved shape is delicate and dynamic, as if it were a natural extension of the surrounding mountains. It is also like a ten-thousand-ton giant ship plowing through the waves at full speed, sailing towards the vast ocean of the world, to showcase Wanhua's vision and open-mindedness.
The UDG Group undertook the overall project management and the design of all processes, including architecture, interior, landscape, lighting, and other works, ensuring highly integrated design. The interior design also continues the design concept of the waves, echoing the curved shape of the building, keeping the consistency between the exterior and the interior space.
1 /概念立意 / “海阔凭鱼跃,天高任鸟飞”
万华集团是一家以化工、新材料、高性能聚合物、农业、金融等多元化产业为主体的世界500强企业。万华化学在欧洲、美国、日本等十余个国家和地区均设有公司和办事处。万华化学致力于发展成为全球化运营的一流化工新材料公司。
▲建筑的波浪造型
宁波万华新材料研究中心的设立,希望依托宁波港的全球性属性,面向世界广阔的舞台。设计之初就确立了海浪和巨轮两大设计主题,以展现万华企业对国内的强大辐射能力和走向世界的领航者形象。
▲建筑的波浪造型
基地四周延绵的群山,起伏的海潮,赋予了建筑整体曲面起伏的造型,建筑的曲线造型细腻而富有动感,仿佛是周围山脉的自然延伸,体现着大自然的雄奇和壮美。
▲与山水呼应
建筑的起伏和流畅,形似海浪的形态,让人联想到大海的汹涌与澎湃,体现着生命的力量和活力,同时象征着万华集团面向世界,乘风破浪,锐意进取的企业精神,犹如一艘万华巨轮迎着波浪开往全世界。
▲夜景隐约可见室内的波浪退台
2 /建筑生成 / “依山赋形,融合环境”
基地位于宁波大榭开发区,基地西南侧邻滨海西路,东北侧邻信开路,东面为将军山,西南临海,西北侧邻地未来建设体育公园,南侧为大榭一桥公园,因此将建筑主立面朝向西南,视野开阔,景色优美。
▲区域位置
隔海一侧为优良巷道,大小船只往来水上,船只扬起的波浪,形成一道亮丽的风景。场地东北侧为大榭岛山脉,连绵起伏,山型优美,山上植被茂密,为场地的微气候的营造提供了良好的基础。
▲项目周边
南侧的跨海大桥为连接本岛与外界的主要通道,桥体高度适中,可以俯瞰基地,是本项目对外展示的主要界面。
▲场地分析
规划布局通过分析地块的自然环境及交通情况,将基地分为两个功能区域:科研区和配套区。将科研功能布置在朝向西南的滨海路一线,拥有更好的景观,并且便于对外展示形象。
▲建筑生成
总图布置化整为零,通过对体块的切割,增加了建筑与自然景观的接触面,更好地融入优越的自然环境,并形成几个小的院落,利于打造宜人的微环境。
▲建筑与环境
设计将中试车间及仓库等厂房辅助功能布置在用地东北侧较为隐蔽的区域,隔绝人流干扰。两个功能分区相对独立,中间以道路分隔,还有利于与西北侧二期地块形成有机整体。
▲山海之间的建筑
3 /内外一体 / “总包设计,高度协同”
上海联创承担了项目的总包管理、建筑方案设计、室内方案设计、建筑施工图设计,还完成了室内施工图设计、幕墙、夜景亮化和景观设计等,保证了建筑设计的一体化、深度协同。
▲建筑造型
建筑造型以“乘风破浪的万华巨轮”为立意,同时也是对对基地周边山势和海浪的呼应。室内设计也延续了层层海浪的设计立意,与建筑的曲面轮廓线相呼应,让外形与内部空间之间保持一致和逻辑上的关联。
▲建筑功能构成
巨轮、波浪的造型也是室内建筑公共空间表现的重点。曲线的形态,波浪的意向通过连续流畅的线条,层层的平台,充满韵律感排列的弯曲结构构件,在公共大厅得到充分展现。
▲建筑剖视图
通高的入口大厅容纳了接待、咖啡、展厅、餐厅、会议、办公等多重功能,成为万华人迎接海内外宾客,并向全世界展示其创新能力的重要场所。
▲ 室内空间
大面积玻璃幕墙让日光充分进入室内,让周围的自然景观资源透进室内,模糊了室内外的界限。层层的平台犹如巨轮的甲板。玻璃顶层的圆形空中会议厅将成为万华对外发布其最新研发成果的重要舞台。
▲室内空间
而朝向海湾设置的公共空间则能将海景尽收眼底,不仅为万华员工提供了惬意的观景休闲空间,也成为面向宁波港的城市客厅,体现了万华化学的开放姿态。实验楼平面相对规整,利于功能布置,朝向内庭院的开敞面获得庭院景观的同时,也能让实验环境免除干扰,保证私密性。
▲室内空间
4 /技术图纸
▲总平面图
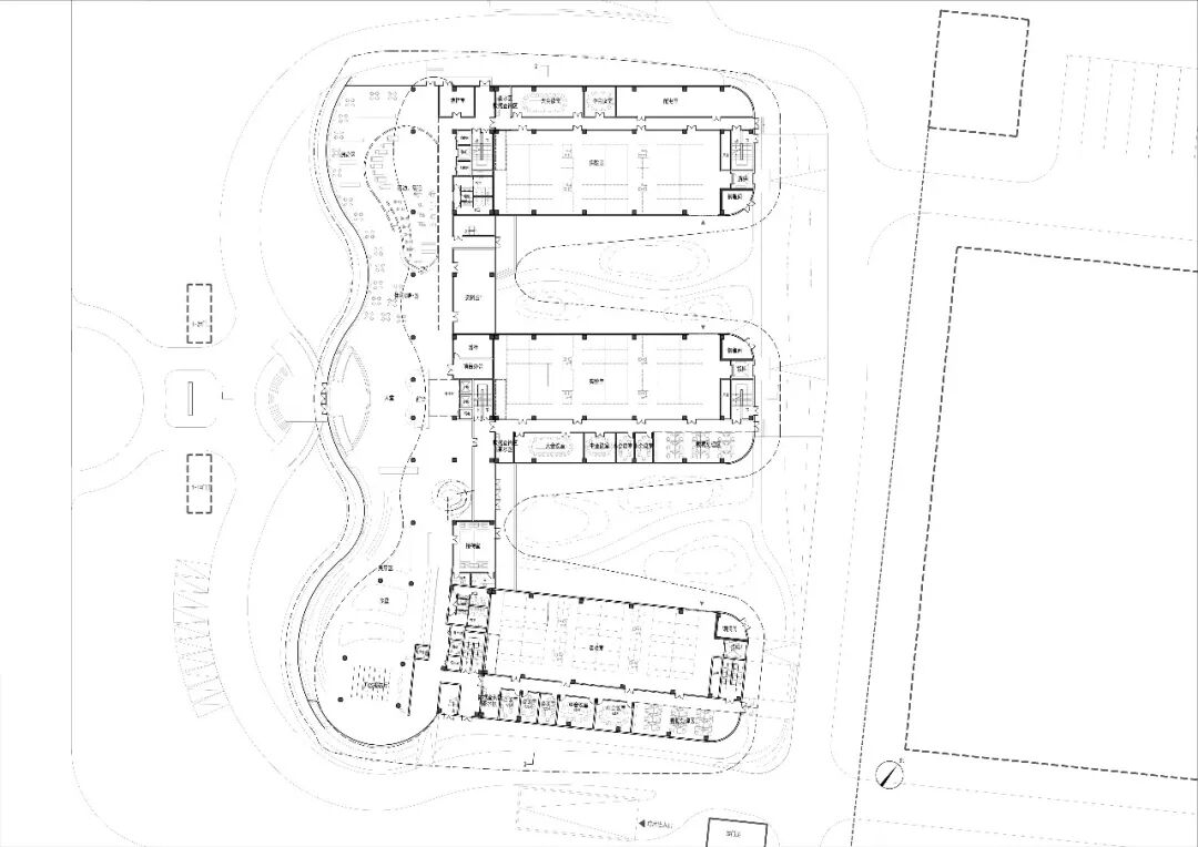
▲一层平面图
▲二层平面图
▲剖面图
▲剖面图
- END -
项目名称:
项目地点:
建成时间:
业主单位:
设计单位:
建筑团队:
景观设计:
室内设计:
结构团队:
机电团队:
幕墙设计:
灯光设计:
建筑摄影:
万华宁波高性能材料研究院
浙江 宁波
2022年9月
万华化学集团股份有限公司
上海联创设计集团股份有限公司
上海联创 都市综合设计研究院
上海联创 景观设计部
上海联创 都市综合设计研究院
/室内设计院
上海联创 结构二部
上海联创 机电一部
上海联创 BSD幕墙工作室
上海联创 光速写设计工作室
iNNS合什建筑空间影像 BIM团队:联创集团 BIM研发中心
本资料声明:
1.本文为建筑设计技术分析,仅供欣赏学习。
2.本资料为要约邀请,不视为要约,所有政府、政策信息均来源于官方披露信息,具体以实物、政府主管部门批准文件及买卖双方签订的商品房买卖合同约定为准。如有变化恕不另行通知。
3.因编辑需要,文字和图片无必然联系,仅供读者参考;
武汉·精品项目考察
推荐一个
专业的地产+建筑平台
每天都有新内容
扫描二维码关注

微信公众号“搜建筑”(ID:sjz9999)
合作、宣传、投稿
联系微信:soujianzhu006
阅读原文:“UDG联创设计”更多精品


