▲ 更多精品,关注“搜建筑”
融通之城
杭州祥润城·城市综合体
DC国际
— 商业为引,对话城市
— 打造综合体高效利用新模式
1
开放的“姿态”
项目位于杭州市拱墅区西北部,周边以居住及商业用地为主。立足于融合城市特色,项目旨在以“开放”、“交互”的理念,打造一个集办公、休闲、消费为一体的现代化场所。
项目着力于建构自身与城市的内外对话关系,处理好与周边商务、居住等地块的互动联系,并且在基地内部,让各种业态之间做到相对独立但又互相连通。
△ 整体鸟瞰
2
合理地“串联”
在规划之初,如何强调综合体各功能间的互动,实现价值最大化是考虑的重点。项目以“开放商业”为突破点,将人流引入场地内部,沿不同界面打造不同氛围的主题商业带。
△ 业态分布
我们在商业设计布局上做了以下
思考:
1. 引入人群进入场地,最大化首层面积,挖掘土地价值。
2. 除酒店入口对外直接展示,其他公寓及办公入口均朝内;保证酒店对外的昭示性,同时到达酒店的可达性最优,内部的花园空间提高了公寓及办公的出入体验,增强场地与建筑功能的联系。
3. 重点区域如入口处设置广场,做标识引导;提供人流汇集的广场空间,促进商业与人流的互动,缓解内部商业空间拥挤感,起到一“收”一“放”的空间作用。
4.内部结合庭院,布置散点式商业。庭院式的商业提高商业的价值性,必要时可利用庭院空间组织活动,提高商业氛围。
△ 布局示意
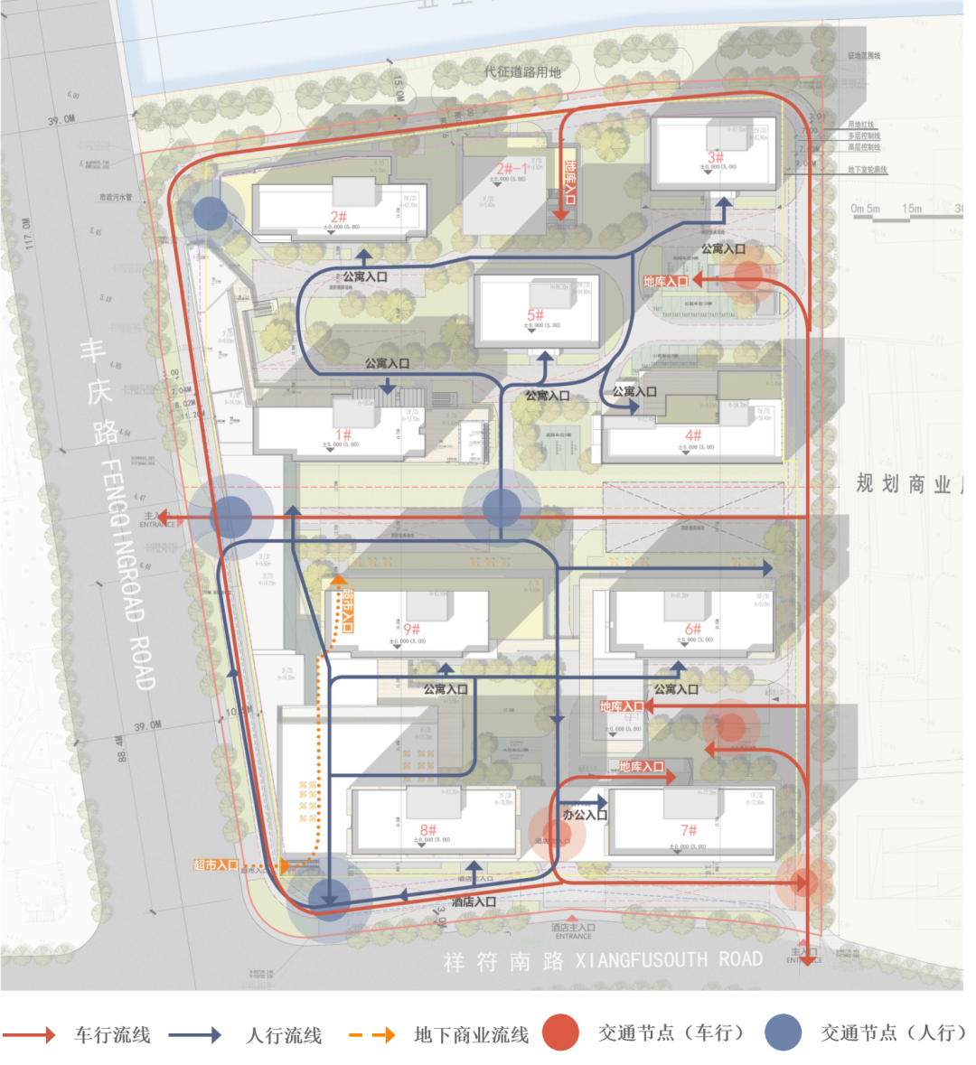
我们希望打造一个多场景集合的漫步式城市生活街区,向使用者提供有别于传统模式的办公体验,使得各区域交互融合,从流线上进一步强调行为的可能性。
△ 流线分析
由此一来,设计形成了三个不同的商业氛围带,塑造出弹性化的功能空间与自然生态互融互通。
(1)沿路一侧打造城市社区商业氛围带;
(2)中间沿活力景观轴打造开放街区公园氛围带;
南北地块中间区域联合打造活力景观轴,通过绿化、商业外摆区等形成连续的开放的街区氛围。
(3)沿支路商业一侧,打造景观休闲商业氛围带。
3
生长的“笔触”
立面设计考虑到空间布局、天际线关系、及对周边建筑日照的影响,采用穿插交错的形式,以简约而流畅的横纵线条勾勒精致的比例。
商业上部的建筑体量部以竖向线条为主,采用逐步退台的处理方预留大量露台,功能性与美观性兼得,尤其在夜间,商业氛围被烘托更甚。
将首层商业体块向内退,使二、三层的石材形成“漂浮”的体量感,虚实变幻之间,趣味十足。
公寓、办公在北区地块立面的基础上进行优化设计,以横向线条为主,并通过富有韵律的立面节奏,在人视角度上营造轻松舒适的氛围。
竖向立面则以垂直线条为主,在竖直方向上进一步续写设计语言,呈现出向上生长的勃勃生机与力量。
在选材上,大面积的玻璃与石材虚实相生,点缀以金属线条提升立面整体质感。
结语:复合型商业空间需要以融合的姿态特别关注“人”在场所中的的重要性,做到合理的流线,发挥高效的功能布局,创造更多的可能。
项目名称:杭州祥润城·城市综合体
项目地址:浙江杭州
项目业主:华润置地
用地面积:36436㎡
建筑面积:208235.23㎡
建筑设计:DC国际
设计团队: 李明基 许思华 顾佳妮 吴黎明 马潇吟
项目摄影:DC国际品牌部
本资料声明:
1.本文为建筑设计技术分析,仅供欣赏学习。
2.本资料为要约邀请,不视为要约,所有政府、政策信息均来源于官方披露信息,具体以实物、政府主管部门批准文件及买卖双方签订的商品房买卖合同约定为准。如有变化恕不另行通知。
3.因编辑需要,文字和图片无必然联系,仅供读者参考;
郑州·精品项目考察

微信公众号“搜建筑”(ID:sjz9999)
合作、宣传、投稿
联系微信:soujianzhu006
阅读原文:“DC国际”更多精品


