
The redesign has given the library a completely new look, characterised predominantly by the two-storey glass-fronted platform that juts out from the top of the historic reading room, originally built in 1895. Demolishing the 1970s-built extension uncovered the historic, listed façade on the north side of the library, which now has a large covered area in front of it. The effect of this – in regard to the urban development of the centre of the en-tire campus – was a major factor in the jury’s decision.
The new building more than meets the requirements of a 21st century library, combining different structures, functions, rooms and styles into one homogeneous ensemble.

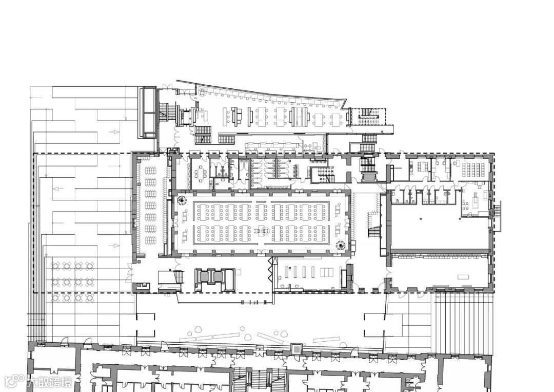
Architect Thomas Pucher also introduced a transparent atrium to connect the library with the main university building, and consolidated the hotchpotch of different add-ons and extensions that had been built over the years into one cohesive whole. He also succeeded in restoring the original library and the historic part of the building to their former glory.

The result is a union of opposites between the existing, listed building and the new building, which serves as inspiration for anyone visiting the library, as well as making it the heart of the university campus. The new atrium takes on the role of an entrance and events foyer, and acts as a central junction – with entrances from the north and south, as well as from the main university building.
From here, students can also get to the lecture hall and the library service points. They can also access the workstations in the reading room and on the new upper storey provided by the glass platform.
For the first time, the various sections of the building have merged to form one unit.

项目信息
本资料声明:
1.本文为建筑设计技术分析,仅供欣赏学习。
2.本资料为要约邀请,不视为要约,所有政府、政策信息均来源于官方披露信息,具体以实物、政府主管部门批准文件及买卖双方签订的商品房买卖合同约定为准。如有变化恕不另行通知。
3.因编辑需要,文字和图片无必然联系,仅供读者参考;
武汉·精品项目考察
推荐一个
专业的地产+建筑平台
每天都有新内容
扫描二维码关注

微信公众号“搜建筑”(ID:sjz9999)
合作、宣传、投稿
联系微信:soujianzhu006


