▲ 更多精品,关注“搜建筑”

建筑师不仅要赋予一座建筑优雅的外观,更要提供高质量的居住空间、周全的配套和丰富的社区文化。这就要求建筑师要是个多面手,不仅要有丰富的建筑和科技知识,还要有敏锐的艺术感觉和社会关怀。

项目位于四川省德阳市,北侧为廷河路,南侧为洛河路,西侧为庐山北路,东侧为屏山街临规划公园。项目包括沿庐山北路向东展开布置的1栋五层商业建筑和7栋住宅。
项目充分考虑了与城市外部空间环境的融合,布局沿东西向主景观轴对称,远眺东侧东湖山及西侧主城河,与主干道庐山北路西侧的公园及文化建筑布局相呼应。

项目整体规划以点式高层住宅进行围合式布局,形成大尺度且通透的中庭景观空间,一条环形跑道将8栋建筑环抱成一个整体,形成一个开放而私密的邻里交往和情感互动的公共空间。设计团队对项目的日照以及一年四季的内部风场进行反复计算、推敲,寻找最适宜人居住的科学的规划布局。
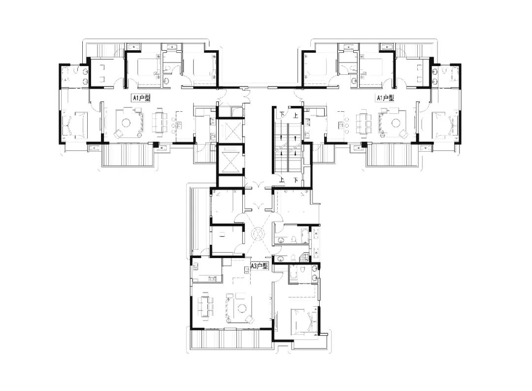
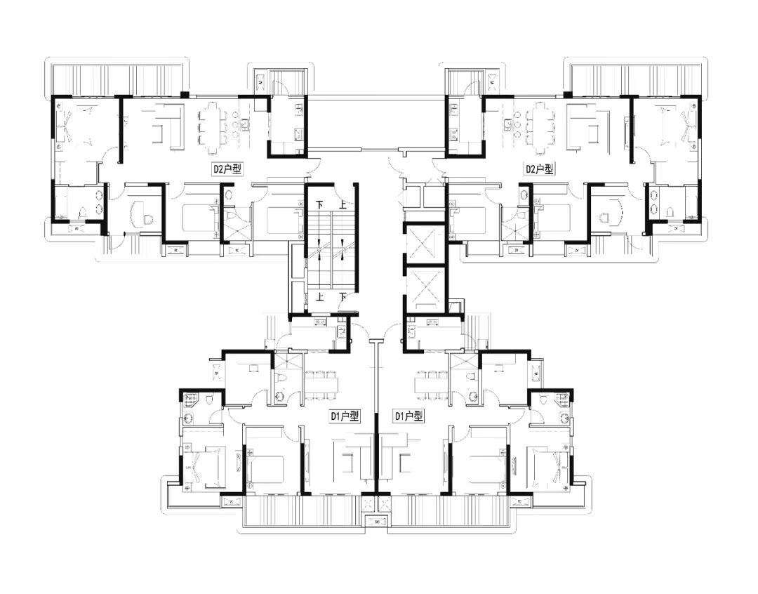
平面图
项目打破了惯常单调的行列式住宅建筑形态,特别设计了“Y”字形的建筑形态,以“Y“形平面为主的住宅楼分立社区四周,与社区入口处的多层商业建筑一同构筑成一个空间层次丰富、尺度多样的社区。
“Y”形平面住宅的优势是让每户居民都可以享受来自三个方向的阳光,而开放式景观阳台的有序变化不仅丰富了建筑形态,还为居民提供了享受自然的场所——感受新鲜的空气、慵懒的阳光、和煦温暖的风。

多层商业建筑由Cendes联合法国AS建筑工作室共同创意设计。建筑形态抽象自层叠的山峰和流动的瀑布。通透连续的大面积玻璃和金属幕墙的设计,演绎了极具美感的山水建筑形态。建筑还以开放的姿态面向城市,充满雕塑感的建筑形态,不仅呼应了住宅建筑,也丰富了城市天际线。

考虑到居民休憩和便利,项目设计以多样化硬质铺装与绿化景观相结合,打造尺度宜人的景观中庭。住宅首层的局部架空设计,引入了内院及中庭景观,与庭院绿化及公共活动空间结合,增加了居民交流互动区域。
建筑外立面采用全金属幕墙设计,使建筑具有公建化立面的品质和美感。顶部装饰构架内退收敛的方式,令各高层建筑富有立面细节,错落有致、形态变化丰富。

项目不仅探索地上建筑设计美学,还开辟出简洁美观的下沉休闲广场。广场地面造型似船开疆拓土。它不仅是一个休闲庭院,还是一个积极进取的社区精神聚合场。白墙内隐藏设计了泳池、健身房、会所、四点半课堂等公共活动空间,这些空间加深了人与人、人与社会的互动、融合。

Cendes相信:“理想的住宅建筑实践需要艺术与科技相融合才能得以实现。”营造人性化的空间和社区精神,离不开科技的力量。项目自始至终采用全智能化设计,可谓是一个科技化和人性化为一体的“未来社区”。

本资料声明:
1.本文为建筑设计技术分析,仅供欣赏学习。
2.本资料为要约邀请,不视为要约,所有政府、政策信息均来源于官方披露信息,具体以实物、政府主管部门批准文件及买卖双方签订的商品房买卖合同约定为准。如有变化恕不另行通知。
3.因编辑需要,文字和图片无必然联系,仅供读者参考;
专业的地产+建筑平台
每天都有新内容
扫描二维码关注

微信公众号“搜建筑”(ID:sjz9999)
合作、宣传、投稿
联系微信:soujianzhu006
阅读原文:“山鼎设计”更多精品