“钟中+钟波涛”工作室(Z&Z STUDIO)
“守望”北站 @山间影像Inter_mountain
独倚阑干凝望远。一川烟草平如剪。
——《蝶恋花》【宋】谢逸
龙华区北站消防站采用集中式布局,以长方盒子为主体,穿套一长、一方两个小盒子与灰色体块咬合,用充沛的面宽带来舒展的体形。远眺深圳北站,它被誉为“时刻守望着的安全卫士”。
01 / 项目概况
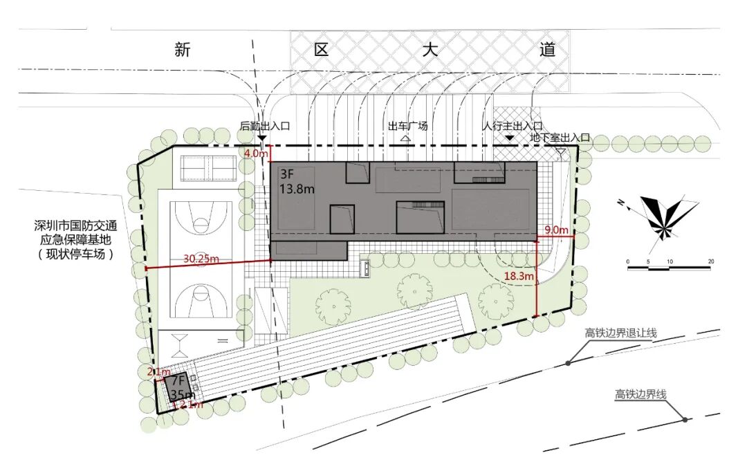
北站消防站位于深圳市龙华区新区大道与中梅路交汇处,南北两侧均为绿化用地,东侧紧贴新区大道,西侧临近高铁线路。由于干扰很大,故采用尽量远离高铁线的“集中式”布局。西北角是深圳市国防交通应急保障基地,按规范必须退线30.25m,对布局影响重大,导致建筑靠向东南角。虽用地紧张,我们仍尽量利用站体、训练塔、绿化和缓坡围合成“内院”,为消防员营造一个安静的、“麻雀虽小,五脏俱全”的生活和训练环境。
项目用地面积5321.57㎡,属于一级消防站。容积率0.75,总建筑面积5182.38㎡,其中计容建筑面积3996.18㎡,不计容建筑面积1186.2㎡,包括一栋3层高业务楼和一栋7层高训练塔。是一座背靠铁路、缓坡,处在龙华核心区边缘的典型“集中式”消防站。

区位图 @Z&Z STUDIO
02 / 消防站研究
(一)深圳的“消防站标准化设计研究工作坊”
2014年10月,由深圳市建筑工务署、深圳市公安消防支队与深圳市城市设计促进中心组织开展的深圳2014“消防站标准化设计研究工作坊”及建筑设计竞赛。通过系列设计调研、专题研讨会、公开活动等,重新思考消防站的功能,逐步形成消防站的“标准化”建设模式,以满足未来深圳市消防站快速设计与建设的需求。

& 消防站功能关系 @Z&Z STUDIO(右)
在同一套“标准化设计共识”指导下,各单位参与进一步提出自己的解决方案,以满足未来深圳市消防站快速设计的建设需求,最终推出了深圳新型消防站标准化设计书面成果文件:《深圳市消防站标准化与个性化设计指引》和《消防站标准化研究图集》,逐步形成消防站的标准建设模式,对于柱网、开间、竖向分布、立面材料等均做了规定。

@Z&Z STUDIO
(二)深圳消防站设计的趋势
1、“标准化”
“标准化”着重于消防站的主体功能,包括消防车库、备勤室、地下室、训练塔以及标识。这部分的设计内容因与消防站业务紧密相关,采用标准化设计的模块能够有利于实现规模效益,统一外观、统一标准。同时有利于提高消防效率、方便出车、缩短设计周期,以及减少成本、便于后期使用和维护、提高消防培训效率、便于统一管理。
2、“个性化”
区别于传统消防站,新型消防站是在消防站建设工程加紧进行之下,高效、迅速地建设合理、完善的消防站。新型消防站之间有共性、有个性。“个性化”是比“标准化”设计更为人性、合理的设计。比如北站消防站,临近高铁线路与国防交通应急保障基地,场地紧张,因此采用远离高铁线、避让国防基地的“集中式”布局,为消防员改善居住品质、提供更多活动场地。
3、“综合化”
由于深圳高密度城市带来的消防压力日趋增大,土地资源紧张又导致可建设用地减少,同时社会分工细化、单一功能建筑减少、多功能建筑增加,使得包含居住、办公等功能于一体的“消防站综合体”成为一种趋势。
03 / 退线分析
本项目退线尽量满足深圳市规划要求,北侧退30.25m、南侧退9m,因消防站车库进深、室外训练场地以及高铁运行噪音及地块绿化率等因素综合影响,建筑靠东侧布置退4m、西侧退18.3m。西北角是深圳市国防交通应急保障基地,按规范必须退线30.25m,对布局影响重大,导致建筑靠向东南角。使得我们要在紧张的用地上,科学合理地布局消防站及运动场地。




高铁线旁的“守望者” @山间影像Inter_mountain
04 / 城市关系
北站消防站为了满足“1分钟快速出警”,将传统消防站的“内院式”出车改为新型消防站的“临街出车”,直接面对东侧新区大道,极大提高了消防车出警效率。消防车库出车口面宽为48m,与路边的间距为16.5m,留下开敞的“呼吸空间”。

出车广场 @山间影像Inter_mountain


高楼俯瞰下的北站 @山间影像Inter_mountain
05 / 总体布局
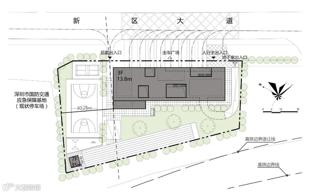
地块东侧与新区大道相邻,是场地主出入口的开设路段。东侧设消防车库出车口及出车广场,供消防员出警、回车用,东南角为人行主出入口,供消防员和参观人行进入。北侧的次入口是后勤出入口。我们将训练场地、跑道和篮球场设置在西侧、南侧,以此来应对铁路噪音干扰及深圳市国防交通应急保障基地特殊退线的挑战。
项目采用采用绿色建筑和海绵城市技术,通过设计屋顶果园,下凹式绿地等措施吸纳、蓄渗雨水,并有效控制场地内雨水径流。


林畔的北站 @山间影像Inter_mountain
06 / 功能分布
北站消防站采用“集中式”布局:由一栋3层高13.8m业务楼和一栋7层高35m训练塔组成。用地周边影响多、十分局促,需要合理布置站体、出车广场和训练场地,妥善解决项目与周边环境的矛盾。
在功能设计上,体现“优化升级”的理念。我们基于所参加的“深圳市消防站标准化工作坊”,结合二十多座新型消防站建筑的一系列设计实践,以及已建成工程实例的经验,在原有消防站的功能布局、流线组织基础上,进行优化,在立面风格、材料选择、空间品质、城市界面等方面做出较大改变和全面优化,成为全新版本的消防站。
消防车临街出车,首层停放8辆消防车,大大提高出警效率。人行主出入口在用地东南角,消防员和参观者由此进入消防站。一层为消防车库、门厅、餐厅、通讯室等,二层战士备勤室,盥洗室等,三层为业务用房和辅助用房。地下层主要功能为设备用房,地下室入口在地块南侧。此外,在楼栋多处设置空中花园,丰富了消防员的生活。




16.8m大进深消防车库,可容纳各类新型消防车辆
@山间影像Inter_mountain

训练场地 @山间影像Inter_mountain
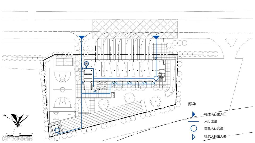
07 / 流线组织
北站消防站的东南侧为主出入口,消防员和参观者由此进入消防站。市民周末和节假日参观时,通过楼电梯到达夹层连廊,参观消防车库和车库屋顶的绿化果园,并可俯瞰训练场地。预约参观时,可通过一条完整流线将开放区参观完毕,封闭区与开放区连接处均设有管理口,做到完全不影响消防员日常训练及出勤。



夹层的公众参观连廊 @山间影像Inter_mountain
08 / 造型风格
我们在深圳市消防站“标准化”设计的基础上优化升级,加入了个性化元素,采用更加现代、简约的设计手法。用材料对比、体块穿插与折板的组合,在集约、紧凑的形体上,清晰地表达了建筑功能和形式的对应关系。同时,采用立面开洞、局部架空、空中花园、竖向格栅等手法,既适应了岭南炎热多雨的气候,方正端庄而低调内敛的建筑形态,仿佛是深圳北站的“守望者”。


舒展的长方体形 @山间影像Inter_mountain
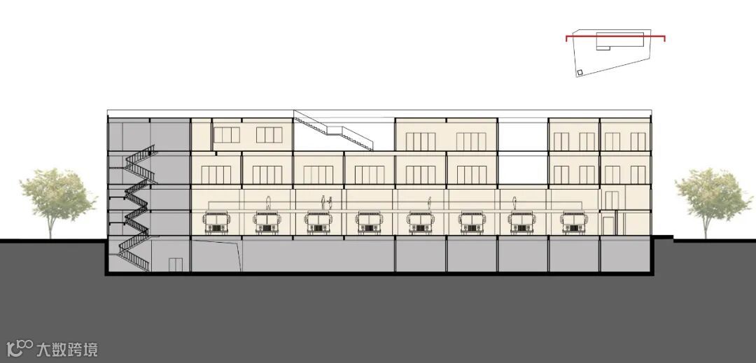
项目图纸





剖面图 @Z&Z STUDIO
项目名称:深圳市公安消防支队北站消防站
项目类型:消防建筑
项目地点:深圳市龙华区新区大道与中梅路交汇处
设计单位:深圳大学建筑设计研究院有限公司“钟中+钟波涛”工作室(Z&Z STUDIO)
事务所网站:htpp//www.suiadr.com
主创建筑师:钟中
建筑团队完整名单:钟中、钟波涛、雷洋、叶建泽、曾愉生、周征文、张永琛、刘舒雅
业主:龙华区建筑工务署
建成状态:建成
设计时间:2016年9月7日
建成时间:2021年7月
用地面积:5321.57㎡
建筑面积:5182.38㎡
其他参与者,包括但不限于:
总图:刘目
结构:张正国、周杰、雍勇
给排水:谢蓉、熊峰
电气:陈爱莲、何小明
暖通:韩国园、邢晟睿、吴梓荣
造价:唐进
摄影师:山间影像Inter_mountain
所获奖项:2023年德国柏林设计奖入围奖 (Berlin Design Awards)
本资料声明:
1.本文为建筑设计技术分析,仅供欣赏学习。
2.本资料为要约邀请,不视为要约,所有政府、政策信息均来源于官方披露信息,具体以实物、政府主管部门批准文件及买卖双方签订的商品房买卖合同约定为准。如有变化恕不另行通知。
3.因编辑需要,文字和图片无必然联系,仅供读者参考;
推荐一个
专业的地产+建筑平台
每天都有新内容
扫描二维码关注

微信公众号“搜建筑”(ID:sjz9999)
合作、宣传、投稿
联系微信:soujianzhu006

