

平面图

Showing interest in this configuration, the building is considered as the translation of the compact blocks of Compostela’s residential composition taking advantage of the fact that when developing a single-use (residential) it is possible to give a unitary treatment to the volume from the height of the street to the roof.

剖面图

剖面图

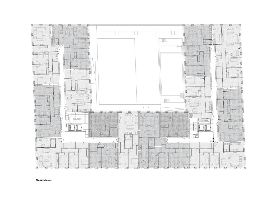
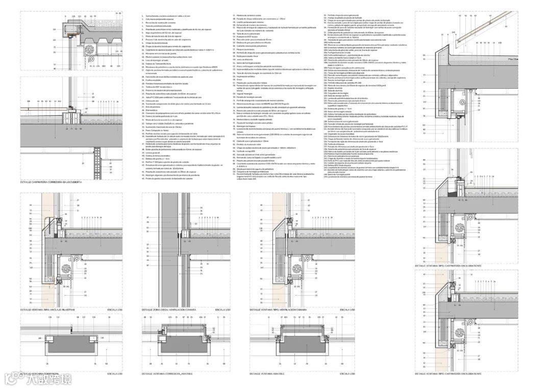
As a result, a sober and compact building is proposed, whose facade is organized through a homogeneous grid of holes in its entire surface. From this constant rhythm, the interior distribution of the dwelling units is recognized, by means of screens of wild granite that are inserted in each one of the holes, leaving the rest of its surface totally open and glazed, singling out a practicable element in each stay, the window.

立面图

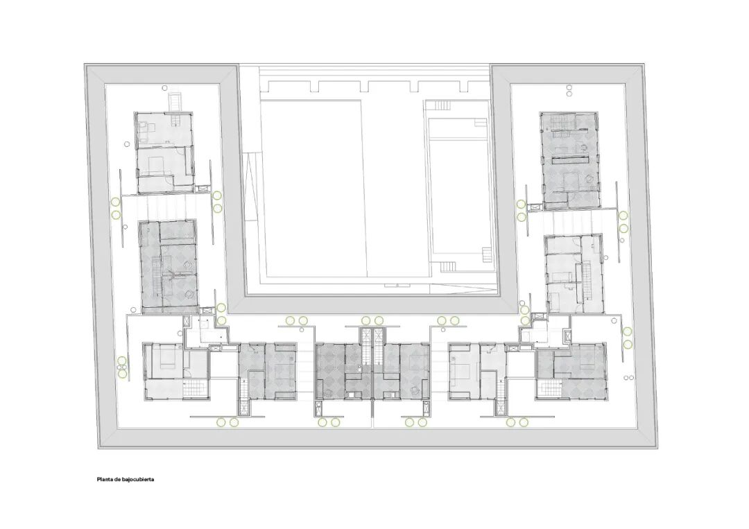
In this way, the large facade canvases are formed, in which a general order is becoming nuanced, hollow to hollow, void to the void, by the reality behind each one of them. The building is shaped like this until it reaches the roof where it breaks its formal regularity to offer all the possibilities that height and views provide.

Here they will create a series of garden spaces linked to the duplex houses, which are endowed with private landscaped corners with a sun terrace and privileged views towards the south of the city, creating a set of labyrinthine images of the building, characteristic of residential blocks, although here conditioned by the maximum volume allowed.

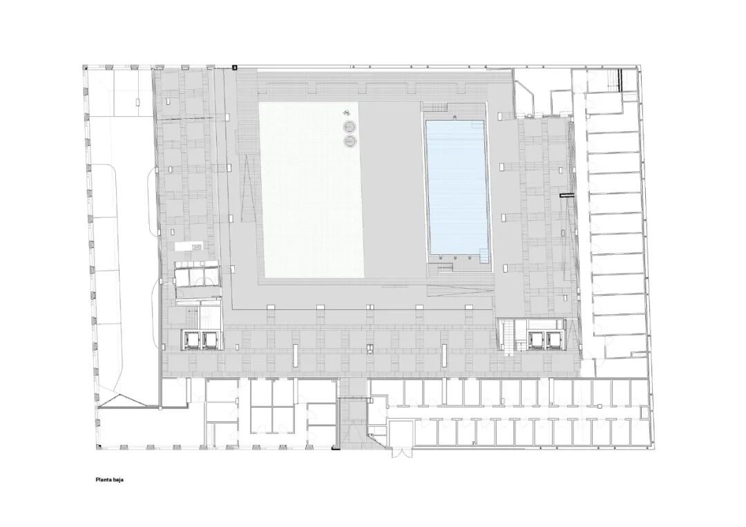
On the ground floor, there is a common area that is intended as an authentic living room for all users of the building. Access from outside is through an open space in a continuous visual relationship with the community garden to the access portals to the upper floors.

A solarium, a children's play area, a garden, and a swimming pool will fill the open spaces with content, along with sheltered ones, in the shade, complemented by a multipurpose enclosed space and a children's room.

分析图
项目信息
本资料声明:
1.本文为建筑设计技术分析,仅供欣赏学习。
2.本资料为要约邀请,不视为要约,所有政府、政策信息均来源于官方披露信息,具体以实物、政府主管部门批准文件及买卖双方签订的商品房买卖合同约定为准。如有变化恕不另行通知。
3.因编辑需要,文字和图片无必然联系,仅供读者参考;
郑州·精品项目考察
本资料声明:
1.本文为建筑设计技术分析,仅供欣赏学习。
2.本资料为要约邀请,不视为要约,所有政府、政策信息均来源于官方披露信息,具体以实物、政府主管部门批准文件及买卖双方签订的商品房买卖合同约定为准。如有变化恕不另行通知。
3.因编辑需要,文字和图片无必然联系,仅供读者参考;
推荐一个
专业的地产+建筑平台
每天都有新内容
扫描二维码关注

微信公众号“搜建筑”(ID:sjz9999)
合作、宣传、投稿
联系微信:soujianzhu006


