▲ 更多精品,关注“搜建筑”
三代同堂的家庭,在买房的时候也更倾向于多房户型。五房户型成为香饽饽,根据研究表明,也更有可能让一家三代居住一生。
下面结合亮点项目,详细来说一说。
• 5个房间,空间利用率进一步提高,不浪费面积;
• 动线优化流畅,互不干扰;
• 户型面宽更大,更通透;
• 各个功能空间尺度合理,居住体验有所提升;
• 家庭成员增多,兼顾私密需求;
......
越来越多主流改善家庭正在涌入大平层市场,对于五房户型的需求也在变多。
01、紧凑型5房
首先我们来看一下稍紧凑型的五房
这些紧凑型的5房,只能做到1个套房,2个卫生间,舒适度稍显不足。
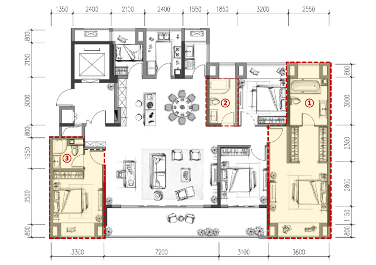
重庆雅居乐滨爵府建筑面积约129㎡,套内面积约111㎡,5室2厅2卫,约13.7米面宽,3个卧室朝南,3阳台设计,一般的户型都很做到。

重庆雅居乐滨爵府约129㎡户型示意图
5房竖厅之外还可以做大横厅。比如龙湖·两江郦湾约143㎡户型,约7.1米横厅,两个阳台都朝南设计,由于横厅占据两个面宽,这样就导致5房只有1房朝南设置。

龙湖·两江郦湾约143㎡户型示意图
徽州玉屏齐云府约159㎡五室两厅两卫 M户型:

徽州玉屏齐云府约159㎡
三南卧格局,拥有三南卧+双阳台+270°转角飘窗设计,双南卧连接6.15米南向超大阔景阳台;主卧套房及270°转角飘窗设计,美景尽收眼底,观景功能、私密性、舒适感兼备;客厅配有宽面阳台。
02、改善型5房
改善型5房面积增加,同时可以做到2个套房,卫生间的数量也随之增加,对于客厅来说,能容纳多种场景。
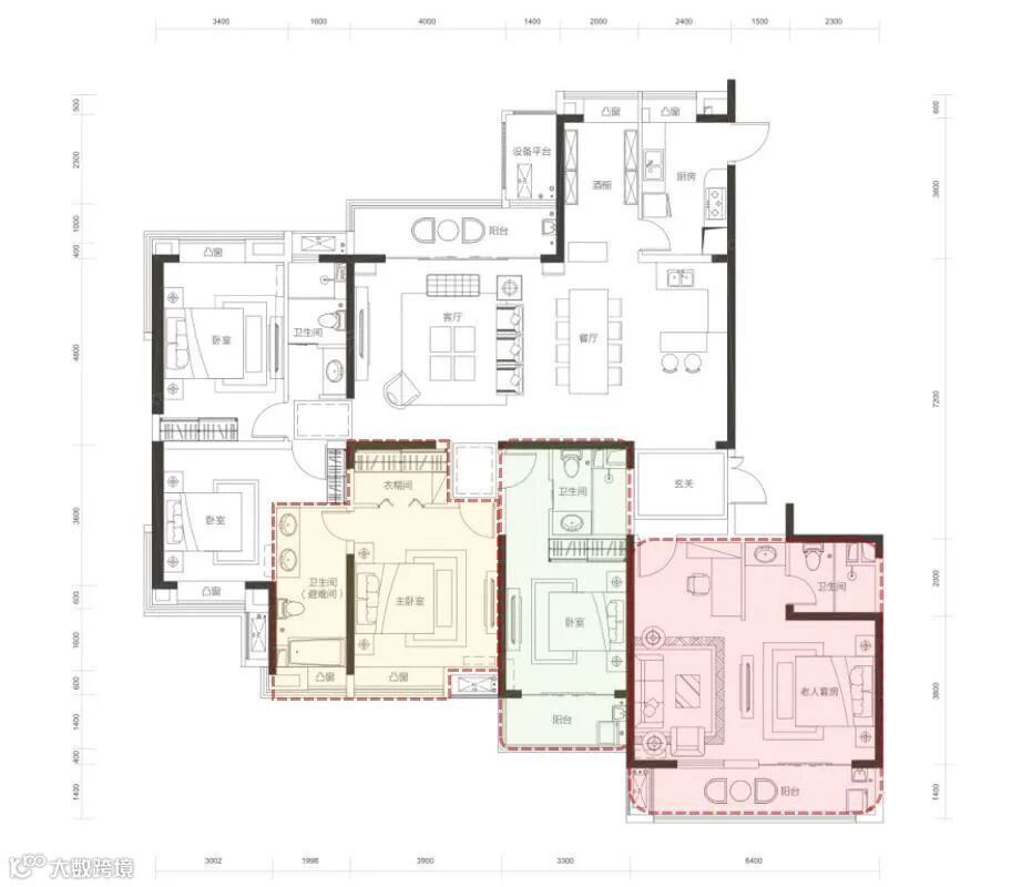
比如:重庆绿城晓风印月约159㎡户型:

重庆绿城晓风印月约159㎡户型示意图
双套房设计,其中靠近门口的一个套房可作为老人套房,方便老人活动。这样3个卫生间设计,每日的早晚高峰也不会显得局促。餐厅也能容纳
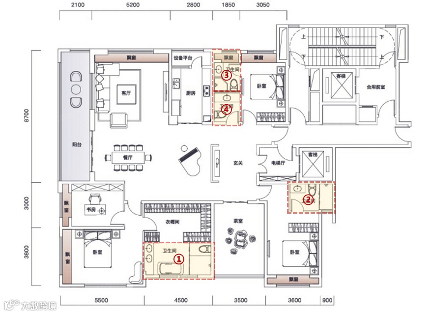
下面这个约168㎡户型,能做到2个套房,还能做到大横厅。

建筑面积约168平㎡5房2厅3卫
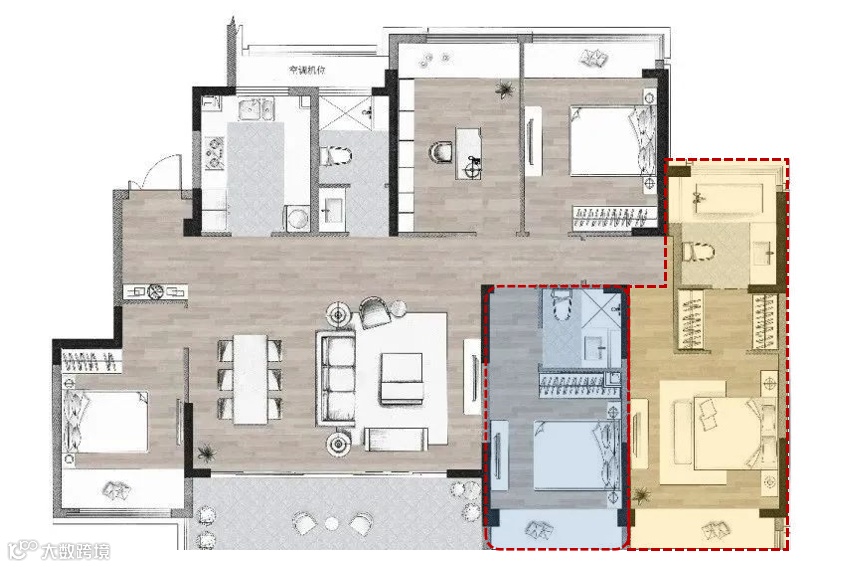
重庆华宇旭辉御璟湖山约170㎡户型:

重庆华宇旭辉御璟湖山约170㎡户型示意图
这个户型双套房,3个卫生间,约7.7米大横厅,LDKG一体化设计,阳台是一大亮点最大进深约2.1米,将阳台改造成一个小小的休息区,摆上小茶几和蒲团,既简单又大方。
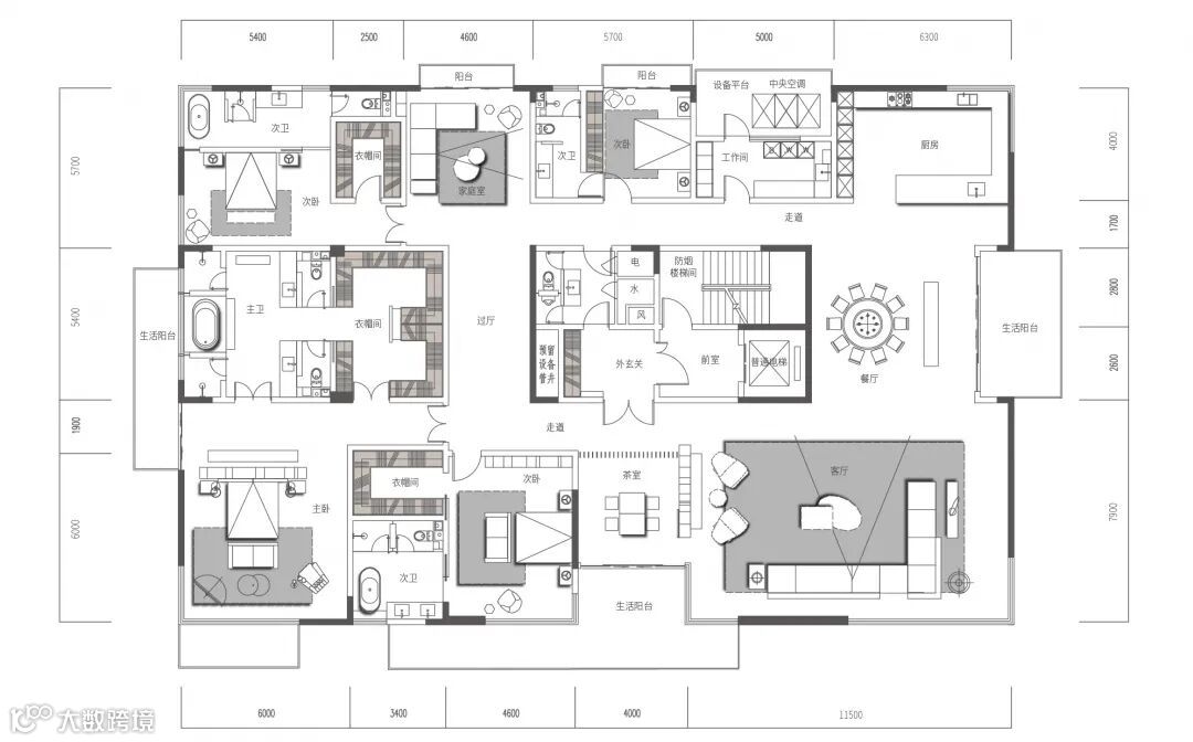
重庆龙湖昱湖壹号建面约196㎡户型:

重庆龙湖昱湖壹号约196㎡户型示意图
餐厅、客厅、茶室三厅L型排布,流线通畅,8.2米客厅和茶室与双花园阳台相连,让公共会客空间形成有机完整的空间,一步入厅,视野宽广。
整个豪华主卧套房面积高达约54㎡,其中主卧中的书房可分为一间次卧,面积约27㎡。

重庆龙湖昱湖壹号约196㎡样板间
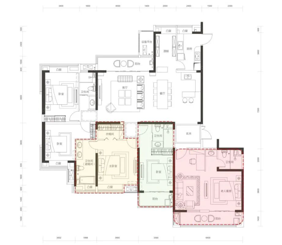
永威上和郡约212㎡户型,南向双套房设计,主卧大套房带一个开敞阳台,不仅可以为室内引入更多的阳光,提高采光面,还可以保证新鲜的空气。位于北侧的书房带一个家政阳台,共3个阳台。还有一间卧室能增加一个衣帽间。
永威上和郡约212㎡户型示意图
03、高端改善型5房
高端改善型5房面积段上升,可以做到3个套房,大面宽、全景观的空间布局。
比如郑州瀚海观象约240㎡户型:
郑州瀚海观象约240㎡户型示意图
以约240㎡户型来说,设计为全生命周期户型:四房两厅+保姆房,科学划分每一个生活区域,动静分区,多功能空间布局,在一层内解决所有生活功能,让生活“私密化”、空间“家庭化”。
双玄关空间,不仅使收纳空间更足,家庭隐私也更强。四开间朝南,南向约16.2米超大面宽采光,视野采光通风一流。多阳台设计,一方实用养家,一方貌美如花......它的好处,我基本已经不需要用过多的语言描绘了。

郑州瀚海观象客厅 效果图
武汉御江壹品青山樽约270㎡户型:

武汉御江壹品青山樽约270㎡户型示意图
一体化公共区域的打造,不仅空间利用率更高,完善的功能区间也能满足家人的各类生活场景,将亲情拉近,演绎出温暖场景,重新定义对家的热爱。
比如武汉金湖听语四期住宅约275㎡户型:

武汉金湖听语四期住宅约275㎡户型示意图
该户型4+1房2厅4卫设计,4个卫生间再也不怕早晚高峰。超大边厅外连约8.7米阳台,舒适度极高。
04、豪宅型5房
豪宅型5房面积段上升,可以做到4-5个套房,甚至有些是一层一户的大平层,突破了普通住宅产品的设计理念,在一定程度上具有“别墅式居住体验”。
郑州瀚海观象约340㎡户型:

郑州瀚海观象约340㎡户型示意图
约340㎡户型里,5室4套房设计,家庭成员各居其所。约9米的大横厅,大大延伸了视觉空间,同时,搭配大面宽的阳台,采光通风性也得到了保证,提供了更舒敞的居家环境。
没有足够大的空间格局,谈功能和享受都会显得不那么切合实际。
西安源邸壹号约365㎡户型:

西安源邸壹号约365㎡户型示意图
除了5个卫生间和5个套房设计之外,这个户型还设计了中西双厨分离,做到了餐客一体,最大的主卧总统套房设计,还有双尺度露台设计。
郑州永威上和琚户型6个阳台设计,创新东向阳台,最大约60米视野,主卧270°超大广角视野,社交空间生活空间分离,约1:1黄金比。
郑州永威上和琚610㎡户型

郑州永威上和琚 效果图
结语:
随着二孩越来越多、三胎政策的开放,对住房的需求也提出了新的需求,那么对于5房的需求多不多呢?
通过我们以上分析,发现市场好像对5房的需求置若罔闻,面积段多数在200平以上,以后会不会有越来越多的房企研发出更多不同面积段的5房呢?
本资料声明:
1.本文为建筑设计技术分析,仅供欣赏学习。
2.本资料为要约邀请,不视为要约,所有政府、政策信息均来源于官方披露信息,具体以实物、政府主管部门批准文件及买卖双方签订的商品房买卖合同约定为准。如有变化恕不另行通知。
3.因编辑需要,文字和图片无必然联系,仅供读者参考;
成都·精品项目考察
本资料声明:
1.本文为建筑设计技术分析,仅供欣赏学习。
2.本资料为要约邀请,不视为要约,所有政府、政策信息均来源于官方披露信息,具体以实物、政府主管部门批准文件及买卖双方签订的商品房买卖合同约定为准。如有变化恕不另行通知。
3.因编辑需要,文字和图片无必然联系,仅供读者参考;
推荐一个
专业的地产+建筑平台
每天都有新内容
扫描二维码关注

微信公众号“搜建筑”(ID:sjz9999)
合作、宣传、投稿
联系微信:soujianzhu006





