▲ 更多精品,关注“搜建筑”
深圳·坪山区东部湾区实验学校
申都设计

深圳教育需求的激增与土地紧缺之间的矛盾日益激化,在校园建设密度不断提升的压力之下,深圳的中小学建筑早已展现向空中发展的趋势,并有局部突破 24米限高的情况。学生时期本是最需要感性和亲近自然的成长环境。校园建筑垂直化发展切断了儿童从校园到社区到自然的连续空间体验。校园建筑在密度导向下的应激转变变成了学生的成长囚笼。
Beginning. As the imbalance between the surge in education demand and the shortage of land in Shenzhen exacerbates, architectural density has been largely increased in campuses. The buildings of primary and secondary schools in Shenzhen have been growing higher, and in some cases, they have exceeded the height limit of 24 meters. Students are most in need of an environment that allows them to stay close to nature. Under the current educational model, the vertical extension of campus buildings simply cuts off the spatial bond between the campus, the community and the nature. The stressful transformation of campus architecture in a density-oriented manner turns into a growth cage for students.
本项目位于坪山区,为45班九年一贯制学校,项目现状南侧为城中村,设计场地容积率3.0,高于一般校园建筑的设计要求,能否通过设计手段在极限用地和高容积率条件下,缝合儿童的成长空间序列。校园作为适应的儿童成长的容器,或许最应该弥补的是——自然。
Purpose of the Design under the Extreme Shortage of Land. Located in Pingshan District, the Project is surrounded by an urban village to the south as an experimental school for nine-year compulsory education with 45 classes. The floor area ratio of the project is 3.0, higher than the requirements for general campus buildings. And the Project is designed to re-build that bond despite the extreme shortage of land and high floor area ratio. What the campus should perhaps make up for most as an adapted vessel for children's growth is - nature.
“更可达,更友好的田园体系”是设计对自然的诠释。退台设计创造出流动感的屋面漫游田园以回应极限场地。校园在垂直维度的集约复合,通过“叠”与“园”的设计手段在局限的条件下为孩子们提供了充足的田园空间,使孩子能够自由快乐的学习和成长。
Design Vision. Building a “More Accessible and User-friendly Pastoral Campus" is the answer to the nature by architectural design. The setback design creates a dynamic feeling, meeting the requirements for building designs under the extreme shortage of land in Shenzhen. By stacking building modules and gardens, the campus provides children with sufficient venues for activities within a limited land area. The high floor area ratio creates a colorful pastoral space, enabling children to study and grow freely and happily.
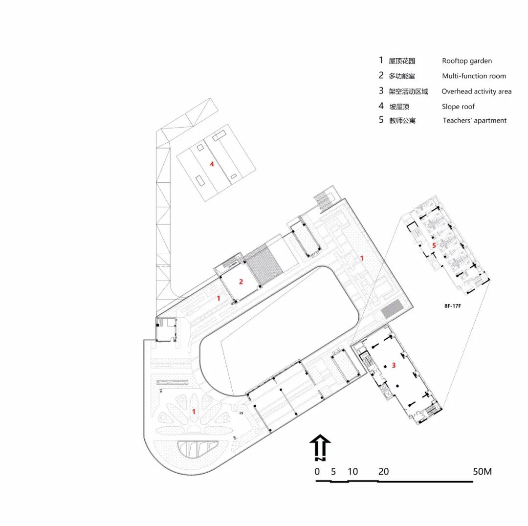
学校设计聚焦在屋面空间的综合利用上。校园采用整体退台式形体操作应对场地高差,形成具有强烈形式感的梯田式屋顶空间。
“叠”,构建叠级退台顺应高差;场地整体南高北低,为此校园形体层层叠退,顺应地形缓和场地的不利条件;同时创造了更富趣味性的屋顶形式。
Stacked Roofs and Setbacks. The campus is designed in a way that encourages the comprehensive utilization of roof spaces. To handle the height differences, the step-like setbacks of the campus buildings produces terraced roof spaces. The “stacked” setbacks conform to the height difference. The south side of the project site is higher than the north side. For this reason, the campus takes the shape of layered terraces to conform to the terrain, and at the same time creates a more interesting roof form.
“园”,自然与空间的极致平衡;将趣味田园抬升至屋顶,利用“书山”“田园”般的屋面和坡道系统,构建校园屋顶活力空间体系。既是对场地紧张的策略性处理也是对用地原始地貌田园风光的尊重与回应。
“Gardens”, an extreme balance between nature and spaces. By building interesting spaces on the roofs, we employed “idyllic” roof and ramp systems of the “book mountains” to build a pastoral campus full of vitality. This not only responds to the shortage of land, but also respects the natural scenery of the original landform of the site.
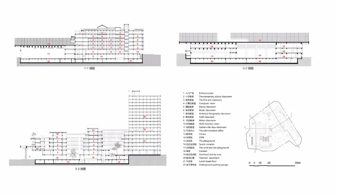
由趣味连续的坡道,梯田式平台,丰富多彩的绿化和特色功能的“木屋”等元素组成“叠顶田园空间”,串联了整个3-6层屋面和立面,屋面作为中小学活动空间既连续又相对独立,共同打造出舒适宜人的“田园绿洲”风光。
屋顶“木屋”的教学空间更是充满童话色彩,开放的空间,可用做多种功能使用,比如合班教室,地理科学园地,各种兴趣活动等等。屋面部分景观被改造成学生劳作课的实践基地,寓教于乐,与丰富的种植系统共同形成良好的屋面绿化景观,为多样化的屋顶空间利用提供可能。
A Stroll in the Pastoral Space. All the elements, including interesting and continuous ramps, terraced platforms, colorful green areas, and special “wooden houses”, constitute a “pastoral space with stacked roofs”, connecting 3 to 6 floors of roofs and facades. As the activity space for primary and secondary school students, the roofs are continuously arranged but independent of each other, creating a comfortable and pleasant “idyllic oasis”. The teaching space in the “wooden rooms” on the roofs is in a fairy style with the open space being used as venues for a wide variety of interesting activities, such as mixed classes or geographic science course. Some roofs are transformed into a practice base for labor classes, enabling students to learn by doing. A wonderful roof greening landscape is built together with the rich planting system, allowing the roof spaces to be utilized in a variety of different ways.
校园用地高度紧张,因此采用空间垂直集约化利用的解决策略。校园借助地势高差,在老坑路与丹坑路分别开设小学和中学入口,形成双首层架空长廊,学生的音乐、美术、舞蹈等活泼的专业教室布置其中,是校园文化的活力动脉,同时也为入口提供了宽敞的安全疏散及接送等候空间。
Multidimensional Campus. Given the extreme shortage of land, the space is economized by arranging buildings in the campus vertically. Considering the height difference in the terrain, a primary school entrance and a secondary school entrance are set up on the Laokeng Road and the Dankeng Road respectively, forming an overhead corridor. The corridor houses classrooms for music, art, dance and other majors, creating vitality in the campus culture and providing a spacious are for evacuation and pick up waiting at the entrance.
标准层教室采用双廊大进深设计,为学生提供了便捷宽裕的课间活动场所。学校动静分区明确。动区拥有3层复合的文体架空综合楼,包括体育馆,报告厅,风雨操场,综合运动馆,食堂等;静区包括教学区,中小学图书馆等。
两层架空的长廊面向东侧、北侧的城市公园,将绿化引入学校,校园空间与城市公园形成视线上的良好互动,结合规则整洁的沿街立面,共同打造舒适、和谐的城市界面。
Classrooms on the standard floor are designed with double corridors and large depths, providing students with a convenient and wide space for inter-class activities. The campus is also clearly divided into two areas featuring dynamic and static activities, with the former being a 3-story overhead complex for cultural and sports activities, including gymnasium, lecture hall, stormproof playground, comprehensive sports hall, and canteen, while the latter mainly covers the teaching area, and primary and secondary school libraries, etc. Facing the city parks on the east and north, the two-story overhead corridor allows students to see green scenery in the parks. The interaction between the campus space and the city park, combined with the regular and tidy facades along the street, creates a comfortable and harmonious urban interface..
校园在场地与功能之间极致平衡,方能在极限条件下创造出舒适的田园空间。这正是我们所理解的校园:她不仅是教育的承载空间,更是学生童年的记忆乐园。
我们所坚持营造的正是高密度条件下对自然向往和最大限度的回归。密度导向下的校园-自然的空间序列重构正是东部湾区实验学校的目标,构建学生友好的成长空间。在城市的钢筋森林里,还给孩子一个田园般的成长之地。
Epilog. A comfortable pastoral space can only be created within an extreme balance between project sites and functions. The campus we want to build should not only a space for education. More importantly, it should be a paradise housing our childhood memory. This sort of campus represents a return to the nature and highlights the maximized utilization of the limited land area. This restructuring of campus spaces has fulfilled the original purpose of the Eastern Bay Area Experimental School to build a beautiful space for students, and to grant children an idyllic place to grow up amid the concrete jungles in the city.
设计团队:王宇、李涛、何玲、张亚文、陈国均、张鹏、严建春、卢红勇、刘宇、卜汪洋、刘文涛、李汉宁、姜昌武、杜建伟、李庆超、尚双双
本资料声明:
1.本文为建筑设计技术分析,仅供欣赏学习。
2.本资料为要约邀请,不视为要约,所有政府、政策信息均来源于官方披露信息,具体以实物、政府主管部门批准文件及买卖双方签订的商品房买卖合同约定为准。如有变化恕不另行通知。
3.因编辑需要,文字和图片无必然联系,仅供读者参考;

本资料声明:
1.本文为建筑设计技术分析,仅供欣赏学习。
2.本资料为要约邀请,不视为要约,所有政府、政策信息均来源于官方披露信息,具体以实物、政府主管部门批准文件及买卖双方签订的商品房买卖合同约定为准。如有变化恕不另行通知。
3.因编辑需要,文字和图片无必然联系,仅供读者参考;
推荐一个
专业的地产+建筑平台
每天都有新内容
扫描二维码关注

微信公众号“搜建筑”(ID:sjz9999)
合作、宣传、投稿
联系微信:soujianzhu006