▲ 更多精品,关注“搜建筑”
老城街巷,百年记忆
正熙设计

△上窑片区城市更新 ©正熙设计
城市更新的成功与否和招商运营有着很大的联系,更新改造可以解决一些问题,但合理的商业运营与植入,才会让整体的空间与功能体系变得活灵活现。策划主体、建设主体、运营主体,三强合一。将重心前置,将运营思维贯穿前期设计和建设之中,才会有更多的人群参与进来,活化更新后的城市空间。
激 活 历 史 之 源
再 现 百 年 盛 景

△新安街街景 ©正熙设计
上窑历史街区位于中国三千年不灭的炉火之城—黄石,项目地处于西塞山区,黄石大道以南,沿湖路以西。整个区域涵盖了有着百年历史记忆的和平街与八泉街,是黄石目前保存下来仅有几条历史街区之一。

△和平街风貌及老建筑遗迹 ©正熙设计
历史上的
和平街与八泉街
这是一个充满历史印记的地方,黄石的诞生离不开石灰窑(今西塞山区)。从张之洞设立煤局办矿,到盛宣怀创办汉冶萍煤铁厂,上窑江边的铁路、码头,聚集了旺盛人气,也因码头文化逐渐在此形成了一条买卖街。
“日有千人拱手,夜有万盏灯明”,那时的和平街与八泉街,青龙阁、万年台、窑湖剧场等名冠一方,是黄石最热闹、最繁华的地方。

△八泉街记
清代振威将军敖天印的一首“三十年前挑石灰,三十年后衣锦归;男儿有志当自立,英雄不怕出身低”的重游诗,为坊间之佳话,励志乡梓。著名工运领袖林育英,也在此发展党的组织,开展工人运动,传播革命火种。

△20世纪50年代的和平街与八泉街
初识
鄂东南最大的小商品批发市场
时移景异,沧海桑田。老街仅残余遗迹、风韵依稀。城镇化的发展,各种高楼、商超如机器般规模化建设,上窑传承的商埠文化风貌已不复存在,留下的只是平庸的城市面貌。如今的上窑商贸街区,已发展为鄂东南最大的小商品批发市场。由于与住宅区混建,因文明意识差街面脏乱,占道经营,机动车随意停放,消防隐患严重等,都制约着它的发展。

△上窑商贸街现状 ©正熙设计
聚焦上窑历史片区,它承载了文化传承的历史使命。黄石作为城市更新全国试点城市,我们提出了历史文化街区活化利用总体方针——激活历史之源,复兴百年老街胜景。

△改造后的和平街街景 ©正熙设计
“宽街、窄巷”
复合文化功能场所
一方面是文化传承,一方面又是有别于传统步行街的批发街区。既要尊重现实,又要融入百年老街的文化记忆,还要结合老旧小区改造,那如何更新才能实现老街新生?是我们面临的具体挑战。

△上窑新安街、新建路更新前后对比 ©正熙设计

△上窑新安街、新建路更新前后对比 ©正熙设计
在城市档案馆,我们搜寻了许多关于石灰窑的历史文献与老照片,通过挖掘与提炼,提出了“宽街、窄巷”的设计策略,即“宽街”—上窑商贸批发街,主要以集市文化为主;“窄巷”—和平街与八泉街,以印象上窑,体现可食、可观、可忆、可玩的食街与展街,全天候多维度尽览上窑百年。

△“宽街、窄巷”复合文化 ©正熙设计

△印象上窑,尽览上窑百年 ©正熙设计
多维度的
文化空间策略
街区的改造,需要考虑许多因素。按照我们的设想,改造更新后的上窑街区是一个能平衡传统风貌和现代审美的多元化产物,不能一味追求复古,要同时考虑商业业态与文化的结合,文化与空间的落位表达等,把握好新与旧的尺度。

△印象上窑,可观可玩可忆 ©正熙设计

△印象上窑,可食可玩 ©正熙设计
集市文化,有别于城市慢街空间,强调货物贸易批发,设计富有荆楚文化特色的深出檐,外展廊道,便于批发商品展示与游客晴雨时的交通便利。提出“微改造”理念,在重要节点区域,恢复老街旧时的中西式建筑风貌,增加街区的节奏感,避免千篇一律。


△“微改造”节点立面处理 ©正熙设计

△上窑龙腾市场更新前后对比 ©正熙设计
青石板、古铜雕,一条条青石板路是时光流逝而刻在上面深深的痕迹,过去的繁华、曾经的喧嚣,又都浮现在眼前,时代的产物赋予了当地百姓的记忆。在这里我们以“八泉眼”的寓意,设计古铜雕文化节点青石板路,诉说着上窑古街的美好故事。

△工商里街更新 ©正熙设计
融荆楚特色
传承地域建筑语言与色彩
从城市的角度看,黄石缺少的并不是现代化的高楼大厦,它缺少的是一个能够回归自然,回归传统的,能够真正传承城市文化记忆的地方。在这里我们提炼、延续、创新荆楚建筑特色,提炼黄石地域建筑元素的语言符号,再现上窑的建筑特色,换回旧时的城市记忆。

△城市文化记忆

△融合荆楚文化风格
结语
本项目有别于其他城市常见的古街、老街等步行慢街的商业形式,多以小商品批发为主的商业业态。只有在街区之中引入地方非遗文化产业,打造网红食街与展街,引入更多年轻载体,推动地摊儿经济等,为街区注入鲜活的力量,带动街区氛围,这样才能吸引年轻群体进入空间,参与其中,最终激发社区活力,活络老街。

△上窑和平街更新后街景 ©正熙设计
技术图纸

△新建路节点平面

△新安街节点平面

△改造立面图

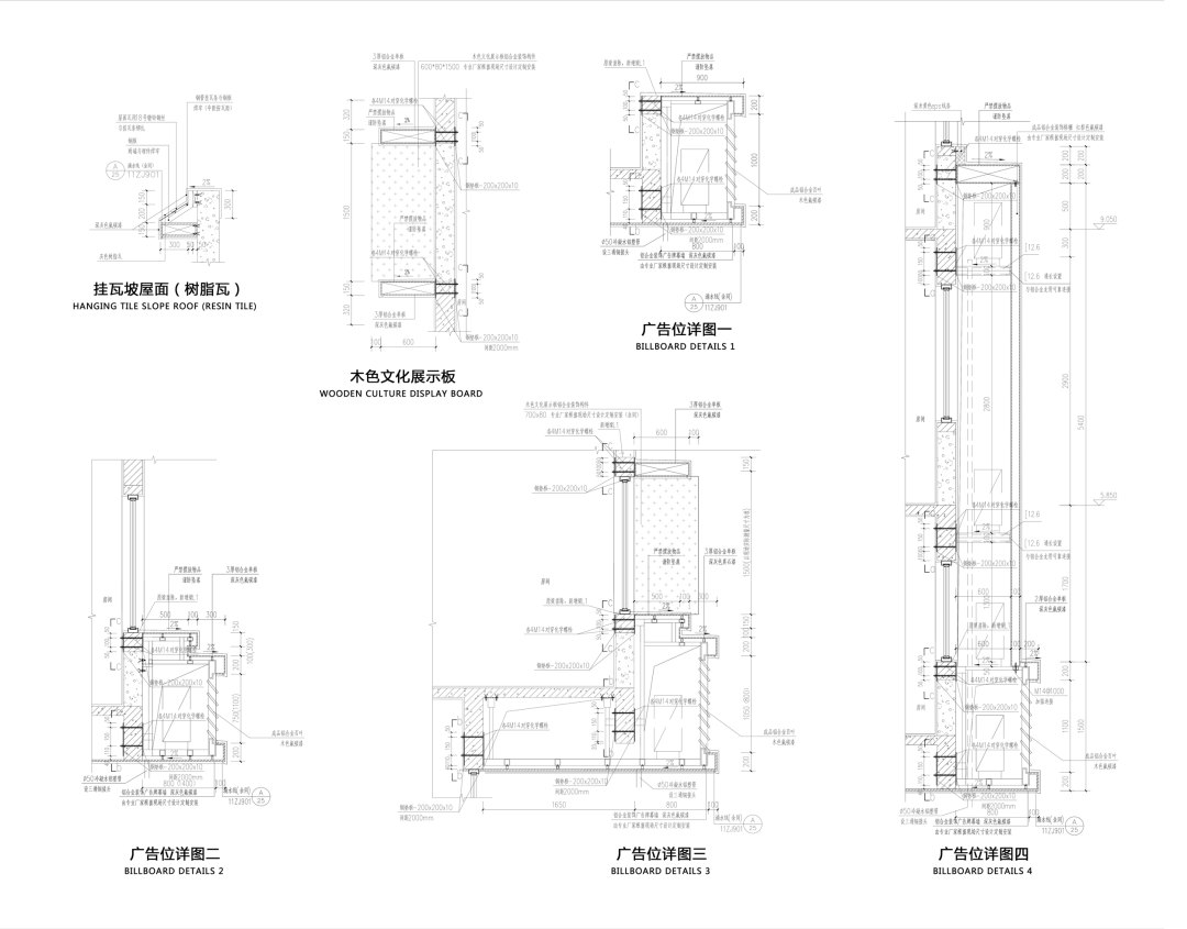
△改造节点详图
项目名称:黄石西塞山区上窑商贸街片区老旧小区改造
设计类型:城市更新
项目地点:湖北省黄石市
业主:黄石市西塞山区城建局
方案设计:武汉正熙建筑设计有限公司
施工图设计:湖北省建筑科学研究设计院股份有限公司
主持建筑师:张泉
设计团队:葛钦、程稀、龚一帆、鄢韩伟、张文青、辜屿、黄灿等
改造范围面积:约100亩
改造建筑面积:约132800平方米
设计与建设时间:2020年7月—2022年5月
▼ 更多精品·点击关注
本资料声明:
1.本文为建筑设计技术分析,仅供欣赏学习。
2.本资料为要约邀请,不视为要约,所有政府、政策信息均来源于官方披露信息,具体以实物、政府主管部门批准文件及买卖双方签订的商品房买卖合同约定为准。如有变化恕不另行通知。
3.因编辑需要,文字和图片无必然联系,仅供读者参考;
郑州·精品项目考察

微信公众号“搜建筑”(ID:sjz9999)
合作、宣传、投稿
联系微信:soujianzhu006


