上期我们介绍:一层一户大平层(200-300㎡面积段户型),今天我们来看下一层一户大平层(300-400㎡面积段户型)都有哪些创新亮点。
300-400㎡面积段户型的一层一户大平层多以高层类为主。
延伸阅读:
一层一户:洋房+高层+顶层……户型布局特点
一层一户:“大平层”(230-760㎡多个面积段)
双梯、双动线入户
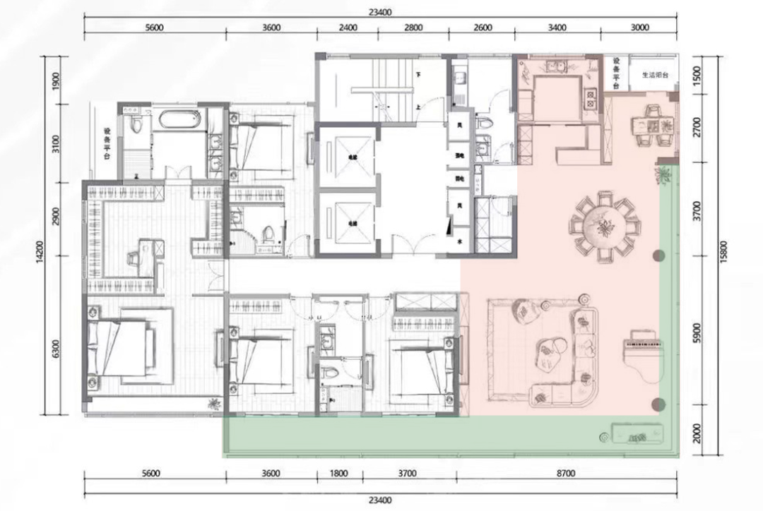
南通万科·半岛国际匠心打造的建面约315㎡天际平层,一层一户,进入半岛私邸,两部电梯自然划分出两条平行动线,将公区与家政动线分开,由主入口进门,便能感觉满满尊崇感。

公区LDKB一体化生活轴线,社交空间、会客空间、烹调空间连成一体。超10米面宽的大边厅连接L型跑道阳台,中岛台,担纲社交厨房重任。

南通万科·半岛国际 效果图
赤峰盛世·国风府建筑面积约382㎡户型,6房2厅7卫,一层两梯一户,双动线入户,动线私密,礼序井然。最大约25m南向面宽,通风采光更加一流。

赤峰盛世·国风府建筑面积约382㎡户型
长约9米的奢阔宽厅,钢琴区域可以做开放式书房,和沙发区形成大横厅,并且和西餐厅、中餐厅形成正向南北通透。L型的超级活动厅,让居家氛围达到更佳,非常理想。东西两端分别是卧室区,西侧有三间卧室,全部都自带明亮窗户的卫生间,堪称奢华。可以满足不同功能的需求。
东侧是主卧室,包含两间卧室,北侧卧室自带步入式的衣帽间以及明窗卫生间,适合在夏天休息。
有最大约54㎡套房式主卧,集观景落地窗、步入式衣帽间、独立豪华卫浴于一体,罕见地采用了睡眠区、书房、卫生间横向排列的方式。南向采光非常充裕,保证了高度的舒适性。
公共空间升级
无界视野、空间更通透、采光更充沛
①、超大尺度边厅+阳台设计
成都融创国宾雅集307㎡洋房户型,一梯一户、电梯入户。动静分区的双十字动线,L型三厅:景观客厅、艺术展示厅、共享大厅。12m*7m的家庭社交区域,外加20余米的L型阳台,尺寸视野无敌。
成都融创国宾雅集307㎡户型
昆明融创文旅城海潮和鸣一层一户(一栋七户大平层)的设计,把别墅才有的宽阔搬进了楼房,带来了与众不同的低密生活体验。

海潮和鸣约300㎡洋房户型
在户型上,洋房产品约300㎡的面积,采用了一层一户双入户设计,并配备有独立电梯入户。通过保姆家政房动线的差异化设计,实现了保姆家政的独立动线,在尽显尊崇的同时,确保了居住空间的私密性
约20米的L型转角大阳台,面积约34㎡左右,配以约68㎡奢阔横厅,使得餐厅、客厅的采光充足,视野无遮挡。
采用了全套房设计,约6.9米的大面宽,约50㎡奢阔主卧,配备独立衣帽间,宽阔舒适,便捷起居,让家庭成员各有一片私属天地。关注经典人居

海潮和鸣洋房效果图
南通招商公园道建筑面积约330㎡大平层,一户一层,实现了对空间的绝对占有:
约270°超大L型转角阳台,环幕视野瞭望城市天际线;
LDKB一体化设计,构成一个完整的情感交流场所,可以营造家庭互动、会友、观景N种居家场景。
除保姆间,其他4个房间都是套房设计;整个户型动静分离,南向两个套卧,开间尺度大,套间卫浴配置浴缸;

南通招商公园道建筑面积约330㎡户型
招商·公园道示范区实景图

公园道项目效果图
乐清绿城·琨玉园“全面屏”+超高窗墙比+大平层,让琨玉园南向开间尺度“壕到感人”,如建筑面积约332㎡户型,做到惊人的23.4米。转角大边厅设置了仪式感的圆柱,像极了伦佐·皮亚诺设计的迈阿密豪宅Eighty Seven Park。所有公共空间相连,区别一般客餐厅“长餐桌+沙发组”的刻板排布,可自由增加水吧台、品酒区,还可形成洄游动线。

乐清绿城·琨玉园约332㎡户型
长沙梦想麓隐桐溪建筑面积约310㎡洋房户型,一层一户设计。户型方正,大开间浅进深,南北通透全落地窗,采光通风与视野超级棒。5+1户型设计,哪怕是四代同堂都不是问题。动静分区互不干扰,3个套房设计,主卧室独立衣帽间,5面宽朝南。

长沙梦想麓隐桐溪建筑面积约310㎡洋房户型
三阳台设计,客厅270°转角景观阳台,除了传统北向的生活阳台,主卧室还有一个景观阳台。中西双厨,餐厅放下一张长条大餐桌,节假日来八、十个亲朋好友聚会party轻松容纳不在话下。别墅有的家庭影厅,这里也有,晚饭后一家3口温馨地看个电影其乐融融。
②、中轴对称礼序,一方宴厅级会客场域,一方奢享级静谧居所
南京万科翡翠滨江约380㎡户型,中轴对称,动静分区,一方宴厅级会客场域,一方奢享级静谧居所。私家双梯双门入户,双玄关尽享尊贵归家仪式。高定江景套房主卧设计,男女主人独立宽绰衣帽间。天空露台瞰揽一线江景,庭院内部拥享自然天光。

南京万科翡翠滨江约380㎡户型
万科翡翠滨江打造了32°楼体瞰江角度、270°观景面等设计,将一线江景的核心资源价值融入到户型设计中。

南京万科翡翠滨江室内效果图
南京融创滨江壹号院“滨江ONE"384㎡高端豪宅户型,动静分离,两梯一户,整个边厅位于户型右侧,270°视野俯瞰江景、园景、城景。

融创滨江壹号院“滨江ONE"384㎡户型 5室2厅5卫

融创滨江壹号院“滨江ONE"325㎡户型 4室2厅4卫

滨江ONE室内效果图
引入内庭院、超大露台
与自然无缝衔接
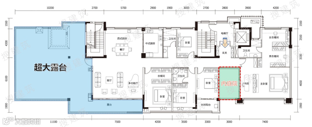
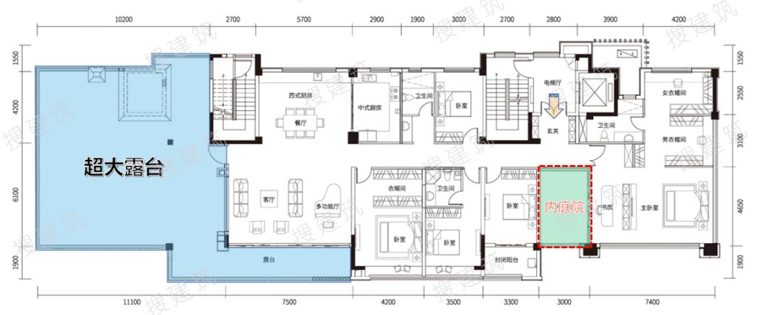
济南金科琼华九璋建筑面积约346㎡洋房户型,约41米南向“奢阔”面宽(含露台)、三面落地窗、创新L型开放式转角阳台、星级酒店级主卧套房、入户玄关引入对景式内庭院、超大露台等,匹配城市高端人士当代居住观,每一处细节皆是颠覆式的创新。关注经典人居

济南金科琼华九璋建筑面积约346㎡户型

济南金科琼华九璋 实景图

济南金科琼华九璋 效果图
杭州蓝城英冠滨悦城建筑面积约300㎡户型,360°寰幕空间,一层一户一境界,内庭院面积更大。

杭州蓝城英冠滨悦城约300㎡户型

杭州蓝城英冠滨悦城内庭院 实景示意图

杭州蓝城英冠滨悦城内庭院 实景示意图
全套房、双主卧套、行政套房
真正高级的生活居住享受
嘉兴鸿翔·传承府建面约398㎡环幕大平层,6室2厅6卫的双主卧格局,将居住、社交、娱乐等功能设置铺陈于同一个平面上,宽奢有序的大宅尺度,高度聚合又彼此独立。
一层一户,双电梯入户设计;客餐厅+中西双厨+独立茶室,构成中央生活空间;室内4个套房,全部朝南,每一间都带独立卫生间,每一间都可以是“主卧”;东西两边双主卧套房,更带双衣帽间和起居室及L型阳台。
四个卧室+客厅,朝南总面宽超29米。东南西三侧阳台,总长超48米,堪称环幕级阳台!站在这样的房子里,一览众山小,大有一种荡气回肠的通达豁然。关注经典人居

嘉兴鸿翔·传承府建面约398㎡户型

嘉兴鸿翔·传承府效果图
鸿翔·传承府建筑面积约336m²世族门风,一层一户大平层,尊显大宅才有的私密性与专属感。五室两厅五卫,三套房设计,大面积、大尺度。餐客双厅合一的阔绰尺度,带来居者的奢适体验,IMAX级观景大阳台,开阔视野自有大气酣畅之感,尊享无与伦比的视觉盛宴。

嘉兴鸿翔·传承府建面约336㎡户型
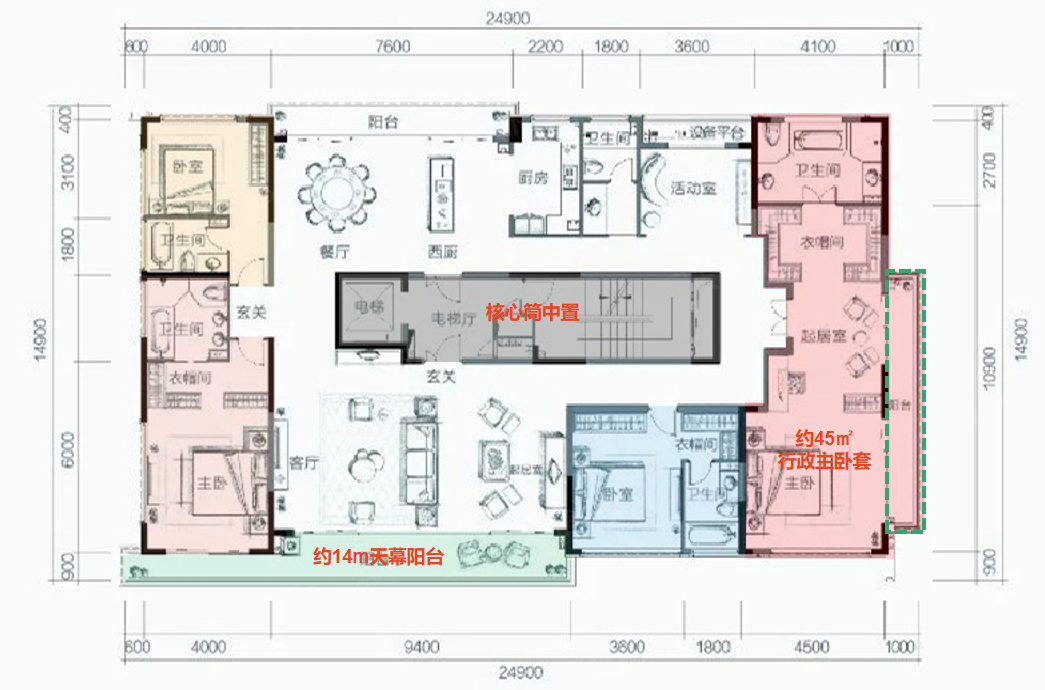
嘉兴鸿翔东望樾府建筑面积约332㎡户型,一层一户,天幕阳台约13米,360全景视野,场域空间考究,全套房设计,约45㎡行政主卧套房,设有超大衣帽间、分离式卫浴空间双洗漱盆,外连超大阳台。

嘉兴鸿翔东望樾府建筑面积约332㎡户型
嘉兴鸿翔东望樾府建筑面积约365㎡户型,一层一户,南向约26.6米六开间朝南,全套房设计,建面约65㎡的林肯加长式主卧套房,奢华享受配置:超大衣帽间、温情起居厅、分离式卫浴空间双洗漱盆,还配有270°观景阳台,景致与静谧兼得。

嘉兴鸿翔东望樾府建筑面积约365㎡户型
成都万科天府锦绣1号地块规划有4栋小高层,这4栋楼是万科灯塔的塔尖:一层一户,每层配备两部电梯,单户面积约330㎡,空间围绕核心筒布置,充满想象力。三套房设计,其中奢阔主卧套房,堪比星级酒店行政套房,卧室、书房、双衣帽间、分离式三台盆+双沐浴方式的“五件套”卫生间,大宅的尺度感、舒适感彰显无遗。

成都万科·天府锦绣约330㎡户型
结语:
对居所的选择,每个人都有不一样的考量,但相同的是对品质人居的向往。品味至上的时代,是大“室”所趋,一层一户大平层,将奢华舒适的生活质感,点缀在大平层的每一处空间。
本资料声明:
1.本文为建筑设计技术分析,仅供欣赏学习。
2.本资料为要约邀请,不视为要约,所有政府、政策信息均来源于官方披露信息,具体以实物、政府主管部门批准文件及买卖双方签订的商品房买卖合同约定为准。如有变化恕不另行通知。
3.因编辑需要,文字和图片无必然联系,仅供读者参考;
青岛·精品项目考察
推荐一个
专业的地产+建筑平台
每天都有新内容
扫描二维码关注

微信公众号“搜建筑”(ID:sjz9999)
合作、宣传、投稿
联系微信:soujianzhu006
↓↓↓ 更多精品,搜建筑网站
↓↓↓ 下载户型,CAD文件



