▲ 更多精品,关注“搜建筑”
前几期我们解析过:高端住宅:“空中庭院”的设计创新,但是做了空中庭院,不代表就是第四代住宅项目,此次搜建筑将重点解读“新一代住宅”的做法、特点、案例及其发展前景。

新一代住宅的发展
1、什么是新一代住宅?
第一代住宅指的是茅草房,第二代住宅是砖瓦房,第三代住宅也就是我们目前城市里普遍修建的电梯房。

住宅进化史
而未来的住宅又称庭院房、立体生态住宅、“城市森林空中花园”等,就是一种将住房与绿化园林融合一体的新建筑形态。

新一代住房集中了中国传统四合院、北京胡同街巷、空中别墅、空中园林、智能停车、以及电梯房的全部优势于一身,使住房与绿化园林融合为一体,开创了一种新的符合中国传统居住文化的住房模式。

2、新一代住宅有什么特点?
优点
• 居民层面,天然氧吧,能够改变目前电梯房“鸟笼式”的生活现状,提高居民生活品质;
• 两层通高、三面环景,每户都有相应面积私家庭院,可以实现“回归自然”的梦想;
• 甚至使用载车电梯系统停车,可以将车停放在自己的院子里;
• 城市层面,改善整体的城市环境、城市风貌,减少热岛效应,建设生态城市环境;
• 政策方面:推动环境品质改善,为实现双碳目标做出贡献;
• 开发商层面:溢价值最大化,提升开发商知名度及口碑。

© Paolo Rosselli
首先新一代住宅的基础构想是非常美好、值得肯定的。
3、目前的发展情况如何?
现在全国各地都已有大量新一代住房的项目落地,四川、湖南、湖北、、广东、江苏、河南、昆明等多个省市落地项目,产生了良好的示范效应。
比如在2017年设计建造的垂直森林住宅建设试点项目——成都七一城市森林花园,2019年1月,国家住建部门相关领导和专家对改示范项目进行了考察,城市森林花园建筑理念受到住建部肯定,具有先驱性的指导意义。

成都七一城市森林花园实景图
成都七一城市森林花园,大尺度的错层阳台庭院、生态化的立面设计、居家生活方式等都对健康住宅的发展具有很大的影响。8栋住宅楼的空中墙面垂直绿化和空中庭院立体绿化面积共2.72万平方米;小区总绿化面积达3.39万平方米,每家每户庭院内的植物种类一共20多种。

成都七一城市森林花园平面图
据住户反映,空中庭院的绿化由专门的园林工程部负责和统一种植。
虽然有瑕疵问题,但住户觉得在绿色庭院里喝茶聊天的感觉都特别好。有垂直绿化的存在,室内的空气、湿度和温度等环境也有改善。
再比如由博埃里建筑设计事务所设计的湖北黄冈居然之家,这不同于成都七一城市森林花园,是一种新型的垂直森林,结合了开放式和封闭式阳台,塔楼外立面采用悬挑元素,结合阳台空间打破建筑的规整性,也为植物的生长提供了一个富有层次和变化的平台,达成树木与与立面的完美契合。

湖北黄冈居然之家实景图 摄影:RAW VISION studio

湖北黄冈居然之家实景图 摄影:RAW VISION studio
新一代垂直森林住宅,并不是简单地在阳台上种种花草树木这么简单。接下来我们来看几个新一代住宅案例:
新一代住宅项目案例

福州国贸天琴湾鸟瞰图
比如柏涛建筑设计的福州国贸天琴湾,设计以墅居作为项目打造目标,以“院子”作为设计的灵魂,将“院子”融入建筑中,打造“新一代住宅”垂直绿化庭院,户与户之间院子交错布置,住宅被绿化系统进行包裹。

福州国贸天琴湾效果图
立面采用国际主义风格,灰+白色的建筑底图与空中绿化系统交相辉映,体现“新一代住宅”特有气质。建筑被绿化包裹,曲面转角阳台的设计,打破了建筑的边缘。错落布置的空中花园,使立面造型颇具新意,彰显出国际化现代生活格调。

福州国贸天琴湾效果图
设计上首创“360度”的私家花园与嵌入式公共休闲绿化平台的设计,让景观环绕在住宅四周,将“新一代住宅”的理念进行完美演绎。通过巧妙的错层阳台设计,使得住户能拥有挑高约5米的空中花园,居住空间变得更加立体。

空中庭院示意图
产品包含238平米及268平米两种端厅户型,每户均为私家电梯独立入户,穿过玄关空间,映入眼帘为面积近60平米超尺度客厅,满足复合功能现代生活需求。同时,客厅与室外私家花园紧密融合,花园成为室内空间的延续,人与自然无限接近。南向配置双主卧系统,北向设置儿童房及书房,同时户内拥有丰富储藏及收纳空间满足日常生活需要。

福州国贸天琴湾奇偶层户型示意图

福州国贸天琴湾花园示意图
公共休闲绿化平台及空中花园,依据不同位置及高度,配置不同绿植。苗木搭配形态各异,随季节展现各自风貌。配置自动滴灌系统,实施24小时监测土壤水肥情况,精心呵护植物。

福州国贸天琴湾实景图

福州国贸天琴湾实景图

福州国贸天琴湾实景图
比如由基准方中设计的昆明吾悦·安宁院子,产品设计上采用露台外伸、奇偶层错位的布局,每一层都形成了“空中庭院”的概念,彻底打破了“底层才有庭院,顶层方得露台”的传统建筑模式。
昆明吾悦·安宁院子效果图

昆明吾悦·安宁院子效果图
昆明吾悦·安宁院子效果图
每户均可坐拥全赠送的约5.8m高的露台空间,每户赠送面积35~50㎡,赠送率高达23%~30%。


露台节点设计 来源:基准方中
露台270°超广角,打破了空中露台与客厅之间的区隔感,客厅与露台相连,从而使室内的空间视野放大,营造出室内和室外融为一体的生活视感。

昆明吾悦·安宁院子奇偶层户型示意图
昆明吾悦·安宁院子实景图
昆明吾悦·安宁院子实景图
安徽滁州龙记未来城市森林,龙记泰信新一代全新产品系。采用森氧垂直绿化系统,将自然与建筑完美融合,户型配置奢阔空中庭院、打造私家专属景观园林,未来已至,颠覆城市人居想象。
安徽滁州龙记未来城市森林效果图

安徽滁州龙记未来城市森林效果图
安徽滁州龙记未来城市森林效果图
室内约3.15m层高,约6.3m挑高庭院面积约16-44㎡逆天设计,无需下楼,推门就是梦想中的花园生活,俯瞰原生态山体公园,让居者在空间感受上更加强烈。

安徽滁州龙记未来城市森林效果图
比如建筑面积约200㎡云端庭院大平层,长达约21.3米的采光面,观景跑道阳台长达约16.9米,270°视野俯瞰园景、城景,空中庭院赠送面积高达约29㎡,整体以大横厅、大阳台、配合适度奢侈的完整性功能,将别墅级的庭院搬入高层。

建筑面积约200㎡户型图
户型采用“凸”字形设计,将露台外伸,错位向上布局,每三层一个模块,每三层一次循环,这样就形成了每户可拥有约9m挑高(三层高)的露台空间。这样每一层都形成了“空中庭院”的概念,彻底打破了“底层才有庭院,顶层方得露台”的传统建筑模式。
安徽滁州龙记未来城市森林实景图
郑州万科翠湾中城打造的垂直生态社区是区域内独特产品。通过巧妙的阳台错层设计,使得住户能拥有一个部分挑高约5米的空中私家花园,一旦空间变得立体,生活就有了更多可能,实现N种生活场景。
郑州万科翠湾中城效果图

郑州万科翠湾中城示意图
错层阳台局部 效果示意图
创新的错层广角阳台设计,通过奇偶错层的布局,带来更高的空间挑高,从而容纳更多的阳光与清风。部分270°的转角阳台设计,自成空中花园。前瞻性的空间设计,在市场上独树一帜,吸引了许多人的关注。

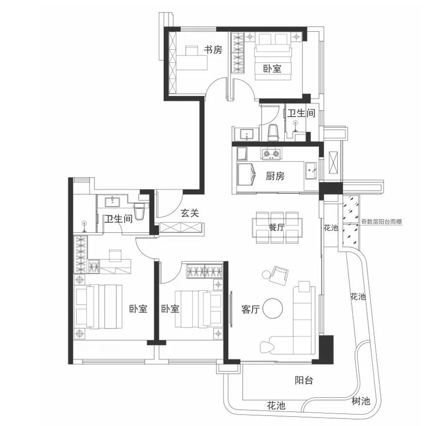
约146㎡偶数层户型 示意图

约116㎡奇数层户型 示意图
室内效果 实景图
对于绿植空间,防水是人们关心的一个话题,防水系统也成为绿化施工关键的一个环节。
翠湾中城各楼栋均为钢筋混凝土剪力墙结构,阳台花池均为悬挑钢筋混凝土梁、板结构,各悬挑梁均从钢筋混凝土剪力墙上出挑;阳台花池荷载均由楼板传递到悬挑梁上,然后由悬挑梁传递到剪力墙上,最后由剪力墙传递到塔楼基础。
阳台效果 实景图
花池为钢筋混凝土花池,于钢筋混凝土楼板上设置找平层、双层防水层、保护层、滤水层等。特殊的防水层,可防止花木根系穿刺对主体结构造成破坏,花池种植土表面以及土壤下部排水板上方皆设置排水地漏,连通雨污水管保证花木浇灌的畅通。

阳台效果 实景图
中国铁建打造了一个创新的“空中庭院”住宅项目——中国铁建贵阳·花语墅,每一户都有一个空中露台,露台面积与庭院相当,露台范围内栽种与当地气候条件适合的植物,从而形成垂直森林的效果。
贵阳·花语墅效果图

贵阳·花语墅效果图
露台逐级错位向上,每三层一个模块,每三层一次循环,约9m挑高“空中庭院”,能满足大型乔木和灌木生长。
贵阳·花语墅示意图
户型采用“凸”字型设计,将露台外伸,逐级旋转90度,错位向上布局,每三层一个模块,每三层一次循环,这样就形成了每户可拥有约9m挑高(三层高)的露台空间。

贵阳·花语墅户型图
为满足空中庭院能够满足高大乔木以及多品种灌木的种植要求,露台较为理想的就是方正的形式,既要有横向延展性,也要有纵深,所以露台尺度上控制为约50㎡/户,进深最小为4.8m。
为了实现空中庭院与客厅的对位互通,所有户型的客厅随露台进行空间换位,进而实现每个户型的客厅与露台真正融为一体。
贵阳·花语墅实景图

贵阳·花语墅实景图

贵阳·花语墅实景图
岳阳南湖天著新一代森林院墅,把空中庭院主要设在楼体的东西南侧,错落布局,实现视线隔断。
岳阳南湖天著效果图
将庭院面积聚焦到一起,庭院的空间感和尺度感超大,庭院最高达50m²,面宽逾10m,阔绰非凡。

岳阳南湖天著效果图
岳阳南湖天著高层效果图
在岳阳南湖天著二期平墅,空中庭院乃一个长达20米、宽达13米、高达7.18米的立体空间,面积阔达176m²(数据源自536m²瞰宇平墅)。

岳阳南湖天著效果图
通威助力眉山城市发展,实力开发纯正新一代建筑——眉山通威城市森林花园,户户拥享50-115㎡的空中花园,源于清华大学建筑设计院创新绿色居住理念的设计,将绿色、健康、生态、节能等元素融于建筑,在技术上创新颠覆,创新庭院转换+楼层转换技术,实现真正改善人居环境、提升居民幸福指数的庭院奢宅。



图源:THAD清华大学建筑设计研究院有限公司
户型示意图
通威城市森林花园的空中花园均设计了60公分的下沉空间,可种植当地的中小型植物。不管是防水还是规划设计都作了充分的考量,植被+草坪+铺石将作为精装交付标准,而这样高标准花园物业通过全新的智能滴灌系统进行管理,也会定期实行高成本的维护,保证交房后住宅立面的干净和整洁。

眉山通威城市森林花园实景图
空中花园主要由木平台,轻钢廊架,种植池,造型格栅景墙构成。轻便材质极大减轻花园荷载。种植池进行内保温设计,保障植物顺利过冬;物业需每个月一次定期植物排危,避免消极天气引起杂物坠落;植物选种皆为常规植物,不需要专业护理,业主自行养护;挂果植物采取果实防坠落设计措施,植株选用矮化品种,种植在院落内侧,同时果木外围采取景观格栅遮蔽防护措施,极具有观赏性,又满足安全需求。
眉山通威城市森林花园实景图
济宁龙翔江东华府全新颠覆设计“游艇式露台”,270°IMAX视野,以游艇为灵感来源,创造无边界视觉效果,赋予每一户独立甲板式空中露台。

济宁龙翔江东华府效果图
创新飘台错层设计,户户“空中庭院”,向上挑空可以达到约6米。层层露台为居者预留自由布置更多美好生活场景的可能。


户型图
济宁龙翔江东华府效果图

济宁龙翔江东华府露台效果示意图
结语
以上这些项目,通过不同的绿植种类进行高低错落搭配,利用其形态和季节变化,丰富绿化空间层次,打造出较好的观赏性能,在家就能够欣赏到美丽景观。
各大房企做如此突破性的创新,成本肯定是比较高的。但也正是这样的创新,给项目的品牌和价值带来溢价,形成区域内的标杆产品。
大家是如何看待新一代住宅呢?
欢迎加入
第四代住宅(设计交流群)

群满员后,联系微信:xiaosou2019
西安·精品项目考察
本资料声明:
1.本文为建筑设计技术分析,仅供欣赏学习。
2.本资料为要约邀请,不视为要约,所有政府、政策信息均来源于官方披露信息,具体以实物、政府主管部门批准文件及买卖双方签订的商品房买卖合同约定为准。如有变化恕不另行通知。
3.因编辑需要,文字和图片无必然联系,仅供读者参考;
推荐一个
专业的地产+建筑平台
每天都有新内容
扫描二维码关注

微信公众号“搜建筑”(ID:sjz9999)
合作、宣传、投稿
联系微信:soujianzhu006















