Pelsan Tekstil是Hassan集团旗下的一家公司,它是土耳其第一家也是唯一一家透气聚乙烯薄膜生产商,为医疗、卫生和绝缘部门提供服务,它的新总部由Mimaristudio团队设计。该项目的目的是在新的工作区创造一个适合该公司的创新、技术和丰富多彩的世界的生活空间,这是新的生产设施的核心。灵活性、可变性、透明度和经验是塑造空间设计的主要关键词。
Pelsan Tekstil, a company under the Hassan Group, which is Turkey's first and only producer of breathable polyethylene film, providing services to the medical, hygiene, and insulation sectors, has a new headquarters designed by the Mimaristudio team. The aim of the project was to create a living space suitable for the company's innovative, technological, and colorful world in the new working area, which is the heart of the new production facility. Flexibility, variability, transparency, and experience were the main keywords that shaped the design of the space.
该项目旨在创建一个共享的工作空间、发展空间和生活空间,通过提供创造力和生产力所需的物质和社会条件,支持员工之间的交流和互动。它被设计成一个鼓舞人心的生活空间,Pelsan的员工可以在这里发展自己、社交、分享和相互学习。该提案通过创造一个提供协作机会的安全空间,将幸福感放在首位。在这里,长时间呆在室内并依赖技术的员工可以在身体和精神上都得到健康和快乐。
Mimaristudio还设计了外墙。考虑到最近大流行病的影响,允许用户进入露天的露台楼层是结构中值得注意的细节。这些生活空间被规划在建筑的不同楼层,既可用于工作,也可用于社交,内部和外部空间之间建立了半透明的联系。这个界面也使空间的使用者能够通过其不同大小的开口与外部进行视觉接触。在外墙界面上创建的自然景观区,允许随着时间的推移在外墙上有控制地生长绿色植物。
Mimaristudio also designed the facade. With an approach that takes into account the effects of the recent pandemic, the terrace floors that allow users to access open air are among the notable details of the structure. With these living spaces planned at different levels of the building, which can be used for both work and socializing, a semi-transparent connection is established between the interior and exterior spaces. This interface also enables a visual contact with the outside for the users of the space through its different-sized openings. Natural landscaping areas created on the facade interface allow controlled growth of greenery on the facade over time.
员工被赋予了选择工作地点、时间和方式的自由。短暂的休息区被规划出来,在连接行政部门和工程部门的流通轴上行走时可以举行短暂的会议。在方案允许的范围内,整个楼层增加了具有不同规模、功能和形式的社交区域、个人和协作工作、会议和咨询空间,以提高使用的灵活性。此外,环境友好性和可持续性也是设计方法的重要组成部分。在这种情况下,14条亲水设计路线和概念,如 "空间中的自然"、"自然提醒 "和 "空间的自然",包含在 "亲水设计 "方法中,在项目中得到了体现。
除了防止封闭房间之间的声音传播,还为开放区域员工的舒适条件选择了合适的材料和产品。在这里,由Ayca Akkaya Kul设计的Feltouch开发的 "Mak-up "系列天花板和墙壁声学产品,以及首次在该项目中使用的 "Ra "声学照明系列,是空间中的突出产品。虽然在一般的照明中,线性和准时的技术照明产品是首选,但装饰性产品也被包括在该项目中。特别是由Ayca Akkaya Kul设计、Maiizen生产的 "Sade "照明,它是手工制作的,采用充气的双层技术,吸引了人们的注意。

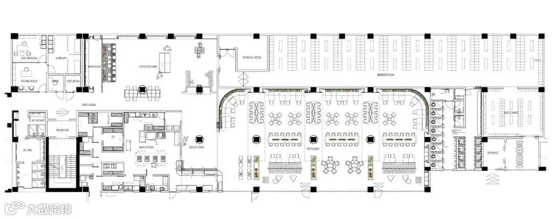
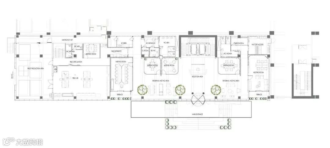
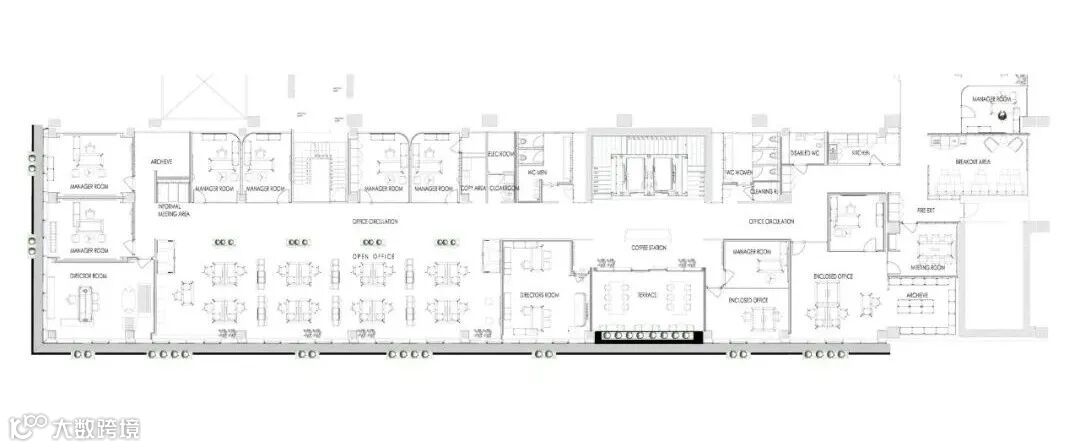
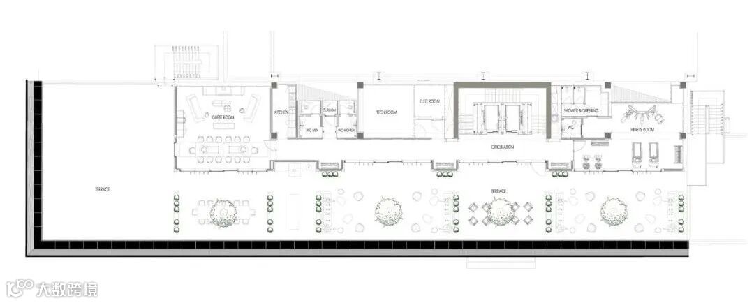
平面图

平面图

平面图

平面图
本资料声明:
1.本文为建筑设计技术分析,仅供欣赏学习。
2.本资料为要约邀请,不视为要约,所有政府、政策信息均来源于官方披露信息,具体以实物、政府主管部门批准文件及买卖双方签订的商品房买卖合同约定为准。如有变化恕不另行通知。
3.因编辑需要,文字和图片无必然联系,仅供读者参考;
青岛·精品项目考察
推荐一个
专业的地产+建筑平台
每天都有新内容
扫描二维码关注

微信公众号“搜建筑”(ID:sjz9999)
合作、宣传、投稿
联系微信:soujianzhu006


